Дачный дом 6х8 с ломаной крышей

Цена актуальна: 14.03.2026

Проект DK2/21

Экономия: 40 000 ₽

806 000  879 000 

  • Металлочерепица в подарок
  • Скидка на винтовые сваи 50%
  • Цена не вырастет во время стройки

Скидка на сваи 50%!

Строительство под ключ 3 дня

Нижний Новгород и область

Есть вопросы?

Специалист СК “Надёжность”
поможет с выбором

Описание

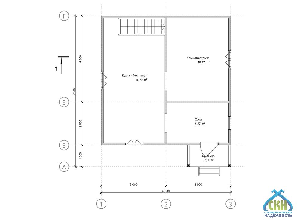
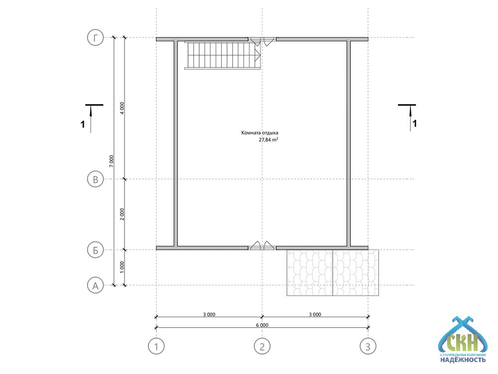
Строительная компания «Надёжность» предлагает строительство дачного дома 6х8 под ключ в Нижнем Новгороде и области. Проект предусматривает двухэтажное строение с развитой внутренней планировкой. Габариты составляют 66 квадратных метров. Общее жилое пространство 32,5 квадрата. В доме 2 спальни и большая кухня-гостиная. Крыша имеет сложную форму, используется как полноценное жилое пространство. В холле достаточно места для организации гардеробной. Шашлычный сезон пройдёт на высшем уровне, на просторной террасе поместятся все гости, а атмосфера уюта и природы сделает встречу незабываемой. Во время строительства вы увидите добросовестное отношение к работе и внимание к каждой детали Вашего проекта!

Смотрите как мы строим
подобные проекты

Проект

АтрибутЗначение
Типлетние
Размеры, м6x8
Кол. этажей2
Конструкциятерраса, кухня-гостиная
Крышаломаная
Кол. спален2
Сан. узелнет
Стильсовременный
Технологиякаркасная
ПомещениеПлощадь
Общая65.98 м²
Жилая32.5 м²
Кухня16.3 м²
Холл5,18 м²
Терраса12,00 м²

Комплектация

Состав комплектации
Внешний контур
879 000 ₽
806 000 ₽
Закрытый контур
1 241 000 ₽
1 139 000 ₽
Дача под ключ
1 958 000 ₽
1 797 000 ₽
Высота - 1-й этаж 2,4 м. Силовой каркас - наружние и внутренние стены 50х100 мм, лаги цокольного перекрытия 50х150 мм, лаги потолка и стропильной системы 50х100 мм, с шагом 590 мм.
Кровельное покрытие - Профилированный лист (окрашенный) 0,4 мм, устройство обрешетки, контробрешетки и гидроизоляции.
Устройство карнизов, подшив кровельных свесов - евровагонка (хвоя).
Внешняя отделка фасада - OSB с устройством вентилируемого зазора и ветровлагозащитой.
Внешняя отделка фасада - имитация бруса с устройством вентилируемого зазора и ветровлагозащитой.
Внутренняя отделка - евровагонка (хвоя).
Настил пола - шпунтованная доска 36 мм с утеплением 100 мм минеральная вата Knauf Insulation.
Утепление внешних и внутренних стен, перекрытий 100 мм - минеральная вата Knauf Insulation.
Окна ПВХ, ширина профиля 60 мм, двухкамерный стеклопакет с металлическими отливами.
Дверь входная металлическая, с двумя замками.

Дополнительные услуги

150 000 ₽
127 500 ₽
90 000 ₽
70 000 ₽

Бесплатный выезд специалиста

Оплата

  • Способы оплаты
    Наличными деньгами в кассу офиса компании или банковский перевод на расчетный счет компании.
  • Этапы оплаты
    Оплата комплекса услуг по строительству вашего дома или бани проходит в три этапа. Суммы фиксируются в договоре подряда на строительство с указанием сроков, это гарантирует заказчикам, что цена не вырастет во время стройки.
  • Оплата в кредит
    Мы работаем с многими банками партнерами. Подать заявку на оформление кредита можно в офисе компании или по телефону. Одобрение заявки занимает 30 минут.

Информирование

Еженедельный фото или видеоотчет в любом удобном для вас канале: почта, мессенджеры. Прораб ждет Вас на участке строительства в удобное для Вас время по договоренности.

Доставка

СК Надёжность возьмет на себя полный комплекс услуг по доставке, погрузке и разгрузке материалов до места строительства на Вашем участке в Нижнем Новгороде или Нижегородской области.  Стоимость рассчитывается индивидуально на каждый объект менеджером в зависимости от веса груза, типа транспортного средства и километража.

Сроки строительства

Сроки строительства составляют от двух недель до двух месяцев в зависимости от размеров объекта и объема работ. При составлении договора подряда сроки указываются на момент оформления документов.

Гарантия

Современные технологии и качественный материал позволяет дать гарантию для наших клиентов 5 лет.

Посетите нашу выставочную площадку

Нижегородская область, Богородский район, СТ Родник, 7

Преимущества строительной компании Надёжность

Строительство дачного дома под ключ

Проектирование, изготовление, транспортировка, монтаж, инженерные коммуникации, утепление, отделка

Кредит за 30 минут

Только паспорт и СНИЛС Использование материнского капитала для детей любого возраста

Профессиональный подход

Рекомендации специалистов на всех этапах от выбора фундамента до планирования интерьера

Собственное производство

Все комплектующие в наличии, срочная замена в случае необходимости

Контроль качества

Система контроля качества на всех этапах: производства, сушки, хранения, транспортировки, отгрузки

Технический надзор

Закрепленный прораб на объекте, опытные рабочие, высокое качество работ!

Выполненные проекты

Отзывы

Поделитесь вашим мнением

Ваш отзыв поможет другим покупателям сделать правильный выбор!

Виталий Яременко 21 мая 2025
Кулебаки
Рад, что обратился именно к вам, каркасная дача получилась лучше ожиданий. Кровля выполнена из качественных материалов и выглядит очень аккуратно. Смогли воплотить наш замысел в жизнь, спасибо за понимание и исполнение.
Сослан Бекоев 10 апреля 2025
Кулебаки
Вентиляция обеспечивает постоянный приток свежего воздуха, дом "дышит". Дом оказался готов к разным погодным условиям, сильный ветер или дождь не страшны. Горячо благодарю за чуткость и понимание при проектировании дачного дома.
Семён Одинцов 01 февраля 2025
Балахна
Наличие дровяной печи создаёт особую атмосферу тепла и уюта в холодные вечера. Научили пользоваться инженерными системами, теперь чувствую себя уверенно в управлении. Ценю вашу способность быть рядом в самые ответственные моменты при строительстве дачного дома.
Кирилл Лазарев 30 ноября 2024
Вача
Инженеры учитывали особенности рельефа, это сильно сказалось на устойчивости дома. Благодарю за вашу честность и прозрачность в финансовых вопросах по дачному дому. Фундамент прочный и надёжный, чувствуется основательность конструкции.
Ася Гафарова 22 августа 2024
Большое Болдино
Я была приятно удивлена продуманностью проекта. Особенно порадовало расположение окон — светло и уютно. Спасибо дизайнерам за эстетику и функциональность. Дом стал настоящим уголком счастья.

Ждём вас в любом из наших офисов

Сартаково

Нижний Новгород, СТ Родник, 7

Больше вариантов

Вопросы и ответы

Да, дачный каркасный дом рассчитан на 40–50 лет. Надёжность обеспечивают сухое дерево, правильная сборка и защитные пропитки.
Для предотвращения перекоса используем диагональные связи, свайно-винтовой фундамент и точный монтаж каркаса. Все этапы проверяются прорабом.
Мы работаем напрямую: собственная бригада, прямые поставщики материалов, прораб и менеджер — всё в одном месте, без лишних звеньев.
Да, у нас есть раздел отзывов только по дачным домам. Можем отправить ссылку или подобрать примеры, близкие к вашему проекту.
Мы используем систему управления проектами, где ведётся журнал работ. Клиент получает обновления по графику и может следить за стройкой через личный кабинет или фотоотчёты.
У нас есть шаблоны договоров под разные типы сотрудничества. Но при необходимости вносим индивидуальные условия и адаптируем документ под клиента.
Дачный дом 6х6 двухэтажный с ломаной крышей, под ключ в Нижнем Новгороде, фото 1

Дачный дом 6х8 с ломаной крышей

×
Интерактивная карта Нижегородской области
Тоншаево Ветлуга Урень Тонкино Шаранга Варнавино Ковернино Городец Балахна Володарск Павлово Сосновское Вача Кулебаки Выкса Дивеево Лукоянов Починки Пильна Сергач Первомайск Гагино Богородск Шатки Арзамас Саров Княгинино Бутурлино Лысково Спасское Воротынец Перевоз Большое Мурашкино Ардатов Уразовка Сеченово Чкаловск Заволжье Сокольское Красные баки Воскресенское Семенов Бор Кстово Нижний Новгород Кстово Дзержинск Дальнее Константиново Шахунья Вад Вознесенское Большое Болдино Навашино
Заявка на проект
Введите телефон и мы перезвоним Вам в течение 3х минут, чтобы обсудить детали
8% скидка до 31 марта 2026!
Кредит на строительство
Условия кредитования
  • Ставка 14,5%
  • Сумма до 5 000 000 руб.
  • Срок от 6 до 60 месяцев
  • Решение за 30 минут
  • Персональный менеджер 24/7

Используйте материнский капитал на строительство частного дома независимо от возраста ребенка!

(согласно ФЗ-256 от 29.12.2006 г.)
Бесплатный выезд специалиста
Введите телефон и мы перезвоним
Вам в течение 3х минут
Запись на посещение
Введите телефон и мы перезвоним
Вам в течение 3х минут
Задайте ваш вопрос
И мы перезвоним вам с ответом!
Сайт использует файлы куки