Нижний Новгород, ул. Ларина, 27

Пн-Пт 10:00 - 18:00

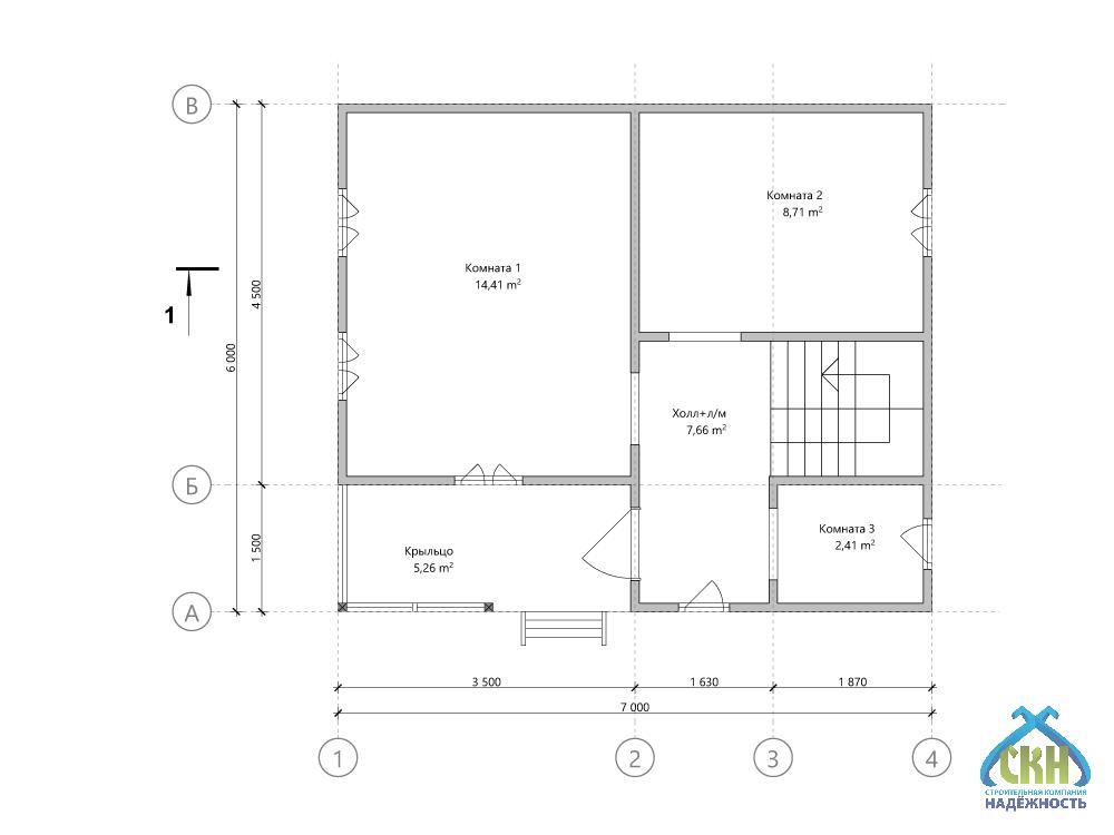
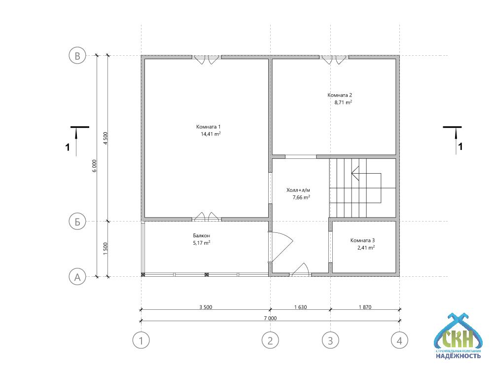
Дачный дом 7х6 на 3 комнаты

Проект DK2/11

Экономия: 39 000 ₽

778 000  817 000 

  • Металлочерепица в подарок
  • Скидка на винтовые сваи 50%
  • Цена не вырастет во время стройки

Скидка на сваи 50%!

Строительство под ключ 3 дня

Нижний Новгород и область

Есть вопросы?

Специалист СК “Надёжность”
поможет с выбором

Описание

Строительная компания «Надёжность» предлагает строительство дачного дома 7х6 под ключ в Нижнем Новгороде и области. Двухэтажный каркасный дачный дом 7 на 6 метров очень функциональный и по выгодной цене. Его отличает удачная планировка для полноценного отдыха: три спальни, кухня-гостиная, два санузла, балкон, терраса. Садовый дом получился очень универсальным. Подходит для сезонного и постоянного проживания, а также в качестве гостевого дома. Мы предлагаем комплектацию с отделкой под ключ и подведением коммуникаций. Сдадим дом полностью готовым для заселения. Поможем с кредитом, принимаем материнский капитал!

Смотрите как мы строим
подобные проекты

Проект

АтрибутЗначение
Типлетние
Размеры, м6x7
Кол. этажей2
Конструкциябалкон, крыльцо
Крышадвухскатная
Кол. спален3
Сан. узел2
Оснащениекухня-гостиная
Технологиякаркасная
Стильклассический
ПомещениеПлощадь
Общая75.74 м²
Жилая31.18 м²
Кухня14.48 м²
Санузел4.76 м²
Холл14.82 м²
Терраса5.25 м²
Балкон5,25 м²

Комплектация

Состав комплектации
Внешний контур
817 000 ₽
778 000 ₽
Закрытый контур
1 206 000 ₽
1 148 000 ₽
Дача под ключ
2 130 000 ₽
2 028 000 ₽
Высота - 1-й этаж 2,4 м. Силовой каркас - наружние и внутренние стены 50х100 мм, лаги цокольного перекрытия 50х150 мм, лаги потолка и стропильной системы 50х100 мм, с шагом 590 мм.
Кровельное покрытие - Профилированный лист (окрашенный) 0,4 мм, устройство обрешетки, контробрешетки и гидроизоляции.
Устройство карнизов, подшив кровельных свесов - евровагонка (хвоя) 12,5х88 мм.
Внешняя отделка фасада - ориентировано-стружечная плита 9 мм с устройством вентилируемого зазора и ветровлагозащитой.
Внешняя отделка фасада - имитация бруса 16х135 мм с устройством вентилируемого зазора и ветровлагозащитой.
Внутренняя отделка - евровагонка (хвоя) 12,5х88 мм.
Настил пола - шпунтованная доска 36 мм с утеплением 100 мм минеральная вата Knauf Insulation 11-13 кг/м3.
Утепление внешних и внутренних стен, перекрытий 100 мм - минеральная вата Knauf Insulation 11-13 кг/м3
Окна ПВХ, ширина профиля 60 мм, двухкамерный стеклопакет с металлическими отливами.
Дверь входная металлическая, с одним замком.

Дополнительные услуги

150 000 ₽
170 000 ₽
120 000 ₽
100 000 ₽

Бесплатный выезд специалиста

Оплата

  • Способы оплаты Наличными деньгами в кассу офиса компании или банковский перевод на расчетный счет компании.

  • Этапы оплаты Оплата комплекса услуг по строительству вашего дома или бани проходит в три этапа. Суммы фиксируются в договоре подряда на строительство с указанием сроков, это гарантирует заказчикам, что цена не вырастет во время стройки.

  • Оплата в кредит Мы работаем с многими банками партнерами. Подать заявку на оформление кредита можно в офисе компании или по телефону. Одобрение заявки занимает 30 минут.

Информирование

Еженедельный фото или видеоотчет в любом удобном для вас канале: почта, мессенджеры. Прораб ждет Вас на участке строительства в удобное для Вас время по договоренности.

Доставка

СК Надёжность возьмет на себя полный комплекс услуг по доставке, погрузке и разгрузке материалов до места строительства на Вашем участке в Нижнем Новгороде или Нижегородской области. 

Стоимость рассчитывается индивидуально на каждый объект менеджером в зависимости от веса груза, типа транспортного средства и километража.

Сроки строительства

Сроки строительства составляют от двух недель до двух месяцев в зависимости от размеров объекта и объема работ. При составлении договора подряда сроки указываются на момент оформления документов.

Гарантия

Современные технологии и качественный материал позволяет дать гарантию для наших клиентов 5 лет.

Посетите нашу выставочную площадку

Нижегородская область, Богородский район, СТ Родник, 7

Преимущества строительной компании Надёжность

Строительство дачного дома под ключ

Проектирование, изготовление, транспортировка, монтаж, инженерные коммуникации, утепление, отделка

Кредит за 30 минут

Только паспорт и СНИЛС Использование материнского капитала для детей любого возраста

Профессиональный подход

Рекомендации специалистов на всех этапах от выбора фундамента до планирования интерьера

Собственное производство

Все комплектующие в наличии, срочная замена в случае необходимости

Контроль качества

Система контроля качества на всех этапах: производства, сушки, хранения, транспортировки, отгрузки

Технический надзор

Закрепленный прораб на объекте, опытные рабочие, высокое качество работ!

Выполненные проекты

Отзывы

Поделитесь вашим мнением

Ваш отзыв поможет другим покупателям сделать правильный выбор!

Елизавета Филиппова 20 марта 2025
Энергоэффективность конструкции позволяет экономить на обогреве и электричестве. Строители сами предложили решения, которые мы даже не рассматривали, эффект впечатляющий. Благодарю за вашу лояльность и уважение к нашему мнению при строительстве дачи.
Стефания Лесогорова 04 февраля 2025
Дом теплый даже в холодное время года. Благодарю за качественное утепление - электроэнергия не расходуется впустую. Такой дом можно использовать круглый год.
Владимир Воронцов 09 января 2025
Выражаю признательность за чистоту и порядок на площадке строительства дачи. Новые окна обеспечивают не только свет, но и хорошую тепло- и звукоизоляцию. Специалисты компании действительно знают своё дело, всё прошло легко и слаженно.
Стас Кибалкин 05 января 2025
Остались под большим впечатлением от качества построенной дачи. Расположение окон обеспечивает достаточное естественное освещение во всех комнатах. И вообще довольны сотрудничеством, дача получилась уютной и практичной.
София Морозова 11 октября 2024
Не было давления или навязывания услуг, всё предложено доброжелательно и по делу. Ценю вашу готовность предоставить гарантии и поддержку при сборке каркасной дачи. Есть отличная возможность расширить площадь, если понадобится больше места.

Ждём вас в любом из наших офисов

Сартаково

Нижний Новгород, СТ Родник, 7

Больше вариантов

Вопросы и ответы

Внесение изменений в проект предусмотрено. Например, мы можем перенести окна, добавить веранду или изменить планировку комнат. Это обсуждается до начала строительства.
Доставка материалов осуществляется нашим автопарком или проверенными логистическими компаниями. Мы сами занимаемся логистикой, вам не нужно ничего организовывать.
Строительство начинается через 14-30 дней после подписания договора и получения аванса. Это время уходит на производство и подготовку материалов, их доставку на участок.
Да, работаем с любыми форматами: физические лица, ИП, ООО. Условия сотрудничества адаптируем под клиента, документы оформляем чётко и вовремя.
Да, у нас есть чек-листы по всем ключевым этапам: сборка каркаса, утепление, кровля, установка окон и дверей, электромонтаж.
Подполье и полы закрываются металлической сеткой, щели герметизируются, а дерево обрабатывается антисептиками, отпугивающими грызунов.
Дачный дом 6х7 двухэтажный 3 комнаты, под ключ в Нижнем Новгороде, фото 1

Дачный дом 7х6 на 3 комнаты

×
Интерактивная карта Нижегородской области
Тоншаево Ветлуга Урень Тонкино Шаранга Варнавино Ковернино Городец Балахна Володарск Павлово Сосновское Вача Кулебаки Выкса Дивеево Лукоянов Починки Пильна Сергач Первомайск Гагино Богородск Шатки Арзамас Саров Княгинино Бутурлино Лысково Спасское Воротынец Перевоз Большое Мурашкино Ардатов Уразовка Сеченово Чкаловск Заволжье Сокольское Красные баки Воскресенское Семенов Бор Кстово Нижний Новгород Кстово Дзержинск Дальнее Константиново Шахунья Вад Вознесенское Большое Болдино Навашино
Заявка на проект
Введите телефон и мы перезвоним Вам в течение 3х минут, чтобы обсудить детали
Кредит на строительство
Условия кредитования
  • Ставка 14,5%
  • Сумма до 5 000 000 руб.
  • Срок от 6 до 60 месяцев
  • Решение за 30 минут
  • Персональный менеджер 24/7

Используйте материнский капитал на строительство частного дома независимо от возраста ребенка!

(согласно ФЗ-256 от 29.12.2006 г.)
Бесплатный выезд специалиста
Введите телефон и мы перезвоним
Вам в течение 3х минут
Запись на посещение
Введите телефон и мы перезвоним
Вам в течение 3х минут
Задайте ваш вопрос
И мы перезвоним вам с ответом!
Оставаясь на сайте, вы соглашаетесь на использование файлов куки и передачей данных службам веб-аналитики
5% скидка до 28 февраля!