Нижний Новгород, СТ Родник, 7

Нижний Новгород, ул. Ларина, 27

Нижний Новгород, СТ Родник, 7

Пн-Пт 10-18 ч.

Нижний Новгород, СТ Родник, 7

Нижний Новгород, ул. Ларина, 27

Дачный дом 6х6 на 2 спальни

Проект DK2/10

Экономия: 33 000 ₽

646 000  679 000 

  • Металлочерепица в подарок
  • Скидка на винтовые сваи 50%
  • Цена не вырастет во время стройки

Скидка на сваи 50%!

Строительство под ключ 3 дня

Нижний Новгород и область

Есть вопросы?

Специалист СК “Надёжность”
поможет с выбором

Описание

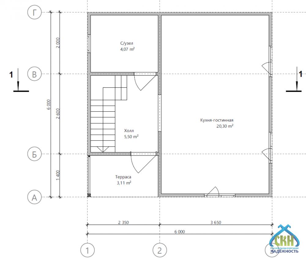
Среди особенностей проекта каркасной дачи — второй уровень и продуманная внутренняя структура. Объём дома —64,4 квадратных метра. Площадь жилых комнат равна 26,1 квадрата. В доме 2 спальни. Просторная кухня сочетается с залом. Наличие мансарды увеличивает объём жилых площадей. Двухскатная крыша идеальна в нашей полосе для схода снега в весеннее время. Строительство проводится за минимальные сроки без потери качества и внимательности к деталям. Здесь можно наслаждаться загородным отдыхом круглый год — в любую погоду уют внутри будет согревать лучше любого камина.

Смотрите как мы строим
подобные проекты

Проект

АтрибутЗначение
Типлетние
Размеры, м6x6
Кол. этажей2
Конструкциятерраса
Крышадвухскатная
Кол. спален2
Оснащениекухня-гостиная
Стильсовременный
Технологиякаркасная
ПомещениеПлощадь
Общая64,4 м²
Жилая26,1 м²
Кухня20,3 м²
Санузел4,1 м²
Холл10,9 м²
Терраса3,1 м²

Комплектация

Состав комплектации
Внешний контур
679 000 ₽
646 000 ₽
Закрытый контур
996 000 ₽
948 000 ₽
Дача под ключ
1 719 000 ₽
1 636 000 ₽
Высота - 1-й этаж 2,4 м
Силовой каркас - наружние и внутренние стены 50х100 мм, лаги цокольного перекрытия 50х150 мм, лаги потолка и стропильной системы 50х100 мм, с шагом 590 мм.
Кровельное покрытие - Профилированный лист (окрашенный) 0,4 мм, устройство обрешетки, контробрешетки и гидроизоляции.
Устройство карнизов, подшив кровельных свесов - евровагонка (хвоя) 12,5х88 мм.
Внешняя отделка фасада - ориентировано-стружечная плита 9 мм с устройством вентилируемого зазора и ветровлагозащитой.
Внешняя отделка фасада - имитация бруса 16х135 мм с устройством вентилируемого зазора и ветровлагозащитой.
Внутренняя отделка - евровагонка (хвоя) 12,5х88 мм.
Настил пола - шпунтованная доска 36 мм с утеплением 100 мм минеральная вата Knauf Insulation 11-13 кг/м3.
Утепление внешних и внутренних стен, перекрытий 100 мм - минеральная вата Knauf Insulation 11-13 кг/м3
Окна ПВХ, ширина профиля 60 мм, двухкамерный стеклопакет с металлическими отливами.
Дверь входная металлическая, с одним замком.

Дополнительные услуги

150 000 ₽
136 000 ₽
96 000 ₽
80 000 ₽

Бесплатный выезд специалиста

Оплата

  • Способы оплаты Наличными деньгами в кассу офиса компании или банковский перевод на расчетный счет компании.

  • Этапы оплаты Оплата комплекса услуг по строительству вашего дома или бани проходит в три этапа. Суммы фиксируются в договоре подряда на строительство с указанием сроков, это гарантирует заказчикам, что цена не вырастет во время стройки.

  • Оплата в кредит Мы работаем с многими банками партнерами. Подать заявку на оформление кредита можно в офисе компании или по телефону. Одобрение заявки занимает 30 минут.

Информирование

Еженедельный фото или видеоотчет в любом удобном для вас канале: почта, мессенджеры. Прораб ждет Вас на участке строительства в удобное для Вас время по договоренности.

Доставка

СК Надёжность возьмет на себя полный комплекс услуг по доставке, погрузке и разгрузке материалов до места строительства на Вашем участке в Нижнем Новгороде или Нижегородской области. 

Стоимость рассчитывается индивидуально на каждый объект менеджером в зависимости от веса груза, типа транспортного средства и километража.

Сроки строительства

Сроки строительства составляют от двух недель до двух месяцев в зависимости от размеров объекта и объема работ. При составлении договора подряда сроки указываются на момент оформления документов.

Гарантия

Современные технологии и качественный материал позволяет дать гарантию для наших клиентов 5 лет.

Посетите нашу выставочную площадку

Нижегородская область, Богородский район, СТ Родник, 7

Преимущества строительной компании Надёжность

Строительство дачного дома под ключ

Проектирование, изготовление, транспортировка, монтаж, инженерные коммуникации, утепление, отделка

Кредит за 30 минут

Только паспорт и СНИЛС Использование материнского капитала для детей любого возраста

Профессиональный подход

Рекомендации специалистов на всех этапах от выбора фундамента до планирования интерьера

Собственное производство

Все комплектующие в наличии, срочная замена в случае необходимости

Контроль качества

Система контроля качества на всех этапах: производства, сушки, хранения, транспортировки, отгрузки

Технический надзор

Закрепленный прораб на объекте, опытные рабочие, высокое качество работ!

Выполненные проекты

Отзывы

Поделитесь вашим мнением

Ваш отзыв поможет другим покупателям сделать правильный выбор!

Антон Задорожный 04 июля 2025
От всего сердца благодарю за экономичность. Низкие расходы на отопление и обслуживание делают дом выгодным решением. Жить в таком - одно удовольствие.
Кристина Костина 22 мая 2025
Высота потолков делает пространство визуально более просторным. Даже после окончания проекта продолжают отвечать на вопросы, это большая редкость. Спаибо за вашу энергию и энтузиазм в работе над каркасным домом.
Владимир Миньков 13 марта 2025
Компания не бросила после завершения, оказывают помощь и сейчас. Признателен за то, что создали комфортную атмосферу на стройке дачного дома. Безопасность на участке на высшем уровне, можно не беспокоиться за детей и имущество.
Алексей Баранов 04 октября 2024
Материалы использовались экологичные, это сыграло важную роль в выборе компании. Приятно видеть, как вы относитесь к каждому этапу серьёзно при сборке каркаса. Наличие хозпостроек значительно упрощает жизнь на даче, всё под рукой.
Кристина Худинова 16 сентября 2024
Оценили по достоинству ваше умение слышать клиента при проектировании дачного дома. Есть хорошая возможность расширения, можно добавить беседку или пристройку. Все работы были выполнены аккуратно и с соблюдением технологий.

Ждём вас в любом из наших офисов

Сартаково

Нижний Новгород, СТ Родник, 7

Больше вариантов

Вопросы и ответы

Мы предлагаем оффлайн отслеживание строительства. Все фотоотчеты предоставляем в мессенджерах или на электронную почту, акты выполненных работ подписываются в офисе компании.
Окна и двери устанавливаются с использованием ПСУЛ-ленты, монтажной пены с низким расширением и гидроизоляционных мембран. Это обеспечивает герметичность и защиту от продувания.
График строительства составляется до начала работ. Он подробный и включает все этапы. По согласованию возможна корректировка графика.
В каркасной технологии изменения в проект вносятся даже во время строительства. Главное — согласовать их с инженерами и прорабом, чтобы не нарушить конструктивную целостность.
Да, у нас есть готовые решения для дачи, которые позволяют начать стройку через 14 дней после подписания договора.
Микроклимат контролируется пароизоляцией, вентиляцией и качественной сборкой. Конденсат в наших домах почти никогда не образуется.
Дачный дом 6х6 двухэтажный 2 спальни, под ключ в Нижнем Новгороде, фото 1

Дачный дом 6х6 на 2 спальни

×

Интерактивная карта Нижегородской области

Тоншаево Ветлуга Урень Тонкино Шаранга Варнавино Ковернино Городец Балахна Володарск Павлово Сосновское Вача Кулебаки Выкса Дивеево Лукоянов Починки Пильна Сергач Первомайск Гагино Богородск Шатки Арзамас Саров Княгинино Бутурлино Лысково Спасское Воротынец Перевоз Большое Мурашкино Ардатов Уразовка Сеченово Чкаловск Заволжье Сокольское Красные баки Воскресенское Семенов Бор Кстово Нижний Новгород Кстово Дзержинск Дальнее Константиново Шахунья Вад Вознесенское Большое Болдино Навашино
Заявка на проект
Введите телефон и мы перезвоним Вам в течение 3х минут, чтобы обсудить детали

Каталог

Страницы

5% скидка до 31 января!
Кредит на строительство
Условия кредитования
  • Ставка 14,5%
  • Сумма до 5 000 000 руб.
  • Срок от 6 до 60 месяцев
  • Решение за 30 минут
  • Персональный менеджер 24/7

Используйте материнский капитал на строительство частного дома независимо от возраста ребенка!

(согласно ФЗ-256 от 29.12.2006 г.)
Бесплатный выезд специалиста
Введите телефон и мы перезвоним
Вам в течение 3х минут
Запись на посещение
Введите телефон и мы перезвоним
Вам в течение 3х минут
Задайте ваш вопрос
И мы перезвоним вам с ответом!

Оставаясь на сайте, вы соглашаетесь на использование файлов куки и передачей данных службам веб-аналитики