Нижний Новгород, ул. Ларина, 27

Пн-Пт 10:00 - 18:00

Дачный дом 6х6 в скандинавском стиле

Проект DK2/6

Экономия: 28 000 ₽

560 000  588 000 

  • Металлочерепица в подарок
  • Скидка на винтовые сваи 50%
  • Цена не вырастет во время стройки

Скидка на сваи 50%!

Строительство под ключ 3 дня

Нижний Новгород и область

Есть вопросы?

Специалист СК “Надёжность”
поможет с выбором

Описание

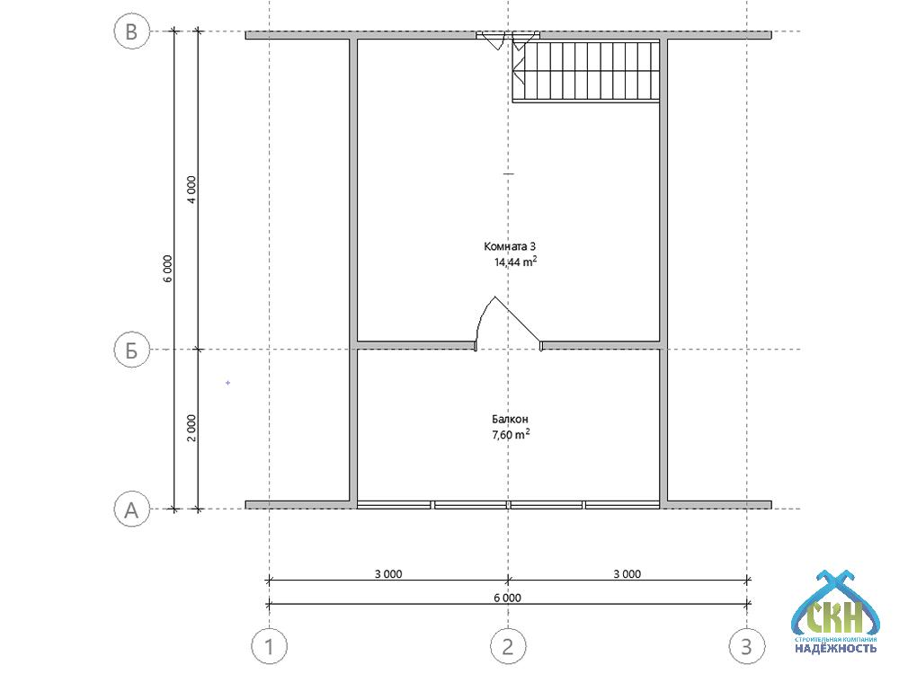
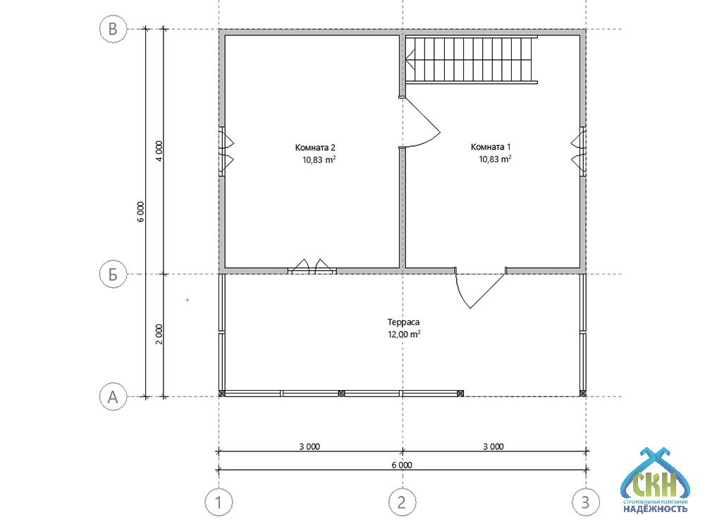
Строительная компания «Надёжность» предлагает строительство дачного дома 6х6 под ключ в Нижнем Новгороде и области. Каркасный дачный дом 6 на 6 метров — настоящий загородный шедевр для тех, кто умеет отдыхать с комфортом. Вместо скучной садовой избушки Вы получаете двухэтажный уютный дом с интересным архитектурным решением в скандинавском стиле общей площадью 55 кв. м.: две спальни, кухня-гостиная, терраса и балкон. Двухскатная крыша подчеркивает строгий стиль дома и обеспечивает эффективный отвод осадков. Строительство ведётся по проекту, где каждый гвоздь знает своё место, а материалы — надёжные, тёплые и долговечные. Фасад выполнен в приятном древесном цвете, но мы можем покрасить в любой выбранный Вами цвет. При этом цена приятно удивляет, никакой переплаты, только комфорт по-настоящему. Если вам нужен дом, в котором хочется жить, а не просто хранить инвентарь — это ваш вариант!

Смотрите как мы строим
подобные проекты

Проект

АтрибутЗначение
Типлетние
Размеры, м6x6
Кол. этажей2, 1,5
Конструкциябалкон, терраса
Крышадвухскатная
Кол. спален2
Оснащениекухня-гостиная
Стильскандинавский
Технологиякаркасная
ПомещениеПлощадь
Общая54,94 м²
Жилая24,78 м²
Кухня10,64 м²
Терраса12,00 м²
Балкон7,52 м²

Комплектация

Состав комплектации
Внешний контур
588 000 ₽
560 000 ₽
Закрытый контур
901 000 ₽
858 000 ₽
Дача под ключ
1 324 000 ₽
1 260 000 ₽
Высота - 1-й этаж 2,4 м. Силовой каркас - наружние и внутренние стены 50х100 мм, лаги цокольного перекрытия 50х150 мм, лаги потолка и стропильной системы 50х100 мм, с шагом 590 мм.
Кровельное покрытие - Профилированный лист (окрашенный) 0,4 мм, устройство обрешетки, контробрешетки и гидроизоляции.
Устройство карнизов, подшив кровельных свесов - евровагонка (хвоя) 12,5х88 мм.
Внешняя отделка фасада - ориентировано-стружечная плита 9 мм с устройством вентилируемого зазора и ветровлагозащитой.
Внешняя отделка фасада - имитация бруса 16х135 мм с устройством вентилируемого зазора и ветровлагозащитой.
Внутренняя отделка - евровагонка (хвоя) 12,5х88 мм.
Настил пола - шпунтованная доска 36 мм с утеплением 100 мм минеральная вата Knauf Insulation 11-13 кг/м3.
Утепление внешних и внутренних стен, перекрытий 100 мм - минеральная вата Knauf Insulation 11-13 кг/м3
Окна ПВХ, ширина профиля 60 мм, двухкамерный стеклопакет с металлическими отливами.
Дверь входная металлическая, с одним замком.

Дополнительные услуги

150 000 ₽
102 000 ₽
72 000 ₽
49 000 ₽

Бесплатный выезд специалиста

Оплата

  • Способы оплаты Наличными деньгами в кассу офиса компании или банковский перевод на расчетный счет компании.

  • Этапы оплаты Оплата комплекса услуг по строительству вашего дома или бани проходит в три этапа. Суммы фиксируются в договоре подряда на строительство с указанием сроков, это гарантирует заказчикам, что цена не вырастет во время стройки.

  • Оплата в кредит Мы работаем с многими банками партнерами. Подать заявку на оформление кредита можно в офисе компании или по телефону. Одобрение заявки занимает 30 минут.

Информирование

Еженедельный фото или видеоотчет в любом удобном для вас канале: почта, мессенджеры. Прораб ждет Вас на участке строительства в удобное для Вас время по договоренности.

Доставка

СК Надёжность возьмет на себя полный комплекс услуг по доставке, погрузке и разгрузке материалов до места строительства на Вашем участке в Нижнем Новгороде или Нижегородской области. 

Стоимость рассчитывается индивидуально на каждый объект менеджером в зависимости от веса груза, типа транспортного средства и километража.

Сроки строительства

Сроки строительства составляют от двух недель до двух месяцев в зависимости от размеров объекта и объема работ. При составлении договора подряда сроки указываются на момент оформления документов.

Гарантия

Современные технологии и качественный материал позволяет дать гарантию для наших клиентов 5 лет.

Посетите нашу выставочную площадку

Нижегородская область, Богородский район, СТ Родник, 7

Преимущества строительной компании Надёжность

Строительство дачного дома под ключ

Проектирование, изготовление, транспортировка, монтаж, инженерные коммуникации, утепление, отделка

Кредит за 30 минут

Только паспорт и СНИЛС Использование материнского капитала для детей любого возраста

Профессиональный подход

Рекомендации специалистов на всех этапах от выбора фундамента до планирования интерьера

Собственное производство

Все комплектующие в наличии, срочная замена в случае необходимости

Контроль качества

Система контроля качества на всех этапах: производства, сушки, хранения, транспортировки, отгрузки

Технический надзор

Закрепленный прораб на объекте, опытные рабочие, высокое качество работ!

Выполненные проекты

Отзывы

Поделитесь вашим мнением

Ваш отзыв поможет другим покупателям сделать правильный выбор!

Ольга Зверева 15 января 2026
Выбрала эту модель, так как понравилась планировка с террасой и балконом. Хочу отдельно выделить кухонную зону, так всегда мечтала о большой кухне. Еще понравился древесный оттенок фасада. Дом отлично вписывается в ландшафт участка, смотрится стильно и современно! От работы строителей остались приятные впечатления, все услуги выполнены в полном объёме. Качество бруса отличное!
Борис Титов 18 июня 2025
Спасибо за помощь в согласовании проекта, это сэкономило много времени. Приятно было наблюдать за вашим командным духом и единением при постройке дачи. Крыша смонтирована аккуратно, с соблюдением всех технологий и требований.
Зарина Хуснутдинова 08 июня 2025
Оцениваю по достоинству вашу ответственность и мастерство при сборке каркасной дачи. Фундамент оказался прочным и устойчивым, чувствуется основательность конструкции. Работают слаженно и оперативно, дом был готов даже раньше оговоренного срока.
Михаил Сухоруков 05 апреля 2025
Ценю ваше умение находить нестандартные, но эффективные решения для дачного дома. Уровень шума минимальный, даже в ветреную погоду в доме сохраняется тишина. У нас теперь уютная загородная дача, благодарю всю команду за отличную работу.
Максим Соболев 27 декабря 2024
Качество воды из скважины превзошло ожидания, чистая и вкусная. Особенно порадовало, что компания дала рекомендации по энергосбережению на будущее. Признателен за вашу веру в проект и желание его реализовать в виде дачного дома.

Ждём вас в любом из наших офисов

Сартаково

Нижний Новгород, СТ Родник, 7

Больше вариантов

Вопросы и ответы

Договор составлен простым языком, без юридических сложностей. Мы объясняем ключевые пункты перед подписанием, а также можем провести короткий разбор договора по телефону или онлайн.
Для внутренних перегородок используем деревянный каркас с обшивкой OSB или гипсокартоном. Можно выбрать по цене, весу и функциональности — например, для звукоизоляции или легкости.
У нас есть каталог проектов дачных домов с фотографиями, планировками и техническими характеристиками. Вы можете выбрать подходящий вариант или адаптировать его под себя.
Если хозблок используется круглый год, рекомендуем утепление стен и пола (минимум 100 мм утеплителя). Также предусмотрим паро- и гидроизоляцию, чтобы избежать сырости.
Кровлю делаем по классике каркасного домостроения: стропильная система из сухой доски 50х200 мм, обрешётка, гидроизоляция Tyvek, утепление. Опыт есть с односкатными, двускатными и мансардными крышами.
На всю конструкцию дома мы даём гарантию 1 год. На инженерные системы — 1–2 года. Всё прописано в договоре.
Дачный дом 6х6 двухэтажный в скандинавском стиле, под ключ в Нижнем Новгороде, фото 1

Дачный дом 6х6 в скандинавском стиле

×
Интерактивная карта Нижегородской области
Тоншаево Ветлуга Урень Тонкино Шаранга Варнавино Ковернино Городец Балахна Володарск Павлово Сосновское Вача Кулебаки Выкса Дивеево Лукоянов Починки Пильна Сергач Первомайск Гагино Богородск Шатки Арзамас Саров Княгинино Бутурлино Лысково Спасское Воротынец Перевоз Большое Мурашкино Ардатов Уразовка Сеченово Чкаловск Заволжье Сокольское Красные баки Воскресенское Семенов Бор Кстово Нижний Новгород Кстово Дзержинск Дальнее Константиново Шахунья Вад Вознесенское Большое Болдино Навашино
Заявка на проект
Введите телефон и мы перезвоним Вам в течение 3х минут, чтобы обсудить детали
Кредит на строительство
Условия кредитования
  • Ставка 14,5%
  • Сумма до 5 000 000 руб.
  • Срок от 6 до 60 месяцев
  • Решение за 30 минут
  • Персональный менеджер 24/7

Используйте материнский капитал на строительство частного дома независимо от возраста ребенка!

(согласно ФЗ-256 от 29.12.2006 г.)
Бесплатный выезд специалиста
Введите телефон и мы перезвоним
Вам в течение 3х минут
Запись на посещение
Введите телефон и мы перезвоним
Вам в течение 3х минут
Задайте ваш вопрос
И мы перезвоним вам с ответом!
Оставаясь на сайте, вы соглашаетесь на использование файлов куки и передачей данных службам веб-аналитики
5% скидка до 28 февраля!