Дачный дом 6х6 с мансардой и крыльцом

Цена актуальна: 14.03.2026

Проект DK2/9

Экономия: 32 000 ₽

725 000  790 000 

  • Металлочерепица в подарок
  • Скидка на винтовые сваи 50%
  • Цена не вырастет во время стройки

Скидка на сваи 50%!

Строительство под ключ 3 дня

Нижний Новгород и область

Есть вопросы?

Специалист СК “Надёжность”
поможет с выбором

Описание

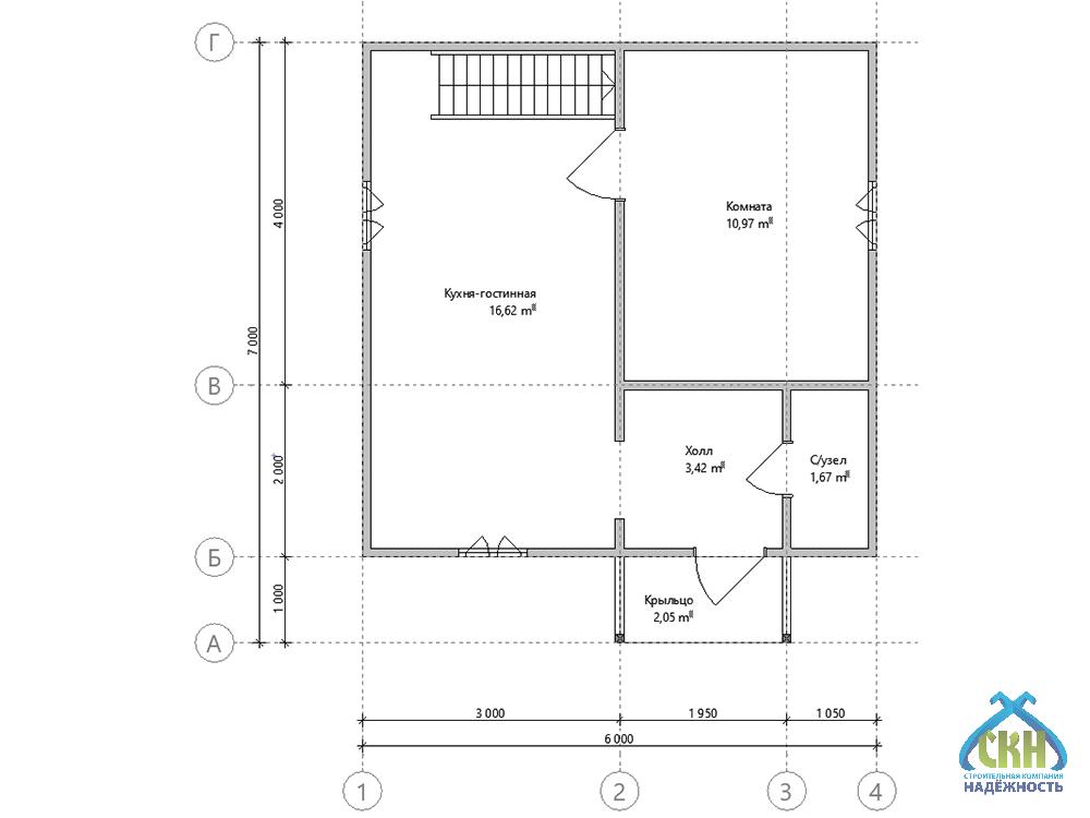
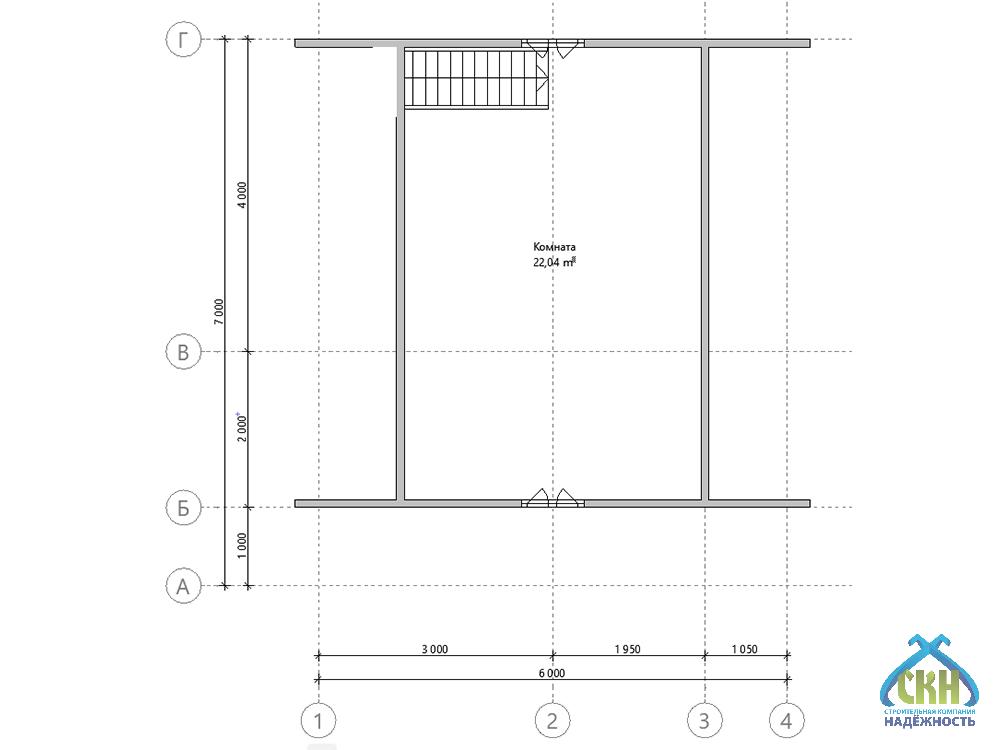
Строительная компания «Надёжность» предлагает строительство дачного дома 6х6 под ключ в Нижнем Новгороде и области. Один из наших самых популярных проектов по строительству каркасных дачных домов. Строение имеет два этажа и удобную внутреннюю планировку. Размер дома 56 квадратных метров. Жилое пространство равно 32,5 квадрата. В доме 2 просторных спальни. Кухня с гостевой зоной объединены. Мансарда включена в основную структуру. Крыша имеет двухскатную форму. Сельский отдых здесь сочетается с современным уровнем комфорта, можно работать в саду, а вечером принимать гостей в уютной гостиной или на террасе. Выполним строительные работы под ключ от устройства фундамента до отделки интерьера, включая подведение коммуникаций. Предлагаем зимнюю и летнюю комплектации из бруса под усадку или камерной сушки. Наш садовый дом 6 на 6 метров отличает точность заводского исполнения, низкие цены, а также фиксированная стоимость проекта, которая не изменится во время строительства! Готовы помочь с оформлением кредита под выгодные %.

Смотрите как мы строим
подобные проекты

Проект

АтрибутЗначение
Типлетние
Размеры, м6x6
Кол. этажей2, 1,5
Конструкциякрыльцо, кухня-гостиная, мансарда
Крышадвухскатная
Кол. спален2
Сан. узел1
Стильсовременный
Технологиякаркасная
ПомещениеПлощадь
Общая55,89 м²
Жилая32,50 м²
Кухня16,3 м²
Санузел1,61 м²
Холл3,39 м²
Крыльцо2,09 м²

Комплектация

Состав комплектации
Внешний контур
790 000 ₽
725 000 ₽
Закрытый контур
1 062 000 ₽
975 000 ₽
Дача под ключ
1 720 000 ₽
1 578 000 ₽
Высота - 1-й этаж 2,4 м. Силовой каркас - наружние и внутренние стены 50х100 мм, лаги цокольного перекрытия 50х150 мм, лаги потолка и стропильной системы 50х100 мм, с шагом 590 мм.
Кровельное покрытие - Профилированный лист (окрашенный) 0,4 мм, устройство обрешетки, контробрешетки и гидроизоляции.
Устройство карнизов, подшив кровельных свесов - евровагонка (хвоя).
Внешняя отделка фасада - OSB с устройством вентилируемого зазора и ветровлагозащитой.
Внешняя отделка фасада - имитация бруса с устройством вентилируемого зазора и ветровлагозащитой.
Внутренняя отделка - евровагонка (хвоя).
Настил пола - шпунтованная доска 36 мм с утеплением 100 мм минеральная вата Knauf Insulation.
Утепление внешних и внутренних стен, перекрытий 100 мм - минеральная вата Knauf Insulation.
Окна ПВХ, ширина профиля 60 мм, двухкамерный стеклопакет с металлическими отливами.
Дверь входная металлическая, с двумя замками.

Дополнительные услуги

150 000 ₽
119 000 ₽
84 000 ₽
70 000 ₽

Бесплатный выезд специалиста

Оплата

  • Способы оплаты
    Наличными деньгами в кассу офиса компании или банковский перевод на расчетный счет компании.
  • Этапы оплаты
    Оплата комплекса услуг по строительству вашего дома или бани проходит в три этапа. Суммы фиксируются в договоре подряда на строительство с указанием сроков, это гарантирует заказчикам, что цена не вырастет во время стройки.
  • Оплата в кредит
    Мы работаем с многими банками партнерами. Подать заявку на оформление кредита можно в офисе компании или по телефону. Одобрение заявки занимает 30 минут.

Информирование

Еженедельный фото или видеоотчет в любом удобном для вас канале: почта, мессенджеры. Прораб ждет Вас на участке строительства в удобное для Вас время по договоренности.

Доставка

СК Надёжность возьмет на себя полный комплекс услуг по доставке, погрузке и разгрузке материалов до места строительства на Вашем участке в Нижнем Новгороде или Нижегородской области.  Стоимость рассчитывается индивидуально на каждый объект менеджером в зависимости от веса груза, типа транспортного средства и километража.

Сроки строительства

Сроки строительства составляют от двух недель до двух месяцев в зависимости от размеров объекта и объема работ. При составлении договора подряда сроки указываются на момент оформления документов.

Гарантия

Современные технологии и качественный материал позволяет дать гарантию для наших клиентов 5 лет.

Посетите нашу выставочную площадку

Нижегородская область, Богородский район, СТ Родник, 7

Преимущества строительной компании Надёжность

Строительство дачного дома под ключ

Проектирование, изготовление, транспортировка, монтаж, инженерные коммуникации, утепление, отделка

Кредит за 30 минут

Только паспорт и СНИЛС Использование материнского капитала для детей любого возраста

Профессиональный подход

Рекомендации специалистов на всех этапах от выбора фундамента до планирования интерьера

Собственное производство

Все комплектующие в наличии, срочная замена в случае необходимости

Контроль качества

Система контроля качества на всех этапах: производства, сушки, хранения, транспортировки, отгрузки

Технический надзор

Закрепленный прораб на объекте, опытные рабочие, высокое качество работ!

Выполненные проекты

Отзывы

Поделитесь вашим мнением

Ваш отзыв поможет другим покупателям сделать правильный выбор!

Зинаида Абдуллаева 04 мая 2025
Городец
Кровля в идеальном состоянии, никаких протечек даже после сильного дождя. Материалы были экологичны и безопасны для ребёнка, этот момент сыграл ключевую роль. Выражаю благодарность за вашу способность работать в разных стилях дачного жилья.
Юлия Никитина 14 марта 2025
Вад
Большое спасибо за то, что сохранили качество при строительстве каркасного дома. Муж хвалил электрощиток, говорит установлен аккуратно и имеет понятную маркировку всех цепей. Быстро, качественно, именно так прошло наше сотрудничество.
Кира Миронова 11 марта 2025
Нижний Новгород
Есть хороший потенциал для расширения, дом можно легко адаптировать под новые нужды. Предложили решения для экономии воды, теперь использую меньше ресурсов. Оценила ваш опыт и уверенность при строительстве дачи от фундамента до крыши.
Константин Гривков 22 января 2025
Навашино
Не нахожу слов, чтобы поблагодарить за внимание к безопасности. Используемые материалы соответствуют требованиям пожарной безопасности. В доме спокойно и безопасно.
Станислав Козлов 25 декабря 2024
Лысково
Компания предлагает выгодные варианты комплектации, смогли уложиться в бюджет. Очень доволен вашим отношением к объекту, как к своему, при постройке дачного дома. Наличие дровяной печи создаёт атмосферу уюта и тепла даже в самый сильный мороз.

Ждём вас в любом из наших офисов

Сартаково

Нижний Новгород, СТ Родник, 7

Больше вариантов

Вопросы и ответы

Теплоизоляционные параметры: коэффициент теплопроводности от 0,035 Вт/(м·°C) — в зависимости от выбранного утеплителя. Дополнительное утепление обычно не требуется.
Наши проектировщики имеют высшее образование и опыт работы от 7 лет. Они специализируются именно на каркасных дачных домах, поэтому учитывают все особенности такой конструкции.
Да, дачный дом можно оставить без отопления зимой. Перед этим нужно провести консервацию: слить воду, укрыть технические блоки и закрыть вентиляцию.
Шаблоны — основа, но мы всегда открыты к предложениям клиента. Особенно в части планировки, материалов и дополнительных зон, таких как веранда или хозблок.
Проверки проводятся на каждом этапе: сборка каркаса, установка коммуникаций, кровля, теплоизоляция. Фиксируем акты и фотоотчеты.
Обработка проводится маслами и антисептиками, которые предотвращают растрескивание. Например, Tikkurila Wood Finish или Neomid.
Дачный дом 6х6 двухэтажный с крыльцом, под ключ в Нижнем Новгороде, фото 1

Дачный дом 6х6 с мансардой и крыльцом

×
Интерактивная карта Нижегородской области
Тоншаево Ветлуга Урень Тонкино Шаранга Варнавино Ковернино Городец Балахна Володарск Павлово Сосновское Вача Кулебаки Выкса Дивеево Лукоянов Починки Пильна Сергач Первомайск Гагино Богородск Шатки Арзамас Саров Княгинино Бутурлино Лысково Спасское Воротынец Перевоз Большое Мурашкино Ардатов Уразовка Сеченово Чкаловск Заволжье Сокольское Красные баки Воскресенское Семенов Бор Кстово Нижний Новгород Кстово Дзержинск Дальнее Константиново Шахунья Вад Вознесенское Большое Болдино Навашино
Заявка на проект
Введите телефон и мы перезвоним Вам в течение 3х минут, чтобы обсудить детали
8% скидка до 31 марта 2026!
Кредит на строительство
Условия кредитования
  • Ставка 14,5%
  • Сумма до 5 000 000 руб.
  • Срок от 6 до 60 месяцев
  • Решение за 30 минут
  • Персональный менеджер 24/7

Используйте материнский капитал на строительство частного дома независимо от возраста ребенка!

(согласно ФЗ-256 от 29.12.2006 г.)
Бесплатный выезд специалиста
Введите телефон и мы перезвоним
Вам в течение 3х минут
Запись на посещение
Введите телефон и мы перезвоним
Вам в течение 3х минут
Задайте ваш вопрос
И мы перезвоним вам с ответом!
Сайт использует файлы куки