Нижний Новгород, СТ Родник, 7

Нижний Новгород, ул. Ларина, 27

Нижний Новгород, СТ Родник, 7

Пн-Пт 10-18 ч.

Нижний Новгород, СТ Родник, 7

Нижний Новгород, ул. Ларина, 27

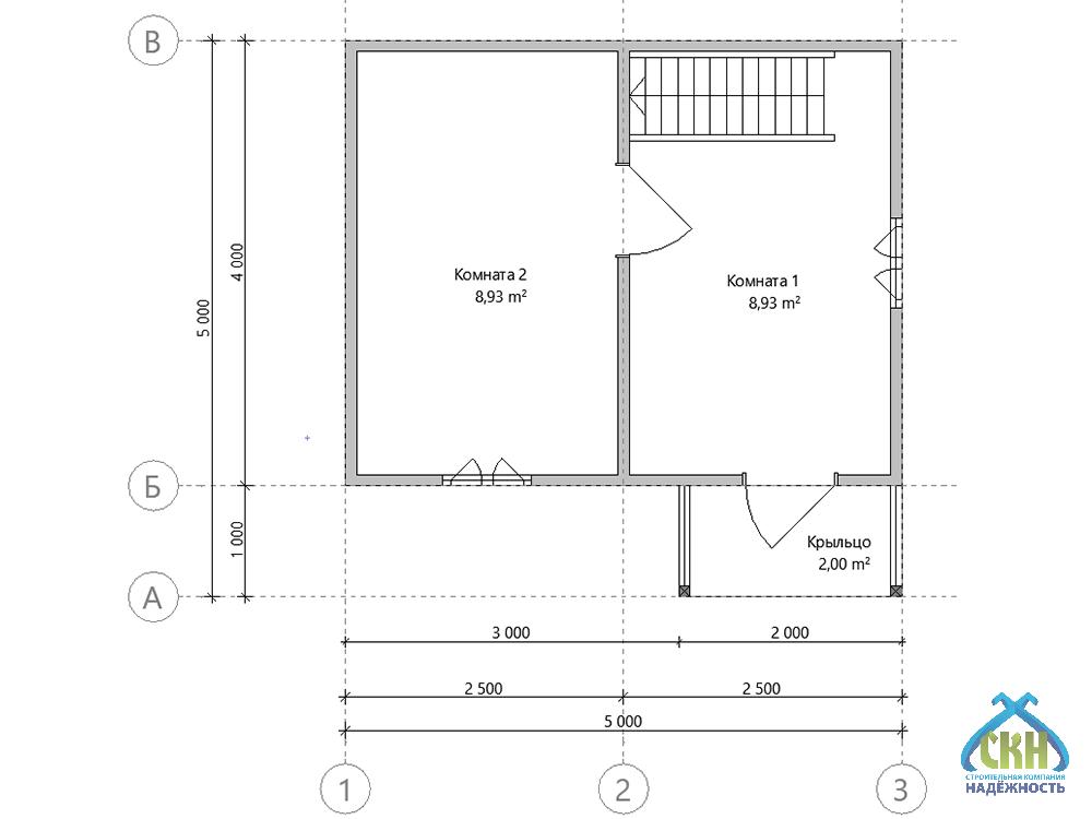
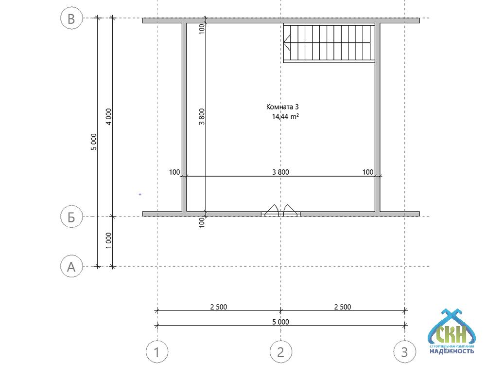
Дачный дом 5х5 с крыльцом

Проект DK2/3

Экономия: 25 000 ₽

504 000  529 000 

  • Металлочерепица в подарок
  • Скидка на винтовые сваи 50%
  • Цена не вырастет во время стройки

Скидка на сваи 50%!

Строительство под ключ 3 дня

Нижний Новгород и область

Есть вопросы?

Специалист СК “Надёжность”
поможет с выбором

Описание

Стильный двухэтажный каркасный дачный дом размером 5х5 метров предлагает современный дизайн, функциональность и надежность для загородного отдыха или постоянного проживания. Общая площадь дома составляет 34,3 кв. м., включая жилую зону — 23,4 кв. м. и кухню — 8,9 кв. м. Просторная планировка включает две спальни, удобную кухню и отдельное крыльцо площадью 2,0 кв. м., которое придает дому уют и привлекательный внешний вид. Ломаная крыша не только украшает архитектуру, но и повышает функциональность строения. Дом изготовлен по индивидуальному проекту с учетом требований надежности и долговечности. Строительство выполняется из качественных материалов, обеспечивая тепло и комфорт в любое время года. При этом вы получаете доступную цену без ущерба для качества. Отличный выбор для загородного отдыха или постоянного проживания!

Смотрите как мы строим
подобные проекты

Проект

АтрибутЗначение
Типлетние
Размеры, м5x5
Кол. этажей2
Конструкциякрыльцо
Крышаломаная
Кол. спален2
Технологиякаркасная
ПомещениеПлощадь
Общая34,3 м²
Жилая23,4 м²
Кухня8,9 м²
Крыльцо2 м²

Комплектация

Состав комплектации
Внешний контур
529 000 ₽
504 000 ₽
Закрытый контур
773 000 ₽
736 000 ₽
Дача под ключ
1 232 000 ₽
1 173 000 ₽
Высота - 1-й этаж 2,4 м
Силовой каркас - наружние и внутренние стены 50х100 мм, лаги цокольного перекрытия 50х150 мм, лаги потолка и стропильной системы 50х100 мм, с шагом 590 мм.
Кровельное покрытие - Профилированный лист (окрашенный) 0,4 мм, устройство обрешетки, контробрешетки и гидроизоляции.
Устройство карнизов, подшив кровельных свесов - евровагонка (хвоя) 12,5х88 мм.
Внешняя отделка фасада - ориентировано-стружечная плита 9 мм с устройством вентилируемого зазора и ветровлагозащитой.
Внешняя отделка фасада - имитация бруса 16х135 мм с устройством вентилируемого зазора и ветровлагозащитой.
Внутренняя отделка - евровагонка (хвоя) 12,5х88 мм.
Настил пола - шпунтованная доска 36 мм с утеплением 100 мм минеральная вата Knauf Insulation 11-13 кг/м3.
Утепление внешних и внутренних стен, перекрытий 100 мм - минеральная вата Knauf Insulation 11-13 кг/м3
Окна ПВХ, ширина профиля 60 мм, двухкамерный стеклопакет с металлическими отливами.
Дверь входная металлическая, с одним замком.

Дополнительные услуги

150 000 ₽
102 000 ₽
72 000 ₽
40 000 ₽

Бесплатный выезд специалиста

Оплата

  • Способы оплаты Наличными деньгами в кассу офиса компании или банковский перевод на расчетный счет компании.

  • Этапы оплаты Оплата комплекса услуг по строительству вашего дома или бани проходит в три этапа. Суммы фиксируются в договоре подряда на строительство с указанием сроков, это гарантирует заказчикам, что цена не вырастет во время стройки.

  • Оплата в кредит Мы работаем с многими банками партнерами. Подать заявку на оформление кредита можно в офисе компании или по телефону. Одобрение заявки занимает 30 минут.

Информирование

Еженедельный фото или видеоотчет в любом удобном для вас канале: почта, мессенджеры. Прораб ждет Вас на участке строительства в удобное для Вас время по договоренности.

Доставка

СК Надёжность возьмет на себя полный комплекс услуг по доставке, погрузке и разгрузке материалов до места строительства на Вашем участке в Нижнем Новгороде или Нижегородской области. 

Стоимость рассчитывается индивидуально на каждый объект менеджером в зависимости от веса груза, типа транспортного средства и километража.

Сроки строительства

Сроки строительства составляют от двух недель до двух месяцев в зависимости от размеров объекта и объема работ. При составлении договора подряда сроки указываются на момент оформления документов.

Гарантия

Современные технологии и качественный материал позволяет дать гарантию для наших клиентов 5 лет.

Посетите нашу выставочную площадку

Нижегородская область, Богородский район, СТ Родник, 7

Преимущества строительной компании Надёжность

Строительство дачного дома под ключ

Проектирование, изготовление, транспортировка, монтаж, инженерные коммуникации, утепление, отделка

Кредит за 30 минут

Только паспорт и СНИЛС Использование материнского капитала для детей любого возраста

Профессиональный подход

Рекомендации специалистов на всех этапах от выбора фундамента до планирования интерьера

Собственное производство

Все комплектующие в наличии, срочная замена в случае необходимости

Контроль качества

Система контроля качества на всех этапах: производства, сушки, хранения, транспортировки, отгрузки

Технический надзор

Закрепленный прораб на объекте, опытные рабочие, высокое качество работ!

Выполненные проекты

Отзывы

Поделитесь вашим мнением

Ваш отзыв поможет другим покупателям сделать правильный выбор!

Дарья Климова 22 июня 2025
Фундамент прочный и долговечный, основание выбрано с учётом особенностей участка. Все материалы завозились точно по графику, никаких простоев из-за задержек. Искренне благодарна за вашу преданность профессии и ремеслу при сборке дачи.
Земфира Ромазанова 12 июня 2025
Благодарю за оперативное возведение дачного дома. Скорость постройки порадовала, и мы уже наслаждаемся отдыхом. Каркасный дом оказался идеальным решением для нас. Очень довольна результатом.
Артём Смирнов 12 февраля 2025
Отлично, что вы делаете нужную акцентировку в строительстве каркасного дачного дома. Очень доволен вместимостью этого компактного, но функционального дачного дома. Компания показала высокий профессиональный уровень, всё сделано чётко и в срок.
Наталья Бугрова 12 января 2025
Приятно удивил подход к работе, всё делается с уважением к клиенту. Благодарю за то, что всё было выполнено безопасно и правильно при постройке каркасной дачи. Из окон открывается живописный вид, это стало важным плюсом для отдыха.
Константин Захаров 01 октября 2024
Рад был видеть в вас партнёров, которым можно доверять при постройке дачного дома. Техническое состояние всех сетей находится на высоком уровне, всё проверили лично. Строительство прошло без лишнего напряжения, компания взяла всё на себя.

Ждём вас в любом из наших офисов

Сартаково

Нижний Новгород, СТ Родник, 7

Больше вариантов

Вопросы и ответы

Мы стараемся придерживаться графика разработки проекта максимально точно. В среднем типовой проект делается за 5–7 дней, индивидуальный — за 2–3 недели. Изменения согласовываем оперативно, чтобы не задерживать старт работ.
Все материалы проходят проверку совместимости с конструкцией. Перед началом работ мы делаем расчёт нагрузок и проверяем соответствие проекту.
Да, крыльцо или терраса делаются с противоскользящим покрытием: декинг с текстурой, плитка RА 11+ или специальные деревянные планки с ребристой поверхностью.
У нас работает собственный проектный отдел, который специализируется именно на каркасной технологии. Все чертежи делаются своими силами, без привлечения сторонних компаний.
Есть, да. Это каркасные дома с минимальным количеством инженерных систем, простой вентиляцией и энергосберегающими решениями. Подходят для дачников, которые хотят экономить на отоплении.
Вам назначается персональный менеджер, который будет вашим единственным контактом на всех этапах.
Дачный дом 4х5, двухэтажный с крыльцом, под ключ в Нижнем Новгороде, фото 1

Дачный дом 5х5 с крыльцом

×

Интерактивная карта Нижегородской области

Тоншаево Ветлуга Урень Тонкино Шаранга Варнавино Ковернино Городец Балахна Володарск Павлово Сосновское Вача Кулебаки Выкса Дивеево Лукоянов Починки Пильна Сергач Первомайск Гагино Богородск Шатки Арзамас Саров Княгинино Бутурлино Лысково Спасское Воротынец Перевоз Большое Мурашкино Ардатов Уразовка Сеченово Чкаловск Заволжье Сокольское Красные баки Воскресенское Семенов Бор Кстово Нижний Новгород Кстово Дзержинск Дальнее Константиново Шахунья Вад Вознесенское Большое Болдино Навашино
Заявка на проект
Введите телефон и мы перезвоним Вам в течение 3х минут, чтобы обсудить детали

Каталог

Страницы

5% скидка до 31 января!
Кредит на строительство
Условия кредитования
  • Ставка 14,5%
  • Сумма до 5 000 000 руб.
  • Срок от 6 до 60 месяцев
  • Решение за 30 минут
  • Персональный менеджер 24/7

Используйте материнский капитал на строительство частного дома независимо от возраста ребенка!

(согласно ФЗ-256 от 29.12.2006 г.)
Бесплатный выезд специалиста
Введите телефон и мы перезвоним
Вам в течение 3х минут
Запись на посещение
Введите телефон и мы перезвоним
Вам в течение 3х минут
Задайте ваш вопрос
И мы перезвоним вам с ответом!

Оставаясь на сайте, вы соглашаетесь на использование файлов куки и передачей данных службам веб-аналитики