Нижний Новгород, СТ Родник, 7

Нижний Новгород, ул. Ларина, 27

Нижний Новгород, СТ Родник, 7

Пн-Пт 10-18 ч.

Нижний Новгород, СТ Родник, 7

Нижний Новгород, ул. Ларина, 27

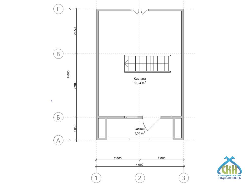
Дачный дом 4х6 с балконом

Проект DK2/2

Экономия: 26 998 ₽

543 002  570 000 

  • Металлочерепица в подарок
  • Скидка на винтовые сваи 50%
  • Цена не вырастет во время стройки

Скидка на сваи 50%!

Строительство под ключ 2 дня

Нижний Новгород и область

Есть вопросы?

Специалист СК “Надёжность”
поможет с выбором

Описание

Двухэтажный каркасный дачный дом 4х6 с крыльцом и балконом. Дачный домик 6х4 имеет комфортный объем всех помещений, т.к. стены второго этажа приподняты. Над полноразмерным первым этажом надстраивается полуторный этаж. Полуторный этаж позволяет сделать комнаты первого и второго этажа одинаковыми по площади. Проект этого каркасного садового домика 4х6 является очень популярным. Мы построили уже более 40 таких домов в Нижегородской области. Дом выглядит компактным для садового участка, с выгодной площадью комнат. В садовом домике есть балкон и терраса, которая служит дополнительной защитой для входной металлической двери от дождя.

Смотрите как мы строим
подобные проекты

Проект

АтрибутЗначение
Типлетние
Размеры, м4x6
Кол. этажей2
Конструкциябалкон, терраса
Крышадвухскатная
Кол. спален2
Оснащениекухня-гостиная
Стильсовременный
Технологиякаркасная
ПомещениеПлощадь
Общая42,7 м²
Жилая25,5 м²
Кухня10,6 м²
Санузел1,7 м²
Терраса2 м²
Балкон3 м²

Комплектация

Состав комплектации
Внешний контур
570 000 ₽
543 002 ₽
Закрытый контур
860 000 ₽
819 000 ₽
Дача под ключ
1 321 000 ₽
1 258 000 ₽
Высота - 1-й этаж 2,4 м
Силовой каркас - наружние и внутренние стены 50х100 мм, лаги цокольного перекрытия 50х150 мм, лаги потолка и стропильной системы 50х100 мм, с шагом 590 мм.
Кровельное покрытие - Профилированный лист (окрашенный) 0,4 мм, устройство обрешетки, контробрешетки и гидроизоляции.
Устройство карнизов, подшив кровельных свесов - евровагонка (хвоя) 12,5х88 мм.
Внешняя отделка фасада - ориентировано-стружечная плита 9 мм с устройством вентилируемого зазора и ветровлагозащитой.
Внешняя отделка фасада - имитация бруса 16х135 мм с устройством вентилируемого зазора и ветровлагозащитой.
Внутренняя отделка - евровагонка (хвоя) 12,5х88 мм.
Настил пола - шпунтованная доска 36 мм с утеплением 100 мм минеральная вата Knauf Insulation 11-13 кг/м3.
Утепление внешних и внутренних стен, перекрытий 100 мм - минеральная вата Knauf Insulation 11-13 кг/м3
Окна ПВХ, ширина профиля 60 мм, двухкамерный стеклопакет с металлическими отливами.
Дверь входная металлическая, с одним замком.

Дополнительные услуги

150 000 ₽
127 500 ₽
90 000 ₽
60 000 ₽

Бесплатный выезд специалиста

Оплата

  • Способы оплаты Наличными деньгами в кассу офиса компании или банковский перевод на расчетный счет компании.

  • Этапы оплаты Оплата комплекса услуг по строительству вашего дома или бани проходит в три этапа. Суммы фиксируются в договоре подряда на строительство с указанием сроков, это гарантирует заказчикам, что цена не вырастет во время стройки.

  • Оплата в кредит Мы работаем с многими банками партнерами. Подать заявку на оформление кредита можно в офисе компании или по телефону. Одобрение заявки занимает 30 минут.

Информирование

Еженедельный фото или видеоотчет в любом удобном для вас канале: почта, мессенджеры. Прораб ждет Вас на участке строительства в удобное для Вас время по договоренности.

Доставка

СК Надёжность возьмет на себя полный комплекс услуг по доставке, погрузке и разгрузке материалов до места строительства на Вашем участке в Нижнем Новгороде или Нижегородской области. 

Стоимость рассчитывается индивидуально на каждый объект менеджером в зависимости от веса груза, типа транспортного средства и километража.

Сроки строительства

Сроки строительства составляют от двух недель до двух месяцев в зависимости от размеров объекта и объема работ. При составлении договора подряда сроки указываются на момент оформления документов.

Гарантия

Современные технологии и качественный материал позволяет дать гарантию для наших клиентов 5 лет.

Посетите нашу выставочную площадку

Нижегородская область, Богородский район, СТ Родник, 7

Преимущества строительной компании Надёжность

Строительство дачного дома под ключ

Проектирование, изготовление, транспортировка, монтаж, инженерные коммуникации, утепление, отделка

Кредит за 30 минут

Только паспорт и СНИЛС Использование материнского капитала для детей любого возраста

Профессиональный подход

Рекомендации специалистов на всех этапах от выбора фундамента до планирования интерьера

Собственное производство

Все комплектующие в наличии, срочная замена в случае необходимости

Контроль качества

Система контроля качества на всех этапах: производства, сушки, хранения, транспортировки, отгрузки

Технический надзор

Закрепленный прораб на объекте, опытные рабочие, высокое качество работ!

Выполненные проекты

Отзывы

Поделитесь вашим мнением

Ваш отзыв поможет другим покупателям сделать правильный выбор!

Марта Каримова 03 апреля 2025
Признателен за профессионализм при возведении нашей уютной дачи. Качество материалов стен приятно удивило, всё выполнено аккуратно и надёжно. Обратился к ним с нестандартным проектом, справились на отлично.
Сергей Гадимов 24 февраля 2025
Качественный контроль на каждом этапе дал уверенность в результате. Оценил вашу способность работать в режиме высоких нагрузок при строительстве дачи. Внешний вид дома приятно удивил, стильный, аккуратный и ухоженный.
Мария Литвинова 13 декабря 2024
Благодарю за вашу преданность делу и стремление к лучшему при сборке каркаса. Тип грунта не вызывает опасений, фундамент стоит уверенно и без проседаний. Очень рада, что выбрала именно эту компанию, дом стал местом, куда хочется возвращаться.
Геннадий Черных 03 августа 2024
Наличие дровяной печи создаёт особую атмосферу тепла и уюта в холодные вечера. Научили пользоваться инженерными системами, теперь чувствую себя уверенно в управлении. Ценю вашу способность быть рядом в самые ответственные моменты при строительстве дачного дома.
Лариса Шелестюк 03 августа 2024
Выбор каркасного дома сэкономил нам много средств. Все сделано аккуратно, тепло и уютно. Теперь наша дача - любимое место отдыха. Признательна за доступное решение.

Ждём вас в любом из наших офисов

Сартаково

Нижний Новгород, СТ Родник, 7

Больше вариантов

Вопросы и ответы

У нас более 8 лет опыта в строительстве каркасных дачных домов. Мы построили свыше 100 объектов по всей России. Примеры можно посмотреть в нашем портфолио на сайте или приехать на ближайший готовый объект.
Подпол защищён от проникновения холода и влаги за счёт утепления пола первого этажа и устройства паро- и гидрозащитного слоя.
Конечно, у нас есть портфолио с фото- и видеоматериалами построенных дачных домов. Можем отправить ссылку на галерею или подобрать примеры, близкие к вашему проекту.
Да, мы активно используем онлайн-формат: Zoom, WhatsApp, Telegram. Можно обсудить проект, планировку и этапы строительства дачного дома удалённо, в удобное для вас время.
Да, у нас есть готовые проекты дачных домов от 40 до 80 м?, которые адаптированы под сезонное проживание и доступны по цене.
Да, общение возможно через WhatsApp, Telegram, Zoom. Фотоотчёты загружаем ежедневно или еженедельно, в зависимости от этапа.
Дачный дом 4х6 двухэтажный с балконом, под ключ в Нижнем Новгороде, фото 1

Дачный дом 4х6 с балконом

×

Интерактивная карта Нижегородской области

Тоншаево Ветлуга Урень Тонкино Шаранга Варнавино Ковернино Городец Балахна Володарск Павлово Сосновское Вача Кулебаки Выкса Дивеево Лукоянов Починки Пильна Сергач Первомайск Гагино Богородск Шатки Арзамас Саров Княгинино Бутурлино Лысково Спасское Воротынец Перевоз Большое Мурашкино Ардатов Уразовка Сеченово Чкаловск Заволжье Сокольское Красные баки Воскресенское Семенов Бор Кстово Нижний Новгород Кстово Дзержинск Дальнее Константиново Шахунья Вад Вознесенское Большое Болдино Навашино
Заявка на проект
Введите телефон и мы перезвоним Вам в течение 3х минут, чтобы обсудить детали

Каталог

Страницы

5% скидка до 31 января!
Кредит на строительство
Условия кредитования
  • Ставка 14,5%
  • Сумма до 5 000 000 руб.
  • Срок от 6 до 60 месяцев
  • Решение за 30 минут
  • Персональный менеджер 24/7

Используйте материнский капитал на строительство частного дома независимо от возраста ребенка!

(согласно ФЗ-256 от 29.12.2006 г.)
Бесплатный выезд специалиста
Введите телефон и мы перезвоним
Вам в течение 3х минут
Запись на посещение
Введите телефон и мы перезвоним
Вам в течение 3х минут
Задайте ваш вопрос
И мы перезвоним вам с ответом!

Оставаясь на сайте, вы соглашаетесь на использование файлов куки и передачей данных службам веб-аналитики