Нижний Новгород, СТ Родник, 7

Нижний Новгород, ул. Ларина, 27

Нижний Новгород, СТ Родник, 7

Пн-Пт 10-18 ч.

Нижний Новгород, СТ Родник, 7

Нижний Новгород, ул. Ларина, 27

Дачный дом 7х5 с санузлом

Проект DK1/5

Экономия: 25 000 ₽

495 000  520 000 

  • Металлочерепица в подарок
  • Скидка на винтовые сваи 50%
  • Цена не вырастет во время стройки

Скидка на сваи 50%!

Строительство под ключ 2 дня

Нижний Новгород и область

Есть вопросы?

Специалист СК “Надёжность”
поможет с выбором

Описание

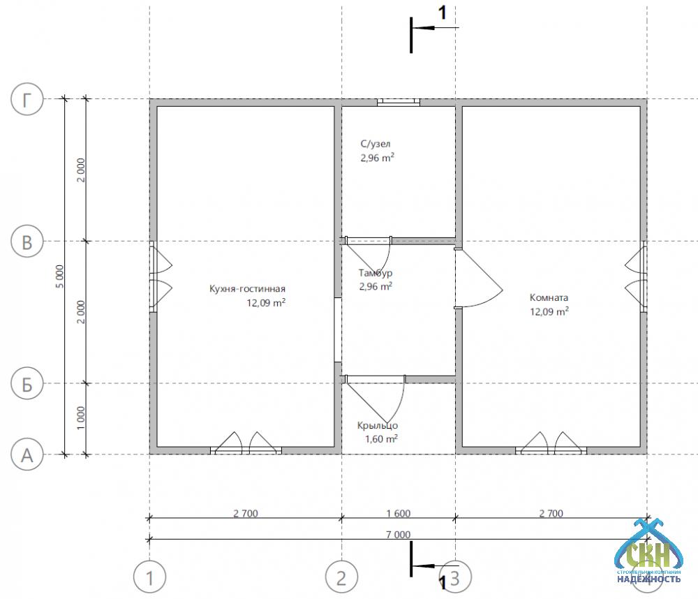
Дачный дом имеет размеры, позволяющие организовать практичные функциональные зоны внутри. Размер недвижимости равен 31,7 квадратных метра. Полезная жилая часть составляет 12,1 квадрата. На первом этаже предусмотрена кухня с гостевой зоной и полноценный санузел. Просторная террасса увеличивает полезную площадь. Крыльцо защитит от дождя и ветра. Высокое качество используемых технологий и материалов гарантирует долговечность и надёжность конструкции. Дачное домохозяйство подарит свежие овощи, ароматы лета и чувство связи с землей, а после просто отдохните в своем уютном доме!

Смотрите как мы строим
подобные проекты

Проект

АтрибутЗначение
Типлетние
Размеры, м5x7
Кол. этажей1
Конструкциякрыльцо
Крышадвухскатная
Кол. спален1
Оснащениекухня-гостиная
Технологиякаркасная
ПомещениеПлощадь
Общая31,7 м²
Жилая12,1 м²
Кухня12,1 м²
Санузел3 м²
Крыльцо1,6 м²
Тамбур3 м²

Комплектация

Состав комплектации
Внешний контур
520 000 ₽
495 000 ₽
Закрытый контур
767 000 ₽
730 000 ₽
Дача под ключ
1 157 000 ₽
1 101 000 ₽
Высота - 1-й этаж 2,4 м
Силовой каркас - наружние и внутренние стены 50х100 мм, лаги цокольного перекрытия 50х150 мм, лаги потолка и стропильной системы 50х100 мм, с шагом 590 мм.
Кровельное покрытие - Профилированный лист (окрашенный) 0,4 мм, устройство обрешетки, контробрешетки и гидроизоляции.
Устройство карнизов, подшив кровельных свесов - евровагонка (хвоя) 12,5х88 мм.
Внешняя отделка фасада - ориентировано-стружечная плита 9 мм с устройством вентилируемого зазора и ветровлагозащитой.
Внешняя отделка фасада - имитация бруса 16х135 мм с устройством вентилируемого зазора и ветровлагозащитой.
Внутренняя отделка - евровагонка (хвоя) 12,5х88 мм.
Настил пола - шпунтованная доска 36 мм с утеплением 100 мм минеральная вата Knauf Insulation 11-13 кг/м3.
Утепление внешних и внутренних стен, перекрытий 100 мм - минеральная вата Knauf Insulation 11-13 кг/м3
Окна ПВХ, ширина профиля 60 мм, двухкамерный стеклопакет с металлическими отливами.
Дверь входная металлическая, с одним замком.

Дополнительные услуги

150 000 ₽
136 000 ₽
96 000 ₽
45 000 ₽

Бесплатный выезд специалиста

Оплата

  • Способы оплаты Наличными деньгами в кассу офиса компании или банковский перевод на расчетный счет компании.

  • Этапы оплаты Оплата комплекса услуг по строительству вашего дома или бани проходит в три этапа. Суммы фиксируются в договоре подряда на строительство с указанием сроков, это гарантирует заказчикам, что цена не вырастет во время стройки.

  • Оплата в кредит Мы работаем с многими банками партнерами. Подать заявку на оформление кредита можно в офисе компании или по телефону. Одобрение заявки занимает 30 минут.

Информирование

Еженедельный фото или видеоотчет в любом удобном для вас канале: почта, мессенджеры. Прораб ждет Вас на участке строительства в удобное для Вас время по договоренности.

Доставка

СК Надёжность возьмет на себя полный комплекс услуг по доставке, погрузке и разгрузке материалов до места строительства на Вашем участке в Нижнем Новгороде или Нижегородской области. 

Стоимость рассчитывается индивидуально на каждый объект менеджером в зависимости от веса груза, типа транспортного средства и километража.

Сроки строительства

Сроки строительства составляют от двух недель до двух месяцев в зависимости от размеров объекта и объема работ. При составлении договора подряда сроки указываются на момент оформления документов.

Гарантия

Современные технологии и качественный материал позволяет дать гарантию для наших клиентов 5 лет.

Посетите нашу выставочную площадку

Нижегородская область, Богородский район, СТ Родник, 7

Преимущества строительной компании Надёжность

Строительство дачного дома под ключ

Проектирование, изготовление, транспортировка, монтаж, инженерные коммуникации, утепление, отделка

Кредит за 30 минут

Только паспорт и СНИЛС Использование материнского капитала для детей любого возраста

Профессиональный подход

Рекомендации специалистов на всех этапах от выбора фундамента до планирования интерьера

Собственное производство

Все комплектующие в наличии, срочная замена в случае необходимости

Контроль качества

Система контроля качества на всех этапах: производства, сушки, хранения, транспортировки, отгрузки

Технический надзор

Закрепленный прораб на объекте, опытные рабочие, высокое качество работ!

Выполненные проекты

Отзывы

Поделитесь вашим мнением

Ваш отзыв поможет другим покупателям сделать правильный выбор!

Роман Голобоков 27 марта 2025
Спасибо большое за прочность конструкции. Даже при сильных изменениях грунта дом стоит как скала. Каркас оказался устойчивым и надежным - рекомендую.
Иван Сазонов 17 февраля 2025
Наличие погреба стало большим плюсом для хранения заготовок на зиму. Использовали малошумные материалы и технологии, тишина в доме радует. Ценю вашу готовность браться за нестандартные задачи при строительстве дачного дома.
Артур Миронов 28 января 2025
Специалисты всегда были на связи, отзывчивость на высшем уровне. Остался доволен вашей способностью работать в условиях сложности при постройке дачи. Вентиляция обеспечивает постоянный приток свежего воздуха без сквозняков.
Дмитрий Иванов 10 января 2025
Огромная ценность, ваша ответственность и пунктуальность при строительстве дачного дома. Наличие санузла внутри дома значительно повышает уровень комфорта. С компанией приятно иметь дело, они действительно заботятся о клиенте.
Николай Медведев 08 октября 2024
Организация процесса понравилась, ничего лишнего, всё строго по графику. Выражаю благодарность за вашу чуткость и такт в общении при постройке дачи. Санузел удобно расположен и полностью соответствует всем требованиям.

Ждём вас в любом из наших офисов

Сартаково

Нижний Новгород, СТ Родник, 7

Больше вариантов

Вопросы и ответы

Наши менеджеры имеют профильное образование и опыт работы от 5 лет. Они помогут выбрать материалы, расскажут о преимуществах и особенностях планировки.
Если потребуется ускорить строительство, можем работать в выходные и праздничные дни. Это обговаривается заранее и влияет на стоимость.
Для крыльца и террасы предлагаем варианты: термодревесина, декинг, тротуарная плитка, натуральный камень. Лучше всего подходят материалы с хорошей водо- и износостойкостью.
Мы всегда можем выехать на участок, чтобы обсудить особенности рельефа, расположение дома и другие нюансы. Это часть нашей работы с клиентом.
Используем фурнитуру класса А от Rehau и Siegenia — она рассчитана на многократное открывание и не боится влаги и холода.
Стены утеплены базальтовым утеплителем (ТехноНиколь) толщиной от 150 мм. Это исключает промерзание даже при минус 30°C.
Дачный дом 5х7 одноэтажный с санузлом, под ключ в Нижнем Новгороде, фото 1

Дачный дом 7х5 с санузлом

×

Интерактивная карта Нижегородской области

Тоншаево Ветлуга Урень Тонкино Шаранга Варнавино Ковернино Городец Балахна Володарск Павлово Сосновское Вача Кулебаки Выкса Дивеево Лукоянов Починки Пильна Сергач Первомайск Гагино Богородск Шатки Арзамас Саров Княгинино Бутурлино Лысково Спасское Воротынец Перевоз Большое Мурашкино Ардатов Уразовка Сеченово Чкаловск Заволжье Сокольское Красные баки Воскресенское Семенов Бор Кстово Нижний Новгород Кстово Дзержинск Дальнее Константиново Шахунья Вад Вознесенское Большое Болдино Навашино
Заявка на проект
Введите телефон и мы перезвоним Вам в течение 3х минут, чтобы обсудить детали

Каталог

Страницы

5% скидка до 31 января!
Кредит на строительство
Условия кредитования
  • Ставка 14,5%
  • Сумма до 5 000 000 руб.
  • Срок от 6 до 60 месяцев
  • Решение за 30 минут
  • Персональный менеджер 24/7

Используйте материнский капитал на строительство частного дома независимо от возраста ребенка!

(согласно ФЗ-256 от 29.12.2006 г.)
Бесплатный выезд специалиста
Введите телефон и мы перезвоним
Вам в течение 3х минут
Запись на посещение
Введите телефон и мы перезвоним
Вам в течение 3х минут
Задайте ваш вопрос
И мы перезвоним вам с ответом!

Оставаясь на сайте, вы соглашаетесь на использование файлов куки и передачей данных службам веб-аналитики