Нижний Новгород, СТ Родник, 7

Нижний Новгород, ул. Ларина, 27

Нижний Новгород, СТ Родник, 7

Пн-Пт 10-18 ч.

Нижний Новгород, СТ Родник, 7

Нижний Новгород, ул. Ларина, 27

Каркасная баня 6х4 в скандинавском стиле

Проект BK1/28

Экономия: 32 000 ₽

638 000  670 000 

  • Металлочерепица в подарок
  • Скидка на винтовые сваи 50%
  • Цена не вырастет во время стройки

Скидка на сваи 50%!

Строительство под ключ 3 дня

Нижний Новгород и область

Есть вопросы?

Специалист СК “Надёжность”
поможет с выбором

Описание

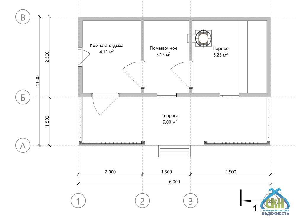
Каркасная баня 6×4 в скандинавском стиле имеет общую площадь 21 кв. м. и включает парную 5 кв. м., помывочную 3 кв. м., комнату отдыха 4 кв. м. и террасу 9 кв. м.. Скандинавский стиль приносит уют минимализма и гармонию форм. Низкая цена повышает уровень удовольствия. Пространство создано для релаксации и восстановления сил. Здесь легко провести вечер с семьёй или друзьями. Баня становится местом, где каждая деталь работает на комфорт. Парная усиливает терапевтический эффект, правильная конструкция дополняет ощущение свободы.

Смотрите как мы строим
подобные проекты

Проект

АтрибутЗначение
Типклассические
Размеры, м4x6
Форма баниквадратная
Кол. этажей1
Конструкциякомната отдыха
Крышадвухскатная
Стильскандинавский
Цвет фасадабежевый
Деревососна
Технологиякаркасная
ПомещениеПлощадь
Общая16 м²
Парная3,42 м²
Помывочная3,42 м²
Комната отдыха7,03 м²

Комплектация

Состав комплектации
Лето
670 000 ₽
638 000 ₽
Зима
703 000 ₽
669 000 ₽
Баня под ключ
812 000 ₽
773 000 ₽
Высота - 1-й этаж 2,0 м.
Силовой каркас - наружные и внутренние стены из доски 50х100 мм, лаги пола, потолка и стропильной системы 50х100 мм, с шагом 590 мм.
Кровельное покрытие - профилированный лист (окрашенный) 0.4 мм, устройство обрешетки, контробрешетки и гидроизоляции.
Устройство карнизов, подшив кровельных свесов - евровагонка (хвоя) 12,5х88 мм.
Внешняя отделка фасада - евровагонка (хвоя) 12,5х88 мм с устройством вентилируемого зазора и ветровлагозащитой.
Внутренняя отделка - евровагонка (хвоя) 12,5х88 мм.
Внутренняя отделка потолка парного отделения - евровагонка (осина) 12,5х88 мм.
Настил пола - обрезная доска 50х150 мм.
Настил пола - шпунтованная доска 36 мм с утеплением 100 мм минеральная вата Knauf Insulation 11-13 кг/м3.
Утепление внешних и внутренних стен, потолка 50 мм - минеральная вата Knauf Insulation 11-13 кг/м3.
Утепление внешних и внутренних стен, потолка 100 мм - минеральная вата Knauf Insulation 11-13 кг/м3.
Окна деревянные, двойное остекление.
Двери деревянные (банные, клиновые), без замка.
Полати - одноуровневые, Осина.
Полати - двухуровневые, Осина.
Печь - Везувий Оптимум 14 (сталь 5 мм) с баком на трубе 55 литров из нержавеющей стали, двухконтурным дымоходом и комплектом пожаробезопасности.
Печь встраивается в перегородку через кирпичную кладку и топится из комнаты отдыха.
Утепление пола экструдированным пенополиэтиролом 50 мм.
Внешняя отделка фасада - Имитация бруса (хвоя) с устройством вентилируемого зазора и ветровлагозащитой.
Отделка цоколя - Профилированный лист (окрашенный) с продухами и металлическим отливом.
Электрика - монтаж автомата, выключателя, светильников, розеток.
Люк - лаз (доступ на чердачное пространство).
Обвязка 100х150 мм естественной влажности + антисептик (обвязки и лаг пола) +брусок 50х50мм
Вент.зазор по стенам 25х50мм
Столбы + перила (крестообразные)
Настил пола террасы - обрезная доска 50х150 мм естсетвенной влажности
Обналичка - евровагонка 12,5х88мм
Обналичка внутри - уголок 40х40 мм
Плинтус - потолок, стены, пол
Углы бани - уголок 40х40 мм
Решетка для проветривания чердачного перекрытия
Пленки Эко-хаус
В парном отделении либо окно 600х400 деревянное либо вент решетка (на выбор)

Дополнительные услуги

150 000 ₽
102 000 ₽
72 000 ₽
28 000 ₽

Бесплатный выезд специалиста

Оплата

  • Способы оплаты Наличными деньгами в кассу офиса компании или банковский перевод на расчетный счет компании.

  • Этапы оплаты Оплата комплекса услуг по строительству вашего дома или бани проходит в три этапа. Суммы фиксируются в договоре подряда на строительство с указанием сроков, это гарантирует заказчикам, что цена не вырастет во время стройки.

  • Оплата в кредит Мы работаем с многими банками партнерами. Подать заявку на оформление кредита можно в офисе компании или по телефону. Одобрение заявки занимает 30 минут.

Информирование

Еженедельный фото или видеоотчет в любом удобном для вас канале: почта, мессенджеры. Прораб ждет Вас на участке строительства в удобное для Вас время по договоренности.

Доставка

СК Надёжность возьмет на себя полный комплекс услуг по доставке, погрузке и разгрузке материалов до места строительства на Вашем участке в Нижнем Новгороде или Нижегородской области. 

Стоимость рассчитывается индивидуально на каждый объект менеджером в зависимости от веса груза, типа транспортного средства и километража.

Сроки строительства

Сроки строительства составляют от двух недель до двух месяцев в зависимости от размеров объекта и объема работ. При составлении договора подряда сроки указываются на момент оформления документов.

Гарантия

Современные технологии и качественный материал позволяет дать гарантию для наших клиентов 5 лет.

Посетите нашу выставочную площадку

Нижегородская область, Богородский район, СТ Родник, 7

Преимущества строительной компании Надёжность

Строительство бани под ключ

Проектирование, изготовление, транспортировка, монтаж, инженерные коммуникации, утепление, отделка

Кредит за 30 минут

Только паспорт и СНИЛС Использование материнского капитала для детей любого возраста

Профессиональный подход

Рекомендации специалистов на всех этапах от выбора фундамента до планирования интерьера

Собственное производство

Все комплектующие в наличии, срочная замена в случае необходимости

Контроль качества

Система контроля качества на всех этапах: производства, сушки, хранения, транспортировки, отгрузки

Технический надзор

Закрепленный прораб на объекте, опытные рабочие, высокое качество работ!

Выполненные проекты

Отзывы

Поделитесь вашим мнением

Ваш отзыв поможет другим покупателям сделать правильный выбор!

Андрей Черноколодьев 30 мая 2025
Дерево без трещин и дефектов, приятное на ощупь. Строители явно ценят свою репутацию и гордятся результатом.
Регина Савирова 09 мая 2025
Мне импонировал необычный внешний вид бани, она выглядит как произведение искусства. Дизайнеры нашли яркий и нестандартный подход.
Виктория Осипова 01 мая 2025
Баня показала устойчивость к влаге, что особенно важно для региона с частыми дождями. Спасибо всей команде за внимательное отношение и высокий уровень сервиса.
Регина Карпова 18 апреля 2025
Баня не боится ни дождей, ни ветров. Особое спасибо за использование долговечных материалов и современных технологий. Специалисты заранее рассказали, как ухаживать за фасадом и кровлей.
Алёна Махова 17 августа 2024
Освещение в парной оказалось именно таким, каким и должно быть, мягким и рассеянным, компания предложила удобное зонирование и практичное расположение источников света, очень доволен продуманным решением.

Ждём вас в любом из наших офисов

Сартаково

Нижний Новгород, СТ Родник, 7

Больше вариантов

Вопросы и ответы

В стандартную комплектацию входит система естественной вентиляции, но можно добавить принудительную.
Да, предусмотрена система естественной вентиляции — через отдушины в полу и вытяжные каналы под потолком.
В дверце печи используется термостойкое стекло, выдерживающее до 700°C.
Систему можно консервировать на зиму — предусмотрены сливные краны и дренаж.
Типовой проект можно скорректировать под индивидуальные потребности — бесплатно или за доплату.
У нас есть опыт в каркасном домостроении — более 10 лет, построено более 200 объектов.
Каркасная баня 6×4 в скандинавском стиле, под ключ в Нижнем Новгороде, фото 1

Каркасная баня 6х4 в скандинавском стиле

×

Интерактивная карта Нижегородской области

Тоншаево Ветлуга Урень Тонкино Шаранга Варнавино Ковернино Городец Балахна Володарск Павлово Сосновское Вача Кулебаки Выкса Дивеево Лукоянов Починки Пильна Сергач Первомайск Гагино Богородск Шатки Арзамас Саров Княгинино Бутурлино Лысково Спасское Воротынец Перевоз Большое Мурашкино Ардатов Уразовка Сеченово Чкаловск Заволжье Сокольское Красные баки Воскресенское Семенов Бор Кстово Нижний Новгород Кстово Дзержинск Дальнее Константиново Шахунья Вад Вознесенское Большое Болдино Навашино
Заявка на проект
Введите телефон и мы перезвоним Вам в течение 3х минут, чтобы обсудить детали

Каталог

Страницы

5% скидка до 31 января!
Кредит на строительство
Условия кредитования
  • Ставка 14,5%
  • Сумма до 5 000 000 руб.
  • Срок от 6 до 60 месяцев
  • Решение за 30 минут
  • Персональный менеджер 24/7

Используйте материнский капитал на строительство частного дома независимо от возраста ребенка!

(согласно ФЗ-256 от 29.12.2006 г.)
Бесплатный выезд специалиста
Введите телефон и мы перезвоним
Вам в течение 3х минут
Запись на посещение
Введите телефон и мы перезвоним
Вам в течение 3х минут
Задайте ваш вопрос
И мы перезвоним вам с ответом!

Оставаясь на сайте, вы соглашаетесь на использование файлов куки и передачей данных службам веб-аналитики