Нижний Новгород, СТ Родник, 7

Нижний Новгород, ул. Ларина, 27

Нижний Новгород, СТ Родник, 7

Пн-Пт 10-18 ч.

Нижний Новгород, СТ Родник, 7

Нижний Новгород, ул. Ларина, 27

Каркасная баня 5х6,5 с двухскатной крышей

Проект BK1/24

Экономия: 42 000 ₽

833 000  875 000 

  • Металлочерепица в подарок
  • Скидка на винтовые сваи 50%
  • Цена не вырастет во время стройки

Скидка на сваи 50%!

Строительство под ключ 3 дня

Нижний Новгород и область

Есть вопросы?

Специалист СК “Надёжность”
поможет с выбором

Описание

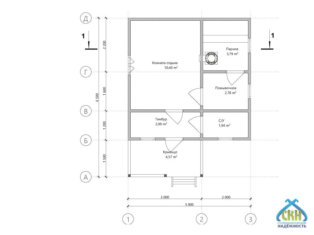
Каркасная баня 5×6,5 с двухскатной крышей предлагает 26 кв. м., включая парную 3 кв. м., помывочную 2 кв. м., комнату отдыха 10 кв. м.. Классический стиль сочетается с современными решениями. Санузел внутри добавляет удобства. Баня создана как семейное пространство. Гости чувствуют себя комфортно. Крыльцо становится началом пути к расслаблению. Здесь легко собраться всей семьей. Это место где создаются традиции и остаются теплые воспоминания.

Смотрите как мы строим
подобные проекты

Проект

АтрибутЗначение
Типклассические
Размеры, м5x7
Форма банипрямоугольная
Кол. этажей1
Конструкциякомната отдыха, крыльцо
Крышадвухскатная
Сан. узел1
Стильклассический
Цвет фасадакоричневый
Деревососна
Технологиякаркасная
ПомещениеПлощадь
Общая26,47 м²
Парная3,79 м²
Помывочная2,78 м²
Комната отдыха10,4 м²
Санузел1,94 м²
Крыльцо4,57 м²
Тамбур2,99 м²

Комплектация

Состав комплектации
Лето
875 000 ₽
833 000 ₽
Зима
906 000 ₽
863 000 ₽
Баня под ключ
1 054 000 ₽
1 003 000 ₽
Высота - 1-й этаж 2,0 м.
Силовой каркас - наружные и внутренние стены из доски 50х100 мм, лаги пола, потолка и стропильной системы 50х100 мм, с шагом 590 мм.
Кровельное покрытие - профилированный лист (окрашенный) 0.4 мм, устройство обрешетки, контробрешетки и гидроизоляции.
Устройство карнизов, подшив кровельных свесов - евровагонка (хвоя) 12,5х88 мм.
Внешняя отделка фасада - евровагонка (хвоя) 12,5х88 мм с устройством вентилируемого зазора и ветровлагозащитой.
Внутренняя отделка - евровагонка (хвоя) 12,5х88 мм.
Внутренняя отделка потолка парного отделения - евровагонка (осина) 12,5х88 мм.
Настил пола - обрезная доска 50х150 мм.
Настил пола - шпунтованная доска 36 мм с утеплением 100 мм минеральная вата Knauf Insulation 11-13 кг/м3.
Утепление внешних и внутренних стен, потолка 50 мм - минеральная вата Knauf Insulation 11-13 кг/м3.
Утепление внешних и внутренних стен, потолка 100 мм - минеральная вата Knauf Insulation 11-13 кг/м3.
Окна деревянные, двойное остекление.
Двери деревянные (банные, клиновые), без замка.
Полати - одноуровневые, Осина.
Полати - двухуровневые, Осина.
Печь - Везувий Оптимум 14 (сталь 5 мм) с баком на трубе 55 литров из нержавеющей стали, двухконтурным дымоходом и комплектом пожаробезопасности.
Печь встраивается в перегородку через кирпичную кладку и топится из комнаты отдыха.
Утепление пола экструдированным пенополиэтиролом 50 мм.
Внешняя отделка фасада - Имитация бруса (хвоя) с устройством вентилируемого зазора и ветровлагозащитой.
Отделка цоколя - Профилированный лист (окрашенный) с продухами и металлическим отливом.
Электрика - монтаж автомата, выключателя, светильников, розеток.
Люк - лаз (доступ на чердачное пространство).
Обвязка 100х150 мм естественной влажности + антисептик (обвязки и лаг пола) +брусок 50х50мм
Вент.зазор по стенам 25х50мм
Столбы + перила (крестообразные)
Настил пола террасы - обрезная доска 50х150 мм естсетвенной влажности
Обналичка - евровагонка 12,5х88мм
Обналичка внутри - уголок 40х40 мм
Плинтус - потолок, стены, пол
Углы бани - уголок 40х40 мм
Решетка для проветривания чердачного перекрытия
Пленки Эко-хаус
В парном отделении либо окно 600х400 деревянное либо вент решетка (на выбор)

Дополнительные услуги

150 000 ₽
119 000 ₽
84 000 ₽
42 000 ₽

Бесплатный выезд специалиста

Оплата

  • Способы оплаты Наличными деньгами в кассу офиса компании или банковский перевод на расчетный счет компании.

  • Этапы оплаты Оплата комплекса услуг по строительству вашего дома или бани проходит в три этапа. Суммы фиксируются в договоре подряда на строительство с указанием сроков, это гарантирует заказчикам, что цена не вырастет во время стройки.

  • Оплата в кредит Мы работаем с многими банками партнерами. Подать заявку на оформление кредита можно в офисе компании или по телефону. Одобрение заявки занимает 30 минут.

Информирование

Еженедельный фото или видеоотчет в любом удобном для вас канале: почта, мессенджеры. Прораб ждет Вас на участке строительства в удобное для Вас время по договоренности.

Доставка

СК Надёжность возьмет на себя полный комплекс услуг по доставке, погрузке и разгрузке материалов до места строительства на Вашем участке в Нижнем Новгороде или Нижегородской области. 

Стоимость рассчитывается индивидуально на каждый объект менеджером в зависимости от веса груза, типа транспортного средства и километража.

Сроки строительства

Сроки строительства составляют от двух недель до двух месяцев в зависимости от размеров объекта и объема работ. При составлении договора подряда сроки указываются на момент оформления документов.

Гарантия

Современные технологии и качественный материал позволяет дать гарантию для наших клиентов 5 лет.

Посетите нашу выставочную площадку

Нижегородская область, Богородский район, СТ Родник, 7

Преимущества строительной компании Надёжность

Строительство бани под ключ

Проектирование, изготовление, транспортировка, монтаж, инженерные коммуникации, утепление, отделка

Кредит за 30 минут

Только паспорт и СНИЛС Использование материнского капитала для детей любого возраста

Профессиональный подход

Рекомендации специалистов на всех этапах от выбора фундамента до планирования интерьера

Собственное производство

Все комплектующие в наличии, срочная замена в случае необходимости

Контроль качества

Система контроля качества на всех этапах: производства, сушки, хранения, транспортировки, отгрузки

Технический надзор

Закрепленный прораб на объекте, опытные рабочие, высокое качество работ!

Выполненные проекты

Отзывы

Поделитесь вашим мнением

Ваш отзыв поможет другим покупателям сделать правильный выбор!

Рустам Юсупов 10 июля 2025
Он одинаково хорош и как дача, и как постоянное жилье. Такой вариант - находка для тех, кто любит природу. Благодарю за помощь в выборе универсального дома!
Эльвира Коробкова 30 мая 2025
Я люблю всё улучшать — и этот дом дал простор для творчества. Он легко адаптируется под изменения. Спасибо архитекторам за гибкость проекта. Теперь он мой идеальный отдых-поделушка.
Дмитрий Ореховский 12 мая 2025
Заказ пришёл раньше срока — приятная неожиданность. Комплектация была собрана чётко по списку. Особенно благодарю логистов и менеджеров — всё слаженно и профессионально. Теперь сборка прошла без задержек.
Артем Белов 27 апреля 2025
Для меня главное — надёжность. Фундамент выдержал даже весной, когда земля подмокла. Строители сделали всё аккуратно и без лишних слов. Работают как часы — мне это по душе.
Варвара Агафонова 07 апреля 2025
С первого дня почувствовала уют. Дом сохраняет естественный микроклимат — как будто живёт вместе со мной. Особая благодарность дизайнерам за мягкую гармонию форм и света. Здесь я нахожу покой и вдохновение.

Ждём вас в любом из наших офисов

Сартаково

Нижний Новгород, СТ Родник, 7

Больше вариантов

Вопросы и ответы

Продухи предусмотрены — по два на каждую сторону, диаметром 10–15 см, чтобы обеспечить циркуляцию воздуха.
Предлагаем печи российского (ЭкоСкан), финского (Helo) и корейского (Korea Stone) производства.
В моечной и предбаннике устанавливаются розетки с крышками и защитой от влаги.
Грунт может быть пучинистым, песчаным или скальным — всё учитывается при проектировании.
В большинстве проектов есть тамбур — для сохранения тепла и хранения обуви.
Между печью и деревянными стенами предусмотрен терморазрыв — воздушный зазор и теплоизоляция.
Каркасная баня 5×5 с двухскатной крышей, под ключ в Нижнем Новгороде, фото 1

Каркасная баня 5х6,5 с двухскатной крышей

×

Интерактивная карта Нижегородской области

Тоншаево Ветлуга Урень Тонкино Шаранга Варнавино Ковернино Городец Балахна Володарск Павлово Сосновское Вача Кулебаки Выкса Дивеево Лукоянов Починки Пильна Сергач Первомайск Гагино Богородск Шатки Арзамас Саров Княгинино Бутурлино Лысково Спасское Воротынец Перевоз Большое Мурашкино Ардатов Уразовка Сеченово Чкаловск Заволжье Сокольское Красные баки Воскресенское Семенов Бор Кстово Нижний Новгород Кстово Дзержинск Дальнее Константиново Шахунья Вад Вознесенское Большое Болдино Навашино
Заявка на проект
Введите телефон и мы перезвоним Вам в течение 3х минут, чтобы обсудить детали

Каталог

Страницы

5% скидка до 31 января!
Кредит на строительство
Условия кредитования
  • Ставка 14,5%
  • Сумма до 5 000 000 руб.
  • Срок от 6 до 60 месяцев
  • Решение за 30 минут
  • Персональный менеджер 24/7

Используйте материнский капитал на строительство частного дома независимо от возраста ребенка!

(согласно ФЗ-256 от 29.12.2006 г.)
Бесплатный выезд специалиста
Введите телефон и мы перезвоним
Вам в течение 3х минут
Запись на посещение
Введите телефон и мы перезвоним
Вам в течение 3х минут
Задайте ваш вопрос
И мы перезвоним вам с ответом!

Оставаясь на сайте, вы соглашаетесь на использование файлов куки и передачей данных службам веб-аналитики