Нижний Новгород, ул. Ларина, 27

Пн-Пт 10:00 - 18:00

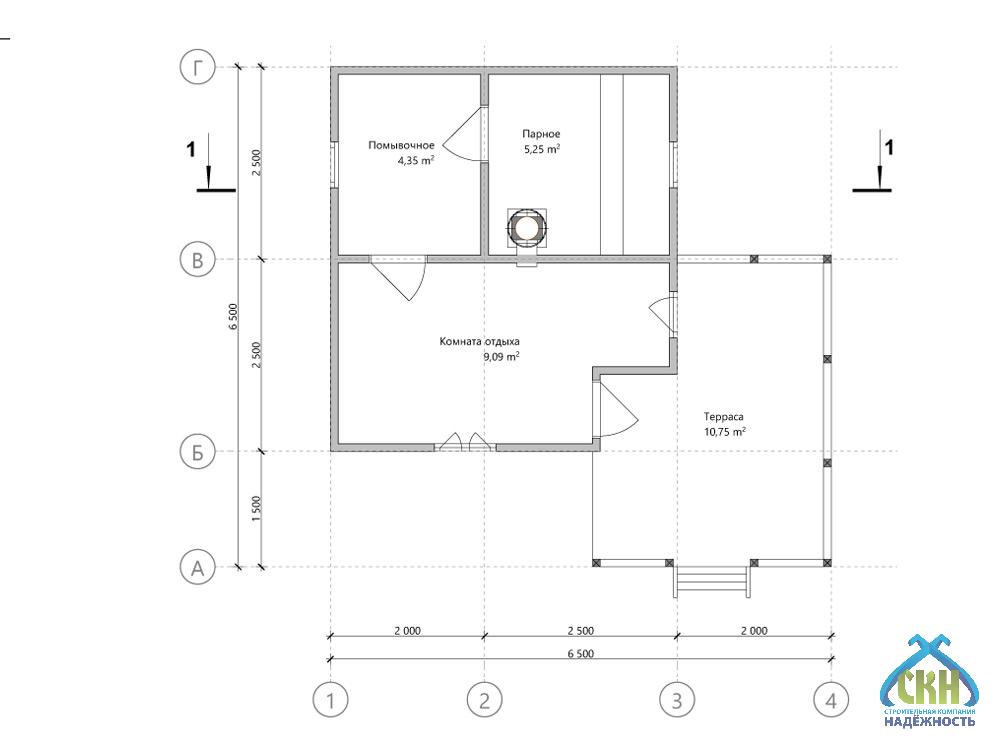
Каркасная баня 6,5х6,5 ассиметричная

Проект BK1/25

Экономия: 43 000 ₽

856 000  899 000 

  • Металлочерепица в подарок
  • Скидка на винтовые сваи 50%
  • Цена не вырастет во время стройки

Скидка на сваи 50%!

Строительство под ключ 4 дня

Нижний Новгород и область

Есть вопросы?

Специалист СК “Надёжность”
поможет с выбором

Описание

Каркасная баня 6,5×6,5 ассиметричная распределяет общую площадь 29 кв. м. между парной 5 кв. м. помывочной 4 кв. м. комнатой отдыха 9 кв. м. и террасой 10 кв. м.. Современный дизайн привлекает нестандартными решениями. Асимметрия придает индивидуальности. Баня создана профессионалами с вниманием к каждой мелочи. Просторные помещения дают возможность собраться с друзьями. После парной вы сможете отдохнуть в удобной комнате. Терраса станет любимым местом после водных процедур. Это пространство восстановления сил и внутреннего равновесия.

Смотрите как мы строим
подобные проекты

Проект

АтрибутЗначение
Типклассические
Размеры, м7x7
Форма баниассиметричная
Кол. этажей1
Конструкциякомната отдыха, терраса
Крышадвухскатная
Сан. узелнет
Стильсовременный
Цвет фасадабежевый
Деревососна
Технологиякаркасная
ПомещениеПлощадь
Общая29,44 м²
Парная5,25 м²
Помывочная4,35 м²
Комната отдыха9,09 м²
Терраса10,75 м²

Комплектация

Состав комплектации
Лето
899 000 ₽
856 000 ₽
Зима
982 000 ₽
935 000 ₽
Баня под ключ
1 103 000 ₽
1 050 000 ₽
Высота - 1-й этаж 2,0 м. Силовой каркас - наружные и внутренние стены из доски 50х100 мм, лаги пола, потолка и стропильной системы 50х100 мм, с шагом 590 мм.
Обвязка 100х150 мм естественной влажности + антисептик (обвязки и лаг пола)
Кровельное покрытие - профилированный лист (окрашенный), устройство обрешетки, контробрешетки и гидроизоляции.
Устройство карнизов, подшив кровельных свесов - евровагонка А/В (хвоя).
Внешняя отделка фасада - евровагонка А/В (хвоя) с устройством вентилируемого зазора и ветровлагозащитой.
Внешняя отделка фасада - имитация бруса А/В с устройством вентилируемого зазора и ветровлагозащитой.
Внутренняя отделка - евровагонка А/В (хвоя).
Внутренняя отделка потолка парного отделения - евровагонка А/В (осина).
Настил пола - обрезная доска 50х150 мм.
Настил пола - шпунтованная доска А/В с утеплением.
Утепление внешних и внутренних стен, потолка 50 мм.
Утепление внешних и внутренних стен, потолка 100 мм
Окна деревянные, двойное остекление.
Двери массив дерева (банные, клиновые)
Полати - одноуровневые, Осина.
Полати - двухуровневые, Осина.
Печь - Везувий Оптимум 14 с баком на трубе 55 литров из нержавеющей стали, двухконтурным дымоходом и комплектом пожаробезопасности.
Печь встраивается в перегородку через кирпичную кладку и топится из комнаты отдыха.
Водоотведение из помывочного отделения - установка пластикового трапа. Утепление пола экструдированным пенополиэтиролом 50 мм.
Отделка цоколя - Профилированный лист (окрашенный) с продухами и металлическим отливом.
Электрика - монтаж автомата, выключателя, светильников, розеток.
Люк - лаз (доступ на чердачное пространство).

Дополнительные услуги

150 000 ₽
153 000 ₽
108 000 ₽
28 000 ₽

Бесплатный выезд специалиста

Оплата

  • Способы оплаты Наличными деньгами в кассу офиса компании или банковский перевод на расчетный счет компании.

  • Этапы оплаты Оплата комплекса услуг по строительству вашего дома или бани проходит в три этапа. Суммы фиксируются в договоре подряда на строительство с указанием сроков, это гарантирует заказчикам, что цена не вырастет во время стройки.

  • Оплата в кредит Мы работаем с многими банками партнерами. Подать заявку на оформление кредита можно в офисе компании или по телефону. Одобрение заявки занимает 30 минут.

Информирование

Еженедельный фото или видеоотчет в любом удобном для вас канале: почта, мессенджеры. Прораб ждет Вас на участке строительства в удобное для Вас время по договоренности.

Доставка

СК Надёжность возьмет на себя полный комплекс услуг по доставке, погрузке и разгрузке материалов до места строительства на Вашем участке в Нижнем Новгороде или Нижегородской области. 

Стоимость рассчитывается индивидуально на каждый объект менеджером в зависимости от веса груза, типа транспортного средства и километража.

Сроки строительства

Сроки строительства составляют от двух недель до двух месяцев в зависимости от размеров объекта и объема работ. При составлении договора подряда сроки указываются на момент оформления документов.

Гарантия

Современные технологии и качественный материал позволяет дать гарантию для наших клиентов 5 лет.

Посетите нашу выставочную площадку

Нижегородская область, Богородский район, СТ Родник, 7

Преимущества строительной компании Надёжность

Строительство бани под ключ

Проектирование, изготовление, транспортировка, монтаж, инженерные коммуникации, утепление, отделка

Кредит за 30 минут

Только паспорт и СНИЛС Использование материнского капитала для детей любого возраста

Профессиональный подход

Рекомендации специалистов на всех этапах от выбора фундамента до планирования интерьера

Собственное производство

Все комплектующие в наличии, срочная замена в случае необходимости

Контроль качества

Система контроля качества на всех этапах: производства, сушки, хранения, транспортировки, отгрузки

Технический надзор

Закрепленный прораб на объекте, опытные рабочие, высокое качество работ!

Выполненные проекты

Отзывы

Поделитесь вашим мнением

Ваш отзыв поможет другим покупателям сделать правильный выбор!

Светлана Медведева 10 мая 2025
Внутренняя отделка выполнена аккуратно и со вкусом, каждый элемент подогнан точно, без щелей и зазубрин, удобная планировка и приятные тактильные материалы создают атмосферу уюта и комфорта.
Нина Пыркова 06 мая 2025
С самого первого дня использования баня радует глаз и душу, все было организовано четко, от проекта до сборки, особенно приятно, что строители учли мои пожелания по внутреннему оформлению.
Глеб Короткович 05 мая 2025
Вентиляция сделана правильно, воздух свежий, без духоты. Компания показала высокий уровень технической подготовки и знаний в проектировании.
Алексей Забелин 03 мая 2025
Проект адаптировали под особенности участка. Архитекторы помогли выбрать верную планировку и расположение. Работой остался очень доволен. Отдельная благодарность за терпение и оперативность при множестве изменений.
Зоя Базарова 19 апреля 2025
Спасибо дизайнерам за креативность, добавили интересные элементы декора. Баня стала не просто постройкой, а частью нашего домашнего уюта.

Ждём вас в любом из наших офисов

Сартаково

Нижний Новгород, СТ Родник, 7

Больше вариантов

Вопросы и ответы

Толщина стен зависит от климата: от 100 мм (для летних бань) до 150 мм (для зимнего использования).
Вентиляция подпольного пространства предусмотрена — через продухи по периметру цоколя.
Распределительный щит — влагозащищённого исполнения, IP54.
В проект можно включить открытую террасу или зону отдыха.
Все внутренние поверхности обработаны защитными составами — антисептики и водо-парозащита.
Есть возможность посетить готовую баню-образец на территории.
Каркасная баня 4,5×5 ассиметричная, под ключ в Нижнем Новгороде, фото 1

Каркасная баня 6,5х6,5 ассиметричная

×
Интерактивная карта Нижегородской области
Тоншаево Ветлуга Урень Тонкино Шаранга Варнавино Ковернино Городец Балахна Володарск Павлово Сосновское Вача Кулебаки Выкса Дивеево Лукоянов Починки Пильна Сергач Первомайск Гагино Богородск Шатки Арзамас Саров Княгинино Бутурлино Лысково Спасское Воротынец Перевоз Большое Мурашкино Ардатов Уразовка Сеченово Чкаловск Заволжье Сокольское Красные баки Воскресенское Семенов Бор Кстово Нижний Новгород Кстово Дзержинск Дальнее Константиново Шахунья Вад Вознесенское Большое Болдино Навашино
Заявка на проект
Введите телефон и мы перезвоним Вам в течение 3х минут, чтобы обсудить детали
Кредит на строительство
Условия кредитования
  • Ставка 14,5%
  • Сумма до 5 000 000 руб.
  • Срок от 6 до 60 месяцев
  • Решение за 30 минут
  • Персональный менеджер 24/7

Используйте материнский капитал на строительство частного дома независимо от возраста ребенка!

(согласно ФЗ-256 от 29.12.2006 г.)
Бесплатный выезд специалиста
Введите телефон и мы перезвоним
Вам в течение 3х минут
Запись на посещение
Введите телефон и мы перезвоним
Вам в течение 3х минут
Задайте ваш вопрос
И мы перезвоним вам с ответом!
Оставаясь на сайте, вы соглашаетесь на использование файлов куки и передачей данных службам веб-аналитики
5% скидка до 28 февраля!