Нижний Новгород, ул. Ларина, 27

Пн-Пт 10:00 - 18:00

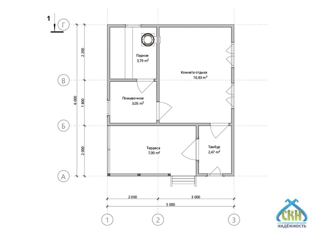
Каркасная баня 5х6 с вальмовой крышей

Проект BK1/22

890 000  934 000 

  • Металлочерепица в подарок
  • Скидка на винтовые сваи 50%
  • Цена не вырастет во время стройки

Скидка на сваи 50%!

Строительство под ключ 3 дня

Нижний Новгород и область

Есть вопросы?

Специалист СК “Надёжность”
поможет с выбором

Описание

Каркасная баня 5×6 с вальмовой крышей имеет общую площадь 27 кв. м., включая парную 3 кв. м. и помывочную 3 кв. м.. Современный стиль выражается в форме крыши и планировке. Баня предназначена для дружеских встреч. Терраса становится местом для бесед и чаепитий. После парной приятно провести время в компании. Просторные помещения вмещают компанию из нескольких человек. Это пространство где рождаются истории и сохраняются приятные моменты.

Смотрите как мы строим
подобные проекты

Проект

АтрибутЗначение
Типклассические
Размеры, м5x6
Форма банипрямоугольная
Кол. этажей1
Конструкциякомната отдыха, терраса
Крышавальмовая
Сан. узелнет
Стильсовременный
Цвет фасадакоричневый
Деревососна
Технологиякаркасная
ПомещениеПлощадь
Общая27,14 м²
Парная3,79 м²
Помывочная3,05 м²
Комната отдыха10,83 м²
Терраса7 м²
Тамбур2,47 м²

Комплектация

Состав комплектации
Лето
934 000 ₽
890 000 ₽
Зима
1 020 000 ₽
972 000 ₽
Баня под ключ
1 121 000 ₽
1 067 000 ₽
Высота - 1-й этаж 2,0 м. Силовой каркас - наружные и внутренние стены из доски 50х100 мм, лаги пола, потолка и стропильной системы 50х100 мм, с шагом 590 мм.
Обвязка 100х150 мм естественной влажности + антисептик (обвязки и лаг пола)
Кровельное покрытие - профилированный лист (окрашенный), устройство обрешетки, контробрешетки и гидроизоляции.
Устройство карнизов, подшив кровельных свесов - евровагонка А/В (хвоя).
Внешняя отделка фасада - евровагонка А/В (хвоя) с устройством вентилируемого зазора и ветровлагозащитой.
Внешняя отделка фасада - имитация бруса А/В с устройством вентилируемого зазора и ветровлагозащитой.
Внутренняя отделка - евровагонка А/В (хвоя).
Внутренняя отделка потолка парного отделения - евровагонка А/В (осина).
Настил пола - обрезная доска 50х150 мм.
Настил пола - шпунтованная доска А/В с утеплением.
Утепление внешних и внутренних стен, потолка 50 мм.
Утепление внешних и внутренних стен, потолка 100 мм
Окна деревянные, двойное остекление.
Двери массив дерева (банные, клиновые)
Полати - одноуровневые, Осина.
Полати - двухуровневые, Осина.
Печь - Везувий Оптимум 14 с баком на трубе 55 литров из нержавеющей стали, двухконтурным дымоходом и комплектом пожаробезопасности.
Печь встраивается в перегородку через кирпичную кладку и топится из комнаты отдыха.
Водоотведение из помывочного отделения - установка пластикового трапа. Утепление пола экструдированным пенополиэтиролом 50 мм.
Отделка цоколя - Профилированный лист (окрашенный) с продухами и металлическим отливом.
Электрика - монтаж автомата, выключателя, светильников, розеток.
Люк - лаз (доступ на чердачное пространство).

Дополнительные услуги

150 000 ₽
136 000 ₽
96 000 ₽
35 000 ₽

Бесплатный выезд специалиста

Оплата

  • Способы оплаты Наличными деньгами в кассу офиса компании или банковский перевод на расчетный счет компании.

  • Этапы оплаты Оплата комплекса услуг по строительству вашего дома или бани проходит в три этапа. Суммы фиксируются в договоре подряда на строительство с указанием сроков, это гарантирует заказчикам, что цена не вырастет во время стройки.

  • Оплата в кредит Мы работаем с многими банками партнерами. Подать заявку на оформление кредита можно в офисе компании или по телефону. Одобрение заявки занимает 30 минут.

Информирование

Еженедельный фото или видеоотчет в любом удобном для вас канале: почта, мессенджеры. Прораб ждет Вас на участке строительства в удобное для Вас время по договоренности.

Доставка

СК Надёжность возьмет на себя полный комплекс услуг по доставке, погрузке и разгрузке материалов до места строительства на Вашем участке в Нижнем Новгороде или Нижегородской области. 

Стоимость рассчитывается индивидуально на каждый объект менеджером в зависимости от веса груза, типа транспортного средства и километража.

Сроки строительства

Сроки строительства составляют от двух недель до двух месяцев в зависимости от размеров объекта и объема работ. При составлении договора подряда сроки указываются на момент оформления документов.

Гарантия

Современные технологии и качественный материал позволяет дать гарантию для наших клиентов 5 лет.

Посетите нашу выставочную площадку

Нижегородская область, Богородский район, СТ Родник, 7

Преимущества строительной компании Надёжность

Строительство бани под ключ

Проектирование, изготовление, транспортировка, монтаж, инженерные коммуникации, утепление, отделка

Кредит за 30 минут

Только паспорт и СНИЛС Использование материнского капитала для детей любого возраста

Профессиональный подход

Рекомендации специалистов на всех этапах от выбора фундамента до планирования интерьера

Собственное производство

Все комплектующие в наличии, срочная замена в случае необходимости

Контроль качества

Система контроля качества на всех этапах: производства, сушки, хранения, транспортировки, отгрузки

Технический надзор

Закрепленный прораб на объекте, опытные рабочие, высокое качество работ!

Выполненные проекты

Отзывы

Поделитесь вашим мнением

Ваш отзыв поможет другим покупателям сделать правильный выбор!

Мария Сидоренко 22 июля 2025
Не занимает много места, но при этом вместительная. Компания предложила оптимальное решение для небольшого участка.
Фаина Зиннатуллина 28 апреля 2025
Благодарю инженеров за использование современных технологий. Баня получилась функциональной и стильной. Хочу отметить качество утепления, зимой тепло, летом не жарко.
Михаил Плющиков 25 апреля 2025
Окна пропускают много света и не запотевают. Хотела бы немного больше внимания к деталям при отделке, но в целом довольна.
Максим Кудряшов 06 апреля 2025
Печь нагревает равномерно, камни долго держат температуру. Хочу выразить признательность всем причастным за точность и аккуратность в монтаже.
Жанна Шаверина 03 апреля 2025
Я была довольна планировкой, окна выходят на лес, вид просто завораживает. Специалисты компании отлично справились с задачей.

Ждём вас в любом из наших офисов

Сартаково

Нижний Новгород, СТ Родник, 7

Больше вариантов

Вопросы и ответы

Обвязка цоколя выполняется из бруса 100х150 мм — он выдерживает нагрузку и не деформируется.
Окна — деревянные, из термообработанной древесины, устойчивой к влаге и перепадам температур.
Каменка может быть открытой или закрытой — зависит от модели печи.
Фундамент — чаще всего свайно-винтовой или ленточный, реже плитный — зависит от грунта и проекта.
В комнате отдыха предусмотрено место под стол, скамьи или диван.
Дерево для парной специально подготавливается — сушится и обрабатывается защитными составами.
Каркасная баня 5×6 с вальмовой крышей, под ключ в Нижнем Новгороде, фото 1

Каркасная баня 5х6 с вальмовой крышей

×
Интерактивная карта Нижегородской области
Тоншаево Ветлуга Урень Тонкино Шаранга Варнавино Ковернино Городец Балахна Володарск Павлово Сосновское Вача Кулебаки Выкса Дивеево Лукоянов Починки Пильна Сергач Первомайск Гагино Богородск Шатки Арзамас Саров Княгинино Бутурлино Лысково Спасское Воротынец Перевоз Большое Мурашкино Ардатов Уразовка Сеченово Чкаловск Заволжье Сокольское Красные баки Воскресенское Семенов Бор Кстово Нижний Новгород Кстово Дзержинск Дальнее Константиново Шахунья Вад Вознесенское Большое Болдино Навашино
Заявка на проект
Введите телефон и мы перезвоним Вам в течение 3х минут, чтобы обсудить детали
Кредит на строительство
Условия кредитования
  • Ставка 14,5%
  • Сумма до 5 000 000 руб.
  • Срок от 6 до 60 месяцев
  • Решение за 30 минут
  • Персональный менеджер 24/7

Используйте материнский капитал на строительство частного дома независимо от возраста ребенка!

(согласно ФЗ-256 от 29.12.2006 г.)
Бесплатный выезд специалиста
Введите телефон и мы перезвоним
Вам в течение 3х минут
Запись на посещение
Введите телефон и мы перезвоним
Вам в течение 3х минут
Задайте ваш вопрос
И мы перезвоним вам с ответом!
Оставаясь на сайте, вы соглашаетесь на использование файлов куки и передачей данных службам веб-аналитики
5% скидка до 28 февраля!