Каркасная баня 4х4 с комнатой отдыха

Цена актуальна: 14.03.2026

Проект BK1/13

Экономия: 28 000 ₽

564 000  613 000 

  • Металлочерепица в подарок
  • Скидка на винтовые сваи 50%
  • Цена не вырастет во время стройки

Скидка на сваи 50%!

Строительство под ключ 3 дня

Нижний Новгород и область

Есть вопросы?

Специалист СК “Надёжность”
поможет с выбором

Описание

Строительная компания «Надёжность» предлагает строительство каркасной бани 4х4 под ключ в Нижнем Новгороде и области. Просторная каркасная баня размером 4 на 4 метра сочетает в себе функциональность и комфорт. Её габариты позволяют вместить разделенные парную и помывочную, а также комнату отдыха. Эта баня воплощает дух современного дизайна и становится местом для полноценного отдыха. Интерьер наполнен светом и уютом. Дизайнерский проект гарантирует безупречный вкус и эстетическое удовольствие. Наша строительная бригада работает по отлаженной технологии, поэтому мы готовы возвести баню на Вашем участке всего за пару дней. Уберем весь мусор и сдадим постройку готовой к эксплуатации. Баню отличают качественные экологичные материалы, утеплители проверенных брендов, которые сохраняют прочность десятилетиями, а также выгодные цены за счет собственного производства строительных и отделочных материалов. Оставляйте заявку, рассчитаем Ваш проект!

Смотрите как мы строим
подобные проекты

Проект

АтрибутЗначение
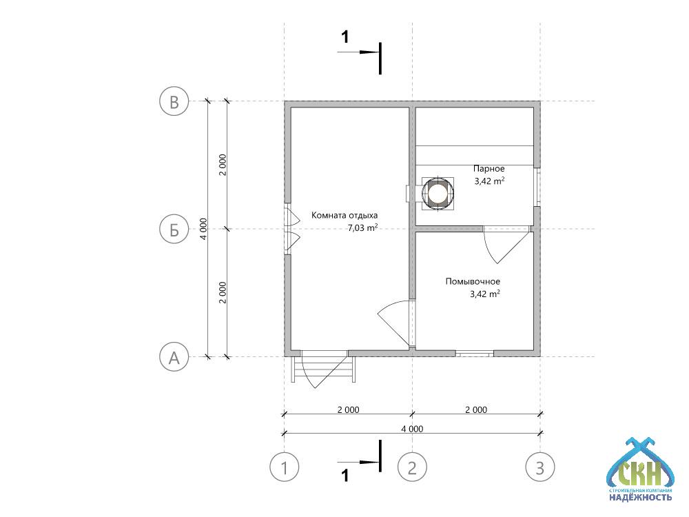
Размеры, м4x4
Кол. этажей1
Конструкциякомната отдыха
Парная и Моечнаяраздельная
Оснащениедвери, окна, отделка, печь, полати, утепление
Сан. узелнет
Крышадвухскатная
Стильсовременный
Цвет фасадасерый
Деревососна
Технологиякаркасная
Формапрямоугольная
ПомещениеПлощадь
Общая13,58 м²
Парная3,35 м²
Помывочная3,35 м²
Комната отдыха6,88 м²

Комплектация

Состав комплектации
Лето
613 000 ₽
564 000 ₽
Зима
676 000 ₽
622 000 ₽
Баня под ключ
757 000 ₽
696 000 ₽
Высота - 1-й этаж 2,0 м. Силовой каркас - наружные и внутренние стены из доски 50х100 мм, лаги пола, потолка и стропильной системы 50х100 мм, с шагом 590 мм.
Обвязка 100х150 мм естественной влажности + антисептик (обвязки и лаг пола)
Кровельное покрытие - профилированный лист (окрашенный), устройство обрешетки, контробрешетки и гидроизоляции.
Устройство карнизов, подшив кровельных свесов - евровагонка А/В (хвоя).
Внешняя отделка фасада - евровагонка А/В (хвоя) с устройством вентилируемого зазора и ветровлагозащитой.
Внешняя отделка фасада - имитация бруса А/В с устройством вентилируемого зазора и ветровлагозащитой.
Внутренняя отделка - евровагонка А/В (хвоя).
Внутренняя отделка потолка парного отделения - евровагонка А/В (осина).
Настил пола - обрезная доска 50х150 мм.
Настил пола - шпунтованная доска А/В с утеплением.
Утепление внешних и внутренних стен, потолка 50 мм.
Утепление внешних и внутренних стен, потолка 100 мм
Окна деревянные, двойное остекление.
Двери массив дерева (банные, клиновые)
Полати - одноуровневые, Осина.
Полати - двухуровневые, Осина.
Печь - Везувий Оптимум 14 с баком на трубе 55 литров из нержавеющей стали, двухконтурным дымоходом и комплектом пожаробезопасности.
Печь встраивается в перегородку через кирпичную кладку и топится из комнаты отдыха.
Водоотведение из помывочного отделения - установка пластикового трапа. Утепление пола экструдированным пенополиэтиролом 50 мм.
Отделка цоколя - Профилированный лист (окрашенный) с продухами и металлическим отливом.
Электрика - монтаж автомата, выключателя, светильников, розеток.
Люк - лаз (доступ на чердачное пространство).

Дополнительные услуги

150 000 ₽
76 500 ₽
54 000 ₽
21 000 ₽

Бесплатный выезд специалиста

Оплата

  • Способы оплаты
    Наличными деньгами в кассу офиса компании или банковский перевод на расчетный счет компании.
  • Этапы оплаты
    Оплата комплекса услуг по строительству вашего дома или бани проходит в три этапа. Суммы фиксируются в договоре подряда на строительство с указанием сроков, это гарантирует заказчикам, что цена не вырастет во время стройки.
  • Оплата в кредит
    Мы работаем с многими банками партнерами. Подать заявку на оформление кредита можно в офисе компании или по телефону. Одобрение заявки занимает 30 минут.

Информирование

Еженедельный фото или видеоотчет в любом удобном для вас канале: почта, мессенджеры. Прораб ждет Вас на участке строительства в удобное для Вас время по договоренности.

Доставка

СК Надёжность возьмет на себя полный комплекс услуг по доставке, погрузке и разгрузке материалов до места строительства на Вашем участке в Нижнем Новгороде или Нижегородской области.  Стоимость рассчитывается индивидуально на каждый объект менеджером в зависимости от веса груза, типа транспортного средства и километража.

Сроки строительства

Сроки строительства составляют от двух недель до двух месяцев в зависимости от размеров объекта и объема работ. При составлении договора подряда сроки указываются на момент оформления документов.

Гарантия

Современные технологии и качественный материал позволяет дать гарантию для наших клиентов 5 лет.

Посетите нашу выставочную площадку

Нижегородская область, Богородский район, СТ Родник, 7

Преимущества строительной компании Надёжность

Строительство бани под ключ

Проектирование, изготовление, транспортировка, монтаж, инженерные коммуникации, утепление, отделка

Кредит за 30 минут

Только паспорт и СНИЛС Использование материнского капитала для детей любого возраста

Профессиональный подход

Рекомендации специалистов на всех этапах от выбора фундамента до планирования интерьера

Собственное производство

Все комплектующие в наличии, срочная замена в случае необходимости

Контроль качества

Система контроля качества на всех этапах: производства, сушки, хранения, транспортировки, отгрузки

Технический надзор

Закрепленный прораб на объекте, опытные рабочие, высокое качество работ!

Выполненные проекты

Отзывы

Поделитесь вашим мнением

Ваш отзыв поможет другим покупателям сделать правильный выбор!

Андрей Разумовский 30 мая 2025
Лысково
Проект был сложным, но компания не побоялась взяться за него, баня получилась стильной и функциональной, особенно оценил работу инженера, он лично проверял каждый этап.
Прасковья Магомедова 09 мая 2025
Пильна
Печь работает тихо и равномерно прогревает помещение. Мастера подробно объяснили принцип работы и обслуживания. Это добавило уверенности в выборе.
Лидия Осипова 01 мая 2025
Нижний Новгород
Фундамент установили быстро, без лишних земляных работ. Баня стала отличным местом для отдыха, а компания, проверенным исполнителем.
Регина Салахова 18 апреля 2025
Сосновское
Терраса стала любимым местом для чаепития. Особенно рада, что ее сделали закрытой от ветра и с защитой от осадков.
Алена Солодовникова 17 августа 2024
Зеленый город
Расположение бани оказалось удачным, рядом с водоемом. Это создает особую атмосферу. Благодарю всю команду за профессионализм и душевный подход.

Ждём вас в любом из наших офисов

Сартаково

Нижний Новгород, СТ Родник, 7

Больше вариантов

Вопросы и ответы

Полы делаются по деревянным лагам — это проверенная технология для каркасных бань.
Стеклопакеты — двухкамерные, возможно поставить трехкамерные (за доп плату).
Теплообменник для нагрева воды предусмотрен в большинстве моделей.
Глубина заложения фундамента — до уровня промерзания (от 1,2 до 1,8 м).
Зона отдыха может включать полки, ниши, шкафчики и другие элементы хранения.
Герметичность стыков в парной обеспечивается за счёт плотной сборки и пароизоляции.

Каркасная баня 4х4 с комнатой отдыха

×
Интерактивная карта Нижегородской области
Тоншаево Ветлуга Урень Тонкино Шаранга Варнавино Ковернино Городец Балахна Володарск Павлово Сосновское Вача Кулебаки Выкса Дивеево Лукоянов Починки Пильна Сергач Первомайск Гагино Богородск Шатки Арзамас Саров Княгинино Бутурлино Лысково Спасское Воротынец Перевоз Большое Мурашкино Ардатов Уразовка Сеченово Чкаловск Заволжье Сокольское Красные баки Воскресенское Семенов Бор Кстово Нижний Новгород Кстово Дзержинск Дальнее Константиново Шахунья Вад Вознесенское Большое Болдино Навашино
Заявка на проект
Введите телефон и мы перезвоним Вам в течение 3х минут, чтобы обсудить детали
8% скидка до 31 марта 2026!
Кредит на строительство
Условия кредитования
  • Ставка 14,5%
  • Сумма до 5 000 000 руб.
  • Срок от 6 до 60 месяцев
  • Решение за 30 минут
  • Персональный менеджер 24/7

Используйте материнский капитал на строительство частного дома независимо от возраста ребенка!

(согласно ФЗ-256 от 29.12.2006 г.)
Бесплатный выезд специалиста
Введите телефон и мы перезвоним
Вам в течение 3х минут
Запись на посещение
Введите телефон и мы перезвоним
Вам в течение 3х минут
Задайте ваш вопрос
И мы перезвоним вам с ответом!
Сайт использует файлы куки