Нижний Новгород, СТ Родник, 7

Нижний Новгород, ул. Ларина, 27

Нижний Новгород, СТ Родник, 7

Пн - Пт с 10:00 до 18:00

Нижний Новгород, СТ Родник, 7

Нижний Новгород, ул. Ларина, 27

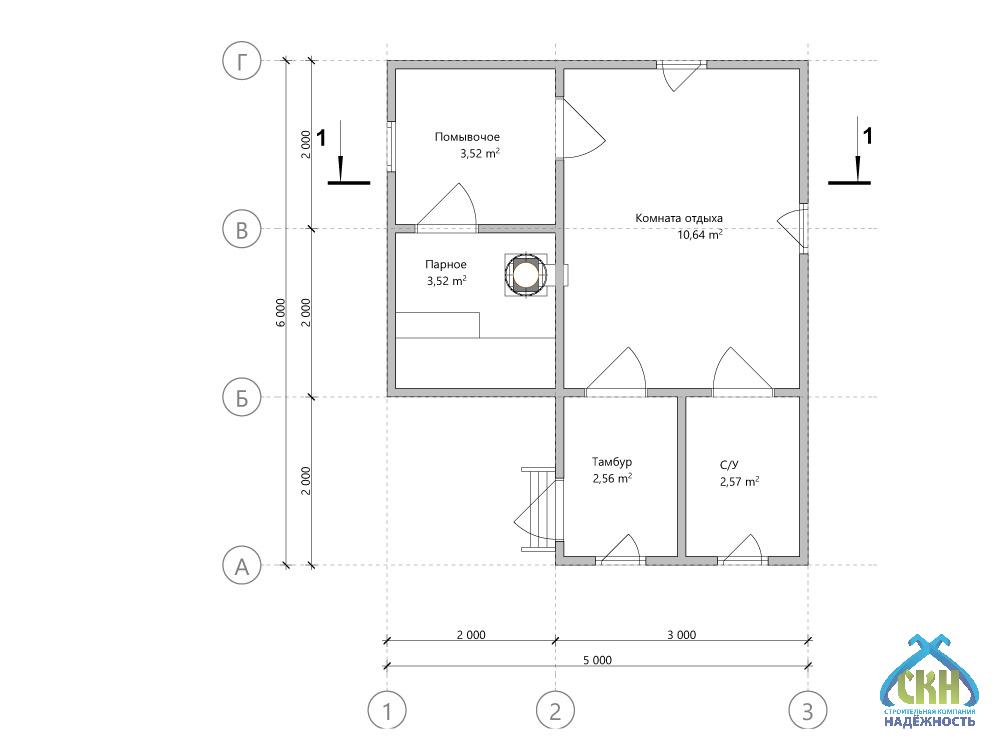
Каркасная баня 5х6 с санузлом

Проект BK1/20

Скидка: 40 000 ₽

801 000  841 000 

Строительство 3 дня

Есть вопросы?

Специалист СК “Надёжность”
поможет с выбором

Описание

Каркасная баня 5×6 в классическом стиле располагает 22 кв. м., включая парную 3 кв. м., помывочную 3 кв. м.. Использована экологичная древесина, которая наполняет пространство естественным ароматом. Классические формы создают ощущение надежности. Баня становится местом, где можно полностью расслабиться. Санузел внутри добавляет удобства без необходимости выходить. Это место, где тело очищается, а мысли упорядочиваются. Экология материала усиливает связь с природой и оздоровительный эффект.

Смотрите как мы строим
подобные проекты

Проект

АтрибутЗначение
Типклассические
Размеры, м5x6
Форма банипрямоугольная
Кол. этажей1
Конструкциякомната отдыха
Крышадвухскатная
Сан. узел1
Стильклассический
Цвет фасадакоричневый
Деревососна
ПомещениеПлощадь
Общая22,81 м²
Парная3,52 м²
Помывочная3,52 м²
Комната отдыха10,64 м²
Санузел2,57 м²
Тамбур2,56 м²

Комплектация

Состав комплектации
Лето
841 000 ₽
801 000 ₽
Зима
878 000 ₽
836 000 ₽
Баня под ключ
1 012 000 ₽
963 000 ₽
Высота - 1-й этаж 2,0 м
Силовой каркас - наружные и внутренние стены из доски 50х100 мм, лаги пола, потолка и стропильной системы 50х100 мм, с шагом 590 мм.
Кровельное покрытие - профилированный лист (окрашенный) 0.4 мм, устройство обрешетки, контробрешетки и гидроизоляции.
Устройство карнизов, подшив кровельных свесов - евровагонка (хвоя) 12,5х88 мм.
Внешняя отделка фасада - евровагонка (хвоя) 12,5х88 мм с устройством вентилируемого зазора и ветровлагозащитой.
Имитация бруса в подарок при заказе комплектации "Баня под ключ"!
Внутренняя отделка - евровагонка (хвоя) 12,5х88 мм.
Внутренняя отделка потолка парного отделения - евровагонка (осина) 12,5х88 мм.
Настил пола - обрезная доска 50х150 мм.
Настил пола - шпунтованная доска 36 мм с утеплением 100 мм минеральная вата Knauf Insulation 11-13 кг/м3.
Утепление внешних и внутренних стен, потолка 50 мм - минеральная вата Knauf Insulation 11-13 кг/м3.
Утепление внешних и внутренних стен, потолка 100 мм - минеральная вата Knauf Insulation 11-13 кг/м3.
Окна деревянные, двойное остекление.
Двери деревянные (банные, клиновые), без замка.
Полати - одноуровневые, Осина.
Полати - двухуровневые, Осина.
Печь - Везувий Оптимум 14 (сталь 5 мм) с баком на трубе 55 литров из нержавеющей стали, двухконтурным дымоходом и комплектом пожаробезопасности.
Печь встраивается в перегородку через кирпичную кладку и топится из комнаты отдыха.
Водоотведение из помывочного отделения - установка пластикового трапа.
Утепление пола экструдированным пенополиэтиролом 50 мм.
Отделка цоколя - Профилированный лист (окрашенный) с продухами и металлическим отливом.
Электрика - монтаж автомата, выключателя, светильников, розеток.
Люк - лаз (доступ на чердачное пространство).

Дополнительные услуги

150 000 ₽
127 500 ₽
90 000 ₽
35 000 ₽

Бесплатный выезд специалиста

50% скидка на винтовые сваи
или металлочерепица в подарок!

Оплата

  • Способы оплаты Наличными деньгами в кассу офиса компании или банковский перевод на расчетный счет компании.

  • Этапы оплаты Оплата комплекса услуг по строительству вашего дома или бани проходит в три этапа. Суммы фиксируются в договоре подряда на строительство с указанием сроков, это гарантирует заказчикам, что цена не вырастет во время стройки.

  • Оплата в кредит Мы работаем с многими банками партнерами. Подать заявку на оформление кредита можно в офисе компании или по телефону. Одобрение заявки занимает 30 минут.

Информирование

Еженедельный фото или видеоотчет в любом удобном для вас канале: почта, мессенджеры. Прораб ждет Вас на участке строительства в удобное для Вас время по договоренности.

Доставка

СК Надёжность возьмет на себя полный комплекс услуг по доставке, погрузке и разгрузке материалов до места строительства на Вашем участке в Нижнем Новгороде или Нижегородской области. 

Стоимость рассчитывается индивидуально на каждый объект менеджером в зависимости от веса груза, типа транспортного средства и километража.

Сроки строительства

Сроки строительства составляют от двух недель до двух месяцев в зависимости от размеров объекта и объема работ. При составлении договора подряда сроки указываются на момент оформления документов.

Гарантия

Современные технологии и качественный материал позволяет дать гарантию для наших клиентов 1 год.

Посетите нашу выставочную площадку

Нижегородская область, Богородский район, СТ Родник, 7

Преимущества строительной компании Надёжность

Строительство бани под ключ

Проектирование, изготовление, транспортировка, монтаж, инженерные коммуникации, утепление, отделка

Кредит за 30 минут

Только паспорт и СНИЛС Использование материнского капитала для детей любого возраста

Профессиональный подход

Рекомендации специалистов на всех этапах от выбора фундамента до планирования интерьера

Собственное производство

Все комплектующие в наличии, срочная замена в случае необходимости

Контроль качества

Система контроля качества на всех этапах: производства, сушки, хранения, транспортировки, отгрузки

Технический надзор

Закрепленный прораб на объекте, опытные рабочие, высокое качество работ!

Выполненные проекты

Отзывы

Поделитесь вашим мнением

Ваш отзыв поможет другим покупателям сделать правильный выбор!

Евгений Карамышев 30 апреля 2025
Баня, это не только про пар, но и про отдых, здесь предусмотрели зону отдыха, освещение, даже систему контроля температуры, теперь собираемся всей семьей, и всем хватает места.
Иван Ясницкий 18 апреля 2025
Все этапы строительства были выполнены профессионально и без задержек. Хотел бы поблагодарить всю команду за оперативность и слаженную работу.
Сергей Криницын 12 апреля 2025
Из окон открываются красивые виды на лес. Проект был реализован быстро, хотя я ожидала больше проблем. Благодарю менеджеров за оперативность и терпение.
Лилия Хусаинова 12 апреля 2025
Крыша не протекает, хотя были дожди, и выглядит красиво. Благодарю мастеров за изящество форм и надежность конструкции.
Сергей Левин 05 августа 2024
Планировка проста, но функциональна. Мне понравилось, как все организовано. Благодарю дизайнеров за грамотные решения и строителей за точность.

Ждём вас в любом из наших офисов

Сартаково

Нижний Новгород, СТ Родник, 7

Больше вариантов

Вопросы и ответы

Оптимальный уклон кровли — 30-45°. Это обеспечивает самостоятельный сход снега и хорошую вентиляцию подкровельного пространства. При меньшем угле возможны протечки, при большом — увеличивается парусность и ветровая нагрузка. Учитывайте снеговой и ветровой район вашего региона.
Металлочерепица и профлист с полимерным покрытием — лучший выбор: долговечны, сочетаются со стилем, легко монтируются. Используйте толщину стали от 0,5 мм и подкладочный ковёр под кровлю. Ондулин не рекомендую — он стареет на солнце и плохо работает в условиях высоких температур.
Вентиляция в бане-барнхаусе — это комбинация приточной и вытяжной систем. Приток — через нижние решётки в полу или у печи, вытяжка — через регулируемый клапан под потолком в моечной. При высоком потолке целесообразно установить принудительную вытяжку с таймером. Объём воздухообмена — не менее 3-кратного в час.
Для больших объёмов (от 40 м?) дровяная печь — идеальный выбор: создаёт настоящий пар и эмоциональный комфорт. Мощность — 25-35 кВт в зависимости от объёма. Электрокаменки удобны, но дороже в эксплуатации. Газовые — возможны, но требуют проекта и согласования. Печь должна быть удалена от стен минимум на 50 см, с экраном при необходимости.
Внутреннюю отделку можно сделать красиво и недорого: в зоне отдыха — вагонка из сосны или ели с тонировкой маслом, в моечной — имитация бруса или террасная доска из лиственницы. Парную — только натуральная липа или осина. Для декора — открытые балки, металлические уголки, светильники в стиле loft. Главное — не экономить на пароизоляции и вентиляции.
Планировка в стиле лофт возможна при условии использования скрытых перегородок из ГКЛВ или деревянных рам с тепло- и шумоизоляцией. Зонирование — за счёт уровня пола, освещения и мебели. Парную лучше вынести в отдельный блок с собственным выходом, чтобы не перегревать весь объём. Терраса подойдет для отдыха на свежем воздухе после банных процедур.

Баня барнхаус 4х6 с раздельной парной и помывочной

Заявка на проект
Введите телефон и мы перезвоним Вам в течение 3х минут, чтобы обсудить детали

Каталог

Страницы

50% скидка на винтовые сваи и металлочерепица в подарок до 31 октября!
при заказе дома, дачи или бани под ключ
Кредит на строительство
Условия кредитования
  • Ставка 14,5%
  • Сумма до 5 000 000 руб.
  • Срок от 6 до 60 месяцев
  • Решение за 30 минут
  • Персональный менеджер 24/7

Используйте материнский капитал на строительство частного дома независимо от возраста ребенка!

(согласно ФЗ-256 от 29.12.2006 г.)
Бесплатный выезд специалиста
Введите телефон и мы перезвоним
Вам в течение 3х минут
Запись на посещение
Введите телефон и мы перезвоним
Вам в течение 3х минут
Задайте ваш вопрос
И мы перезвоним вам с ответом!

Оставаясь на сайте, вы соглашаетесь на использование файлов куки и передачей данных службам веб-аналитики