Нижний Новгород, ул. Ларина, 27

Пн-Пт 10:00 - 18:00

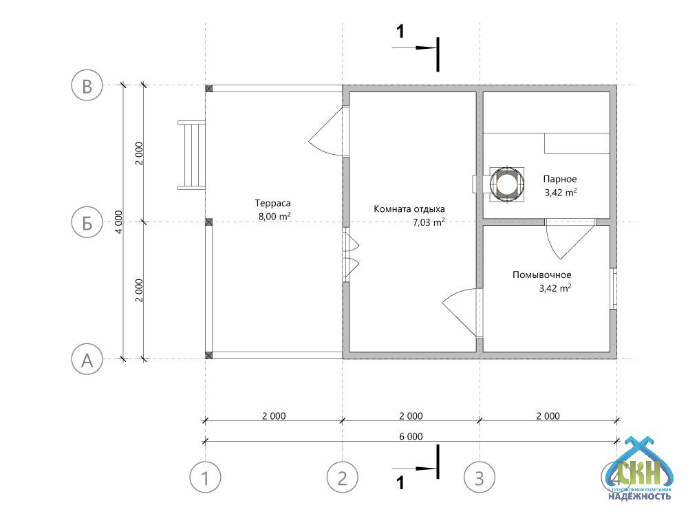
Каркасная баня 4х6 с комнатой отдыха и террасой

Проект BK1/18

Экономия: 33 000 ₽

698 000  733 000 

  • Металлочерепица в подарок
  • Скидка на винтовые сваи 50%
  • Цена не вырастет во время стройки

Скидка на сваи 50%!

Строительство под ключ 3 дня

Нижний Новгород и область

Есть вопросы?

Специалист СК “Надёжность”
поможет с выбором

Описание

Каркасная баня 4×6 одноэтажная располагает 21 кв. м. включая парную 3 кв. м. помывочную 3 кв. м. комнату отдыха 7 кв. м. и террасу 8 кв. м.. Современный стиль сочетается с классическим уютом. Баня строится быстро, но без потери качества. Просторные помещения позволяют чувствовать себя свободно. Комната отдыха станет центром общения. После парной здесь легко продолжить вечер. Терраса расширяет границы комфорта. Это пространство здоровья и душевного равновесия. Стоимость возведения делает ее доступной и повышает уровень удовольствия.

Смотрите как мы строим
подобные проекты

Проект

АтрибутЗначение
Типклассические
Размеры, м4x6
Форма банипрямоугольная
Кол. этажей1
Конструкциякомната отдыха, терраса
Крышадвухскатная
Сан. узелнет
Стильскандинавский
Цвет фасадаоранжевый
Деревососна
Технологиякаркасная
ПомещениеПлощадь
Общая21,87 м²
Парная3,42 м²
Помывочная3,42 м²
Комната отдыха7,03 м²
Терраса8 м²

Комплектация

Состав комплектации
Лето
733 000 ₽
698 000 ₽
Зима
803 000 ₽
764 000 ₽
Баня под ключ
895 000 ₽
852 000 ₽
Высота - 1-й этаж 2,0 м. Силовой каркас - наружные и внутренние стены из доски 50х100 мм, лаги пола, потолка и стропильной системы 50х100 мм, с шагом 590 мм.
Обвязка 100х150 мм естественной влажности + антисептик (обвязки и лаг пола)
Кровельное покрытие - профилированный лист (окрашенный), устройство обрешетки, контробрешетки и гидроизоляции.
Устройство карнизов, подшив кровельных свесов - евровагонка А/В (хвоя).
Внешняя отделка фасада - евровагонка А/В (хвоя) с устройством вентилируемого зазора и ветровлагозащитой.
Внешняя отделка фасада - имитация бруса А/В с устройством вентилируемого зазора и ветровлагозащитой.
Внутренняя отделка - евровагонка А/В (хвоя).
Внутренняя отделка потолка парного отделения - евровагонка А/В (осина).
Настил пола - обрезная доска 50х150 мм.
Настил пола - шпунтованная доска А/В с утеплением.
Утепление внешних и внутренних стен, потолка 50 мм.
Утепление внешних и внутренних стен, потолка 100 мм
Окна деревянные, двойное остекление.
Двери массив дерева (банные, клиновые)
Полати - одноуровневые, Осина.
Полати - двухуровневые, Осина.
Печь - Везувий Оптимум 14 с баком на трубе 55 литров из нержавеющей стали, двухконтурным дымоходом и комплектом пожаробезопасности.
Печь встраивается в перегородку через кирпичную кладку и топится из комнаты отдыха.
Водоотведение из помывочного отделения - установка пластикового трапа. Утепление пола экструдированным пенополиэтиролом 50 мм.
Отделка цоколя - Профилированный лист (окрашенный) с продухами и металлическим отливом.
Электрика - монтаж автомата, выключателя, светильников, розеток.
Люк - лаз (доступ на чердачное пространство).

Дополнительные услуги

150 000 ₽
102 000 ₽
72 000 ₽
28 000 ₽

Бесплатный выезд специалиста

Оплата

  • Способы оплаты Наличными деньгами в кассу офиса компании или банковский перевод на расчетный счет компании.

  • Этапы оплаты Оплата комплекса услуг по строительству вашего дома или бани проходит в три этапа. Суммы фиксируются в договоре подряда на строительство с указанием сроков, это гарантирует заказчикам, что цена не вырастет во время стройки.

  • Оплата в кредит Мы работаем с многими банками партнерами. Подать заявку на оформление кредита можно в офисе компании или по телефону. Одобрение заявки занимает 30 минут.

Информирование

Еженедельный фото или видеоотчет в любом удобном для вас канале: почта, мессенджеры. Прораб ждет Вас на участке строительства в удобное для Вас время по договоренности.

Доставка

СК Надёжность возьмет на себя полный комплекс услуг по доставке, погрузке и разгрузке материалов до места строительства на Вашем участке в Нижнем Новгороде или Нижегородской области. 

Стоимость рассчитывается индивидуально на каждый объект менеджером в зависимости от веса груза, типа транспортного средства и километража.

Сроки строительства

Сроки строительства составляют от двух недель до двух месяцев в зависимости от размеров объекта и объема работ. При составлении договора подряда сроки указываются на момент оформления документов.

Гарантия

Современные технологии и качественный материал позволяет дать гарантию для наших клиентов 5 лет.

Посетите нашу выставочную площадку

Нижегородская область, Богородский район, СТ Родник, 7

Преимущества строительной компании Надёжность

Строительство бани под ключ

Проектирование, изготовление, транспортировка, монтаж, инженерные коммуникации, утепление, отделка

Кредит за 30 минут

Только паспорт и СНИЛС Использование материнского капитала для детей любого возраста

Профессиональный подход

Рекомендации специалистов на всех этапах от выбора фундамента до планирования интерьера

Собственное производство

Все комплектующие в наличии, срочная замена в случае необходимости

Контроль качества

Система контроля качества на всех этапах: производства, сушки, хранения, транспортировки, отгрузки

Технический надзор

Закрепленный прораб на объекте, опытные рабочие, высокое качество работ!

Выполненные проекты

Отзывы

Поделитесь вашим мнением

Ваш отзыв поможет другим покупателям сделать правильный выбор!

Дмитрий Пестов 01 июня 2025
Заказывал каркасную баню под ключ, получил больше, чем ожидал, продумана каждая зона, система вентиляции работает четко, компания дала полное руководство по эксплуатации, очень удобно.
Клавдия Душина 27 мая 2025
Обратилась, потому что устала от долгих построек, здесь все было быстро и четко, баня собралась за две недели, сразу ввели в эксплуатацию, такой подход мне импонирует.
Никита Филатов 22 апреля 2025
Мне понравилась возможность дальнейшего расширения. Баня, отличное решение для тех, кто планирует рост семьи или увеличение площади. Спасибо строителям за продуманность проекта.
Роман Курьяков 14 апреля 2025
Электричество расходуется экономно. Баня быстро нагревается и долго держит температуру. Компания предлагает действительно выгодные решения. Особенно рад, что все оборудование было протестировано перед сдачей.
Кирилл Орлов 14 апреля 2025
Отделка выполнена аккуратно, без щелей и неровностей. Команда строителей заслуживает уважения за внимание к каждой детали.

Ждём вас в любом из наших офисов

Сартаково

Нижний Новгород, СТ Родник, 7

Больше вариантов

Вопросы и ответы

Основной утеплитель — минвата Технониколь или эковата. Оба материала безопасны, эффективны и подходят для бани.
Стыки и примыкания проклеиваются специальной самоклеящейся лентой для защиты от протечек.
Система отвода конденсата есть — через дренажные отверстия и гидроизоляцию конструкций.
Сечение проводов — не менее 2,5 мм? для розеток и 1,5 мм? для освещения.
Парная рассчитана на 2–6 человек — площадью от 6 м?.
Транспортировка материалов к участку учитывается в смете.
Каркасная баня 4×4 одноэтажная, под ключ в Нижнем Новгороде, фото 1

Каркасная баня 4х6 с комнатой отдыха и террасой

×
Интерактивная карта Нижегородской области
Тоншаево Ветлуга Урень Тонкино Шаранга Варнавино Ковернино Городец Балахна Володарск Павлово Сосновское Вача Кулебаки Выкса Дивеево Лукоянов Починки Пильна Сергач Первомайск Гагино Богородск Шатки Арзамас Саров Княгинино Бутурлино Лысково Спасское Воротынец Перевоз Большое Мурашкино Ардатов Уразовка Сеченово Чкаловск Заволжье Сокольское Красные баки Воскресенское Семенов Бор Кстово Нижний Новгород Кстово Дзержинск Дальнее Константиново Шахунья Вад Вознесенское Большое Болдино Навашино
Заявка на проект
Введите телефон и мы перезвоним Вам в течение 3х минут, чтобы обсудить детали
Кредит на строительство
Условия кредитования
  • Ставка 14,5%
  • Сумма до 5 000 000 руб.
  • Срок от 6 до 60 месяцев
  • Решение за 30 минут
  • Персональный менеджер 24/7

Используйте материнский капитал на строительство частного дома независимо от возраста ребенка!

(согласно ФЗ-256 от 29.12.2006 г.)
Бесплатный выезд специалиста
Введите телефон и мы перезвоним
Вам в течение 3х минут
Запись на посещение
Введите телефон и мы перезвоним
Вам в течение 3х минут
Задайте ваш вопрос
И мы перезвоним вам с ответом!
Оставаясь на сайте, вы соглашаетесь на использование файлов куки и передачей данных службам веб-аналитики
5% скидка до 28 февраля!