Нижний Новгород, СТ Родник, 7

Нижний Новгород, ул. Ларина, 27

Нижний Новгород, СТ Родник, 7

Пн-Пт 10-18 ч.

Нижний Новгород, СТ Родник, 7

Нижний Новгород, ул. Ларина, 27

Дачный дом 6х5 с 1 комнатой

Проект DK1/3

Экономия: 20 000 ₽

401 000  421 000 

  • Металлочерепица в подарок
  • Скидка на винтовые сваи 50%
  • Цена не вырастет во время стройки

Скидка на сваи 50%!

Строительство под ключ 2 дня

Нижний Новгород и область

Есть вопросы?

Специалист СК “Надёжность”
поможет с выбором

Описание

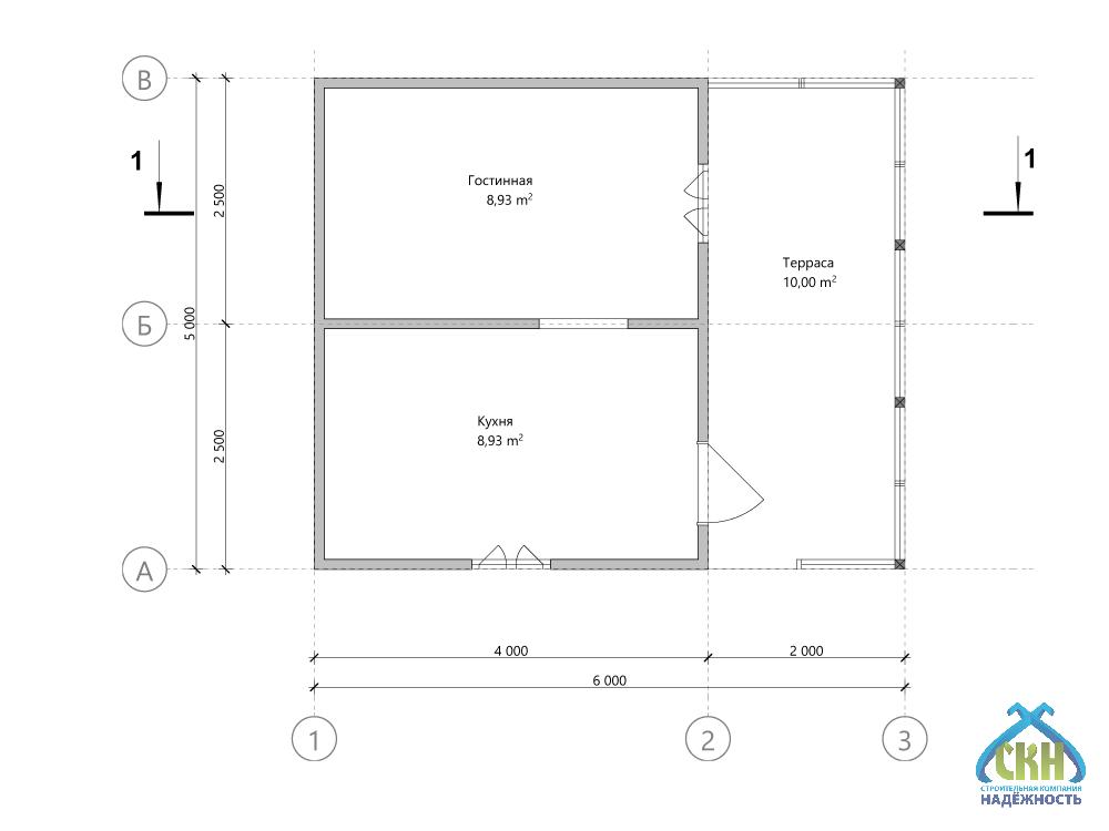
Каркасный дачный дом 6х5 отлично подходит для комфортного отдыха за городом. Общая площадь составляет 27,9 кв. м. включая жилую зону, просторную кухню и большую террасу 10,0 кв. м.. В доме один этаж с продуманной планировкой: спальня кухня-гостиная и удобный выход на террасу. Двухскатная крыша выглядит современно и повышает устойчивость к непогоде. Каркасная технология обеспечивает быстрое строительство без потери качества и комфорта. Проект сочетает практичность долговечность и выгодную цену что делает его отличным вариантом для дачи или постоянного проживания. Доставка осуществляется в течение 30 дней — осталось только выбрать проект и начать новую загородную главу.

Смотрите как мы строим
подобные проекты

Проект

АтрибутЗначение
Типлетние
Размеры, м5x6
Кол. этажей1
Конструкциятерраса
Крышадвухскатная
Кол. спален1
Оснащениекухня-гостиная
Стильрусский
Технологиякаркасная
ПомещениеПлощадь
Общая27,9 м²
Жилая8,9 м²
Кухня8,9 м²
Терраса10 м²

Комплектация

Состав комплектации
Внешний контур
421 000 ₽
401 000 ₽
Закрытый контур
630 000 ₽
600 000 ₽
Дача под ключ
883 000 ₽
841 000 ₽
Высота - 1-й этаж 2,4 м
Силовой каркас - наружние и внутренние стены 50х100 мм, лаги цокольного перекрытия 50х150 мм, лаги потолка и стропильной системы 50х100 мм, с шагом 590 мм.
Кровельное покрытие - Профилированный лист (окрашенный) 0,4 мм, устройство обрешетки, контробрешетки и гидроизоляции.
Устройство карнизов, подшив кровельных свесов - евровагонка (хвоя) 12,5х88 мм.
Внешняя отделка фасада - ориентировано-стружечная плита 9 мм с устройством вентилируемого зазора и ветровлагозащитой.
Внешняя отделка фасада - имитация бруса 16х135 мм с устройством вентилируемого зазора и ветровлагозащитой.
Внутренняя отделка - евровагонка (хвоя) 12,5х88 мм.
Настил пола - шпунтованная доска 36 мм с утеплением 100 мм минеральная вата Knauf Insulation 11-13 кг/м3.
Утепление внешних и внутренних стен, перекрытий 100 мм - минеральная вата Knauf Insulation 11-13 кг/м3
Окна ПВХ, ширина профиля 60 мм, двухкамерный стеклопакет с металлическими отливами.
Дверь входная металлическая, с одним замком.

Дополнительные услуги

150 000 ₽
102 000 ₽
72 000 ₽
27 000 ₽

Бесплатный выезд специалиста

Оплата

  • Способы оплаты Наличными деньгами в кассу офиса компании или банковский перевод на расчетный счет компании.

  • Этапы оплаты Оплата комплекса услуг по строительству вашего дома или бани проходит в три этапа. Суммы фиксируются в договоре подряда на строительство с указанием сроков, это гарантирует заказчикам, что цена не вырастет во время стройки.

  • Оплата в кредит Мы работаем с многими банками партнерами. Подать заявку на оформление кредита можно в офисе компании или по телефону. Одобрение заявки занимает 30 минут.

Информирование

Еженедельный фото или видеоотчет в любом удобном для вас канале: почта, мессенджеры. Прораб ждет Вас на участке строительства в удобное для Вас время по договоренности.

Доставка

СК Надёжность возьмет на себя полный комплекс услуг по доставке, погрузке и разгрузке материалов до места строительства на Вашем участке в Нижнем Новгороде или Нижегородской области. 

Стоимость рассчитывается индивидуально на каждый объект менеджером в зависимости от веса груза, типа транспортного средства и километража.

Сроки строительства

Сроки строительства составляют от двух недель до двух месяцев в зависимости от размеров объекта и объема работ. При составлении договора подряда сроки указываются на момент оформления документов.

Гарантия

Современные технологии и качественный материал позволяет дать гарантию для наших клиентов 5 лет.

Посетите нашу выставочную площадку

Нижегородская область, Богородский район, СТ Родник, 7

Преимущества строительной компании Надёжность

Строительство дачного дома под ключ

Проектирование, изготовление, транспортировка, монтаж, инженерные коммуникации, утепление, отделка

Кредит за 30 минут

Только паспорт и СНИЛС Использование материнского капитала для детей любого возраста

Профессиональный подход

Рекомендации специалистов на всех этапах от выбора фундамента до планирования интерьера

Собственное производство

Все комплектующие в наличии, срочная замена в случае необходимости

Контроль качества

Система контроля качества на всех этапах: производства, сушки, хранения, транспортировки, отгрузки

Технический надзор

Закрепленный прораб на объекте, опытные рабочие, высокое качество работ!

Выполненные проекты

Отзывы

Поделитесь вашим мнением

Ваш отзыв поможет другим покупателям сделать правильный выбор!

Диана Бикбаева 03 апреля 2025
Компания следит за трендами, применили современные решения в строительстве. Благодарю за вашу готовность вносить корректировки в процессе строительства дачи. Окон в доме достаточно, светло, просторно и уютно в любой комнате.
Петр Шамарданов 07 марта 2025
Многоуважаемые, выражаю вам искреннюю благодарность за нашу новую дачу. Продуманная вентиляция обеспечивает постоянный приток свежего воздуха. Хорошая команда специалистов, знают своё дело и подходят к работе с душой.
Наталья Ковалёва 07 февраля 2025
Особенно порадовало честное отношение к цене, никаких скрытых платежей. Отмечаю важным ваш профессиональный уровень и компетентность при сборке дома. Планировка продумана до мелочей, каждое пространство используется с умом.
Даниил Шепель 22 ноября 2024
Спасибо огромное за шумоизоляцию - даже в непогоду в доме тихо и уютно. Правильная отделка сыграла ключевую роль. Теперь любим проводить вечера дома.
Алия Гришина 12 сентября 2024
Высота потолков добавляет ощущение свободы и воздушности в интерьере. После сдачи помогли составить график технического обслуживания, теперь всё под контролем. Признательна за вашу способность видеть красоту в каждом элементе дачного дома.

Ждём вас в любом из наших офисов

Сартаково

Нижний Новгород, СТ Родник, 7

Больше вариантов

Вопросы и ответы

Все наши работы полностью соответствуют СНиП и ГОСТ. Проекты проходят экспертизу, а строители следят за соблюдением норм на каждом этапе.
Постоянно проводим обучение: раз в квартал тренинги по новым материалам, технологиям и вопросам безопасности. Также есть доступ к базе знаний и онлайн-курсам.
Да, техническая поддержка доступна на всех этапах строительства дачного дома. Вы всегда можете задать вопрос прорабу или своему менеджеру.
Да, у нас есть готовые объекты, которые вы можете посетить. Также можем отправить фото- и видеоматериалы с завершённых проектов.
Да, технология «тёплого угла» применяется во всех наших проектах. Это помогает избежать образования холодных мостиков и конденсата.
Да, дачный дом спроектирован так, чтобы его было легко запустить после длительного простоя: автоматический обогрев труб, антипромерзание и защита от конденсата.
Дачный дом 4х5 одноэтажный 1 комната, под ключ в Нижнем Новгороде, фото 1

Дачный дом 6х5 с 1 комнатой

×

Интерактивная карта Нижегородской области

Тоншаево Ветлуга Урень Тонкино Шаранга Варнавино Ковернино Городец Балахна Володарск Павлово Сосновское Вача Кулебаки Выкса Дивеево Лукоянов Починки Пильна Сергач Первомайск Гагино Богородск Шатки Арзамас Саров Княгинино Бутурлино Лысково Спасское Воротынец Перевоз Большое Мурашкино Ардатов Уразовка Сеченово Чкаловск Заволжье Сокольское Красные баки Воскресенское Семенов Бор Кстово Нижний Новгород Кстово Дзержинск Дальнее Константиново Шахунья Вад Вознесенское Большое Болдино Навашино
Заявка на проект
Введите телефон и мы перезвоним Вам в течение 3х минут, чтобы обсудить детали

Каталог

Страницы

5% скидка до 31 января!
Кредит на строительство
Условия кредитования
  • Ставка 14,5%
  • Сумма до 5 000 000 руб.
  • Срок от 6 до 60 месяцев
  • Решение за 30 минут
  • Персональный менеджер 24/7

Используйте материнский капитал на строительство частного дома независимо от возраста ребенка!

(согласно ФЗ-256 от 29.12.2006 г.)
Бесплатный выезд специалиста
Введите телефон и мы перезвоним
Вам в течение 3х минут
Запись на посещение
Введите телефон и мы перезвоним
Вам в течение 3х минут
Задайте ваш вопрос
И мы перезвоним вам с ответом!

Оставаясь на сайте, вы соглашаетесь на использование файлов куки и передачей данных службам веб-аналитики