Дачный дом 4х6 с двухскатной крышей

Проект DK1/10
Цена актуальна: 10.04.2026
Скидка: 20 000 ₽

413 000  450 000 

  • Металлочерепица в подарок
  • Скидка на винтовые сваи 50%
  • Цена не вырастет во время стройки
Строительство под ключ 2 дня
Нижний Новгород и область

Описание

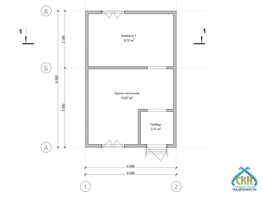
Строительная компания «Надёжность» предлагает строительство дачного дома 4х6 под ключ в Нижнем Новгороде и области. Дом компактного формата подходит для сезонного или постоянного проживания. Общий метраж составляет 20,9 квадратных метров. Пространство для жизни 8,7 квадрата. Одноэтажная конструкция включает 1 спальню и объединённую зону кухни с гостиной. Наличие крыши двухскатного типа обеспечивает устойчивость к осадкам. Пространство холла занимает 2,1 квадрата. На участке предусмотрен удобный выход на улицу через крыльцо. Стоимость строительства остаётся доступной благодаря собственному производству бруса для каркасного домостроения, оптовой закупке комплектующих и типовому проекту. Отдых на природе станет ежедневным удовольствием благодаря удачной планировке помещений.

Смотрите как мы строим
подобные проекты

Проект

АтрибутЗначение
Типдачные
Размеры, м4x6
Кол. этажей1
Конструкциякухня-гостиная
Крышадвухскатная
Кол. спален1
Технологиякаркасная
Стильклассический
ПомещениеПлощадь
Общая20,90 м²
Жилая8,72 м²
Кухня10,07 м²
Тамбур2,11 м²

Комплектация

Состав комплектации
Внешний контур
450 000 ₽
413 000 ₽
Закрытый контур
670 000 ₽
615 000 ₽
Дача под ключ
954 000 ₽
876 000 ₽
Высота - 1-й этаж 2,4 м. Силовой каркас - наружние и внутренние стены 50х100 мм, лаги цокольного перекрытия 50х150 мм, лаги потолка и стропильной системы 50х100 мм, с шагом 590 мм.
Кровельное покрытие - Профилированный лист (окрашенный) 0,4 мм, устройство обрешетки, контробрешетки и гидроизоляции.
Устройство карнизов, подшив кровельных свесов - евровагонка (хвоя).
Внешняя отделка фасада - OSB с устройством вентилируемого зазора и ветровлагозащитой.
Внешняя отделка фасада - имитация бруса с устройством вентилируемого зазора и ветровлагозащитой.
Внутренняя отделка - евровагонка (хвоя).
Настил пола - шпунтованная доска 36 мм с утеплением 100 мм минеральная вата Knauf Insulation.
Утепление внешних и внутренних стен, перекрытий 100 мм - минеральная вата Knauf Insulation.
Окна ПВХ, ширина профиля 60 мм, двухкамерный стеклопакет с металлическими отливами.
Дверь входная металлическая, с двумя замками.

Дополнительные услуги

150 000 ₽
102 000 ₽
72 000 ₽
27 000 ₽
Бесплатный выезд специалиста

Оплата

  • Способы оплаты
    Наличными деньгами в кассу офиса компании или банковский перевод на расчетный счет компании.
  • Этапы оплаты
    Оплата комплекса услуг по строительству вашего дома или бани проходит в три этапа. Суммы фиксируются в договоре подряда на строительство с указанием сроков, это гарантирует заказчикам, что цена не вырастет во время стройки.
  • Оплата в кредит
    Мы работаем с многими банками партнерами. Подать заявку на оформление кредита можно в офисе компании или по телефону. Одобрение заявки занимает 30 минут.

Информирование

Еженедельный фото или видеоотчет в любом удобном для вас канале: почта, мессенджеры. Прораб ждет Вас на участке строительства в удобное для Вас время по договоренности.

Доставка

СК Надёжность возьмет на себя полный комплекс услуг по доставке, погрузке и разгрузке материалов до места строительства на Вашем участке в Нижнем Новгороде или Нижегородской области.  Стоимость рассчитывается индивидуально на каждый объект менеджером в зависимости от веса груза, типа транспортного средства и километража.

Сроки строительства

Сроки строительства составляют от двух недель до двух месяцев в зависимости от размеров объекта и объема работ. При составлении договора подряда сроки указываются на момент оформления документов.

Гарантия

Современные технологии и качественный материал позволяет дать гарантию для наших клиентов 5 лет.

Посетите нашу выставочную площадку

Нижегородская область, Богородский район, СТ Родник, 7

Преимущества строительной компании Надёжность

Строительство дачного дома под ключ

Проектирование, изготовление, транспортировка, монтаж, инженерные коммуникации, утепление, отделка

Кредит за 30 минут

Только паспорт и СНИЛС Использование материнского капитала для детей любого возраста

Профессиональный подход

Рекомендации специалистов на всех этапах от выбора фундамента до планирования интерьера

Собственное производство

Все комплектующие в наличии, срочная замена в случае необходимости

Контроль качества

Система контроля качества на всех этапах: производства, сушки, хранения, транспортировки, отгрузки

Технический надзор

Закрепленный прораб на объекте, опытные рабочие, высокое качество работ!

Выполненные проекты

Отзывы

Поделитесь вашим мнением

Ваш отзыв поможет другим покупателям сделать правильный выбор!

Евгения Сурикова 19 февраля 2026
Нижний Новгород
Осталась в восторге от строительства каркасного дачного дома. Я опасалась, что придётся жить на стройке, но мой контроль был минимальным: всего один визит за всё время, а все вопросы решались в чате. Бригада работала максимально самостоятельно и профессионально, не дергая меня по мелочам и грамотно принимая решения на месте. Отдельное спасибо за аккуратность. В итоге, получила теплый дом без седых волос. Рекомендую тем, кто ценит своё время и нервы!
Вениамин Королёв 15 июня 2025
Дзержинск
Спасибо за помощь в выборе участка, советы оказались очень полезны. Искренне благодарен за вашу индивидуальную работу с заказчиком по дачному дому. Подходит для зимнего проживания благодаря хорошему утеплению и отоплению.
Екатерина Васильева 22 апреля 2025
Нижний Новгород
Не могу не поблагодарить за такой превосходный результат в строительстве дачи. Планировка очень удачная, каждое помещение используется максимально эффективно. Не ожидал такого результата за столь короткий срок, молодцы!
Богдан Беляев 19 апреля 2025
Нижний Новгород
Были предоставлены бесплатные консультации ещё до начала работ, это очень ценно. Горячо ценю вашу самоотдачу и ответственность за результат при строительстве дачи. Состояние кровли без нареканий: никаких протечек даже после сильного дождя.
Егор Вишнёв 05 января 2025
Нижний Новгород
Многое значит, что используются современные технологии. Дом получился стильным и технологичным. Впечатляет качество сборки и подход к деталям. Рекомендую!

Ждём вас в любом из наших офисов

Сартаково
Нижний Новгород, СТ Родник, 7

Больше вариантов

Вопросы и ответы

При проектировании учитываем климатические особенности региона: снеговые нагрузки, ветровое давление и глубину промерзания грунта. Это влияет на выбор кровельного материала и толщину утепления.
Безопасность на стройплощадке контролируется ежедневно. Работы проводятся с защитными средствами, инструктажи проводятся перед каждой сменой.
На каждом этапе проводятся промежуточные проверки: сборка каркаса, установка коммуникаций, утепление, кровля. Контролируем качество прораб и инженер технадзора.
Конечно, можем адаптировать внешний вид дачного дома под стиль деревни, гор или леса. Цвет, форма, отделка фасада подбираются индивидуально.
Контроль качества ведёт прораб и инженер технадзора. На каждом этапе фиксируются акты скрытых работ и фотофиксация, чтобы всё было прозрачно и понятно.
Каркасный дом легко демонтировать и собрать повторно. Такие дома часто используют как мобильные дачи или перевозят на новый участок.
Дачный дом 4х6 одноэтажный с двухскатной крышей, под ключ в Нижнем Новгороде, фото 1

Дачный дом 4х6 с двухскатной крышей

×
Интерактивная карта Нижегородской области
Тоншаево Ветлуга Урень Тонкино Шаранга Варнавино Ковернино Городец Балахна Володарск Павлово Сосновское Вача Кулебаки Выкса Дивеево Лукоянов Починки Пильна Сергач Первомайск Гагино Богородск Шатки Арзамас Саров Княгинино Бутурлино Лысково Спасское Воротынец Перевоз Большое Мурашкино Ардатов Уразовка Сеченово Чкаловск Заволжье Сокольское Красные баки Воскресенское Семенов Бор Кстово Нижний Новгород Кстово Дзержинск Дальнее Константиново Шахунья Вад Вознесенское Большое Болдино Навашино
Заявка на проект
Введите телефон и мы перезвоним Вам в течение 3х минут, чтобы обсудить детали
8% скидка до 30 апреля 2026!
Задайте ваш вопрос
И мы перезвоним вам с ответом!
Кредит на строительство
Условия кредитования
  • Ставка 14,5%
  • Сумма до 5 000 000 руб.
  • Срок от 6 до 60 месяцев
  • Решение за 30 минут
  • Персональный менеджер 24/7

Используйте материнский капитал на строительство частного дома независимо от возраста ребенка!

(согласно ФЗ-256 от 29.12.2006 г.)
Бесплатный выезд специалиста
Введите телефон и мы перезвоним
Вам в течение 3х минут
Запись на посещение
Введите телефон и мы перезвоним
Вам в течение 3х минут
Согласен на использование файлов куки