Нижний Новгород, СТ Родник, 7

Нижний Новгород, ул. Ларина, 27

Нижний Новгород, СТ Родник, 7

Пн-Пт 10-18 ч.

Нижний Новгород, СТ Родник, 7

Нижний Новгород, ул. Ларина, 27

Дачный дом 11,5х9 с котельной

Проект DK2/23

Экономия: 56 000 ₽

1 104 000  1 160 000 

  • Металлочерепица в подарок
  • Скидка на винтовые сваи 50%
  • Цена не вырастет во время стройки

Скидка на сваи 50%!

Строительство под ключ 3 дня

Нижний Новгород и область

Есть вопросы?

Специалист СК “Надёжность”
поможет с выбором

Описание

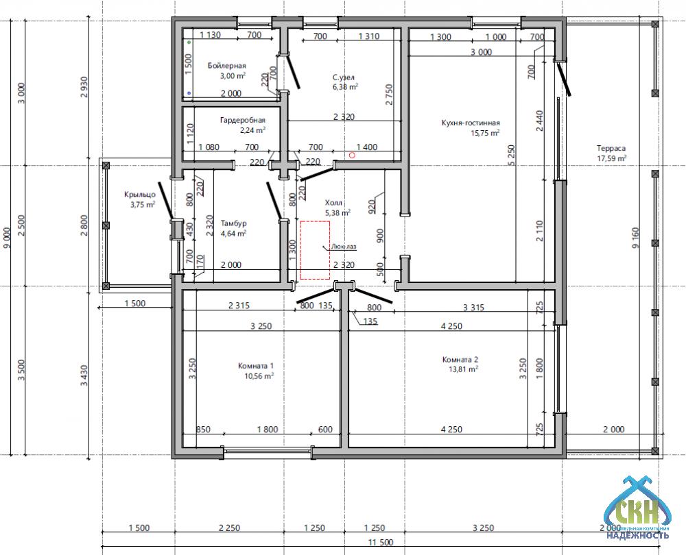
Каркасный дачный дом размером 11,5х9 метров предлагает современное и комфортное проживание с продуманной планировкой на 83 квадратных метра. В проект входят две уютные спальни, светлая кухня гостиная, удобный санузел, вместительный холл и отдельная котельная, обеспечивающая автономность инженерных систем и возможность использования дома в зимнее время года, а кладовая повышает практичность. Просторная терраса почти 18 кв. м. создает зону для отдыха и встреч гостей. С другой стороны дома имеется отдельный вход через крыльцо, что очень удобно при выходе на приусадебный участок позади дома. Строительство производится по отлаженным технологиям, что гарантирует его надежность, энергоэффективность и долговечность. Вальмовая крыша придает строению эстетичный внешний вид. Тамбур защитит от непогоды. Благодаря оперативности возведения — всего 14 дней — Вы быстро получите готовое жилье, сочетающее функциональность, стиль и выгодную цену.

Смотрите как мы строим
подобные проекты

Проект

АтрибутЗначение
Типлетние
Размеры, м9x12
Кол. этажей1
Конструкциякрыльцо
Крышавальмовая
Кол. спален2
Оснащениекухня-гостиная
Сан. узел1
Стильрусский
Технологиякаркасная
ПомещениеПлощадь
Общая83,1 м²
Жилая24,37 м²
Кухня15,75 м²
Санузел6,38 м²
Холл5,38 м²
Терраса17,59 м²
Крыльцо3,75 м²
Тамбур4,64 м²
Котельная3 м²
Кладовая2,24 м²

Комплектация

Состав комплектации
Внешний контур
1 160 000 ₽
1 104 000 ₽
Закрытый контур
1 479 000 ₽
1 408 000 ₽
Дача под ключ
2 225 000 ₽
2 118 000 ₽
Высота - 1-й этаж 2,4 м
Силовой каркас - наружние и внутренние стены 50х100 мм, лаги цокольного перекрытия 50х150 мм, лаги потолка и стропильной системы 50х100 мм, с шагом 590 мм.
Кровельное покрытие - Профилированный лист (окрашенный) 0,4 мм, устройство обрешетки, контробрешетки и гидроизоляции.
Устройство карнизов, подшив кровельных свесов - евровагонка (хвоя) 12,5х88 мм.
Внешняя отделка фасада - ориентировано-стружечная плита 9 мм с устройством вентилируемого зазора и ветровлагозащитой.
Внешняя отделка фасада - имитация бруса 16х135 мм с устройством вентилируемого зазора и ветровлагозащитой.
Внутренняя отделка - евровагонка (хвоя) 12,5х88 мм.
Настил пола - шпунтованная доска 36 мм с утеплением 100 мм минеральная вата Knauf Insulation 11-13 кг/м3.
Утепление внешних и внутренних стен, перекрытий 100 мм - минеральная вата Knauf Insulation 11-13 кг/м3
Окна ПВХ, ширина профиля 60 мм, двухкамерный стеклопакет с металлическими отливами.
Дверь входная металлическая, с одним замком.

Дополнительные услуги

150 000 ₽
170 000 ₽
120 000 ₽
63 000 ₽

Бесплатный выезд специалиста

Оплата

  • Способы оплаты Наличными деньгами в кассу офиса компании или банковский перевод на расчетный счет компании.

  • Этапы оплаты Оплата комплекса услуг по строительству вашего дома или бани проходит в три этапа. Суммы фиксируются в договоре подряда на строительство с указанием сроков, это гарантирует заказчикам, что цена не вырастет во время стройки.

  • Оплата в кредит Мы работаем с многими банками партнерами. Подать заявку на оформление кредита можно в офисе компании или по телефону. Одобрение заявки занимает 30 минут.

Информирование

Еженедельный фото или видеоотчет в любом удобном для вас канале: почта, мессенджеры. Прораб ждет Вас на участке строительства в удобное для Вас время по договоренности.

Доставка

СК Надёжность возьмет на себя полный комплекс услуг по доставке, погрузке и разгрузке материалов до места строительства на Вашем участке в Нижнем Новгороде или Нижегородской области. 

Стоимость рассчитывается индивидуально на каждый объект менеджером в зависимости от веса груза, типа транспортного средства и километража.

Сроки строительства

Сроки строительства составляют от двух недель до двух месяцев в зависимости от размеров объекта и объема работ. При составлении договора подряда сроки указываются на момент оформления документов.

Гарантия

Современные технологии и качественный материал позволяет дать гарантию для наших клиентов 5 лет.

Посетите нашу выставочную площадку

Нижегородская область, Богородский район, СТ Родник, 7

Преимущества строительной компании Надёжность

Строительство дачного дома под ключ

Проектирование, изготовление, транспортировка, монтаж, инженерные коммуникации, утепление, отделка

Кредит за 30 минут

Только паспорт и СНИЛС Использование материнского капитала для детей любого возраста

Профессиональный подход

Рекомендации специалистов на всех этапах от выбора фундамента до планирования интерьера

Собственное производство

Все комплектующие в наличии, срочная замена в случае необходимости

Контроль качества

Система контроля качества на всех этапах: производства, сушки, хранения, транспортировки, отгрузки

Технический надзор

Закрепленный прораб на объекте, опытные рабочие, высокое качество работ!

Выполненные проекты

Отзывы

Поделитесь вашим мнением

Ваш отзыв поможет другим покупателям сделать правильный выбор!

Ираида Зарянина 10 января 2026
Шикарный зимний садовый дом, в котором есть абсолютно всё! Наш дачный дом гораздо шире, богаче и функциональней квартиры! А запах просто волшебный! Место, которое создано, чтобы отдыхать и наслаждаться жизнью! Спасибо за это команде СК "Надежность"!
Эдуард Забегин 30 мая 2025
Не люблю хлопоты, поэтому выбрал вариант с минимальным уходом. Всё работает само собой — и очень доволен этим. Строители собрали всё чисто и без лишней суеты. Именно то, что нужно для спокойного отдыха.
Родион Андреев 30 апреля 2025
Проект был адаптирован под сезонные особенности, зимой в доме тепло, летом, прохладно. Ценю вашу готовность объяснить и показать, как работает система в дачном доме. Утепление выполнено качественно, холод не пробирается даже в лютый мороз.
Арсен Абдуллин 10 апреля 2025
Этажность позволяет рационально использовать пространство без потери уюта. Участок был труднодоступным, но компания справилась с логистикой без проблем. Приятно сотрудничать с теми, кто относится к делу с душой при постройке каркасного дома.
Артём Рожков 16 сентября 2024
Отлично организован весь процесс строительства, всё шло чётко по графику, без задержек и неразберихи. Дом получился таким, что даже соседи начали интересоваться, рекомендую эту компанию. Благодарю за качественную реализацию проекта дачного дома под ключ.

Ждём вас в любом из наших офисов

Сартаково

Нижний Новгород, СТ Родник, 7

Больше вариантов

Вопросы и ответы

Для звукоизоляции между комнатами используем минвату повышенной плотности и мембранные материалы. Стены собираются с двусторонней обшивкой.
Да, корректировки в проект возможно вносить даже во время строительства. Например, изменить расположение окон, добавить террасу или изменить планировку. Нужно согласовать изменения с инженерами.
Конечно, мы предлагаем долгосрочные контракты на обслуживание дачного дома — от 1 до 5 лет. Это удобно, если вы хотите быть уверены в техподдержке на несколько сезонов вперед.
Да, после завершения строительства мы обучаем клиента: как использовать системы, провести консервацию, подготовить дом к сезону.
Управление проектом — через Trello и внутреннюю систему учёта задач. Вы всегда видите статус работ и можете связаться с командой.
Да, мы используем утеплитель ТехноНиколь с сохранением свойств до 25 лет. Монтаж проводится с пароизоляцией, чтобы избежать намокания.

Дачный дом 11,5х9 с котельной

×

Интерактивная карта Нижегородской области

Тоншаево Ветлуга Урень Тонкино Шаранга Варнавино Ковернино Городец Балахна Володарск Павлово Сосновское Вача Кулебаки Выкса Дивеево Лукоянов Починки Пильна Сергач Первомайск Гагино Богородск Шатки Арзамас Саров Княгинино Бутурлино Лысково Спасское Воротынец Перевоз Большое Мурашкино Ардатов Уразовка Сеченово Чкаловск Заволжье Сокольское Красные баки Воскресенское Семенов Бор Кстово Нижний Новгород Кстово Дзержинск Дальнее Константиново Шахунья Вад Вознесенское Большое Болдино Навашино
Заявка на проект
Введите телефон и мы перезвоним Вам в течение 3х минут, чтобы обсудить детали

Каталог

Страницы

5% скидка до 31 января!
Кредит на строительство
Условия кредитования
  • Ставка 14,5%
  • Сумма до 5 000 000 руб.
  • Срок от 6 до 60 месяцев
  • Решение за 30 минут
  • Персональный менеджер 24/7

Используйте материнский капитал на строительство частного дома независимо от возраста ребенка!

(согласно ФЗ-256 от 29.12.2006 г.)
Бесплатный выезд специалиста
Введите телефон и мы перезвоним
Вам в течение 3х минут
Запись на посещение
Введите телефон и мы перезвоним
Вам в течение 3х минут
Задайте ваш вопрос
И мы перезвоним вам с ответом!

Оставаясь на сайте, вы соглашаетесь на использование файлов куки и передачей данных службам веб-аналитики