Дачный дом 8х6 на 3 комнаты

Проект DK2/17
Цена актуальна: 10.04.2026
Скидка: 50 000 ₽

1 016 000  1 108 000 

  • Металлочерепица в подарок
  • Скидка на винтовые сваи 50%
  • Цена не вырастет во время стройки
Строительство под ключ 4 дня
Нижний Новгород и область

Описание

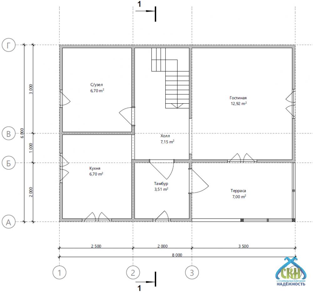
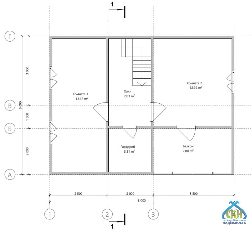
Строительная компания «Надёжность» предлагает строительство дачного дома 8х6 под ключ в Нижнем Новгороде и области. Проект двухэтажного дома рассчитан на максимальное удобство. Общая площадь равна 87 квадратных метров. Жилая площадь составляет 39 квадратов. В доме 3 спальни. Балкон с кукушкой добавляет внешнюю привлекательность. Мансарда используется как полноценное помещение. Двухскатная крыша обеспечивает сход снежного покрова без участия жильцов. Наша компания зарекомендовала себя надежным застройщиком, который берет на себя ответственность за выполнение всех обязательств по договору. Поможем с оформлением кредита, принимаем материнский капитал. На заказ сдадим дом в полном оснащении: фундамент, закрытый контур, прокладка электричества, водоснабжения, канализации, внутренняя и внешняя отделка. Живите и отдыхайте круглый год с комфортом!

Смотрите как мы строим
подобные проекты

Проект

АтрибутЗначение
Типдачные
Размеры, м6x8
Кол. этажей2
Конструкциябалкон, терраса, кладовая, тамбур
Крышадвухскатная
Кол. спален3
Сан. узел1
Технологиякаркасная
Стильклассический
ПомещениеПлощадь
Общая86,91 м²
Жилая38,99 м²
Кухня6,59 м²
Санузел6,59 м²
Холл14,02 м²
Терраса7,00 м²
Тамбур3,48 м²
Балкон6,76 м²
Кладовая3,48 м²

Комплектация

Состав комплектации
Внешний контур
1 108 000 ₽
1 016 000 ₽
Закрытый контур
1 589 000 ₽
1 458 000 ₽
Дача под ключ
2 605 000 ₽
2 390 000 ₽
Высота - 1-й этаж 2,4 м. Силовой каркас - наружние и внутренние стены 50х100 мм, лаги цокольного перекрытия 50х150 мм, лаги потолка и стропильной системы 50х100 мм, с шагом 590 мм.
Кровельное покрытие - Профилированный лист (окрашенный) 0,4 мм, устройство обрешетки, контробрешетки и гидроизоляции.
Устройство карнизов, подшив кровельных свесов - евровагонка (хвоя).
Внешняя отделка фасада - OSB с устройством вентилируемого зазора и ветровлагозащитой.
Внешняя отделка фасада - имитация бруса с устройством вентилируемого зазора и ветровлагозащитой.
Внутренняя отделка - евровагонка (хвоя).
Настил пола - шпунтованная доска 36 мм с утеплением 100 мм минеральная вата Knauf Insulation.
Утепление внешних и внутренних стен, перекрытий 100 мм - минеральная вата Knauf Insulation.
Окна ПВХ, ширина профиля 60 мм, двухкамерный стеклопакет с металлическими отливами.
Дверь входная металлическая, с двумя замками.

Дополнительные услуги

150 000 ₽
170 000 ₽
120 000 ₽
110 000 ₽
Бесплатный выезд специалиста

Оплата

  • Способы оплаты
    Наличными деньгами в кассу офиса компании или банковский перевод на расчетный счет компании.
  • Этапы оплаты
    Оплата комплекса услуг по строительству вашего дома или бани проходит в три этапа. Суммы фиксируются в договоре подряда на строительство с указанием сроков, это гарантирует заказчикам, что цена не вырастет во время стройки.
  • Оплата в кредит
    Мы работаем с многими банками партнерами. Подать заявку на оформление кредита можно в офисе компании или по телефону. Одобрение заявки занимает 30 минут.

Информирование

Еженедельный фото или видеоотчет в любом удобном для вас канале: почта, мессенджеры. Прораб ждет Вас на участке строительства в удобное для Вас время по договоренности.

Доставка

СК Надёжность возьмет на себя полный комплекс услуг по доставке, погрузке и разгрузке материалов до места строительства на Вашем участке в Нижнем Новгороде или Нижегородской области.  Стоимость рассчитывается индивидуально на каждый объект менеджером в зависимости от веса груза, типа транспортного средства и километража.

Сроки строительства

Сроки строительства составляют от двух недель до двух месяцев в зависимости от размеров объекта и объема работ. При составлении договора подряда сроки указываются на момент оформления документов.

Гарантия

Современные технологии и качественный материал позволяет дать гарантию для наших клиентов 5 лет.

Посетите нашу выставочную площадку

Нижегородская область, Богородский район, СТ Родник, 7

Преимущества строительной компании Надёжность

Строительство дачного дома под ключ

Проектирование, изготовление, транспортировка, монтаж, инженерные коммуникации, утепление, отделка

Кредит за 30 минут

Только паспорт и СНИЛС Использование материнского капитала для детей любого возраста

Профессиональный подход

Рекомендации специалистов на всех этапах от выбора фундамента до планирования интерьера

Собственное производство

Все комплектующие в наличии, срочная замена в случае необходимости

Контроль качества

Система контроля качества на всех этапах: производства, сушки, хранения, транспортировки, отгрузки

Технический надзор

Закрепленный прораб на объекте, опытные рабочие, высокое качество работ!

Выполненные проекты

Отзывы

Поделитесь вашим мнением

Ваш отзыв поможет другим покупателям сделать правильный выбор!

Зульфия Насырова 24 июля 2025
Вад
Дом имеет отличную возможность для расширения, можно добавить комнаты или мансарду. Очень удобно, что дом спроектирован так, чтобы его легко было обслуживать даже одинокому. Искренне благодарен за вашу чуткость к нашим потребностям при проектировании дачного дома.
Вячеслав Костромин 13 июня 2025
Шахунья
Вы - большие молодцы! Дом окупается буквально за сезон. Если рассматриваете его как инвестицию - это отличный вариант. Просто, выгодно и надежно.
Валентина Чернова 18 мая 2025
Бутурлино
Ценю вашу порядочность и открытость при строительстве уютной дачи. Состояние самого дома радует, всё в рабочем порядке и без дефектов. Порадовало, что компания берётся за сложные задачи и выполняет их на отлично.
Ирина Казакова 15 января 2025
Богородск
Учитывали наши пожелания даже в мелочах, тактичность и внимание к клиенту. Благодарю за вашу энергичность и активную жизненную позицию при строительстве дачи. Выбранный тип отопления идеально подходит для такого типа строения.
Марина Муравьёва 02 декабря 2024
Семенов
Этажность даёт преимущество в организации пространства без потери уюта. Дом построен с учётом возможного ремонта в будущем, разводка коммуникаций продумана. Ценю вашу ответственность и аккуратность в работе с дачей.

Ждём вас в любом из наших офисов

Сартаково
Нижний Новгород, СТ Родник, 7

Больше вариантов

Вопросы и ответы

Основные материалы: LSTК-профиль, OSB Egger, утеплитель ТехноНиколь или эковата, пароизоляция Изоспан. Возможны альтернативы — например, сендвич-панели или деревянные перегородки.
Пароизоляция организована с помощью мембранных плёнок типа Изоспан AM или D. Все стыки проклеиваются двусторонним скотчем. Это защищает утеплитель от намокания и образования конденсата.
Да, дачный каркасный дом можно разобрать и перевезти. Такие дома часто используют как мобильные дачи или переезжают с участка на участок.
Наиболее долговечны виниловый сайдинг, фасадные панели и блокхаус с предварительной пропиткой. Они не боятся влаги, солнца и не требуют частого ремонта.
Используем экологически чистые материалы: древесина камерной сушки, утеплитель без формальдегида, безопасные антисептики и краски.
В каркасной технологии усадка минимальна — менее 1%. Мы используем сухую древесину и каркасную технологию, которая практически исключает деформации.
Дачный дом 6х8 двухэтажный 3 спальни, под ключ в Нижнем Новгороде, фото 1

Дачный дом 8х6 на 3 комнаты

×
Интерактивная карта Нижегородской области
Тоншаево Ветлуга Урень Тонкино Шаранга Варнавино Ковернино Городец Балахна Володарск Павлово Сосновское Вача Кулебаки Выкса Дивеево Лукоянов Починки Пильна Сергач Первомайск Гагино Богородск Шатки Арзамас Саров Княгинино Бутурлино Лысково Спасское Воротынец Перевоз Большое Мурашкино Ардатов Уразовка Сеченово Чкаловск Заволжье Сокольское Красные баки Воскресенское Семенов Бор Кстово Нижний Новгород Кстово Дзержинск Дальнее Константиново Шахунья Вад Вознесенское Большое Болдино Навашино
Заявка на проект
Введите телефон и мы перезвоним Вам в течение 3х минут, чтобы обсудить детали
8% скидка до 30 апреля 2026!
Задайте ваш вопрос
И мы перезвоним вам с ответом!
Кредит на строительство
Условия кредитования
  • Ставка 14,5%
  • Сумма до 5 000 000 руб.
  • Срок от 6 до 60 месяцев
  • Решение за 30 минут
  • Персональный менеджер 24/7

Используйте материнский капитал на строительство частного дома независимо от возраста ребенка!

(согласно ФЗ-256 от 29.12.2006 г.)
Бесплатный выезд специалиста
Введите телефон и мы перезвоним
Вам в течение 3х минут
Запись на посещение
Введите телефон и мы перезвоним
Вам в течение 3х минут
Согласен на использование файлов куки