Нижний Новгород, СТ Родник, 7

Нижний Новгород, ул. Ларина, 27

Нижний Новгород, СТ Родник, 7

Пн-Пт 10-18 ч.

Нижний Новгород, СТ Родник, 7

Нижний Новгород, ул. Ларина, 27

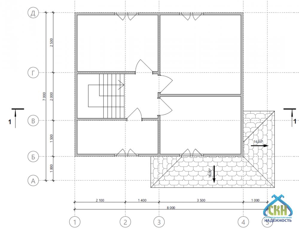
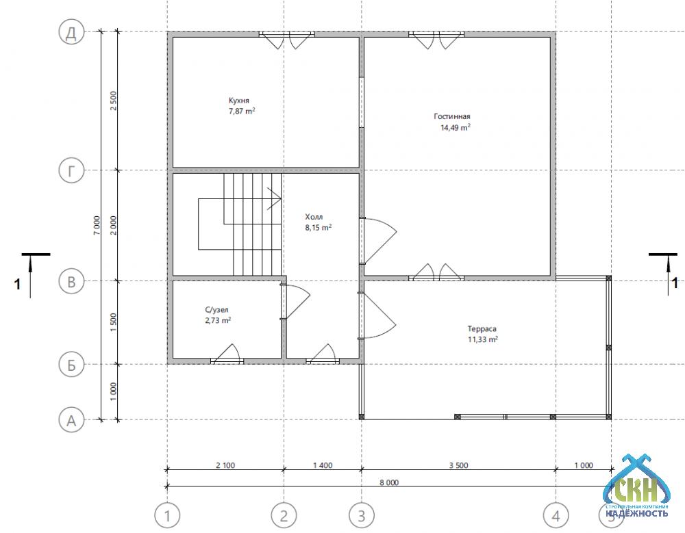
Дачный дом 8х7 на 4 комнаты

Проект DK2/14

Экономия: 45 000 ₽

898 000  943 000 

  • Металлочерепица в подарок
  • Скидка на винтовые сваи 50%
  • Цена не вырастет во время стройки

Скидка на сваи 50%!

Строительство под ключ 4 дня

Нижний Новгород и область

Есть вопросы?

Специалист СК “Надёжность”
поможет с выбором

Описание

Дом имеет два уровня и внушительную площадь. Объём недвижимости равен 81,3 квадратных метра. Площадь жилых помещений составляет 44,2 квадрата. В доме 4 спальни. Кухня отделена от гостиной. Два санузла обеспечивают комфорт для всех проживающих. Мансарда расширена за счёт конструкции крыши. Двухскатная форма сохраняет баланс между эстетикой и практичностью. Это подходящее место для дружеских встреч, где легко уместятся все гости. Можно часто устраивать ужины на свежем воздухе — за столом на террасе легко разместятся друзья и родственники.

Смотрите как мы строим
подобные проекты

Проект

АтрибутЗначение
Типлетние
Размеры, м7x8
Кол. этажей2
Конструкциятерраса
Крышадвухскатная
Кол. спален4
Стильсовременный
Технологиякаркасная
ПомещениеПлощадь
Общая81,3 м²
Жилая44,2 м²
Кухня7,9 м²
Санузел2,7 м²
Холл15,2 м²
Терраса11,3 м²

Комплектация

Состав комплектации
Внешний контур
943 000 ₽
898 000 ₽
Закрытый контур
1 352 000 ₽
1 287 000 ₽
Дача под ключ
2 260 000 ₽
2 152 000 ₽
Высота - 1-й этаж 2,4 м
Силовой каркас - наружние и внутренние стены 50х100 мм, лаги цокольного перекрытия 50х150 мм, лаги потолка и стропильной системы 50х100 мм, с шагом 590 мм.
Кровельное покрытие - Профилированный лист (окрашенный) 0,4 мм, устройство обрешетки, контробрешетки и гидроизоляции.
Устройство карнизов, подшив кровельных свесов - евровагонка (хвоя) 12,5х88 мм.
Внешняя отделка фасада - ориентировано-стружечная плита 9 мм с устройством вентилируемого зазора и ветровлагозащитой.
Внешняя отделка фасада - имитация бруса 16х135 мм с устройством вентилируемого зазора и ветровлагозащитой.
Внутренняя отделка - евровагонка (хвоя) 12,5х88 мм.
Настил пола - шпунтованная доска 36 мм с утеплением 100 мм минеральная вата Knauf Insulation 11-13 кг/м3.
Утепление внешних и внутренних стен, перекрытий 100 мм - минеральная вата Knauf Insulation 11-13 кг/м3
Окна ПВХ, ширина профиля 60 мм, двухкамерный стеклопакет с металлическими отливами.
Дверь входная металлическая, с одним замком.

Дополнительные услуги

150 000 ₽
204 000 ₽
144 000 ₽
100 000 ₽

Бесплатный выезд специалиста

Оплата

  • Способы оплаты Наличными деньгами в кассу офиса компании или банковский перевод на расчетный счет компании.

  • Этапы оплаты Оплата комплекса услуг по строительству вашего дома или бани проходит в три этапа. Суммы фиксируются в договоре подряда на строительство с указанием сроков, это гарантирует заказчикам, что цена не вырастет во время стройки.

  • Оплата в кредит Мы работаем с многими банками партнерами. Подать заявку на оформление кредита можно в офисе компании или по телефону. Одобрение заявки занимает 30 минут.

Информирование

Еженедельный фото или видеоотчет в любом удобном для вас канале: почта, мессенджеры. Прораб ждет Вас на участке строительства в удобное для Вас время по договоренности.

Доставка

СК Надёжность возьмет на себя полный комплекс услуг по доставке, погрузке и разгрузке материалов до места строительства на Вашем участке в Нижнем Новгороде или Нижегородской области. 

Стоимость рассчитывается индивидуально на каждый объект менеджером в зависимости от веса груза, типа транспортного средства и километража.

Сроки строительства

Сроки строительства составляют от двух недель до двух месяцев в зависимости от размеров объекта и объема работ. При составлении договора подряда сроки указываются на момент оформления документов.

Гарантия

Современные технологии и качественный материал позволяет дать гарантию для наших клиентов 5 лет.

Посетите нашу выставочную площадку

Нижегородская область, Богородский район, СТ Родник, 7

Преимущества строительной компании Надёжность

Строительство дачного дома под ключ

Проектирование, изготовление, транспортировка, монтаж, инженерные коммуникации, утепление, отделка

Кредит за 30 минут

Только паспорт и СНИЛС Использование материнского капитала для детей любого возраста

Профессиональный подход

Рекомендации специалистов на всех этапах от выбора фундамента до планирования интерьера

Собственное производство

Все комплектующие в наличии, срочная замена в случае необходимости

Контроль качества

Система контроля качества на всех этапах: производства, сушки, хранения, транспортировки, отгрузки

Технический надзор

Закрепленный прораб на объекте, опытные рабочие, высокое качество работ!

Выполненные проекты

Отзывы

Поделитесь вашим мнением

Ваш отзыв поможет другим покупателям сделать правильный выбор!

Алиса Никифорова 08 июля 2025
Фундамент крепкий и устойчивый, чувствуется профессиональный подход. Помогли с расстановкой мебели, неожиданный, но очень ценный бонус. Искренне благодарна за то, что создали по-настоящему уютную дачу.
Дарья Масленникова 21 апреля 2025
Документы оформлены грамотно и без задержек, всё прошло легко и официально. Особенная благодарность за чёткое планирование и исполнение при сборке каркаса. Санузел сделан с учётом всех удобств, пользоваться им одно удовольствие.
Марина Цветкова 31 марта 2025
После окончания работ участок выглядел так, словно стройки и не было, это редкость. Выражаю благодарность за вашу честную и справедливую ценовую политику на каркасную дачу. Внешний вид дома создаёт ощущение уюта и порядка, хочется возвращаться сюда снова.
Резеда Галиева 28 марта 2025
Заслуживает особого упоминания ваша слаженная коммуникация при работе над каркасом. Установленный тип отопления идеально подходит для такого каркасного дома. Выбрали компанию не случайно, их опыт и отзывы других клиентов сыграли ключевую роль.
Леонид Шереметев 19 января 2025
Признателен душой за удобство подключения воды, электричества и интернета. Каркасный дом - не препятствие для современных технологий. Все работает идеально.

Ждём вас в любом из наших офисов

Сартаково

Нижний Новгород, СТ Родник, 7

Больше вариантов

Вопросы и ответы

Да, внутренние перегородки легко демонтировать и переносить, так как они каркасные. Это позволяет со временем менять планировку без повреждения несущих стен.
Электропроводка прокладывается в штробах или кабель-каналах. После монтажа проводим тестирование автоматики, розеточных групп и УЗО. По окончании выдаём акт проверки электробезопасности.
Хозблок строим из тех же материалов, что и дом: LSTK, OSB, утеплитель. Но при желании клиента можно выбрать более экономичный вариант, например, сендвич-панели или сухой способ.
Сборка ведётся по технологическим картам и ГОСТам. Каждый узел проверяется прорабом и инженером технадзора. Проблем с качеством сборки у нас почти не бывает.
Все условия оплаты чётко указаны в договоре. Скрытых платежей нет, дополнительные работы согласовываются отдельно.
Стропильная система рассчитана на снеговую нагрузку вашего региона. Угол ската крыши подбирается так, чтобы снег скатывался сам.
Дачный дом 6х7 двухэтажный 4 спальни, под ключ в Нижнем Новгороде, фото 1

Дачный дом 8х7 на 4 комнаты

×

Интерактивная карта Нижегородской области

Тоншаево Ветлуга Урень Тонкино Шаранга Варнавино Ковернино Городец Балахна Володарск Павлово Сосновское Вача Кулебаки Выкса Дивеево Лукоянов Починки Пильна Сергач Первомайск Гагино Богородск Шатки Арзамас Саров Княгинино Бутурлино Лысково Спасское Воротынец Перевоз Большое Мурашкино Ардатов Уразовка Сеченово Чкаловск Заволжье Сокольское Красные баки Воскресенское Семенов Бор Кстово Нижний Новгород Кстово Дзержинск Дальнее Константиново Шахунья Вад Вознесенское Большое Болдино Навашино
Заявка на проект
Введите телефон и мы перезвоним Вам в течение 3х минут, чтобы обсудить детали

Каталог

Страницы

5% скидка до 31 января!
Кредит на строительство
Условия кредитования
  • Ставка 14,5%
  • Сумма до 5 000 000 руб.
  • Срок от 6 до 60 месяцев
  • Решение за 30 минут
  • Персональный менеджер 24/7

Используйте материнский капитал на строительство частного дома независимо от возраста ребенка!

(согласно ФЗ-256 от 29.12.2006 г.)
Бесплатный выезд специалиста
Введите телефон и мы перезвоним
Вам в течение 3х минут
Запись на посещение
Введите телефон и мы перезвоним
Вам в течение 3х минут
Задайте ваш вопрос
И мы перезвоним вам с ответом!

Оставаясь на сайте, вы соглашаетесь на использование файлов куки и передачей данных службам веб-аналитики