Нижний Новгород, ул. Ларина, 27

Пн-Пт 10:00 - 18:00

Каркасная баня 6х6 двухэтажная с мансардой и балконом

Проект BK2/29

Экономия: 63 000 ₽

1 342 000  1 409 000 

  • Металлочерепица в подарок
  • Скидка на винтовые сваи 50%
  • Цена не вырастет во время стройки

Скидка на сваи 50%!

Строительство под ключ 4 дня

Нижний Новгород и область

Есть вопросы?

Специалист СК “Надёжность”
поможет с выбором

Описание

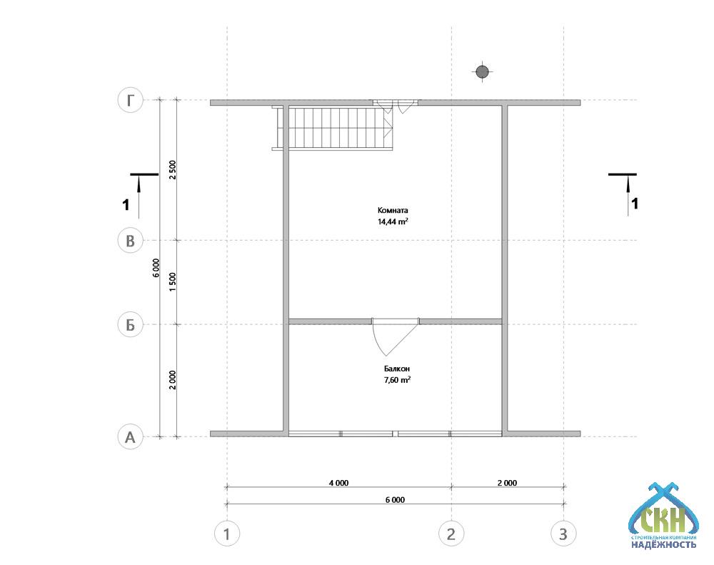
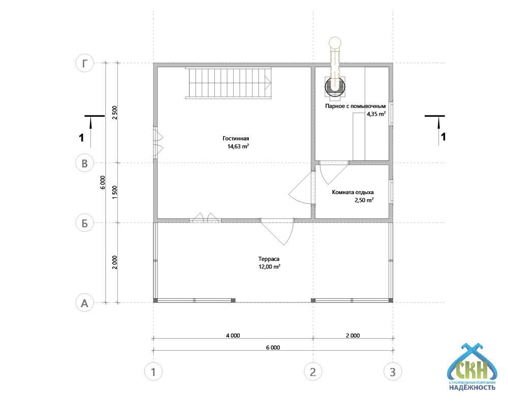
Каркасная баня 6×6 с мансардой и балконом располагает 55 кв. м., включая совмещённую парную и помывочную 4 кв. м., комнату отдыха, террасу, гостевые комнаты 29 кв. м. и балкон. Оригинальный архитектурный стиль выделяет баню среди других. Мансарда и балкон добавляют пространству воздушности. Здесь все сделано для комфортного времяпрепровождения с близкими. Архитектура усиливает ощущение связи с природой. Это место, где спа-процедуры становятся частью банного ритуала.

Смотрите как мы строим
подобные проекты

Проект

АтрибутЗначение
Типклассические
Размеры, м6x6
Форма баниквадратная
Кол. этажей2
Конструкциябалкон, гостевая комната, комната отдыха, терраса, мансарда
Крышадвухскатная
Сан. узелнет
Стильсовременный
Цвет фасадабежевый
Деревососна
Технологиякаркасная
ПомещениеПлощадь
Общая55,52 м²
Совмещенная Парная + Помывочная4,35 м²
Комната отдыха2,5 м²
Гостевые комнаты29,07 м²
Терраса12 м²
Балкон7,6 м²

Комплектация

Состав комплектации
Базовая
1 409 000 ₽
1 342 000 ₽
Стандарт
1 550 000 ₽
1 476 000 ₽
Комфорт
1 692 000 ₽
1 611 000 ₽
Высота - 1-й этаж 2,4 м, 2-й этаж 2,1 м. Силовой каркас - наружные и внутренние стены из доски 50х100 мм, лаги цокольного и межэтажного перекрытий 50х150 мм, лаги потолка и стропильной системы 50х100 мм, с шагом 590 мм.
Кровельное покрытие - Профилированный лист (окрашенный), устройство обрешетки, контробрешетки и гидроизоляции.
Устройство карнизов, подшив кровельных свесов - евровагонка А/В (хвоя)
Внешняя отделка фасада - евровагонка А/В (хвоя) с устройством вентилируемого зазора и ветровлагозащитой.
Внешняя отделка фасада - имитация бруса А/В с устройством вентилируемого зазора и ветровлагозащитой.
Внутренняя отделка - евровагонка А/В (хвоя).
Внутренняя отделка потолка парного отделения - евровагонка А/В (осина).
Настил пола - обрезная доска 50х150 мм.
Настил пола - шпунтованная доска А/В с утеплением 100 мм.
Утепление внешних и внутренних стен, потолка 50 мм.
Утепление внешних и внутренних стен, потолка 100 мм.
Окна деревянные, двойное остекление.
Двери деревянные.
Дверь входная металлическая.
Полати - одноуровневые, осина сорт А/В.
Полати - двухуровневые, осина А/В.
Печь - Везувий Оптимум 14 с баком на трубе 55 литров из нержавеющей стали, двухконтурным дымоходом и комплектом пожаробезопасности.
Печь встраивается в перегородку через кирпичную кладку и топится из комнаты отдыха.
Водоотведение из помывочного отделения - установка пластикового трапа. Утепление пола экструдированным пенополиэтиролом 50 мм.
Отделка цоколя - Профилированный лист (окрашенный) с продухами и металлическим отливом.
Электрика - монтаж автомата, выключателя, светильников, розеток
Лестница на 2-ой этаж из строганной доски естественой влажности, с перилами и балясинами.

Дополнительные услуги

150 000 ₽
136 000 ₽
96 000 ₽
60 000 ₽

Бесплатный выезд специалиста

Оплата

  • Способы оплаты Наличными деньгами в кассу офиса компании или банковский перевод на расчетный счет компании.

  • Этапы оплаты Оплата комплекса услуг по строительству вашего дома или бани проходит в три этапа. Суммы фиксируются в договоре подряда на строительство с указанием сроков, это гарантирует заказчикам, что цена не вырастет во время стройки.

  • Оплата в кредит Мы работаем с многими банками партнерами. Подать заявку на оформление кредита можно в офисе компании или по телефону. Одобрение заявки занимает 30 минут.

Информирование

Еженедельный фото или видеоотчет в любом удобном для вас канале: почта, мессенджеры. Прораб ждет Вас на участке строительства в удобное для Вас время по договоренности.

Доставка

СК Надёжность возьмет на себя полный комплекс услуг по доставке, погрузке и разгрузке материалов до места строительства на Вашем участке в Нижнем Новгороде или Нижегородской области. 

Стоимость рассчитывается индивидуально на каждый объект менеджером в зависимости от веса груза, типа транспортного средства и километража.

Сроки строительства

Сроки строительства составляют от двух недель до двух месяцев в зависимости от размеров объекта и объема работ. При составлении договора подряда сроки указываются на момент оформления документов.

Гарантия

Современные технологии и качественный материал позволяет дать гарантию для наших клиентов 5 лет.

Посетите нашу выставочную площадку

Нижегородская область, Богородский район, СТ Родник, 7

Преимущества строительной компании Надёжность

Строительство бани под ключ

Проектирование, изготовление, транспортировка, монтаж, инженерные коммуникации, утепление, отделка

Кредит за 30 минут

Только паспорт и СНИЛС Использование материнского капитала для детей любого возраста

Профессиональный подход

Рекомендации специалистов на всех этапах от выбора фундамента до планирования интерьера

Собственное производство

Все комплектующие в наличии, срочная замена в случае необходимости

Контроль качества

Система контроля качества на всех этапах: производства, сушки, хранения, транспортировки, отгрузки

Технический надзор

Закрепленный прораб на объекте, опытные рабочие, высокое качество работ!

Выполненные проекты

Отзывы

Поделитесь вашим мнением

Ваш отзыв поможет другим покупателям сделать правильный выбор!

Светлана Андреева 14 мая 2025
Баня наполнила наш участок теплом и уютом. Она стала местом семейных встреч и отдыха. Даже свекровь чаще наведывается:) Благодарю всех специалистов за созданный уют и внимание к мелочам.
Андрей Воздвиженский 10 мая 2025
Конструкция выдержала даже активное использование. Баня оказалась устойчивой и удобной. Строители заслуживают уважения за профессионализм.
Михаил Гильнов 27 апреля 2025
Баня отлично удерживает тепло даже в холодное время суток. Не думал, что каркасная конструкция справится так хорошо. Монтажники работали аккуратно, на каждом этапе все подробно рассказали и показали, особенно по использованию в зимний период.
Злата Мальцева 26 апреля 2025
Раздевалки просторные, можно комфортно переодеться даже с детьми. Большое спасибо строителям за их внимательность к потребностям клиентов.
Антон Беркутов 09 декабря 2024
Все было организовано четко, документы, доставка материалов, установка, баня, как из коробки, все в рабочем состоянии, не пришлось ничего переделывать.

Ждём вас в любом из наших офисов

Сартаково

Нижний Новгород, СТ Родник, 7

Больше вариантов

Вопросы и ответы

В моечном помещении пол имеет уклон 1–2% в сторону стока для быстрого удаления воды.
Баня может быть интегрирована с умным домом — управление вентиляцией, температурой, освещением.
Цоколь утепляется пенополистиролом толщиной 50 мм для сохранения тепла.
Душевая кабина, мойка и раковина располагаются в моечном помещении рядом со стоком.
Во влажных зонах используется оцинкованный крепеж — чтобы не ржавел и служил долго.
Да, в стены закладываются звукоизоляционные слои для снижения внешнего шума.
Каркасная баня 6×6 с мансардой и балконом, под ключ в Нижнем Новгороде, фото 1

Каркасная баня 6х6 двухэтажная с мансардой и балконом

×
Интерактивная карта Нижегородской области
Тоншаево Ветлуга Урень Тонкино Шаранга Варнавино Ковернино Городец Балахна Володарск Павлово Сосновское Вача Кулебаки Выкса Дивеево Лукоянов Починки Пильна Сергач Первомайск Гагино Богородск Шатки Арзамас Саров Княгинино Бутурлино Лысково Спасское Воротынец Перевоз Большое Мурашкино Ардатов Уразовка Сеченово Чкаловск Заволжье Сокольское Красные баки Воскресенское Семенов Бор Кстово Нижний Новгород Кстово Дзержинск Дальнее Константиново Шахунья Вад Вознесенское Большое Болдино Навашино
Заявка на проект
Введите телефон и мы перезвоним Вам в течение 3х минут, чтобы обсудить детали
Кредит на строительство
Условия кредитования
  • Ставка 14,5%
  • Сумма до 5 000 000 руб.
  • Срок от 6 до 60 месяцев
  • Решение за 30 минут
  • Персональный менеджер 24/7

Используйте материнский капитал на строительство частного дома независимо от возраста ребенка!

(согласно ФЗ-256 от 29.12.2006 г.)
Бесплатный выезд специалиста
Введите телефон и мы перезвоним
Вам в течение 3х минут
Запись на посещение
Введите телефон и мы перезвоним
Вам в течение 3х минут
Задайте ваш вопрос
И мы перезвоним вам с ответом!
Оставаясь на сайте, вы соглашаетесь на использование файлов куки и передачей данных службам веб-аналитики
5% скидка до 28 февраля!