Нижний Новгород, СТ Родник, 7

Нижний Новгород, ул. Ларина, 27

Нижний Новгород, СТ Родник, 7

Пн-Пт 10-18 ч.

Нижний Новгород, СТ Родник, 7

Нижний Новгород, ул. Ларина, 27

Каркасная баня 6х6 двухэтажная с мансардой

Проект BK2/28

Экономия: 61 000 ₽

1 209 000  1 270 000 

  • Металлочерепица в подарок
  • Скидка на винтовые сваи 50%
  • Цена не вырастет во время стройки

Скидка на сваи 50%!

Строительство под ключ 4 дня

Нижний Новгород и область

Есть вопросы?

Специалист СК “Надёжность”
поможет с выбором

Описание

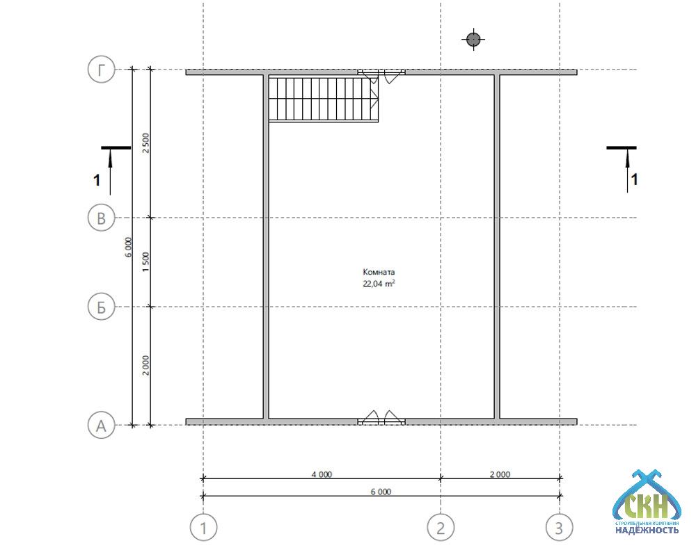
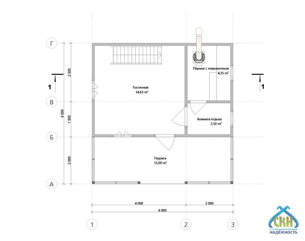
Каркасная баня 6×6 двухэтажная с мансардой имеет общую площадь 55 кв. м., включая совмещённую парную и помывочную 4 кв. м., комнату отдыха, террасу, гостевые комнаты. Строительство выполняется точно в срок без потери качества. Верхний этаж увеличивает полезное пространство. Гостевые комнаты подходят для длительного проживания. После парной можно продолжить отдых в уютной зоне. Баня становится местом, где можно не просто попариться, но и полноценно провести выходные. Это комплексный подход к здоровому образу жизни.

Смотрите как мы строим
подобные проекты

Проект

АтрибутЗначение
Типклассические
Размеры, м6x6
Форма баниквадратная
Кол. этажей2
Конструкциягостевая комната, комната отдыха, терраса, мансарда
Крышадвухскатная
Сан. узелнет
Стильсовременный
Цвет фасадаоранжевый
Деревососна
Технологиякаркасная
ПомещениеПлощадь
Общая55,52 м²
Совмещенная Парная + Помывочная4,35 м²
Комната отдыха2,5 м²
Гостевые комнаты36,67 м²
Терраса12 м²

Комплектация

Состав комплектации
Лето
1 270 000 ₽
1 209 000 ₽
Зима
1 352 000 ₽
1 287 000 ₽
Баня под ключ
1 570 000 ₽
1 495 000 ₽
Высота - 1-й этаж 2,4 м, 2-й этаж 2,1 м
Силовой каркас - наружные и внутренние стены из доски 50х100 мм, лаги цокольного и межэтажного перекрытий 50х150 мм, лаги потолка и стропильной системы 50х100 мм, с шагом 590 мм.
Кровельное покрытие - Профилированный лист (окрашенный) 0,4 мм, устройство обрешетки, контробрешетки и гидроизоляции.
Устройство карнизов, подшив кровельных свесов - евровагонка (хвоя) 12,5х88 мм.
Внешняя отделка фасада - евровагонка (хвоя) 12,5х88 мм с устройством вентилируемого зазора и ветровлагозащитой.
Внешняя отделка фасада - имитация бруса 16х135 мм с устройством вентилируемого зазора и ветровлагозащитой.
Внутренняя отделка - евровагонка (хвоя) 12,5х88 мм.
Внутренняя отделка потолка парного отделения - евровагонка (осина) 12,5х88 мм.
Настил пола - обрезная доска 50х150 мм.
Настил пола - шпунтованная доска 36 мм с утеплением 100 мм минеральная вата Knauf Insulation 11-13 кг/м3.
Утепление внешних и внутренних стен, потолка 50 мм - минеральная вата Knauf Insulation 11-13 кг/м3.
Утепление внешних и внутренних стен, потолка 100 мм - минеральная вата Knauf Insulation 11-13 кг/м3.
Окна ПВХ, ширина профиля 60 мм, двухкамерный стеклопакет с металлическими отливами.
Двери деревянные (филенчатые), без замка.
Дверь входная металлическая, с одним замком. (Door Out 101)
Полати - одноуровневые, Осина.
Полати - двухуровневые, Осина.
Печь - Везувий Оптимум 14 (сталь 5 мм) с баком на трубе 55 литров из нержавеющей стали, двухконтурным дымоходом и комплектом пожаробезопасности.
Печь встраивается в перегородку через кирпичную кладку и топится из комнаты отдыха.
Утепление пола экструдированным пенополиэтиролом 50 мм.
Внешняя отделка фасада - Имитация бруса (хвоя) с устройством вентилируемого зазора и ветровлагозащитой.
Отделка цоколя - Профилированный лист (окрашенный) с продухами и металлическим отливом.
Электрика - монтаж автомата, выключателя, светильников, розеток
Лестница на 2-ой этаж из строганной доски естественой влажности, с перилами и балясинами.
Обвязка 100х200 мм естественной влажности + антисептик (обвязки и лаг пола) + брусок 50х50мм
Вент.зазор по стенам 25х50мм
Столбы + перила (крестообразные)
Настил пола террасы - обрезная доска 50х150 мм естсетвенной влажности
Настил пола балкона - шпунтованная доска 36х135 мм
Обналичка - евровагонка 12,5х88мм
Обналичка внутри - уголок 40х40 мм
Плинтус - потолок, стены, пол
Углы бани - евровагонка 12,5х88 мм
Углы бани - уголок 40х40 мм
Решетка для проветривания чердачного перекрытия
Пленки Эко-хаус
Дверь в парное клиновая
Балконная дверь филенка
В парном отделении либо окно 600х400 деревянное либо вент решетка (на выбор)

Дополнительные услуги

150 000 ₽
136 000 ₽
96 000 ₽
50 000 ₽

Бесплатный выезд специалиста

Оплата

  • Способы оплаты Наличными деньгами в кассу офиса компании или банковский перевод на расчетный счет компании.

  • Этапы оплаты Оплата комплекса услуг по строительству вашего дома или бани проходит в три этапа. Суммы фиксируются в договоре подряда на строительство с указанием сроков, это гарантирует заказчикам, что цена не вырастет во время стройки.

  • Оплата в кредит Мы работаем с многими банками партнерами. Подать заявку на оформление кредита можно в офисе компании или по телефону. Одобрение заявки занимает 30 минут.

Информирование

Еженедельный фото или видеоотчет в любом удобном для вас канале: почта, мессенджеры. Прораб ждет Вас на участке строительства в удобное для Вас время по договоренности.

Доставка

СК Надёжность возьмет на себя полный комплекс услуг по доставке, погрузке и разгрузке материалов до места строительства на Вашем участке в Нижнем Новгороде или Нижегородской области. 

Стоимость рассчитывается индивидуально на каждый объект менеджером в зависимости от веса груза, типа транспортного средства и километража.

Сроки строительства

Сроки строительства составляют от двух недель до двух месяцев в зависимости от размеров объекта и объема работ. При составлении договора подряда сроки указываются на момент оформления документов.

Гарантия

Современные технологии и качественный материал позволяет дать гарантию для наших клиентов 5 лет.

Посетите нашу выставочную площадку

Нижегородская область, Богородский район, СТ Родник, 7

Преимущества строительной компании Надёжность

Строительство бани под ключ

Проектирование, изготовление, транспортировка, монтаж, инженерные коммуникации, утепление, отделка

Кредит за 30 минут

Только паспорт и СНИЛС Использование материнского капитала для детей любого возраста

Профессиональный подход

Рекомендации специалистов на всех этапах от выбора фундамента до планирования интерьера

Собственное производство

Все комплектующие в наличии, срочная замена в случае необходимости

Контроль качества

Система контроля качества на всех этапах: производства, сушки, хранения, транспортировки, отгрузки

Технический надзор

Закрепленный прораб на объекте, опытные рабочие, высокое качество работ!

Выполненные проекты

Отзывы

Поделитесь вашим мнением

Ваш отзыв поможет другим покупателям сделать правильный выбор!

Татьяна Ледовская 22 мая 2025
Я была приятно удивлена экологичностью материалов. Баня выглядит очень уютно, а специалисты компании создали комфортную обстановку. Выражаю благодарность дизайнерам за заботу о деталях.
Сергей Верещагин 19 мая 2025
Удобство эксплуатации на высоте. Баня проста в обслуживании и практична. Спасибо за профессионализм и четкое соблюдение графика.
Станислав Кремнев 10 мая 2025
Уникальная форма привлекает внимание и вызывает восхищение. Спасибо за смелые решения и уверенность в каждом шаге.
Сусанна Цигельман 09 апреля 2025
Погода менялась каждый день, но баня не дала никаких протечек или деформаций. Особое спасибо за качественную кровлю и защиту от сырости.
Александр Цветкович 02 ноября 2024
Не люблю ждать, поэтому рад, что строители уложились в месяц, баня уже используется регулярно, никаких протечек или деформаций, это говорит о высоком уровне качества работ.

Ждём вас в любом из наших офисов

Сартаково

Нижний Новгород, СТ Родник, 7

Больше вариантов

Вопросы и ответы

Черновой пол — ОСП-3 или обрезная доска толщиной 25–30 мм, уложенная плотно без щелей.
Дымоход выводится вертикально через крышу или горизонтально через стену с термоизоляцией.
По желанию заказчика возможна установка источника бесперебойного питания для критически важных систем.
По желанию заказчика можно установить купель или бассейн внутри или на улице.
Полки монтируются на металлические кронштейны, материал — липа или осина, без теплоотдачи.
Доставка комплекта бани до участка возможна — зависит от расстояния.
Каркасная баня 6×4 двухэтажная с мансардой, под ключ в Нижнем Новгороде, фото 1

Каркасная баня 6х6 двухэтажная с мансардой

×

Интерактивная карта Нижегородской области

Тоншаево Ветлуга Урень Тонкино Шаранга Варнавино Ковернино Городец Балахна Володарск Павлово Сосновское Вача Кулебаки Выкса Дивеево Лукоянов Починки Пильна Сергач Первомайск Гагино Богородск Шатки Арзамас Саров Княгинино Бутурлино Лысково Спасское Воротынец Перевоз Большое Мурашкино Ардатов Уразовка Сеченово Чкаловск Заволжье Сокольское Красные баки Воскресенское Семенов Бор Кстово Нижний Новгород Кстово Дзержинск Дальнее Константиново Шахунья Вад Вознесенское Большое Болдино Навашино
Заявка на проект
Введите телефон и мы перезвоним Вам в течение 3х минут, чтобы обсудить детали

Каталог

Страницы

5% скидка до 31 января!
Кредит на строительство
Условия кредитования
  • Ставка 14,5%
  • Сумма до 5 000 000 руб.
  • Срок от 6 до 60 месяцев
  • Решение за 30 минут
  • Персональный менеджер 24/7

Используйте материнский капитал на строительство частного дома независимо от возраста ребенка!

(согласно ФЗ-256 от 29.12.2006 г.)
Бесплатный выезд специалиста
Введите телефон и мы перезвоним
Вам в течение 3х минут
Запись на посещение
Введите телефон и мы перезвоним
Вам в течение 3х минут
Задайте ваш вопрос
И мы перезвоним вам с ответом!

Оставаясь на сайте, вы соглашаетесь на использование файлов куки и передачей данных службам веб-аналитики