Нижний Новгород, СТ Родник, 7

Нижний Новгород, ул. Ларина, 27

Нижний Новгород, СТ Родник, 7

Пн-Пт 10-18 ч.

Нижний Новгород, СТ Родник, 7

Нижний Новгород, ул. Ларина, 27

Баня из бруса 6,5х8 в современном стиле

Проект BB1/15

Экономия: 61 000 ₽

1 195 000  1 255 000 

  • Металлочерепица в подарок
  • Скидка на винтовые сваи 50%
  • Цена не вырастет во время стройки

Скидка на сваи 50%!

Строительство под ключ 4 дня

Нижний Новгород и область

Есть вопросы?

Специалист СК “Надёжность”
поможет с выбором

Описание

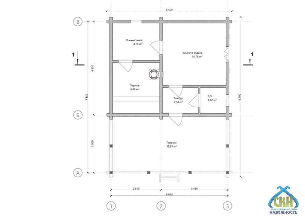
Современная баня из профилированного бруса 6,5×8 в современном стиле с удобной планировкой обеспечивает комфорт и функциональность. Общая площадь — 43,18 кв. м., парная и помывочная занимают 6,49 кв. м. и 4,76 кв. м.. Комната отдыха получилась просторной и уютной — идеальное место, чтобы расслабиться после парной. Санузел добавляет удобства, всё организовано практично и по-домашнему. Терраса стала изюминкой — на ней приятно сидеть с чаем или просто наслаждаться тишиной и свежим воздухом. Крыльцо небольшое, но тёплое и гостеприимное, задаёт доброжелательный тон всей бане. Крыша двухскатная придаёт строению стройность, а современный стиль делает его выразительным. Всё продумано до мелочей, поэтому баня радует не только функциональностью, но и внешним видом. Банный ритуал здоровья начнется в этом пространстве.

Смотрите как мы строим
подобные проекты

Проект

АтрибутЗначение
Типклассические
Размеры, м7x8
Форма банипрямоугольная
Кол. этажей1
Конструкциякомната отдыха, терраса
Крышадвухскатная
Сан. узел1
Стильсовременный
Цвет фасадабелый
Деревососна
Технологияиз бруса
ПомещениеПлощадь
Общая43,18 м²
Парная6,49 м²
Помывочная4,76 м²
Комната отдыха10,76 м²
Санузел1,82 м²
Терраса16,81 м²
Тамбур2,54 м²

Комплектация

Состав комплектации
Баня под усадку
1 255 000 ₽
1 195 000 ₽
Баня с утеплением
1 775 000 ₽
1 691 000 ₽
Баня под ключ
1 963 000 ₽
1 867 000 ₽
Высота - 1-й этаж 2,0 м.
Наружные и внутренние стены (по проекту) из профилированного бруса, камерной сушки 140х140 мм (сборка в чашу), хвоя.
Лаги перекрытий и стропильная система 50х100 мм, с шагом 590 мм.
Кровельное покрытие - профилированный лист (окрашенный) 0.4 мм, устройство обрешетки, контробрешетки и гидроизоляции.
Устройство карнизов, подшив кровельных свесов - евровагонка (хвоя) 12,5х88 мм.
Внешняя отделка фронтона - имитация бруса 28х135 мм.
Внутренняя отделка - евровагонка (хвоя) 12,5х88 мм.
Внутренняя отделка потолка парного отделения - евровагонка (осина) 12,5х88 мм.
Настил пола - обрезная доска 50х150 мм.
Настил пола - шпунтованная доска 36 мм с утеплением 100 мм минеральная вата Knauf Insulation 11-13 кг/м3.
Межвенцовый утеплитель - джут
Утепление внутренних стен, потолка 50 мм - минеральная вата Knauf Insulation 11-13 кг/м3.
Утепление внутренних стен, потолка 100 мм - минеральная вата Knauf Insulation 11-13 кг/м3.
Окна деревянные, двойное остекление.
Двери деревянные (банные, клиновые), без замка.
Полати - одноуровневые, Осина.
Полати - двухуровневые, Осина.
Печь - Везувий Оптимум 14 (сталь 5 мм) с баком на трубе 55 литров из нержавеющей стали, двухконтурным дымоходом и комплектом пожаробезопасности.
Печь встраивается в перегородку через кирпичную кладку и топится из комнаты отдыха.
Водоотведение из помывочного отделения - установка пластикового трапа.
Утепление пола экструдированным пенополиэтиролом 50 мм.
Отделка цоколя - профилированный лист (окрашенный) с продухами и металлическим отливом.
Электрика - монтаж автомата, выключателя, светильников, розеток.
Люк - лаз (доступ на чердачное пространство).

Дополнительные услуги

150 000 ₽
161 500 ₽
114 000 ₽
42 000 ₽

Бесплатный выезд специалиста

Оплата

  • Способы оплаты Наличными деньгами в кассу офиса компании или банковский перевод на расчетный счет компании.

  • Этапы оплаты Оплата комплекса услуг по строительству вашего дома или бани проходит в три этапа. Суммы фиксируются в договоре подряда на строительство с указанием сроков, это гарантирует заказчикам, что цена не вырастет во время стройки.

  • Оплата в кредит Мы работаем с многими банками партнерами. Подать заявку на оформление кредита можно в офисе компании или по телефону. Одобрение заявки занимает 30 минут.

Информирование

Еженедельный фото или видеоотчет в любом удобном для вас канале: почта, мессенджеры. Прораб ждет Вас на участке строительства в удобное для Вас время по договоренности.

Доставка

СК Надёжность возьмет на себя полный комплекс услуг по доставке, погрузке и разгрузке материалов до места строительства на Вашем участке в Нижнем Новгороде или Нижегородской области. 

Стоимость рассчитывается индивидуально на каждый объект менеджером в зависимости от веса груза, типа транспортного средства и километража.

Сроки строительства

Сроки строительства составляют от двух недель до двух месяцев в зависимости от размеров объекта и объема работ. При составлении договора подряда сроки указываются на момент оформления документов.

Гарантия

Современные технологии и качественный материал позволяет дать гарантию для наших клиентов 5 лет.

Посетите нашу выставочную площадку

Нижегородская область, Богородский район, СТ Родник, 7

Преимущества строительной компании Надёжность

Строительство бани под ключ

Проектирование, изготовление, транспортировка, монтаж, инженерные коммуникации, утепление, отделка

Кредит за 30 минут

Только паспорт и СНИЛС Использование материнского капитала для детей любого возраста

Профессиональный подход

Рекомендации специалистов на всех этапах от выбора фундамента до планирования интерьера

Собственное производство

Все комплектующие в наличии, срочная замена в случае необходимости

Контроль качества

Система контроля качества на всех этапах: производства, сушки, хранения, транспортировки, отгрузки

Технический надзор

Закрепленный прораб на объекте, опытные рабочие, высокое качество работ!

Выполненные проекты

Отзывы

Поделитесь вашим мнением

Ваш отзыв поможет другим покупателям сделать правильный выбор!

Кирилл Косяков 24 июля 2025
Особое внимание обратил на контроль качества, все проверялось лично. Специалисты сами замечали недочеты и оперативно их исправляли. Такой подход говорит о высоком уровне ответственности.
Денис Волков 26 мая 2025
Оформление всех документов прошло тихо и без лишней бюрократии. Все документы подготовлены вовремя, никаких проблем с проверками.
Роман Кулаков 22 января 2025
Настроился на террасу, не отступили, не стали уговаривать отказаться. Сделали именно так, как хотел. Теперь есть место для чаепития и отдыха после бани.
Константин Кудрявцев 22 ноября 2024
Все было честно: цена, сроки, качество, все соответствовало заявленному. Не было завышенных расценков или скрытых платежей, что является важным моментом при выборе подрядчика.
Валентин Бураев 22 сентября 2024
Люблю уют и тепло, поэтому теплоизоляция была важна. Даже зимой внутри комфортно, никакого холодного воздуха. Сидишь в парной, как будто в объятиях природы. Очень романтичная атмосфера.

Ждём вас в любом из наших офисов

Сартаково

Нижний Новгород, СТ Родник, 7

Больше вариантов

Вопросы и ответы

Да, все наши материалы имеют сертификаты пожарной безопасности и соответствия ТР ТС.
Обычно 40–50 мм — достаточно для надёжного соединения.
Используем брус 100х150 мм — он удобнее в работе и лучше ложится на фундамент.
Да, особенно при толщине 140 мм. Зимой комфортная температура держится 2–3 часа после протопки.
Специальным инструментом загоняем утеплитель в щели между венцами. Работаем аккуратно, без повреждений.
Да, вентиляционные коньки или аэраторы — обязательная часть кровельного пирога.
Баня из бруса 8×6,5 в современном стиле, под ключ в Нижнем Новгороде, фото 1

Баня из бруса 6,5х8 в современном стиле

×

Интерактивная карта Нижегородской области

Тоншаево Ветлуга Урень Тонкино Шаранга Варнавино Ковернино Городец Балахна Володарск Павлово Сосновское Вача Кулебаки Выкса Дивеево Лукоянов Починки Пильна Сергач Первомайск Гагино Богородск Шатки Арзамас Саров Княгинино Бутурлино Лысково Спасское Воротынец Перевоз Большое Мурашкино Ардатов Уразовка Сеченово Чкаловск Заволжье Сокольское Красные баки Воскресенское Семенов Бор Кстово Нижний Новгород Кстово Дзержинск Дальнее Константиново Шахунья Вад Вознесенское Большое Болдино Навашино
Заявка на проект
Введите телефон и мы перезвоним Вам в течение 3х минут, чтобы обсудить детали

Каталог

Страницы

5% скидка до 31 января!
Кредит на строительство
Условия кредитования
  • Ставка 14,5%
  • Сумма до 5 000 000 руб.
  • Срок от 6 до 60 месяцев
  • Решение за 30 минут
  • Персональный менеджер 24/7

Используйте материнский капитал на строительство частного дома независимо от возраста ребенка!

(согласно ФЗ-256 от 29.12.2006 г.)
Бесплатный выезд специалиста
Введите телефон и мы перезвоним
Вам в течение 3х минут
Запись на посещение
Введите телефон и мы перезвоним
Вам в течение 3х минут
Задайте ваш вопрос
И мы перезвоним вам с ответом!

Оставаясь на сайте, вы соглашаетесь на использование файлов куки и передачей данных службам веб-аналитики