Нижний Новгород, СТ Родник, 7

Нижний Новгород, ул. Ларина, 27

Нижний Новгород, СТ Родник, 7

Пн-Пт 10-18 ч.

Нижний Новгород, СТ Родник, 7

Нижний Новгород, ул. Ларина, 27

Баня из бруса 8х8 ассиметричная

Проект BB1/16

Экономия: 66 000 ₽

1 291 000  1 355 000 

  • Металлочерепица в подарок
  • Скидка на винтовые сваи 50%
  • Цена не вырастет во время стройки

Скидка на сваи 50%!

Строительство под ключ 4 дня

Нижний Новгород и область

Есть вопросы?

Специалист СК “Надёжность”
поможет с выбором

Описание

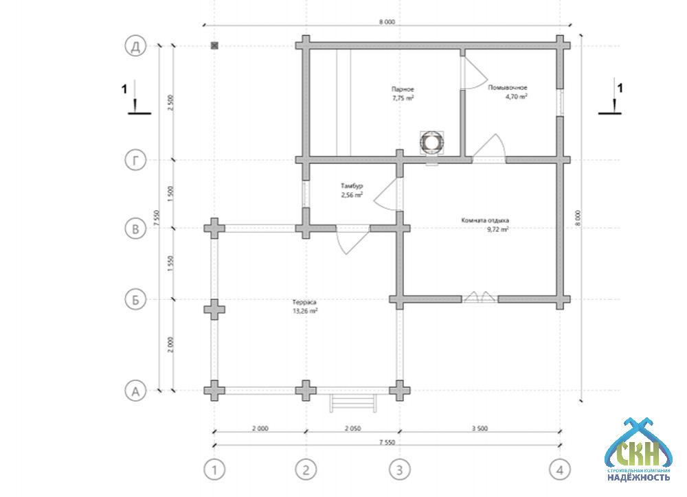
Асимметричная баня из профилированного бруса 8×8 ассиметричная выделяется среди других своей формой и дизайном. Общая площадь — 37,99 кв. м., парная и помывочная занимают 7,75 кв. м. и 4,7 кв. м.. Особый стиль проекту придает крыльцо с отдельной двухскатной крышей. За счет этого баня выглядит необычно. Функциональный проект, включающий комнату отдыха, террасу и защитный тамбур позволяют максимально эффективно использовать пространство для отдыха. Баня станет любимым местом на участке.

Смотрите как мы строим
подобные проекты

Проект

АтрибутЗначение
Типклассические
Размеры, м8x8
Форма баниассиметричная
Кол. этажей1
Конструкциякомната отдыха, терраса
Крышадвухскатная
Сан. узелнет
Стильклассический
Цвет фасадакоричневый
Деревососна
Технологияиз бруса
ПомещениеПлощадь
Общая37,99 м²
Парная7,75 м²
Помывочная4,7 м²
Комната отдыха9,72 м²
Терраса13,26 м²
Тамбур2,56 м²

Комплектация

Состав комплектации
Баня под усадку
1 355 000 ₽
1 291 000 ₽
Баня с утеплением
1 853 000 ₽
1 765 000 ₽
Баня под ключ
2 041 000 ₽
1 944 000 ₽
Высота - 1-й этаж 2,0 м.
Наружные и внутренние стены (по проекту) из профилированного бруса, камерной сушки 140х140 мм (сборка в чашу), хвоя.
Лаги перекрытий и стропильная система 50х100 мм, с шагом 590 мм.
Кровельное покрытие - профилированный лист (окрашенный) 0.4 мм, устройство обрешетки, контробрешетки и гидроизоляции.
Устройство карнизов, подшив кровельных свесов - евровагонка (хвоя) 12,5х88 мм.
Внешняя отделка фронтона - имитация бруса 28х135 мм.
Внутренняя отделка - евровагонка (хвоя) 12,5х88 мм.
Внутренняя отделка потолка парного отделения - евровагонка (осина) 12,5х88 мм.
Настил пола - обрезная доска 50х150 мм.
Настил пола - шпунтованная доска 36 мм с утеплением 100 мм минеральная вата Knauf Insulation 11-13 кг/м3.
Межвенцовый утеплитель - джут
Утепление внутренних стен, потолка 50 мм - минеральная вата Knauf Insulation 11-13 кг/м3.
Утепление внутренних стен, потолка 100 мм - минеральная вата Knauf Insulation 11-13 кг/м3.
Окна деревянные, двойное остекление.
Двери деревянные (банные, клиновые), без замка.
Полати - одноуровневые, Осина.
Полати - двухуровневые, Осина.
Печь - Везувий Оптимум 14 (сталь 5 мм) с баком на трубе 55 литров из нержавеющей стали, двухконтурным дымоходом и комплектом пожаробезопасности.
Печь встраивается в перегородку через кирпичную кладку и топится из комнаты отдыха.
Водоотведение из помывочного отделения - установка пластикового трапа.
Утепление пола экструдированным пенополиэтиролом 50 мм.
Отделка цоколя - профилированный лист (окрашенный) с продухами и металлическим отливом.
Электрика - монтаж автомата, выключателя, светильников, розеток.
Люк - лаз (доступ на чердачное пространство).

Дополнительные услуги

150 000 ₽
187 000 ₽
132 000 ₽
35 000 ₽

Бесплатный выезд специалиста

Оплата

  • Способы оплаты Наличными деньгами в кассу офиса компании или банковский перевод на расчетный счет компании.

  • Этапы оплаты Оплата комплекса услуг по строительству вашего дома или бани проходит в три этапа. Суммы фиксируются в договоре подряда на строительство с указанием сроков, это гарантирует заказчикам, что цена не вырастет во время стройки.

  • Оплата в кредит Мы работаем с многими банками партнерами. Подать заявку на оформление кредита можно в офисе компании или по телефону. Одобрение заявки занимает 30 минут.

Информирование

Еженедельный фото или видеоотчет в любом удобном для вас канале: почта, мессенджеры. Прораб ждет Вас на участке строительства в удобное для Вас время по договоренности.

Доставка

СК Надёжность возьмет на себя полный комплекс услуг по доставке, погрузке и разгрузке материалов до места строительства на Вашем участке в Нижнем Новгороде или Нижегородской области. 

Стоимость рассчитывается индивидуально на каждый объект менеджером в зависимости от веса груза, типа транспортного средства и километража.

Сроки строительства

Сроки строительства составляют от двух недель до двух месяцев в зависимости от размеров объекта и объема работ. При составлении договора подряда сроки указываются на момент оформления документов.

Гарантия

Современные технологии и качественный материал позволяет дать гарантию для наших клиентов 5 лет.

Посетите нашу выставочную площадку

Нижегородская область, Богородский район, СТ Родник, 7

Преимущества строительной компании Надёжность

Строительство бани под ключ

Проектирование, изготовление, транспортировка, монтаж, инженерные коммуникации, утепление, отделка

Кредит за 30 минут

Только паспорт и СНИЛС Использование материнского капитала для детей любого возраста

Профессиональный подход

Рекомендации специалистов на всех этапах от выбора фундамента до планирования интерьера

Собственное производство

Все комплектующие в наличии, срочная замена в случае необходимости

Контроль качества

Система контроля качества на всех этапах: производства, сушки, хранения, транспортировки, отгрузки

Технический надзор

Закрепленный прораб на объекте, опытные рабочие, высокое качество работ!

Выполненные проекты

Отзывы

Поделитесь вашим мнением

Ваш отзыв поможет другим покупателям сделать правильный выбор!

Тимофей Калинин 27 июля 2025
Хотел автономную систему водоснабжения, ее установили. Теперь не зависишь от внешних сетей, что удобно и практично, особенно если баня находится за городом.
Александр Сорокин 30 мая 2025
Несмотря на мои частые изменения в проекте, ребята терпеливо слушали и выполняли все точно. Такое отношение к клиенту, большая редкость. Рекомендую тем, кто ценит внимание к деталям.
Алан Багаудинов 25 января 2025
Мне очень понравилось, как построили баню, все аккуратно и без лишней суеты. Сборка на высоте, даже не ожидал такого результата за эти деньги. Теперь приезжаю отдыхать с друзьями, одни эмоции!
Семён Ларионов 25 ноября 2024
После первого посещения оценил уровень герметичности, пар не уходит, все держится внутри, что делает процесс более эффективным и приятным.
Кирилл Сафин 26 сентября 2024
Боялся, что строительство сильно загрязнит участок, оказалось иначе. После окончания работ территорию убрали, мусор вывезли. Приехал, все чисто, как будто ничего и не было.

Ждём вас в любом из наших офисов

Сартаково

Нижний Новгород, СТ Родник, 7

Больше вариантов

Вопросы и ответы

Основной сорт — I и II. Для внутренней отделки парной — только первый сорт.
Подгоняем очень плотно — щуп толщиной 0,5 мм не проскакивает.
Да, двойной слой рубероида или битумная мастика. Иногда ещё добавляем жидкий гидрофобизатор.
Да, предусматриваем слив в септик или выгреб. Подключаем канализационные трубы при желании.
Да, можно добавить минвату или пенополистирол в каркасную обрешётку внутри.
Да, наш брус соответствует ГОСТ 30852–2012 и ГОСТ 8486–86.
Баня из бруса 8×8 ассиметричная, под ключ в Нижнем Новгороде, фото 1

Баня из бруса 8х8 ассиметричная

×

Интерактивная карта Нижегородской области

Тоншаево Ветлуга Урень Тонкино Шаранга Варнавино Ковернино Городец Балахна Володарск Павлово Сосновское Вача Кулебаки Выкса Дивеево Лукоянов Починки Пильна Сергач Первомайск Гагино Богородск Шатки Арзамас Саров Княгинино Бутурлино Лысково Спасское Воротынец Перевоз Большое Мурашкино Ардатов Уразовка Сеченово Чкаловск Заволжье Сокольское Красные баки Воскресенское Семенов Бор Кстово Нижний Новгород Кстово Дзержинск Дальнее Константиново Шахунья Вад Вознесенское Большое Болдино Навашино
Заявка на проект
Введите телефон и мы перезвоним Вам в течение 3х минут, чтобы обсудить детали

Каталог

Страницы

5% скидка до 31 января!
Кредит на строительство
Условия кредитования
  • Ставка 14,5%
  • Сумма до 5 000 000 руб.
  • Срок от 6 до 60 месяцев
  • Решение за 30 минут
  • Персональный менеджер 24/7

Используйте материнский капитал на строительство частного дома независимо от возраста ребенка!

(согласно ФЗ-256 от 29.12.2006 г.)
Бесплатный выезд специалиста
Введите телефон и мы перезвоним
Вам в течение 3х минут
Запись на посещение
Введите телефон и мы перезвоним
Вам в течение 3х минут
Задайте ваш вопрос
И мы перезвоним вам с ответом!

Оставаясь на сайте, вы соглашаетесь на использование файлов куки и передачей данных службам веб-аналитики