Баня из бруса 6х9 с двухскатной крышей

Цена актуальна: 15.03.2026

Проект BB1/17

Экономия: 63 000 ₽

1 254 000  1 363 000 

  • Металлочерепица в подарок
  • Скидка на винтовые сваи 50%
  • Цена не вырастет во время стройки

Скидка на сваи 50%!

Строительство под ключ 4 дня

Нижний Новгород и область

Есть вопросы?

Специалист СК “Надёжность”
поможет с выбором

Описание

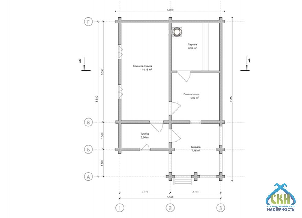
Баня из профилированного бруса 6×9 с двухскатной крышей сочетает вместительность и уют. Общая площадь — 39,12 кв. м., парная и помывочная занимают по 6,96 кв. м.. С каждым шагом по деревянным половицам чувствуешь, как забота об уюте воплощается в деталях — тёплый свет, мягкий аромат сосны, плавные линии пространства. Здесь, вдали от суеты, рождается особая атмосфера — где время замедляется, а душа находит своё отражение в тепле бани и гармонии материалов.

Смотрите как мы строим
подобные проекты

Проект

АтрибутЗначение
Размеры, м6x9
Формапрямоугольная
Кол. этажей1
Конструкциякомната отдыха, терраса, тамбур
Парная и Моечнаяраздельная
Оснащениедвери, окна, отделка, печь, полати, утепление
Сан. узелнет
Крышадвухскатная
Стильклассический
Цвет фасадасиний
Деревососна
Технологияиз бруса
ПомещениеПлощадь
Общая39,12 м²
Парная6,96 м²
Помывочная6,96 м²
Комната отдыха14,18 м²
Терраса7,48 м²
Тамбур3,54 м²

Комплектация

Состав комплектации
Баня под усадку
1 363 000 ₽
1 254 000 ₽
Баня с утеплением
1 842 000 ₽
1 695 000 ₽
Баня под ключ
2 043 000 ₽
1 880 000 ₽
Высота - 1-й этаж 2,0 м. Наружные и внутренние стены (по проекту) из профилированного бруса, камерной сушки 140х140 мм (сборка в чашу), хвоя.
Кровельное покрытие - профилированный лист (окрашенный) 0.4 мм, устройство обрешетки, контробрешетки и гидроизоляции.
Устройство карнизов, подшив кровельных свесов - евровагонка (хвоя).
Внешняя отделка фронтона - имитация бруса.
Внутренняя отделка - евровагонка (хвоя).
Внутренняя отделка потолка парного отделения - евровагонка (осина).
Настил пола - обрезная доска 50х150 мм.
Настил пола - шпунтованная доска 36 мм с утеплением 100 мм минеральная вата Knauf Insulation 11-13 кг/м3.
Межвенцовый утеплитель - джут
Утепление внутренних стен, потолка 50 мм - минеральная вата Knauf Insulation.
Утепление внутренних стен, потолка 100 мм - минеральная вата Knauf Insulation.
Окна деревянные, двойное остекление.
Двери деревянные (банные, клиновые), без замка.
Полати - одноуровневые, Осина.
Полати - двухуровневые, Осина.
Печь - Везувий Оптимум 14 с баком на трубе 55 литров из нержавеющей стали, двухконтурным дымоходом и комплектом пожаробезопасности.
Печь встраивается в перегородку через кирпичную кладку и топится из комнаты отдыха.
Водоотведение из помывочного отделения - установка пластикового трапа.
Отделка цоколя - профилированный лист (окрашенный) с продухами и металлическим отливом.
Электрика - монтаж автомата, выключателя, светильников, розеток.

Дополнительные услуги

150 000 ₽
119 000 ₽
84 000 ₽
35 000 ₽

Бесплатный выезд специалиста

Оплата

  • Способы оплаты
    Наличными деньгами в кассу офиса компании или банковский перевод на расчетный счет компании.
  • Этапы оплаты
    Оплата комплекса услуг по строительству вашего дома или бани проходит в три этапа. Суммы фиксируются в договоре подряда на строительство с указанием сроков, это гарантирует заказчикам, что цена не вырастет во время стройки.
  • Оплата в кредит
    Мы работаем с многими банками партнерами. Подать заявку на оформление кредита можно в офисе компании или по телефону. Одобрение заявки занимает 30 минут.

Информирование

Еженедельный фото или видеоотчет в любом удобном для вас канале: почта, мессенджеры. Прораб ждет Вас на участке строительства в удобное для Вас время по договоренности.

Доставка

СК Надёжность возьмет на себя полный комплекс услуг по доставке, погрузке и разгрузке материалов до места строительства на Вашем участке в Нижнем Новгороде или Нижегородской области.  Стоимость рассчитывается индивидуально на каждый объект менеджером в зависимости от веса груза, типа транспортного средства и километража.

Сроки строительства

Сроки строительства составляют от двух недель до двух месяцев в зависимости от размеров объекта и объема работ. При составлении договора подряда сроки указываются на момент оформления документов.

Гарантия

Современные технологии и качественный материал позволяет дать гарантию для наших клиентов 5 лет.

Посетите нашу выставочную площадку

Нижегородская область, Богородский район, СТ Родник, 7

Преимущества строительной компании Надёжность

Строительство бани под ключ

Проектирование, изготовление, транспортировка, монтаж, инженерные коммуникации, утепление, отделка

Кредит за 30 минут

Только паспорт и СНИЛС Использование материнского капитала для детей любого возраста

Профессиональный подход

Рекомендации специалистов на всех этапах от выбора фундамента до планирования интерьера

Собственное производство

Все комплектующие в наличии, срочная замена в случае необходимости

Контроль качества

Система контроля качества на всех этапах: производства, сушки, хранения, транспортировки, отгрузки

Технический надзор

Закрепленный прораб на объекте, опытные рабочие, высокое качество работ!

Выполненные проекты

Отзывы

Поделитесь вашим мнением

Ваш отзыв поможет другим покупателям сделать правильный выбор!

Эдуард Ширяев 13 июля 2025
Урень
Запах дерева, главный аромат бани. Здесь он естественный, без примесей химии, что говорит о том, что использовали натуральные материалы и не применяли вредные вещества.
Евгений Беляев 16 мая 2025
Выкса
Спокойствие, залог успеха. Во время строительства никто не пострадал, соблюдались все правила техники безопасности, что дало уверенность в надежности и безопасности самой бани.
Ильяс Мулюков 11 января 2025
Зеленый город
Сразу почувствовал себя уверенно, баня получилась такой, какой и должен быть: удобной, теплой, вместительной. Все сделано с душой и пониманием потребностей клиента.
Надежда Гурова 11 ноября 2024
Большое Болдино
Мне важно было уложиться в срок — сезон был в самом разгаре, и я хотела успеть попариться до холодов. Саму баню построили за неделю. Не ожидала такого темпа при таком качестве. Особенно приятно, что никто не срывал сроков и не переносил этапы без причины. Теперь отдыхаю в собственной бане!
Дмитрий Цициев 12 сентября 2024
Нижний Новгород
Смелый шаг, заказать баню перед отпуском, надеясь, что все успеют. Компания справилась! Сдали точно в срок, мы приехали, и все было готово. Такая организация заслуживает уважения.

Ждём вас в любом из наших офисов

Сартаково

Нижний Новгород, СТ Родник, 7

Больше вариантов

Вопросы и ответы

Проверяем влажность, наличие сучков, трещин, соответствие ГОСТу. Древесина — только I и II сорт.
Чаще всего «в чашу» — лучше сохраняет тепло и меньше продувается.
Перепады не должны превышать 2–3 см на всю длину — иначе будут проблемы с дверями и окнами.
Чаще ставим влагозащищённые светодиодные светильники. Можно и лампы накаливания — по желанию.
Чаще всего джут — он долговечный и хорошо работает в банях. Пакля — дешевле, но срок службы меньше.
Да, у нас полностью автоматизированная линия обработки. Это гарантирует одинаковое качество каждой детали.
Баня из бруса 6×9 с двухскатной крышей, под ключ в Нижнем Новгороде, фото 1

Баня из бруса 6х9 с двухскатной крышей

×
Интерактивная карта Нижегородской области
Тоншаево Ветлуга Урень Тонкино Шаранга Варнавино Ковернино Городец Балахна Володарск Павлово Сосновское Вача Кулебаки Выкса Дивеево Лукоянов Починки Пильна Сергач Первомайск Гагино Богородск Шатки Арзамас Саров Княгинино Бутурлино Лысково Спасское Воротынец Перевоз Большое Мурашкино Ардатов Уразовка Сеченово Чкаловск Заволжье Сокольское Красные баки Воскресенское Семенов Бор Кстово Нижний Новгород Кстово Дзержинск Дальнее Константиново Шахунья Вад Вознесенское Большое Болдино Навашино
Заявка на проект
Введите телефон и мы перезвоним Вам в течение 3х минут, чтобы обсудить детали
8% скидка до 31 марта 2026!
Кредит на строительство
Условия кредитования
  • Ставка 14,5%
  • Сумма до 5 000 000 руб.
  • Срок от 6 до 60 месяцев
  • Решение за 30 минут
  • Персональный менеджер 24/7

Используйте материнский капитал на строительство частного дома независимо от возраста ребенка!

(согласно ФЗ-256 от 29.12.2006 г.)
Бесплатный выезд специалиста
Введите телефон и мы перезвоним
Вам в течение 3х минут
Запись на посещение
Введите телефон и мы перезвоним
Вам в течение 3х минут
Задайте ваш вопрос
И мы перезвоним вам с ответом!
Сайт использует файлы куки