Нижний Новгород, ул. Ларина, 27

Пн-Пт 10:00 - 18:00

Баня из бруса 6х6 с вальмовой крышей

Проект BB1/10

Экономия: 55 000 ₽

1 066 000  1 120 000 

  • Металлочерепица в подарок
  • Скидка на винтовые сваи 50%
  • Цена не вырастет во время стройки

Скидка на сваи 50%!

Строительство под ключ 3 дня

Нижний Новгород и область

Есть вопросы?

Специалист СК “Надёжность”
поможет с выбором

Описание

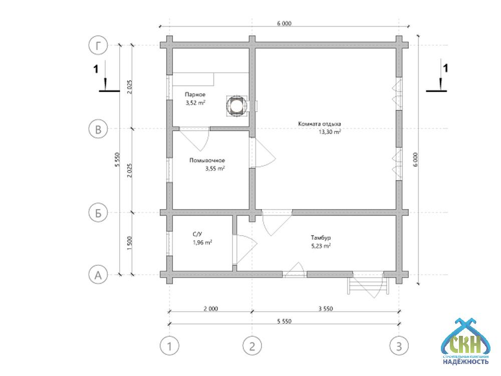
Баня из профилированного бруса 6×6 с вальмовой крышей отличается оригинальным архитектурным стилем и вместительностью. Общая площадь — 27,56 кв. м., парная и помывочная занимают 3,52 кв. м. и 3,55 кв. м.. Здесь есть все для банного ритуала: комната отдыха, душевая, крыльцо, чтобы освежиться на воздухе. Банный спа-ритуал раскрывается во всей полноте — от первых парных объятий до расслабляющего отдыха в тепле деревянных стен, наполненных ароматом живой древесины.

Смотрите как мы строим
подобные проекты

Проект

АтрибутЗначение
Типклассические
Размеры, м6x6
Форма баниквадратная
Кол. этажей1
Конструкциякомната отдыха
Крышавальмовая
Сан. узел1
Стильклассический
Цвет фасадакоричневый
Деревососна
Технологияиз бруса
ПомещениеПлощадь
Общая27,56 м²
Парная3,52 м²
Помывочная3,55 м²
Комната отдыха13,3 м²
Санузел1,96 м²
Тамбур5,23 м²

Комплектация

Состав комплектации
Баня под усадку
1 120 000 ₽
1 066 000 ₽
Баня с утеплением
1 510 000 ₽
1 438 000 ₽
Баня под ключ
1 682 000 ₽
1 602 000 ₽
Высота - 1-й этаж 2,0 м. Наружные и внутренние стены (по проекту) из профилированного бруса, камерной сушки 140х140 мм (сборка в чашу), хвоя.
Кровельное покрытие - профилированный лист (окрашенный) 0.4 мм, устройство обрешетки, контробрешетки и гидроизоляции.
Устройство карнизов, подшив кровельных свесов - евровагонка (хвоя) 12,5х88 мм.
Внешняя отделка фронтона - имитация бруса 28х135 мм.
Внутренняя отделка - евровагонка (хвоя) 12,5х88 мм.
Внутренняя отделка потолка парного отделения - евровагонка (осина) 12,5х88 мм.
Настил пола - обрезная доска 50х150 мм.
Настил пола - шпунтованная доска 36 мм с утеплением 100 мм минеральная вата Knauf Insulation 11-13 кг/м3.
Межвенцовый утеплитель - джут
Утепление внутренних стен, потолка 50 мм - минеральная вата Knauf Insulation 11-13 кг/м3.
Утепление внутренних стен, потолка 100 мм - минеральная вата Knauf Insulation 11-13 кг/м3.
Окна деревянные, двойное остекление.
Двери деревянные (банные, клиновые), без замка.
Полати - одноуровневые, Осина.
Полати - двухуровневые, Осина.
Печь - Везувий Оптимум 14 с баком на трубе 55 литров из нержавеющей стали, двухконтурным дымоходом и комплектом пожаробезопасности.
Печь встраивается в перегородку через кирпичную кладку и топится из комнаты отдыха.
Водоотведение из помывочного отделения - установка пластикового трапа.
Отделка цоколя - профилированный лист (окрашенный) с продухами и металлическим отливом.
Электрика - монтаж автомата, выключателя, светильников, розеток.

Дополнительные услуги

150 000 ₽
136 000 ₽
96 000 ₽
35 000 ₽

Бесплатный выезд специалиста

Оплата

  • Способы оплаты Наличными деньгами в кассу офиса компании или банковский перевод на расчетный счет компании.

  • Этапы оплаты Оплата комплекса услуг по строительству вашего дома или бани проходит в три этапа. Суммы фиксируются в договоре подряда на строительство с указанием сроков, это гарантирует заказчикам, что цена не вырастет во время стройки.

  • Оплата в кредит Мы работаем с многими банками партнерами. Подать заявку на оформление кредита можно в офисе компании или по телефону. Одобрение заявки занимает 30 минут.

Информирование

Еженедельный фото или видеоотчет в любом удобном для вас канале: почта, мессенджеры. Прораб ждет Вас на участке строительства в удобное для Вас время по договоренности.

Доставка

СК Надёжность возьмет на себя полный комплекс услуг по доставке, погрузке и разгрузке материалов до места строительства на Вашем участке в Нижнем Новгороде или Нижегородской области. 

Стоимость рассчитывается индивидуально на каждый объект менеджером в зависимости от веса груза, типа транспортного средства и километража.

Сроки строительства

Сроки строительства составляют от двух недель до двух месяцев в зависимости от размеров объекта и объема работ. При составлении договора подряда сроки указываются на момент оформления документов.

Гарантия

Современные технологии и качественный материал позволяет дать гарантию для наших клиентов 5 лет.

Посетите нашу выставочную площадку

Нижегородская область, Богородский район, СТ Родник, 7

Преимущества строительной компании Надёжность

Строительство бани под ключ

Проектирование, изготовление, транспортировка, монтаж, инженерные коммуникации, утепление, отделка

Кредит за 30 минут

Только паспорт и СНИЛС Использование материнского капитала для детей любого возраста

Профессиональный подход

Рекомендации специалистов на всех этапах от выбора фундамента до планирования интерьера

Собственное производство

Все комплектующие в наличии, срочная замена в случае необходимости

Контроль качества

Система контроля качества на всех этапах: производства, сушки, хранения, транспортировки, отгрузки

Технический надзор

Закрепленный прораб на объекте, опытные рабочие, высокое качество работ!

Выполненные проекты

Отзывы

Поделитесь вашим мнением

Ваш отзыв поможет другим покупателям сделать правильный выбор!

Артур Ахмедов 03 июля 2025
Хотел получить максимум от проекта, дополнительные опции оказались очень полезны. Установили систему контроля температуры и освещения. Теперь контролирую все удаленно. Компания предлагает продуманные решения.
Никита Лебедев 05 мая 2025
Лавки в парной оказались удобными даже для высоких людей. Плотно пригнаны друг к другу, без зазубрин. Приятно лежать, кожа не цепляется, это важно для чувствительной кожи.
Николай Гусев 01 января 2025
Из-за особенностей здоровья обратил внимание на систему отвода пара, она работает отлично. Пар равномерно распределяется, нет мест с чрезмерной концентрацией. Спасибо за индивидуальный подход.
Надежда Тимофеева 01 ноября 2024
Обратила внимание на каждую щель и уголок - все выполнено аккуратно. Ни одной торчащей рейки, все стыки плотно пригнаны, что говорит о высоком уровне профессионализма и любви к своему делу.
Вячеслав Трофимов 01 сентября 2024
Условия сотрудничества были понятны с самого начала. Никаких подводных камней. Цена, сроки, объем работ, все оговорили заранее, что позволяет планировать бюджет без лишних рисков.

Ждём вас в любом из наших офисов

Сартаково

Нижний Новгород, СТ Родник, 7

Больше вариантов

Вопросы и ответы

Трещины возможны, но только поверхностные. Глубокие трещины — редкость, так как брус камерной сушки и правильно обработан.
От 4 до 8 мм — в зависимости от плотности и породы дерева.
По желанию клиента — да. Такой профиль позволяет обойтись без отделки фасада.
Не очень. Главное — следить за нижними венцами, периодически конопатить щели и не допускать постоянного намокания дерева.
Да, через 6–8 месяцев после сборки. Иногда делаем её бесплатно в рамках гарантии.
Чаще советуем ленточный или свайно-ростверковый. Они экономичнее и подходят почти под любые грунты.
Баня из бруса 6×6 с вальмовой крышей, под ключ в Нижнем Новгороде, фото 1

Баня из бруса 6х6 с вальмовой крышей

×
Интерактивная карта Нижегородской области
Тоншаево Ветлуга Урень Тонкино Шаранга Варнавино Ковернино Городец Балахна Володарск Павлово Сосновское Вача Кулебаки Выкса Дивеево Лукоянов Починки Пильна Сергач Первомайск Гагино Богородск Шатки Арзамас Саров Княгинино Бутурлино Лысково Спасское Воротынец Перевоз Большое Мурашкино Ардатов Уразовка Сеченово Чкаловск Заволжье Сокольское Красные баки Воскресенское Семенов Бор Кстово Нижний Новгород Кстово Дзержинск Дальнее Константиново Шахунья Вад Вознесенское Большое Болдино Навашино
Заявка на проект
Введите телефон и мы перезвоним Вам в течение 3х минут, чтобы обсудить детали
Кредит на строительство
Условия кредитования
  • Ставка 14,5%
  • Сумма до 5 000 000 руб.
  • Срок от 6 до 60 месяцев
  • Решение за 30 минут
  • Персональный менеджер 24/7

Используйте материнский капитал на строительство частного дома независимо от возраста ребенка!

(согласно ФЗ-256 от 29.12.2006 г.)
Бесплатный выезд специалиста
Введите телефон и мы перезвоним
Вам в течение 3х минут
Запись на посещение
Введите телефон и мы перезвоним
Вам в течение 3х минут
Задайте ваш вопрос
И мы перезвоним вам с ответом!
Оставаясь на сайте, вы соглашаетесь на использование файлов куки и передачей данных службам веб-аналитики
5% скидка до 28 февраля!