Нижний Новгород, ул. Ларина, 27

Пн-Пт 10:00 - 18:00

Баня из бруса 6х6 с террасой

Проект BB1/9

Экономия: 46 000 ₽

894 000  939 000 

  • Металлочерепица в подарок
  • Скидка на винтовые сваи 50%
  • Цена не вырастет во время стройки

Скидка на сваи 50%!

Строительство под ключ 3 дня

Нижний Новгород и область

Есть вопросы?

Специалист СК “Надёжность”
поможет с выбором

Описание

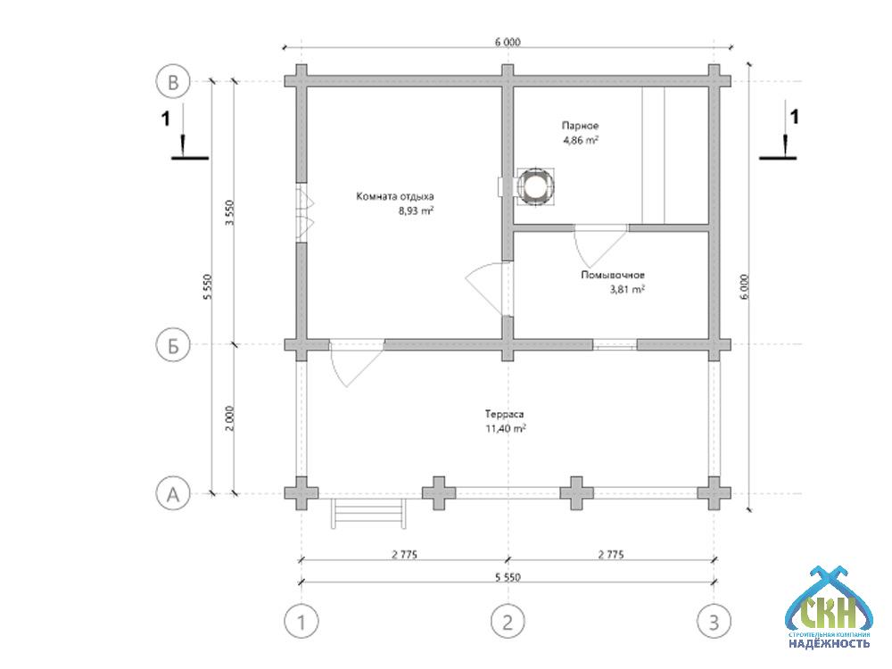
Современная баня из профилированного бруса 4×6 с террасой подходит для семейного отдыха. Общая площадь — 29 кв. м., парная и помывочная занимают 4,86 кв. м. и 3,81 кв. м.. Терраса площадью 11,4 кв. м. расширяет пространство для отдыха. Крыша с двумя скатами придаёт строению современный вид, подчёркивая индивидуальность проекта. Компания «Надёжность» как застройщик гарантируем качество исполнения. Парная релаксация уже ждет Вас после напряженного дня.

Смотрите как мы строим
подобные проекты

Проект

АтрибутЗначение
Типклассические
Размеры, м6x6
Форма баниквадратная
Кол. этажей1
Конструкциякомната отдыха, терраса
Крышадвухскатная
Сан. узелнет
Стильсовременный
Цвет фасадасерый
Деревососна
Технологияиз бруса
ПомещениеПлощадь
Общая29 м²
Парная4,86 м²
Помывочная3,81 м²
Комната отдыха8,93 м²
Терраса11,4 м²

Комплектация

Состав комплектации
Баня под усадку
939 000 ₽
894 000 ₽
Баня с утеплением
1 288 000 ₽
1 227 000 ₽
Баня под ключ
1 432 000 ₽
1 364 000 ₽
Высота - 1-й этаж 2,0 м. Наружные и внутренние стены (по проекту) из профилированного бруса, камерной сушки 140х140 мм (сборка в чашу), хвоя.
Кровельное покрытие - профилированный лист (окрашенный) 0.4 мм, устройство обрешетки, контробрешетки и гидроизоляции.
Устройство карнизов, подшив кровельных свесов - евровагонка (хвоя) 12,5х88 мм.
Внешняя отделка фронтона - имитация бруса 28х135 мм.
Внутренняя отделка - евровагонка (хвоя) 12,5х88 мм.
Внутренняя отделка потолка парного отделения - евровагонка (осина) 12,5х88 мм.
Настил пола - обрезная доска 50х150 мм.
Настил пола - шпунтованная доска 36 мм с утеплением 100 мм минеральная вата Knauf Insulation 11-13 кг/м3.
Межвенцовый утеплитель - джут
Утепление внутренних стен, потолка 50 мм - минеральная вата Knauf Insulation 11-13 кг/м3.
Утепление внутренних стен, потолка 100 мм - минеральная вата Knauf Insulation 11-13 кг/м3.
Окна деревянные, двойное остекление.
Двери деревянные (банные, клиновые), без замка.
Полати - одноуровневые, Осина.
Полати - двухуровневые, Осина.
Печь - Везувий Оптимум 14 с баком на трубе 55 литров из нержавеющей стали, двухконтурным дымоходом и комплектом пожаробезопасности.
Печь встраивается в перегородку через кирпичную кладку и топится из комнаты отдыха.
Водоотведение из помывочного отделения - установка пластикового трапа.
Отделка цоколя - профилированный лист (окрашенный) с продухами и металлическим отливом.
Электрика - монтаж автомата, выключателя, светильников, розеток.

Дополнительные услуги

150 000 ₽
102 000 ₽
72 000 ₽
28 000 ₽

Бесплатный выезд специалиста

Оплата

  • Способы оплаты Наличными деньгами в кассу офиса компании или банковский перевод на расчетный счет компании.

  • Этапы оплаты Оплата комплекса услуг по строительству вашего дома или бани проходит в три этапа. Суммы фиксируются в договоре подряда на строительство с указанием сроков, это гарантирует заказчикам, что цена не вырастет во время стройки.

  • Оплата в кредит Мы работаем с многими банками партнерами. Подать заявку на оформление кредита можно в офисе компании или по телефону. Одобрение заявки занимает 30 минут.

Информирование

Еженедельный фото или видеоотчет в любом удобном для вас канале: почта, мессенджеры. Прораб ждет Вас на участке строительства в удобное для Вас время по договоренности.

Доставка

СК Надёжность возьмет на себя полный комплекс услуг по доставке, погрузке и разгрузке материалов до места строительства на Вашем участке в Нижнем Новгороде или Нижегородской области. 

Стоимость рассчитывается индивидуально на каждый объект менеджером в зависимости от веса груза, типа транспортного средства и километража.

Сроки строительства

Сроки строительства составляют от двух недель до двух месяцев в зависимости от размеров объекта и объема работ. При составлении договора подряда сроки указываются на момент оформления документов.

Гарантия

Современные технологии и качественный материал позволяет дать гарантию для наших клиентов 5 лет.

Посетите нашу выставочную площадку

Нижегородская область, Богородский район, СТ Родник, 7

Преимущества строительной компании Надёжность

Строительство бани под ключ

Проектирование, изготовление, транспортировка, монтаж, инженерные коммуникации, утепление, отделка

Кредит за 30 минут

Только паспорт и СНИЛС Использование материнского капитала для детей любого возраста

Профессиональный подход

Рекомендации специалистов на всех этапах от выбора фундамента до планирования интерьера

Собственное производство

Все комплектующие в наличии, срочная замена в случае необходимости

Контроль качества

Система контроля качества на всех этапах: производства, сушки, хранения, транспортировки, отгрузки

Технический надзор

Закрепленный прораб на объекте, опытные рабочие, высокое качество работ!

Выполненные проекты

Отзывы

Поделитесь вашим мнением

Ваш отзыв поможет другим покупателям сделать правильный выбор!

Алексей Плотников 26 июня 2025
После строительства бани решили сделать зону отдыха и беседку, все организовали быстро и со вкусом. Инфраструктура стала местом семейного отдыха. Очень благодарен за теплоту и гостеприимство команды.
Роман Селезнёв 28 апреля 2025
Доверяю материалу и технологии, баня стоит уже второй сезон, как новая. Нет следов усадки, растрескивания, что говорит о том, что построено на годы, а не на сезон.
Милана Хабибуллина 24 декабря 2024
Хотела не просто баню, а целый комплекс отдыха - компания поддержала идею. Сделали место для чаепития, беседку ибытовку для инструментов. Теперь это любимое место всей семьи.
Артем Устинов 24 октября 2024
Обратил внимание, что компания не забывает о клиентах после завершения работ. Позвонили, спросили, все ли устраивает, предложили помощь, что показывает, что они действительно заботятся о репутации.
Борис Громов 25 августа 2024
Задача была не простая, совместить классическую баню с современными технологиями. Справились блестяще! Получилась уникальная конструкция, которая и красивая, и функциональная. Горжусь таким решением.

Ждём вас в любом из наших офисов

Сартаково

Нижний Новгород, СТ Родник, 7

Больше вариантов

Вопросы и ответы

Только камерная сушка. Естественная приводит к растрескиванию и короблению — мы этого избегаем.
Сборка — вертикальная, на месте. Предварительно всё проверяем на сухую.
В закрытом складе или под навесом, на поддонах, с вентиляцией.
Да, у всех наших бригад есть профессиональный электроинструмент: шуруповёрты Makita, УШМ Bosch, нивелиры Leica и т.д.
Да, при необходимости делаем кольцевой дренаж с геотекстилем и щебнем.
Да, особенно если он камерной сушки и с террасным профилем.
Баня из бруса 4×6 с террасой, под ключ в Нижнем Новгороде, фото 1

Баня из бруса 6х6 с террасой

×
Интерактивная карта Нижегородской области
Тоншаево Ветлуга Урень Тонкино Шаранга Варнавино Ковернино Городец Балахна Володарск Павлово Сосновское Вача Кулебаки Выкса Дивеево Лукоянов Починки Пильна Сергач Первомайск Гагино Богородск Шатки Арзамас Саров Княгинино Бутурлино Лысково Спасское Воротынец Перевоз Большое Мурашкино Ардатов Уразовка Сеченово Чкаловск Заволжье Сокольское Красные баки Воскресенское Семенов Бор Кстово Нижний Новгород Кстово Дзержинск Дальнее Константиново Шахунья Вад Вознесенское Большое Болдино Навашино
Заявка на проект
Введите телефон и мы перезвоним Вам в течение 3х минут, чтобы обсудить детали
Кредит на строительство
Условия кредитования
  • Ставка 14,5%
  • Сумма до 5 000 000 руб.
  • Срок от 6 до 60 месяцев
  • Решение за 30 минут
  • Персональный менеджер 24/7

Используйте материнский капитал на строительство частного дома независимо от возраста ребенка!

(согласно ФЗ-256 от 29.12.2006 г.)
Бесплатный выезд специалиста
Введите телефон и мы перезвоним
Вам в течение 3х минут
Запись на посещение
Введите телефон и мы перезвоним
Вам в течение 3х минут
Задайте ваш вопрос
И мы перезвоним вам с ответом!
Оставаясь на сайте, вы соглашаетесь на использование файлов куки и передачей данных службам веб-аналитики
5% скидка до 28 февраля!