Нижний Новгород, СТ Родник, 7

Нижний Новгород, ул. Ларина, 27

Нижний Новгород, СТ Родник, 7

Пн-Пт 10-18 ч.

Нижний Новгород, СТ Родник, 7

Нижний Новгород, ул. Ларина, 27

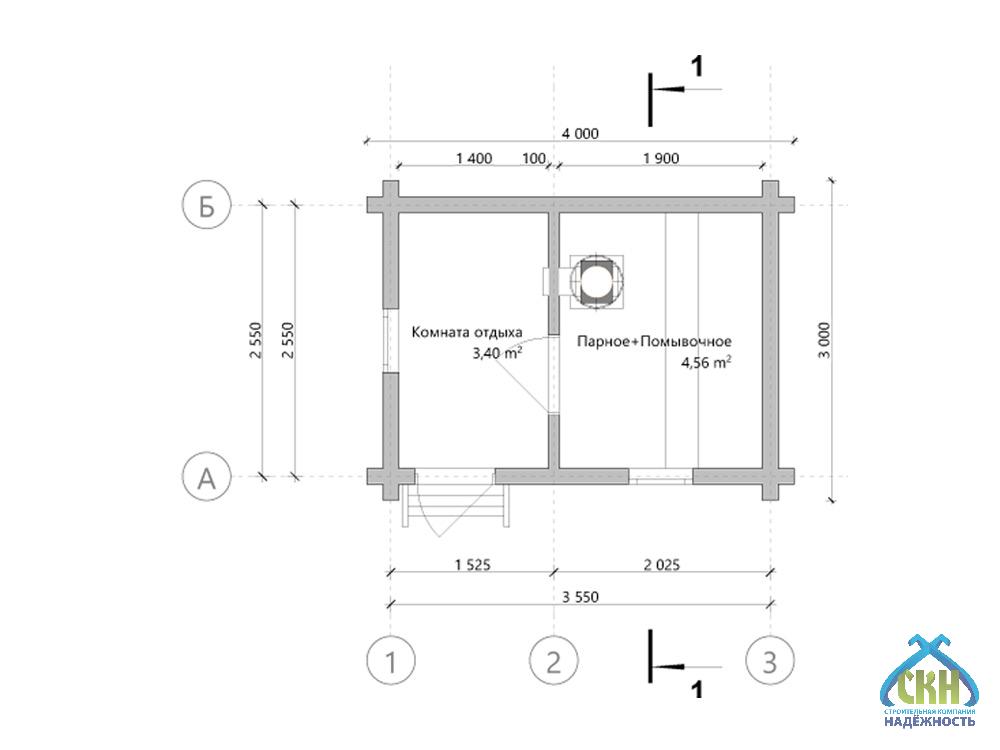
Баня из бруса 4х3 с совмещенной парной и помывочной

Проект BB1/1

Экономия: 24 000 ₽

478 000  502 000 

  • Металлочерепица в подарок
  • Скидка на винтовые сваи 50%
  • Цена не вырастет во время стройки

Закажите до 10 декабря и получите дополнительную скидку 5%!

Строительство под ключ 2 дня

Нижний Новгород и область

Есть вопросы?

Специалист СК “Надёжность”
поможет с выбором

Описание

Компактная и вместительная баня из профилированного бруса 4×3 с совмещенной парной и помывочной отличается продуманностью планировки. Общая площадь — 7,96 кв. м., совмещенная парная и помывочная занимают 4,56 кв. м., а комната отдыха — 3,4 кв. м.. Баня выполнена в классическом стиле с двухскатной крышей. Баня для души и тела станет любимым местом встреч с семьей или друзьями.

Смотрите как мы строим
подобные проекты

Проект

АтрибутЗначение
Типклассические
Размеры, м3x4
Брусквадратный, камерной сушки
Размер бруса140x140
Форма банипрямоугольная
Кол. этажей1
Конструкциякомната отдыха
Крышадвухскатная
Сан. узелнет
Стильклассический
Цвет фасадабежевый
Деревососна
ПомещениеПлощадь
Общая7,96 м²
Совмещенная Парная + Помывочная4,56 м²
Комната отдыха3,4 м²

Комплектация

Состав комплектации
Баня под усадку
502 000 ₽
478 000 ₽
Баня с утеплением
717 000 ₽
683 000 ₽
Баня под ключ
807 000 ₽
769 000 ₽
Высота - 1-й этаж 2,0 м.
Наружные и внутренние стены (по проекту) из профилированного бруса, камерной сушки 140х140 мм (сборка в чашу), хвоя.
Лаги перекрытий и стропильная система 50х100 мм, с шагом 590 мм.
Кровельное покрытие - профилированный лист (окрашенный) 0.4 мм, устройство обрешетки, контробрешетки и гидроизоляции.
Устройство карнизов, подшив кровельных свесов - евровагонка (хвоя) 12,5х88 мм.
Внешняя отделка фронтона - имитация бруса 28х135 мм.
Внутренняя отделка - евровагонка (хвоя) 12,5х88 мм.
Внутренняя отделка потолка парного отделения - евровагонка (осина) 12,5х88 мм.
Настил пола - обрезная доска 50х150 мм.
Настил пола - шпунтованная доска 36 мм с утеплением 100 мм минеральная вата Knauf Insulation 11-13 кг/м3.
Межвенцовый утеплитель - джут
Утепление внутренних стен, потолка 50 мм - минеральная вата Knauf Insulation 11-13 кг/м3.
Утепление внутренних стен, потолка 100 мм - минеральная вата Knauf Insulation 11-13 кг/м3.
Окна деревянные, двойное остекление.
Двери деревянные (банные, клиновые), без замка.
Полати - одноуровневые, Осина.
Полати - двухуровневые, Осина.
Печь - Везувий Оптимум 14 (сталь 5 мм) с баком на трубе 55 литров из нержавеющей стали, двухконтурным дымоходом и комплектом пожаробезопасности.
Печь встраивается в перегородку через кирпичную кладку и топится из комнаты отдыха.
Водоотведение из помывочного отделения - установка пластикового трапа.
Утепление пола экструдированным пенополиэтиролом 50 мм.
Отделка цоколя - профилированный лист (окрашенный) с продухами и металлическим отливом.
Электрика - монтаж автомата, выключателя, светильников, розеток.
Люк - лаз (доступ на чердачное пространство).

Дополнительные услуги

150 000 ₽
51 000 ₽
36 000 ₽
14 000 ₽

Бесплатный выезд специалиста

50% скидка на винтовые сваи
или металлочерепица в подарок!

Оплата

  • Способы оплаты Наличными деньгами в кассу офиса компании или банковский перевод на расчетный счет компании.

  • Этапы оплаты Оплата комплекса услуг по строительству вашего дома или бани проходит в три этапа. Суммы фиксируются в договоре подряда на строительство с указанием сроков, это гарантирует заказчикам, что цена не вырастет во время стройки.

  • Оплата в кредит Мы работаем с многими банками партнерами. Подать заявку на оформление кредита можно в офисе компании или по телефону. Одобрение заявки занимает 30 минут.

Информирование

Еженедельный фото или видеоотчет в любом удобном для вас канале: почта, мессенджеры. Прораб ждет Вас на участке строительства в удобное для Вас время по договоренности.

Доставка

СК Надёжность возьмет на себя полный комплекс услуг по доставке, погрузке и разгрузке материалов до места строительства на Вашем участке в Нижнем Новгороде или Нижегородской области. 

Стоимость рассчитывается индивидуально на каждый объект менеджером в зависимости от веса груза, типа транспортного средства и километража.

Сроки строительства

Сроки строительства составляют от двух недель до двух месяцев в зависимости от размеров объекта и объема работ. При составлении договора подряда сроки указываются на момент оформления документов.

Гарантия

Современные технологии и качественный материал позволяет дать гарантию для наших клиентов 1 год.

Посетите нашу выставочную площадку

Нижегородская область, Богородский район, СТ Родник, 7

Преимущества строительной компании Надёжность

Строительство бани под ключ

Проектирование, изготовление, транспортировка, монтаж, инженерные коммуникации, утепление, отделка

Кредит за 30 минут

Только паспорт и СНИЛС Использование материнского капитала для детей любого возраста

Профессиональный подход

Рекомендации специалистов на всех этапах от выбора фундамента до планирования интерьера

Собственное производство

Все комплектующие в наличии, срочная замена в случае необходимости

Контроль качества

Система контроля качества на всех этапах: производства, сушки, хранения, транспортировки, отгрузки

Технический надзор

Закрепленный прораб на объекте, опытные рабочие, высокое качество работ!

Выполненные проекты

Отзывы

Поделитесь вашим мнением

Ваш отзыв поможет другим покупателям сделать правильный выбор!

Михаил Алексеев 09 июня 2025
Для меня важна функциональность, площадь парной подобрана идеально. Вместе с друзьями топим парную, и никому не тесно. Компактно и практично, никакого лишнего пространства.
Сергей Белянкин 11 апреля 2025
После парной важен свежий воздух, система проветривания справляется отлично. За пару минут помещение очищается, что делает отдых комплексным, без ощущения усталости.
Александр Крюков 06 декабря 2024
Компания предоставила полный пакет документов, что важно для меня как для педанта. Все чертежи, схемы и разрешения оформлены правильно, без ошибок, что говорит о профессионализме специалистов.
Шамиль Закиров 06 октября 2024
После строительства территория была чистой, внутри, без пыли и грязи. Сразу можно было начинать пользоваться баней. Такой уровень чистоты встречается редко.
Павел Семёнов 07 августа 2024
Система вентиляции работает четко: воздух свежий, нет затхлости. Особенно приятно после плотного пара. Сделали все сбалансированно, без переборов.

Ждём вас в любом из наших офисов

Сартаково

Нижний Новгород, СТ Родник, 7

Больше вариантов

Вопросы и ответы

Стандартное сечение — 140х140 мм для бань. Для летних вариантов можно использовать 90х140 мм — это чуть экономичнее.
По желанию клиента — да. Используем огнебиозащиту типа «Огнеблок» или «Пиролиз».
Проверяем каждые 2–3 ряда уровнем и лазерным нивелиром.
Минимум 30 см — это защищает от намокания нижнего венца и обеспечивает вентиляцию.
Очень. Мы используем только безопасные составы: Neomid, Senezh, Tikkurila — всё без вредных химикатов.
Через 6–8 месяцев — когда усадка почти завершится.
Баня из бруса 3×4 с совмещенной парной и помывочной, под ключ в Нижнем Новгороде, фото 1

Баня из бруса 4х3 с совмещенной парной и помывочной

×

Интерактивная карта Нижегородской области

Тоншаево Ветлуга Урень Тонкино Шаранга Варнавино Ковернино Городец Балахна Володарск Павлово Сосновское Вача Кулебаки Выкса Дивеево Лукоянов Починки Пильна Сергач Первомайск Гагино Богородск Шатки Арзамас Саров Княгинино Бутурлино Лысково Спасское Воротынец Перевоз Большое Мурашкино Ардатов Уразовка Сеченово Чкаловск Заволжье Сокольское Красные баки Воскресенское Семенов Бор Кстово Нижний Новгород Кстово Дзержинск Дальнее Константиново Шахунья Вад Вознесенское Большое Болдино Навашино
Заявка на проект
Введите телефон и мы перезвоним Вам в течение 3х минут, чтобы обсудить детали

Каталог

Страницы

5% скидка до 31 декабря!
Кредит на строительство
Условия кредитования
  • Ставка 14,5%
  • Сумма до 5 000 000 руб.
  • Срок от 6 до 60 месяцев
  • Решение за 30 минут
  • Персональный менеджер 24/7

Используйте материнский капитал на строительство частного дома независимо от возраста ребенка!

(согласно ФЗ-256 от 29.12.2006 г.)
Бесплатный выезд специалиста
Введите телефон и мы перезвоним
Вам в течение 3х минут
Запись на посещение
Введите телефон и мы перезвоним
Вам в течение 3х минут
Задайте ваш вопрос
И мы перезвоним вам с ответом!

Оставаясь на сайте, вы соглашаетесь на использование файлов куки и передачей данных службам веб-аналитики