Нижний Новгород, СТ Родник, 7

Нижний Новгород, ул. Ларина, 27

Нижний Новгород, СТ Родник, 7

Пн-Пт 10-18 ч.

Нижний Новгород, СТ Родник, 7

Нижний Новгород, ул. Ларина, 27

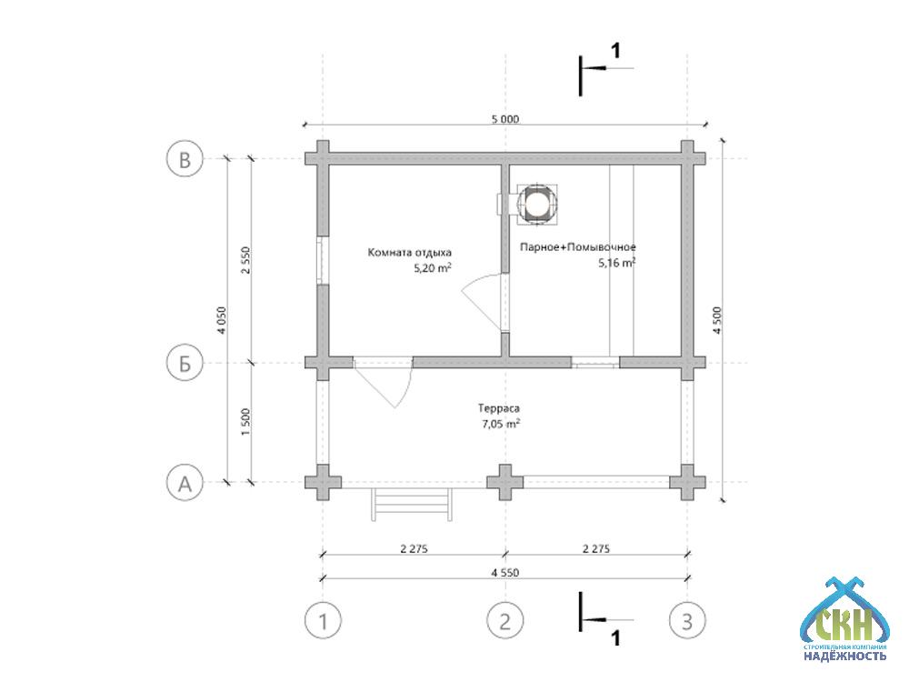
Баня из бруса 5х4,5 пятистенок

Проект BB1/5

Экономия: 29 000 ₽

572 000  600 000 

  • Металлочерепица в подарок
  • Скидка на винтовые сваи 50%
  • Цена не вырастет во время стройки

Скидка на сваи 50%!

Строительство под ключ 2 дня

Нижний Новгород и область

Есть вопросы?

Специалист СК “Надёжность”
поможет с выбором

Описание

Стильная баня из профилированного бруса 5×4,5 создана для истинного удовольствия от пара. Общая площадь составляет 17,41 кв. м., включая парную и помывочную на 5,16 кв. м. и 5,2 кв. м.. Просторная комната отдыха приглашает расслабиться после банных процедур. Баня выполнена в классическом стиле с двухскатной крышей и пятистенком. Крыльцо добавляет уюта и удобства. Низкая цена делает эту баню доступным решением для комфортного отдыха. Парная терапия подарит оздоровительный эффект и душевное спокойствие.

Смотрите как мы строим
подобные проекты

Проект

АтрибутЗначение
Типклассические
Размеры, м5x5
Форма банипрямоугольная
Кол. этажей1
Конструкциякомната отдыха, терраса, пятистенок
Крышадвухскатная
Сан. узелнет
Стильклассический
Цвет фасадабежевый
Деревососна
Технологияиз бруса
ПомещениеПлощадь
Общая17,41 м²
Совмещенная Парная + Помывочная5,16 м²
Комната отдыха5,2 м²
Терраса7,05 м²

Комплектация

Состав комплектации
Баня под усадку
600 000 ₽
572 000 ₽
Баня с утеплением
893 000 ₽
850 000 ₽
Баня под ключ
1 009 000 ₽
961 000 ₽
Высота - 1-й этаж 2,0 м.
Наружные и внутренние стены (по проекту) из профилированного бруса, камерной сушки 140х140 мм (сборка в чашу), хвоя.
Лаги перекрытий и стропильная система 50х100 мм, с шагом 590 мм.
Кровельное покрытие - профилированный лист (окрашенный) 0.4 мм, устройство обрешетки, контробрешетки и гидроизоляции.
Устройство карнизов, подшив кровельных свесов - евровагонка (хвоя) 12,5х88 мм.
Внешняя отделка фронтона - имитация бруса 28х135 мм.
Внутренняя отделка - евровагонка (хвоя) 12,5х88 мм.
Внутренняя отделка потолка парного отделения - евровагонка (осина) 12,5х88 мм.
Настил пола - обрезная доска 50х150 мм.
Настил пола - шпунтованная доска 36 мм с утеплением 100 мм минеральная вата Knauf Insulation 11-13 кг/м3.
Межвенцовый утеплитель - джут
Утепление внутренних стен, потолка 50 мм - минеральная вата Knauf Insulation 11-13 кг/м3.
Утепление внутренних стен, потолка 100 мм - минеральная вата Knauf Insulation 11-13 кг/м3.
Окна деревянные, двойное остекление.
Двери деревянные (банные, клиновые), без замка.
Полати - одноуровневые, Осина.
Полати - двухуровневые, Осина.
Печь - Везувий Оптимум 14 (сталь 5 мм) с баком на трубе 55 литров из нержавеющей стали, двухконтурным дымоходом и комплектом пожаробезопасности.
Печь встраивается в перегородку через кирпичную кладку и топится из комнаты отдыха.
Водоотведение из помывочного отделения - установка пластикового трапа.
Утепление пола экструдированным пенополиэтиролом 50 мм.
Отделка цоколя - профилированный лист (окрашенный) с продухами и металлическим отливом.
Электрика - монтаж автомата, выключателя, светильников, розеток.
Люк - лаз (доступ на чердачное пространство).

Дополнительные услуги

150 000 ₽
76 500 ₽
54 000 ₽
21 000 ₽

Бесплатный выезд специалиста

Оплата

  • Способы оплаты Наличными деньгами в кассу офиса компании или банковский перевод на расчетный счет компании.

  • Этапы оплаты Оплата комплекса услуг по строительству вашего дома или бани проходит в три этапа. Суммы фиксируются в договоре подряда на строительство с указанием сроков, это гарантирует заказчикам, что цена не вырастет во время стройки.

  • Оплата в кредит Мы работаем с многими банками партнерами. Подать заявку на оформление кредита можно в офисе компании или по телефону. Одобрение заявки занимает 30 минут.

Информирование

Еженедельный фото или видеоотчет в любом удобном для вас канале: почта, мессенджеры. Прораб ждет Вас на участке строительства в удобное для Вас время по договоренности.

Доставка

СК Надёжность возьмет на себя полный комплекс услуг по доставке, погрузке и разгрузке материалов до места строительства на Вашем участке в Нижнем Новгороде или Нижегородской области. 

Стоимость рассчитывается индивидуально на каждый объект менеджером в зависимости от веса груза, типа транспортного средства и километража.

Сроки строительства

Сроки строительства составляют от двух недель до двух месяцев в зависимости от размеров объекта и объема работ. При составлении договора подряда сроки указываются на момент оформления документов.

Гарантия

Современные технологии и качественный материал позволяет дать гарантию для наших клиентов 5 лет.

Посетите нашу выставочную площадку

Нижегородская область, Богородский район, СТ Родник, 7

Преимущества строительной компании Надёжность

Строительство бани под ключ

Проектирование, изготовление, транспортировка, монтаж, инженерные коммуникации, утепление, отделка

Кредит за 30 минут

Только паспорт и СНИЛС Использование материнского капитала для детей любого возраста

Профессиональный подход

Рекомендации специалистов на всех этапах от выбора фундамента до планирования интерьера

Собственное производство

Все комплектующие в наличии, срочная замена в случае необходимости

Контроль качества

Система контроля качества на всех этапах: производства, сушки, хранения, транспортировки, отгрузки

Технический надзор

Закрепленный прораб на объекте, опытные рабочие, высокое качество работ!

Выполненные проекты

Отзывы

Поделитесь вашим мнением

Ваш отзыв поможет другим покупателям сделать правильный выбор!

Алексей Гордеев 31 июля 2025
Цены приятно удивили, доступные и соответствуют качеству. За такую сумму получили отличную баню из бруса. Строители дали несколько полезных советов, которые помогли сэкономить еще больше.
Игорь Зайцев 03 июня 2025
После окончания работ не оставили меня одного. Помогли с первым запуском, дали рекомендации по уходу, что важно, особенно если человек впервые имеет дело с деревянной баней.
Алексей Медведев 03 апреля 2025
Не люблю стандартные решения, поэтому рад, что компания предложила массу вариантов отделки. Выбрал необычную комбинацию материалов, выглядит стильно и оригинально. Друзья в восторге!
Диана Ахмедова 29 ноября 2024
Когда я увидела готовую баню - глазам не поверила! Очень красивый дизайн, сочетание дерева и камня. Подруги теперь просятся ко мне на выходные только ради того, чтобы попариться в такой красоте.
Дарья Корнеева 29 сентября 2024
Все сотрудники были доброжелательны, всегда здоровались и шли навстречу. Даже при мелких правках проекта никто не сопротивлялся. После их работы хочется вернуться снова и порекомендовать всем знакомым.

Ждём вас в любом из наших офисов

Сартаково

Нижний Новгород, СТ Родник, 7

Больше вариантов

Вопросы и ответы

Обычно до 6 метров. Если нужно — можем сделать индивидуальные размеры под ваш участок.
Обязательно! Все наши бани собираются из древесины, обработанной противогрибковыми и антисептическими средствами.
Да, у всех наших бригад есть лазерные нивелиры.
Самосвал + манипулятор или еврофура с краном — зависит от объёма и расположения участка.
Да, особенно если использовать лиственницу или кедр. Сосновый аромат тоже приятный и полезный.
Да, мы используем продукты Tikkurila, Pinotex, Belinka — все подходят под древесину в банях.
Баня из бруса 3×5 пятистенок, под ключ в Нижнем Новгороде, фото 1

Баня из бруса 5х4,5 пятистенок

×

Интерактивная карта Нижегородской области

Тоншаево Ветлуга Урень Тонкино Шаранга Варнавино Ковернино Городец Балахна Володарск Павлово Сосновское Вача Кулебаки Выкса Дивеево Лукоянов Починки Пильна Сергач Первомайск Гагино Богородск Шатки Арзамас Саров Княгинино Бутурлино Лысково Спасское Воротынец Перевоз Большое Мурашкино Ардатов Уразовка Сеченово Чкаловск Заволжье Сокольское Красные баки Воскресенское Семенов Бор Кстово Нижний Новгород Кстово Дзержинск Дальнее Константиново Шахунья Вад Вознесенское Большое Болдино Навашино
Заявка на проект
Введите телефон и мы перезвоним Вам в течение 3х минут, чтобы обсудить детали

Каталог

Страницы

5% скидка до 31 января!
Кредит на строительство
Условия кредитования
  • Ставка 14,5%
  • Сумма до 5 000 000 руб.
  • Срок от 6 до 60 месяцев
  • Решение за 30 минут
  • Персональный менеджер 24/7

Используйте материнский капитал на строительство частного дома независимо от возраста ребенка!

(согласно ФЗ-256 от 29.12.2006 г.)
Бесплатный выезд специалиста
Введите телефон и мы перезвоним
Вам в течение 3х минут
Запись на посещение
Введите телефон и мы перезвоним
Вам в течение 3х минут
Задайте ваш вопрос
И мы перезвоним вам с ответом!

Оставаясь на сайте, вы соглашаетесь на использование файлов куки и передачей данных службам веб-аналитики