Нижний Новгород, СТ Родник, 7

Нижний Новгород, ул. Ларина, 27

Нижний Новгород, СТ Родник, 7

Пн-Пт 10-18 ч.

Нижний Новгород, СТ Родник, 7

Нижний Новгород, ул. Ларина, 27

Баня из бревна 6×6 с раздельной парной и помывочной

Проект BO1/10

Экономия: 39 000 ₽

892 000  937 000 

  • Металлочерепица в подарок
  • Скидка на винтовые сваи 50%
  • Цена не вырастет во время стройки

Скидка на сваи 50%!

Строительство под ключ 3 дня

Нижний Новгород и область

Есть вопросы?

Специалист СК “Надёжность”
поможет с выбором

Описание

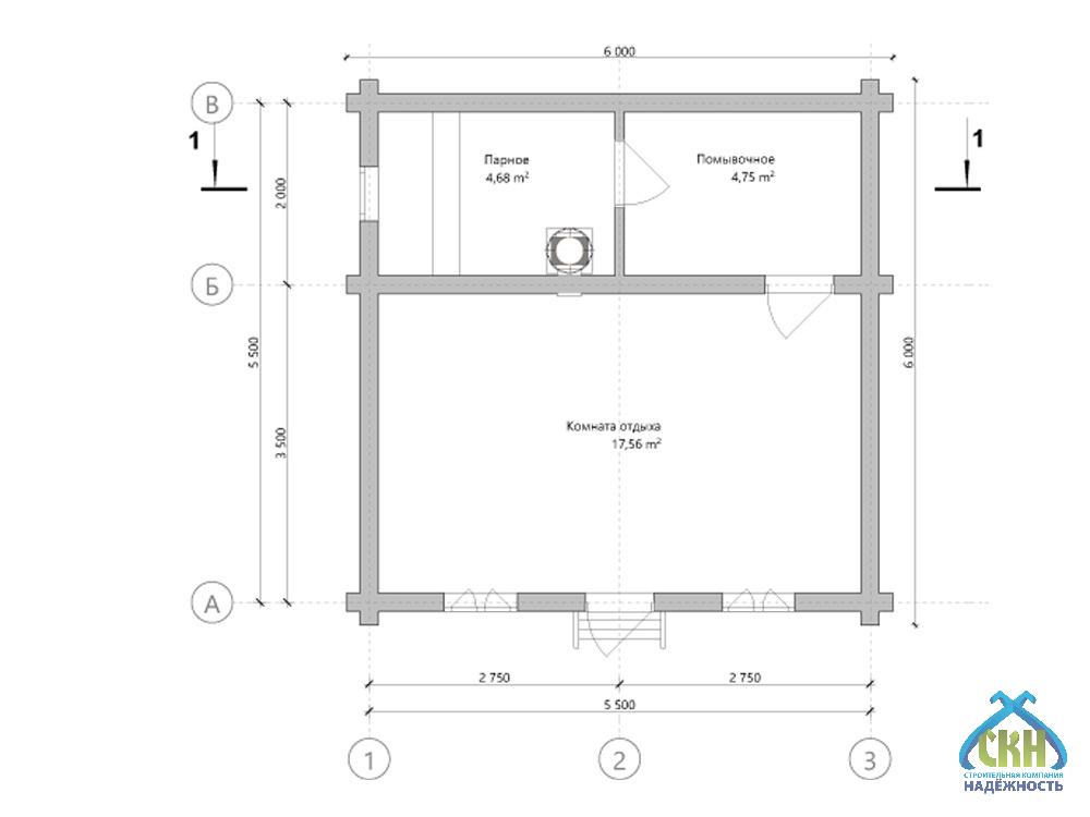
Баня из оцилиндрованного бревна размером 6х6 метров спроектирована так, чтобы парная и помывочная находились отдельно друг от друга. Общая площадь составляет 27 кв. м., парная — 4,68 кв. м., помывочная — 4,75 кв. м.. Комнату отдыха можно использовать как зону для чаепития или отдыха после процедуры. Крыльцо добавляет строению завершённости. Парная медитация возможна благодаря чёткой организации пространства. Удобство и функциональность проявляются во всём, от расположения помещений до деталей отделки.

Смотрите как мы строим
подобные проекты

Проект

АтрибутЗначение
Типклассические
Размеры, м6x6
Форма баниквадратная
Кол. этажей1
Конструкциякомната отдыха
Крышадвухскатная
Сан. узелнет
Стильклассический
Цвет фасадаоранжевый
Деревососна
Технологияиз бревна
ПомещениеПлощадь
Общая26,99 м²
Парная4,68 м²
Помывочная4,75 м²
Комната отдыха17,56 м²

Комплектация

Состав комплектации
Баня под усадку
937 000 ₽
892 000 ₽
Лето
1 291 000 ₽
1 230 000 ₽
Баня под ключ
1 441 000 ₽
1 372 000 ₽
Высота - 1-й этаж 2,0 м.
Наружние и внутренние стены из оцилиндрованного бревна, естественной влажности d-200 мм (сборка в чашу), хвоя.
Лаги перекрытий и стропильная система 50х100 мм, с шагом 590 мм.
Кровельное покрытие - профилированный лист (окрашенный) 0.4 мм, устройство обрешетки, контробрешетки и гидроизоляции.
Устройство карнизов, подшив кровельных свесов - евровагонка (хвоя) 12,5х88 мм.
Внешняя отделка фронтона - имитация бревна 28х135 мм.
Внутренняя отделка - евровагонка (хвоя) 12,5х88 мм.
Внутренняя отделка потолка парного отделения - евровагонка (осина) 12,5х88 мм.
Настил пола - обрезная доска 50х150 мм.
Настил пола - шпунтованная доска 36 мм с утеплением 100 мм минеральная вата Knauf Insulation 11-13 кг/м3.
Межвенцовый утеплитель - джут
Утепление внутренних стен, потолка 50 мм - минеральная вата Knauf Insulation 11-13 кг/м3.
Утепление внутренних стен, потолка 100 мм - минеральная вата Knauf Insulation 11-13 кг/м3.
Окна деревянные, двойное остекление.
Двери деревянные (банные, клиновые), без замка.
Полати - одноуровневые, Осина.
Полати - двухуровневые, Осина.
Печь - Везувий Оптимум 14 (сталь 5 мм) с баком на трубе 55 литров из нержавеющей стали, двухконтурным дымоходом и комплектом пожаробезопасности.
Печь встраивается в перегородку через кирпичную кладку и топится из комнаты отдыха.
Отделка цоколя - профилированный лист (окрашенный) с продухами и металлическим отливом.
Электрика - монтаж автомата, выключателя, светильников, розеток.
Люк - лаз (доступ на чердачное пространство).
Обвязка 150х200 мм естественной влажности + антисептик (обвязки и лаг пола)+брусок 50х50мм
Столбы + перила (сборка перерубом)
Настил пола террасы - обрезная доска 50х150 мм естсетвенной влажности
Обналичка - евровагонка 12,5х88мм
Обналичка внутри - евровагонка 12,5х88 мм
Плинтус - потолок, стены (каркасные перегородки), пол
Решетка для проветривания чердачного перекрытия
Пленки ондутис
В парном отделении либо окно 600х400 деревянное либо вент решетка (на выбор)

Дополнительные услуги

150 000 ₽
102 000 ₽
72 000 ₽
21 000 ₽

Бесплатный выезд специалиста

Оплата

  • Способы оплаты Наличными деньгами в кассу офиса компании или банковский перевод на расчетный счет компании.

  • Этапы оплаты Оплата комплекса услуг по строительству вашего дома или бани проходит в три этапа. Суммы фиксируются в договоре подряда на строительство с указанием сроков, это гарантирует заказчикам, что цена не вырастет во время стройки.

  • Оплата в кредит Мы работаем с многими банками партнерами. Подать заявку на оформление кредита можно в офисе компании или по телефону. Одобрение заявки занимает 30 минут.

Информирование

Еженедельный фото или видеоотчет в любом удобном для вас канале: почта, мессенджеры. Прораб ждет Вас на участке строительства в удобное для Вас время по договоренности.

Доставка

СК Надёжность возьмет на себя полный комплекс услуг по доставке, погрузке и разгрузке материалов до места строительства на Вашем участке в Нижнем Новгороде или Нижегородской области. 

Стоимость рассчитывается индивидуально на каждый объект менеджером в зависимости от веса груза, типа транспортного средства и километража.

Сроки строительства

Сроки строительства составляют от двух недель до двух месяцев в зависимости от размеров объекта и объема работ. При составлении договора подряда сроки указываются на момент оформления документов.

Гарантия

Современные технологии и качественный материал позволяет дать гарантию для наших клиентов 5 лет.

Посетите нашу выставочную площадку

Нижегородская область, Богородский район, СТ Родник, 7

Преимущества строительной компании Надёжность

Строительство бани под ключ

Проектирование, изготовление, транспортировка, монтаж, инженерные коммуникации, утепление, отделка

Кредит за 30 минут

Только паспорт и СНИЛС Использование материнского капитала для детей любого возраста

Профессиональный подход

Рекомендации специалистов на всех этапах от выбора фундамента до планирования интерьера

Собственное производство

Все комплектующие в наличии, срочная замена в случае необходимости

Контроль качества

Система контроля качества на всех этапах: производства, сушки, хранения, транспортировки, отгрузки

Технический надзор

Закрепленный прораб на объекте, опытные рабочие, высокое качество работ!

Выполненные проекты

Отзывы

Поделитесь вашим мнением

Ваш отзыв поможет другим покупателям сделать правильный выбор!

Владимир Пантелеев 06 мая 2025
Все было просто: выбрал готовой проект, заключили договор, привезли комплект бревен. Монтажники приехали через пару недель, за пять дней собрали все как конструктор. Я даже не понял, как они это так быстро сделали. Просто вчера были бревна и инструменты, а сегодня — уже стены, двери, окна.
Валерия Бородина 02 мая 2025
Баня получилась теплая, уютная, пахнет лесом. Зимой топил первый раз — удивился, как быстро нагрелась. Пар мягкий, приятный, совсем не такой, как в сауне в спортзале. Даже жена, которая раньше терпеть не могла бани, теперь говорит, что ходит с удовольствием.
Эдуард Королев 03 февраля 2025
Площадь оформлена с вниманием к каждой детали. В общем, если у вас мало времени, но хочется хорошее качество, оцилиндрованное бревно - то, что нужно. Минимум хлопот, максимум удовольствия и пользы для здоровья.
Вероника Киселёва 07 ноября 2024
Покраска и отделка - без потеков, все аккуратно. Цвет подобран удачно, покрытие долговечное. Малярная работа уровня высокого уровня.
Олег Чернов 07 августа 2024
В этой бане легко войти в состояние медитации. Она мягкая, плавная, с чувством. Так что если вы цените сочетание традиций и технологий, то рекомендую оцилиндрованное бревно. Главное, работать с проверенными поставщиками и понимать особенности технологии.

Ждём вас в любом из наших офисов

Сартаково

Нижний Новгород, СТ Родник, 7

Больше вариантов

Вопросы и ответы

Да, делаем — они помогают сохранить форму бревна и уменьшить растрескивание при усыхании.
По желанию устанавливаем систему принудительной вентиляции с регулировкой интенсивности — чтобы воздух всегда был свежим и комфортным.
Чистовые полы можем сделать по вашему желанию — из доски или плитки, особенно в моечном отделении.
Да, водосток устанавливается по желанию — чтобы защитить стены и фундамент от воды.
Работаем с проверенными брендами: «Термофор», «Ермак», Harvia, Timbru. Выберете сами — мы поможем с установкой.
Материалы складируем под навесом, на поддонах — чтобы не намокли и не деформировались.
Баня из бревна 6×6 с раздельной парной и помывочной, под ключ в Нижнем Новгороде, фото 1

Баня из бревна 6×6 с раздельной парной и помывочной

×

Интерактивная карта Нижегородской области

Тоншаево Ветлуга Урень Тонкино Шаранга Варнавино Ковернино Городец Балахна Володарск Павлово Сосновское Вача Кулебаки Выкса Дивеево Лукоянов Починки Пильна Сергач Первомайск Гагино Богородск Шатки Арзамас Саров Княгинино Бутурлино Лысково Спасское Воротынец Перевоз Большое Мурашкино Ардатов Уразовка Сеченово Чкаловск Заволжье Сокольское Красные баки Воскресенское Семенов Бор Кстово Нижний Новгород Кстово Дзержинск Дальнее Константиново Шахунья Вад Вознесенское Большое Болдино Навашино
Заявка на проект
Введите телефон и мы перезвоним Вам в течение 3х минут, чтобы обсудить детали

Каталог

Страницы

5% скидка до 31 января!
Кредит на строительство
Условия кредитования
  • Ставка 14,5%
  • Сумма до 5 000 000 руб.
  • Срок от 6 до 60 месяцев
  • Решение за 30 минут
  • Персональный менеджер 24/7

Используйте материнский капитал на строительство частного дома независимо от возраста ребенка!

(согласно ФЗ-256 от 29.12.2006 г.)
Бесплатный выезд специалиста
Введите телефон и мы перезвоним
Вам в течение 3х минут
Запись на посещение
Введите телефон и мы перезвоним
Вам в течение 3х минут
Задайте ваш вопрос
И мы перезвоним вам с ответом!

Оставаясь на сайте, вы соглашаетесь на использование файлов куки и передачей данных службам веб-аналитики