Нижний Новгород, ул. Ларина, 27

Пн-Пт 10:00 - 18:00

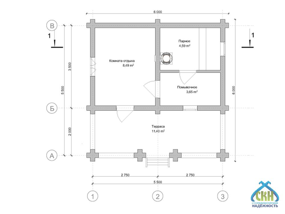
Баня из бревна 6×6 с раздельной парной и моечной

Проект BO1/9

Экономия: 39 000 ₽

870 000  913 000 

  • Металлочерепица в подарок
  • Скидка на винтовые сваи 50%
  • Цена не вырастет во время стройки

Скидка на сваи 50%!

Строительство под ключ 5 дней

Нижний Новгород и область

Есть вопросы?

Специалист СК “Надёжность”
поможет с выбором

Описание

Стильная баня из оцилиндрованного бревна 6×6 выполнена в классическом исполнении. Общая площадь — 28,13 кв. м., парная — 4,59 кв. м., помывочная — 3,65 кв. м.. Комната отдыха на 8,49 кв. м. дополняется гостевой зоной на 11,4 кв. м.. Строительство точно в срок даёт уверенность в планах. Банный ритуал превращается в ритуал блаженства за счет ароматов натуральной древесины.

Смотрите как мы строим
подобные проекты

Проект

АтрибутЗначение
Типклассические
Размеры, м6x6
Форма банипрямоугольная
Кол. этажей1
Конструкциякомната отдыха, терраса
Крышадвухскатная
Сан. узелнет
Стильклассический
Цвет фасадабелый
Деревососна
Технологияиз бревна
ПомещениеПлощадь
Общая28,13 м²
Парная4,59 м²
Помывочная3,65 м²
Комната отдыха8,49 м²
Терраса11,4 м²

Комплектация

Состав комплектации
Баня под усадку
913 000 ₽
870 000 ₽
Лето
1 267 000 ₽
1 207 000 ₽
Баня под ключ
1 405 000 ₽
1 338 000 ₽
Высота - 1-й этаж 2,0 м. Наружние и внутренние стены из оцилиндрованного бревна, естественной влажности d-200 мм (сборка в чашу), хвоя.
Кровельное покрытие - профилированный лист (окрашенный) 0.4 мм, устройство обрешетки, контробрешетки и гидроизоляции.
Устройство карнизов, подшив кровельных свесов - евровагонка (хвоя) 12,5х88 мм.
Внешняя отделка фронтона - имитация бревна 28х135 мм.
Внутренняя отделка - евровагонка (хвоя) 12,5х88 мм.
Внутренняя отделка потолка парного отделения - евровагонка (осина) 12,5х88 мм.
Настил пола - обрезная доска 50х150 мм.
Настил пола - шпунтованная доска 36 мм с утеплением 100 мм минеральная вата Knauf Insulation.
Межвенцовый утеплитель - джут
Утепление внутренних стен, потолка 50 мм - минеральная вата Knauf Insulation 11-13 кг/м3.
Утепление внутренних стен, потолка 100 мм - минеральная вата Knauf Insulation 11-13 кг/м3.
Окна деревянные, двойное остекление.
Двери деревянные (банные, клиновые), без замка.
Полати - одноуровневые, Осина.
Полати - двухуровневые, Осина.
Печь - Везувий Оптимум 14 с баком на трубе 55 литров из нержавеющей стали, двухконтурным дымоходом и комплектом пожаробезопасности.
Печь встраивается в перегородку через кирпичную кладку и топится из комнаты отдыха.
Обвязка 150х200 мм естественной влажности + антисептик (обвязки и лаг пола)+брусок 50х50мм
Столбы + перила (сборка перерубом)
Пленки ондутис

Дополнительные услуги

150 000 ₽
102 000 ₽
72 000 ₽
28 000 ₽

Бесплатный выезд специалиста

Оплата

  • Способы оплаты Наличными деньгами в кассу офиса компании или банковский перевод на расчетный счет компании.

  • Этапы оплаты Оплата комплекса услуг по строительству вашего дома или бани проходит в три этапа. Суммы фиксируются в договоре подряда на строительство с указанием сроков, это гарантирует заказчикам, что цена не вырастет во время стройки.

  • Оплата в кредит Мы работаем с многими банками партнерами. Подать заявку на оформление кредита можно в офисе компании или по телефону. Одобрение заявки занимает 30 минут.

Информирование

Еженедельный фото или видеоотчет в любом удобном для вас канале: почта, мессенджеры. Прораб ждет Вас на участке строительства в удобное для Вас время по договоренности.

Доставка

СК Надёжность возьмет на себя полный комплекс услуг по доставке, погрузке и разгрузке материалов до места строительства на Вашем участке в Нижнем Новгороде или Нижегородской области. 

Стоимость рассчитывается индивидуально на каждый объект менеджером в зависимости от веса груза, типа транспортного средства и километража.

Сроки строительства

Сроки строительства составляют от двух недель до двух месяцев в зависимости от размеров объекта и объема работ. При составлении договора подряда сроки указываются на момент оформления документов.

Гарантия

Современные технологии и качественный материал позволяет дать гарантию для наших клиентов 5 лет.

Посетите нашу выставочную площадку

Нижегородская область, Богородский район, СТ Родник, 7

Преимущества строительной компании Надёжность

Строительство бани под ключ

Проектирование, изготовление, транспортировка, монтаж, инженерные коммуникации, утепление, отделка

Кредит за 30 минут

Только паспорт и СНИЛС Использование материнского капитала для детей любого возраста

Профессиональный подход

Рекомендации специалистов на всех этапах от выбора фундамента до планирования интерьера

Собственное производство

Все комплектующие в наличии, срочная замена в случае необходимости

Контроль качества

Система контроля качества на всех этапах: производства, сушки, хранения, транспортировки, отгрузки

Технический надзор

Закрепленный прораб на объекте, опытные рабочие, высокое качество работ!

Выполненные проекты

Отзывы

Поделитесь вашим мнением

Ваш отзыв поможет другим покупателям сделать правильный выбор!

Елена Свиридова 14 января 2026
Заказывали бревенчатую баню, хочу поделиться впечатлениями. Собирала баню бригада строителей из 4-х человек. Качество бани и сборки на высоте. Топили 2 часа и смогла разогреться до жары, вода в котле кипит сильно. Кран открывается легко и закрывается без протечек. Дверь в парилку закрывается плотно. Входная дверь также толстая и плотно прилегает. Окна в бане заказали деревянные, очень красиво смотрятся. В целом, баня жару держит и свои функции выполняет.
Сергей Набарсин 04 июля 2025
Все материалы проверенные и безопасные. Баня помогает восстанавливать организм и снижать уровень стресса. Оценка 5! Натуральная «формула здоровья».
Андрей Лужбин 01 апреля 2025
Поставлю 5 баллов за реализацию. Баня из оцилиндрованного бревна собрана без ошибок. Все стыки плотные, конструкция надежная. Сроки соблюдены, документация предоставлена четко и понятно.
Роман Суханов 31 марта 2025
Все процессы организованы как часы. Не было задержек, все приехало вовремя и в нужном объеме. Логистика на высшем уровне.
Руслан Бубенков 02 января 2025
Все документы, график, общение - все в порядке. Работа выполнена аккуратно и с уважением к клиенту. Благодарю за качество и сроки.

Ждём вас в любом из наших офисов

Сартаково

Нижний Новгород, СТ Родник, 7

Больше вариантов

Вопросы и ответы

Конечно, усадка закладывается в проект изначально, особенно если вы выбираете несухую древесину. Мы предусмотрим всё, чтобы двери и окна всегда открывались легко.
Вашим проектом будет заниматься персональный менеджер, который будет на связи 24/7 и поможет решить любые вопросы.
Чаще всего ленточный или свайный — зависит от грунта и веса бани. Подберём оптимальный вариант для вашего участка.
Угол наклона от 25 до 45 градусов — зависит от региона и количества осадков.
Крепления есть — делаем надёжно, чтобы полки были устойчивыми и удобными.
Основная древесина — сосна для теплого контура и осина для полатей. Дерево отечественной посадки из экологичных районов, высокого качества. Свое производство бревна.
Баня из бревна 4×6 с раздельной парной и помывочной, под ключ в Нижнем Новгороде, фото 1

Баня из бревна 6×6 с раздельной парной и моечной

×
Интерактивная карта Нижегородской области
Тоншаево Ветлуга Урень Тонкино Шаранга Варнавино Ковернино Городец Балахна Володарск Павлово Сосновское Вача Кулебаки Выкса Дивеево Лукоянов Починки Пильна Сергач Первомайск Гагино Богородск Шатки Арзамас Саров Княгинино Бутурлино Лысково Спасское Воротынец Перевоз Большое Мурашкино Ардатов Уразовка Сеченово Чкаловск Заволжье Сокольское Красные баки Воскресенское Семенов Бор Кстово Нижний Новгород Кстово Дзержинск Дальнее Константиново Шахунья Вад Вознесенское Большое Болдино Навашино
Заявка на проект
Введите телефон и мы перезвоним Вам в течение 3х минут, чтобы обсудить детали
Кредит на строительство
Условия кредитования
  • Ставка 14,5%
  • Сумма до 5 000 000 руб.
  • Срок от 6 до 60 месяцев
  • Решение за 30 минут
  • Персональный менеджер 24/7

Используйте материнский капитал на строительство частного дома независимо от возраста ребенка!

(согласно ФЗ-256 от 29.12.2006 г.)
Бесплатный выезд специалиста
Введите телефон и мы перезвоним
Вам в течение 3х минут
Запись на посещение
Введите телефон и мы перезвоним
Вам в течение 3х минут
Задайте ваш вопрос
И мы перезвоним вам с ответом!
Оставаясь на сайте, вы соглашаетесь на использование файлов куки и передачей данных службам веб-аналитики
5% скидка до 28 февраля!