Нижний Новгород, ул. Ларина, 27

Пн-Пт 10:00 - 18:00

Баня из бревна 6×8 с комнатой и террасой

Проект BO1/12

Экономия: 48 000 ₽

1 010 000  1 061 000 

  • Металлочерепица в подарок
  • Скидка на винтовые сваи 50%
  • Цена не вырастет во время стройки

Скидка на сваи 50%!

Строительство под ключ 3 дня

Нижний Новгород и область

Есть вопросы?

Специалист СК “Надёжность”
поможет с выбором

Описание

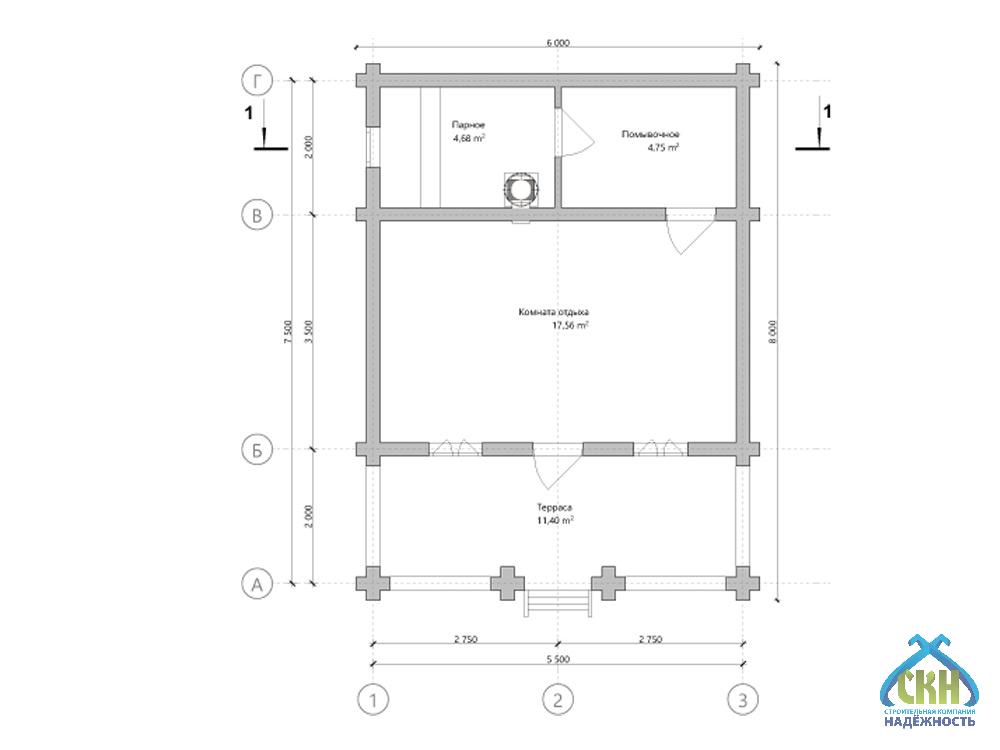
Баня из оцилиндрованного бревна размером 6х8 метров сохраняет дух деревенской традиции. Общая площадь — 38 кв. м., парная — 4,68 кв. м., помывочная — 4,75 кв. м.. Комната отдыха становится центральным местом для встречи гостей. Терраса добавляет уюта и гостеприимства. Банный комфорт достигается за счёт натурального дерева и продуманной компоновки. Вдохновение дизайнера воплощено в форме, линиях и пропорциях этой бани.

Смотрите как мы строим
подобные проекты

Проект

АтрибутЗначение
Типклассические
Размеры, м6x8
Форма банипрямоугольная
Кол. этажей1
Конструкциякомната отдыха, терраса
Крышадвухскатная
Сан. узелнет
Стильклассический
Цвет фасадабежевый
Деревососна
Технологияиз бревна
ПомещениеПлощадь
Общая38,39 м²
Парная4,68 м²
Помывочная4,75 м²
Комната отдыха17,56 м²
Терраса11,4 м²

Комплектация

Состав комплектации
Баня под усадку
1 061 000 ₽
1 010 000 ₽
Лето
1 482 000 ₽
1 411 000 ₽
Баня под ключ
1 639 000 ₽
1 561 000 ₽
Высота - 1-й этаж 2,0 м. Наружние и внутренние стены из оцилиндрованного бревна, естественной влажности d-200 мм (сборка в чашу), хвоя.
Кровельное покрытие - профилированный лист (окрашенный) 0.4 мм, устройство обрешетки, контробрешетки и гидроизоляции.
Устройство карнизов, подшив кровельных свесов - евровагонка (хвоя) 12,5х88 мм.
Внешняя отделка фронтона - имитация бревна 28х135 мм.
Внутренняя отделка - евровагонка (хвоя) 12,5х88 мм.
Внутренняя отделка потолка парного отделения - евровагонка (осина) 12,5х88 мм.
Настил пола - обрезная доска 50х150 мм.
Настил пола - шпунтованная доска 36 мм с утеплением 100 мм минеральная вата Knauf Insulation.
Межвенцовый утеплитель - джут
Утепление внутренних стен, потолка 50 мм - минеральная вата Knauf Insulation 11-13 кг/м3.
Утепление внутренних стен, потолка 100 мм - минеральная вата Knauf Insulation 11-13 кг/м3.
Окна деревянные, двойное остекление.
Двери деревянные (банные, клиновые), без замка.
Полати - одноуровневые, Осина.
Полати - двухуровневые, Осина.
Печь - Везувий Оптимум 14 с баком на трубе 55 литров из нержавеющей стали, двухконтурным дымоходом и комплектом пожаробезопасности.
Печь встраивается в перегородку через кирпичную кладку и топится из комнаты отдыха.
Обвязка 150х200 мм естественной влажности + антисептик (обвязки и лаг пола)+брусок 50х50мм
Столбы + перила (сборка перерубом)
Пленки ондутис

Дополнительные услуги

150 000 ₽
127 500 ₽
90 000 ₽
28 000 ₽

Бесплатный выезд специалиста

Оплата

  • Способы оплаты Наличными деньгами в кассу офиса компании или банковский перевод на расчетный счет компании.

  • Этапы оплаты Оплата комплекса услуг по строительству вашего дома или бани проходит в три этапа. Суммы фиксируются в договоре подряда на строительство с указанием сроков, это гарантирует заказчикам, что цена не вырастет во время стройки.

  • Оплата в кредит Мы работаем с многими банками партнерами. Подать заявку на оформление кредита можно в офисе компании или по телефону. Одобрение заявки занимает 30 минут.

Информирование

Еженедельный фото или видеоотчет в любом удобном для вас канале: почта, мессенджеры. Прораб ждет Вас на участке строительства в удобное для Вас время по договоренности.

Доставка

СК Надёжность возьмет на себя полный комплекс услуг по доставке, погрузке и разгрузке материалов до места строительства на Вашем участке в Нижнем Новгороде или Нижегородской области. 

Стоимость рассчитывается индивидуально на каждый объект менеджером в зависимости от веса груза, типа транспортного средства и километража.

Сроки строительства

Сроки строительства составляют от двух недель до двух месяцев в зависимости от размеров объекта и объема работ. При составлении договора подряда сроки указываются на момент оформления документов.

Гарантия

Современные технологии и качественный материал позволяет дать гарантию для наших клиентов 5 лет.

Посетите нашу выставочную площадку

Нижегородская область, Богородский район, СТ Родник, 7

Преимущества строительной компании Надёжность

Строительство бани под ключ

Проектирование, изготовление, транспортировка, монтаж, инженерные коммуникации, утепление, отделка

Кредит за 30 минут

Только паспорт и СНИЛС Использование материнского капитала для детей любого возраста

Профессиональный подход

Рекомендации специалистов на всех этапах от выбора фундамента до планирования интерьера

Собственное производство

Все комплектующие в наличии, срочная замена в случае необходимости

Контроль качества

Система контроля качества на всех этапах: производства, сушки, хранения, транспортировки, отгрузки

Технический надзор

Закрепленный прораб на объекте, опытные рабочие, высокое качество работ!

Выполненные проекты

Отзывы

Поделитесь вашим мнением

Ваш отзыв поможет другим покупателям сделать правильный выбор!

Вячеслав Горбунов 21 июля 2025
Четкость и порядок были во всем. Так редко встретишь такое качество взаимодействия. Все организовано, коммуникации четкие, менеджеры всегда на связи.
Максим Шерстобитов 18 апреля 2025
Все процессы контролируются, качество - на уровне. Работают как авиатехники - ответственно, точно, без лишних движений. Порадовал профессиональный подход к делу.
Анна Фролова 16 апреля 2025
Обещания совпали с делом. Баня построена правильно, качественно и с уважением к мнению клиента. В общем, хотите быстро получить настоящую деревянную баню, то смело выбирайте эту компанию. Не пожалеете. Ни времени, ни нервов, а результат - сразу.
Ангелина Лаврова 18 января 2025
Документы оформлены официально, строители соблюдают законы. Можно сказать, государственный подход к частному проекту. Все в порядке, никаких замечаний.
Ульяна Валеева 21 октября 2024
Все расположено логично, нет ничего лишнего. Интерьер - интуитивно понятный и приятный глазу. Если вы хотите получить не просто постройку, а действительно качественную, надежную баню выбирайте компанию, где работают опытные мастера. Именно такие и есть здесь им можно доверять без оговорок.

Ждём вас в любом из наших офисов

Сартаково

Нижний Новгород, СТ Родник, 7

Больше вариантов

Вопросы и ответы

Только деревянный — нагели. Металл может ржаветь, а дерево — расширяться и плотно фиксировать конструкцию.
Обязательно подписываем акт приёмки — там указываются все выполненные работы и их качество.
Цоколь делаем из кирпича, блоков или обшиваем деревом — можно выбрать по желанию клиента.
Обрешётка — сплошная или разреженная, в зависимости от типа кровли. Всё по технологии.
Да, в парилке обязательно используем фольгированную пароизоляцию — она отражает инфракрасное излучение и экономит тепло.
Очень мало, особенно если используется сухое бревно. Мы стараемся использовать материал камерной сушки.
Баня из бревна 6×6 в деревенском стиле, под ключ в Нижнем Новгороде, фото 1

Баня из бревна 6×8 с комнатой и террасой

×
Интерактивная карта Нижегородской области
Тоншаево Ветлуга Урень Тонкино Шаранга Варнавино Ковернино Городец Балахна Володарск Павлово Сосновское Вача Кулебаки Выкса Дивеево Лукоянов Починки Пильна Сергач Первомайск Гагино Богородск Шатки Арзамас Саров Княгинино Бутурлино Лысково Спасское Воротынец Перевоз Большое Мурашкино Ардатов Уразовка Сеченово Чкаловск Заволжье Сокольское Красные баки Воскресенское Семенов Бор Кстово Нижний Новгород Кстово Дзержинск Дальнее Константиново Шахунья Вад Вознесенское Большое Болдино Навашино
Заявка на проект
Введите телефон и мы перезвоним Вам в течение 3х минут, чтобы обсудить детали
Кредит на строительство
Условия кредитования
  • Ставка 14,5%
  • Сумма до 5 000 000 руб.
  • Срок от 6 до 60 месяцев
  • Решение за 30 минут
  • Персональный менеджер 24/7

Используйте материнский капитал на строительство частного дома независимо от возраста ребенка!

(согласно ФЗ-256 от 29.12.2006 г.)
Бесплатный выезд специалиста
Введите телефон и мы перезвоним
Вам в течение 3х минут
Запись на посещение
Введите телефон и мы перезвоним
Вам в течение 3х минут
Задайте ваш вопрос
И мы перезвоним вам с ответом!
Оставаясь на сайте, вы соглашаетесь на использование файлов куки и передачей данных службам веб-аналитики
5% скидка до 28 февраля!