Нижний Новгород, СТ Родник, 7

Нижний Новгород, ул. Ларина, 27

Нижний Новгород, СТ Родник, 7

Пн-Пт 10-18 ч.

Нижний Новгород, СТ Родник, 7

Нижний Новгород, ул. Ларина, 27

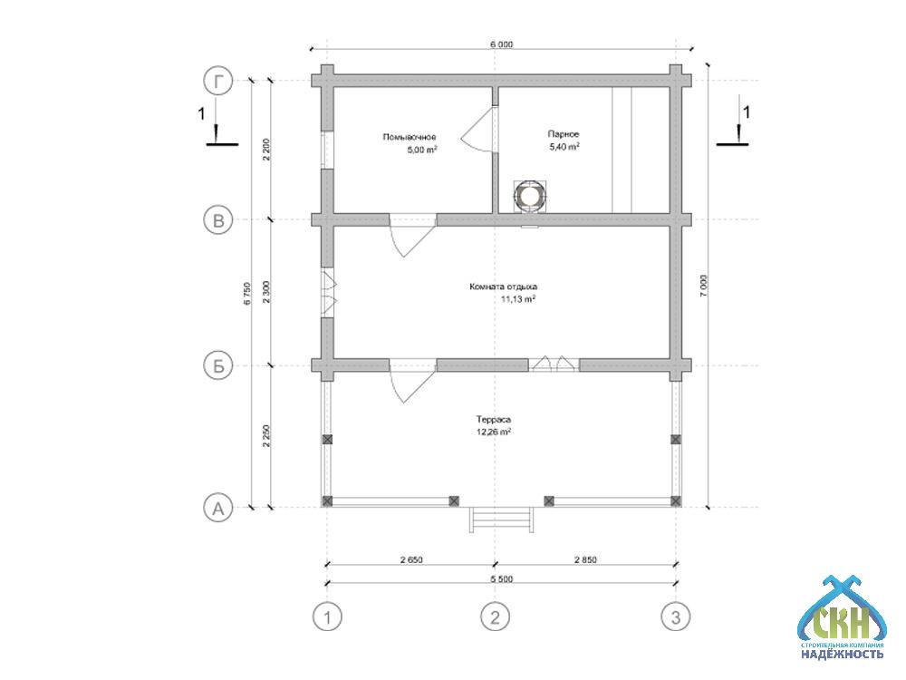
Баня из бревна 6×7 с трехфронтонной крышей

Проект BO1/11

Экономия: 45 000 ₽

1 062 000  1 115 000 

  • Металлочерепица в подарок
  • Скидка на винтовые сваи 50%
  • Цена не вырастет во время стройки

Скидка на сваи 50%!

Строительство под ключ 3 дня

Нижний Новгород и область

Есть вопросы?

Специалист СК “Надёжность”
поможет с выбором

Описание

Баня из оцилиндрованного бревна 6×7 выделяется вместительностью и продуманностью. Общая площадь — 33,79 кв. м., парная — 5,4 кв. м., помывочная — 5 кв. м.. Комната отдыха на 11,13 кв. м. дополнена гостевой зоной на 12,26 кв. м.. Парная релаксация становится источником гармонии. Надежный застройщик обеспечивает уверенность в результате.

Смотрите как мы строим
подобные проекты

Проект

АтрибутЗначение
Типклассические
Размеры, м6x7
Форма банипрямоугольная
Кол. этажей1
Конструкциякомната отдыха, терраса
Крышатрехфронтонная
Сан. узелнет
Стильсовременный
Цвет фасадакоричневый
Деревососна
Технологияиз бревна
ПомещениеПлощадь
Общая33,79 м²
Парная5,4 м²
Помывочная5 м²
Комната отдыха11,13 м²
Терраса12,26 м²

Комплектация

Состав комплектации
Баня под усадку
1 115 000 ₽
1 062 000 ₽
Лето
1 552 000 ₽
1 478 000 ₽
Баня под ключ
1 706 000 ₽
1 624 000 ₽
Высота - 1-й этаж 2,0 м.
Наружние и внутренние стены из оцилиндрованного бревна, естественной влажности d-200 мм (сборка в чашу), хвоя.
Лаги перекрытий и стропильная система 50х100 мм, с шагом 590 мм.
Кровельное покрытие - профилированный лист (окрашенный) 0.4 мм, устройство обрешетки, контробрешетки и гидроизоляции.
Устройство карнизов, подшив кровельных свесов - евровагонка (хвоя) 12,5х88 мм.
Внешняя отделка фронтона - имитация бревна 28х135 мм.
Внутренняя отделка - евровагонка (хвоя) 12,5х88 мм.
Внутренняя отделка потолка парного отделения - евровагонка (осина) 12,5х88 мм.
Настил пола - обрезная доска 50х150 мм.
Настил пола - шпунтованная доска 36 мм с утеплением 100 мм минеральная вата Knauf Insulation 11-13 кг/м3.
Межвенцовый утеплитель - джут
Утепление внутренних стен, потолка 50 мм - минеральная вата Knauf Insulation 11-13 кг/м3.
Утепление внутренних стен, потолка 100 мм - минеральная вата Knauf Insulation 11-13 кг/м3.
Окна деревянные, двойное остекление.
Двери деревянные (банные, клиновые), без замка.
Полати - одноуровневые, Осина.
Полати - двухуровневые, Осина.
Печь - Везувий Оптимум 14 (сталь 5 мм) с баком на трубе 55 литров из нержавеющей стали, двухконтурным дымоходом и комплектом пожаробезопасности.
Печь встраивается в перегородку через кирпичную кладку и топится из комнаты отдыха.
Отделка цоколя - профилированный лист (окрашенный) с продухами и металлическим отливом.
Электрика - монтаж автомата, выключателя, светильников, розеток.
Люк - лаз (доступ на чердачное пространство).
Обвязка 150х200 мм естественной влажности + антисептик (обвязки и лаг пола)+брусок 50х50мм
Столбы + перила (сборка перерубом)
Настил пола террасы - обрезная доска 50х150 мм естсетвенной влажности
Обналичка - евровагонка 12,5х88мм
Обналичка внутри - евровагонка 12,5х88 мм
Плинтус - потолок, стены (каркасные перегородки), пол
Решетка для проветривания чердачного перекрытия
Пленки ондутис
В парном отделении либо окно 600х400 деревянное либо вент решетка (на выбор)

Дополнительные услуги

150 000 ₽
102 000 ₽
72 000 ₽
28 000 ₽

Бесплатный выезд специалиста

Оплата

  • Способы оплаты Наличными деньгами в кассу офиса компании или банковский перевод на расчетный счет компании.

  • Этапы оплаты Оплата комплекса услуг по строительству вашего дома или бани проходит в три этапа. Суммы фиксируются в договоре подряда на строительство с указанием сроков, это гарантирует заказчикам, что цена не вырастет во время стройки.

  • Оплата в кредит Мы работаем с многими банками партнерами. Подать заявку на оформление кредита можно в офисе компании или по телефону. Одобрение заявки занимает 30 минут.

Информирование

Еженедельный фото или видеоотчет в любом удобном для вас канале: почта, мессенджеры. Прораб ждет Вас на участке строительства в удобное для Вас время по договоренности.

Доставка

СК Надёжность возьмет на себя полный комплекс услуг по доставке, погрузке и разгрузке материалов до места строительства на Вашем участке в Нижнем Новгороде или Нижегородской области. 

Стоимость рассчитывается индивидуально на каждый объект менеджером в зависимости от веса груза, типа транспортного средства и километража.

Сроки строительства

Сроки строительства составляют от двух недель до двух месяцев в зависимости от размеров объекта и объема работ. При составлении договора подряда сроки указываются на момент оформления документов.

Гарантия

Современные технологии и качественный материал позволяет дать гарантию для наших клиентов 5 лет.

Посетите нашу выставочную площадку

Нижегородская область, Богородский район, СТ Родник, 7

Преимущества строительной компании Надёжность

Строительство бани под ключ

Проектирование, изготовление, транспортировка, монтаж, инженерные коммуникации, утепление, отделка

Кредит за 30 минут

Только паспорт и СНИЛС Использование материнского капитала для детей любого возраста

Профессиональный подход

Рекомендации специалистов на всех этапах от выбора фундамента до планирования интерьера

Собственное производство

Все комплектующие в наличии, срочная замена в случае необходимости

Контроль качества

Система контроля качества на всех этапах: производства, сушки, хранения, транспортировки, отгрузки

Технический надзор

Закрепленный прораб на объекте, опытные рабочие, высокое качество работ!

Выполненные проекты

Отзывы

Поделитесь вашим мнением

Ваш отзыв поможет другим покупателям сделать правильный выбор!

Зоя Ефимова 08 июля 2025
Все прошло гладко, как полет без турбулентности. Приятно сотрудничать с такими специалистами. Баня построена быстро, аккуратно и с профессиональным подходом.
Сергей Ступицин 05 апреля 2025
Баня держит тепло долго, экономит затраты на отопление. Теплофизические свойства на высоте. Выбрал оцилиндрованное бревно и ни капли не пожалел. Как инженер с техническим образованием и склонностью к аналитике, я подхожу к любому строительству не просто как к процессу возведения стен, а как к реализации инженерного решения, где важно все: материалы, узлы примыкания, теплотехника, влажность, усадка и долговечность конструкции.
Тимур Широков 04 апреля 2025
Пар получается мягкий, как в настоящей русской бане и должно быть. Домики из бревна держат тепло отлично - топили печь не слишком долго, а в парной жар стоял такой, что лбом об пол можно было простыть ?? Внешний вид тоже радует - со стороны участка баня смотрится красиво и натурально, как будто сошла с картинки.
Лия Газизова 06 января 2025
Учтены климатические условия. Конструкция защищена от влаги, ветра и перепадов температур. Баня теплая, сухая, без осадков внутри.
Дмитрий Яблоков 08 октября 2024
С самого начала обращал внимание на каждую мелочь: как обработаны бревна, насколько ровные чашки, какой радиус точности при оцилиндровке, как ложится утеплитель между венцами. Были варианты дешевле, но я выбрал проверенного поставщика с хорошими отзывами и документацией на древесину.

Ждём вас в любом из наших офисов

Сартаково

Нижний Новгород, СТ Родник, 7

Больше вариантов

Вопросы и ответы

Обрабатываем брёвна антисептиками глубокого проникновения. Чаще всего используем проверенные марки, такие как Neomid, Senezh, Tikkurila и Pinotex — безопасные для человека и эффективные в защите дерева.
Да, после каждого этапа мы делаем проверку — чтобы всё было сделано правильно и в срок.
Закладываем ниже уровня промерзания грунта — примерно 1–1,2 метра. Так фундамент будет крепким и долговечным.
Да, пароизоляция обязательна — чтобы не было конденсата и плесени.
За дополнительную плату можем установить электрический тёплый пол, особенно в комнате отдыха или моечном отделении.
Конечно! Мы не используем химию с резкими запахами — только безопасные пропитки. Запах свежей сосны или ели — ваша баня будет дышать.
Баня из бревна 5x6 со мнощиповой крышей, под ключ в Нижнем Новгороде, фото 1

Баня из бревна 6×7 с трехфронтонной крышей

×

Интерактивная карта Нижегородской области

Тоншаево Ветлуга Урень Тонкино Шаранга Варнавино Ковернино Городец Балахна Володарск Павлово Сосновское Вача Кулебаки Выкса Дивеево Лукоянов Починки Пильна Сергач Первомайск Гагино Богородск Шатки Арзамас Саров Княгинино Бутурлино Лысково Спасское Воротынец Перевоз Большое Мурашкино Ардатов Уразовка Сеченово Чкаловск Заволжье Сокольское Красные баки Воскресенское Семенов Бор Кстово Нижний Новгород Кстово Дзержинск Дальнее Константиново Шахунья Вад Вознесенское Большое Болдино Навашино
Заявка на проект
Введите телефон и мы перезвоним Вам в течение 3х минут, чтобы обсудить детали

Каталог

Страницы

5% скидка до 31 января!
Кредит на строительство
Условия кредитования
  • Ставка 14,5%
  • Сумма до 5 000 000 руб.
  • Срок от 6 до 60 месяцев
  • Решение за 30 минут
  • Персональный менеджер 24/7

Используйте материнский капитал на строительство частного дома независимо от возраста ребенка!

(согласно ФЗ-256 от 29.12.2006 г.)
Бесплатный выезд специалиста
Введите телефон и мы перезвоним
Вам в течение 3х минут
Запись на посещение
Введите телефон и мы перезвоним
Вам в течение 3х минут
Задайте ваш вопрос
И мы перезвоним вам с ответом!

Оставаясь на сайте, вы соглашаетесь на использование файлов куки и передачей данных службам веб-аналитики