Нижний Новгород, ул. Ларина, 27

Пн-Пт 10:00 - 18:00

Баня из бревна 6×4,5 с крыльцом

Проект ВО1/14

815 000  856 000 

  • Металлочерепица в подарок
  • Скидка на винтовые сваи 50%
  • Цена не вырастет во время стройки

Скидка на сваи 50%!

Строительство под ключ 3 дня

Нижний Новгород и область

Есть вопросы?

Специалист СК “Надёжность”
поможет с выбором

Описание

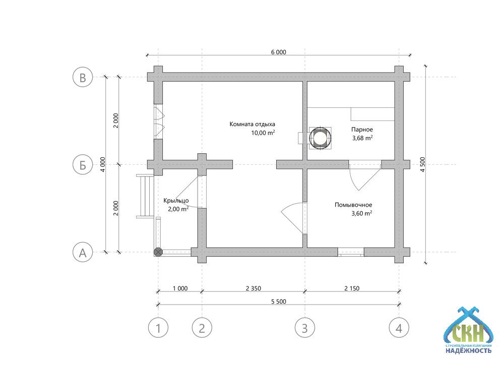
Баня из оцилиндрованного бревна размером 6х4,5 метра встречает просторное крыльцо и уютную комнату отдыха. Общая площадь составляет 19 кв. м., из них парная занимает 3,68 кв. м., помывочная — 3,6 кв. м.. Деревянные стены создают атмосферу тепла и гармонии. Стильный внешний вид дополняет двухскатная крыша. Парная релаксация станет доступной частью повседневности. Низкая цена добавляет ценности к уровню комфорта и функциональности.

Смотрите как мы строим
подобные проекты

Проект

АтрибутЗначение
Типклассические
Размеры, м5x6
Форма банипрямоугольная
Кол. этажей1
Конструкциякомната отдыха
Крышадвухскатная
Сан. узелнет
Стильклассический
Цвет фасадакоричневый
Деревососна
Технологияиз бревна
ПомещениеПлощадь
Общая19,28 м²
Парная3,68 м²
Помывочная3,6 м²
Комната отдыха10 м²
Крыльцо2 м²

Комплектация

Состав комплектации
Баня под усадку
856 000 ₽
815 000 ₽
Лето
1 169 000 ₽
1 113 000 ₽
Баня под ключ
1 304 000 ₽
1 242 000 ₽
Высота - 1-й этаж 2,0 м. Наружние и внутренние стены из оцилиндрованного бревна, естественной влажности d-200 мм (сборка в чашу), хвоя.
Кровельное покрытие - профилированный лист (окрашенный) 0.4 мм, устройство обрешетки, контробрешетки и гидроизоляции.
Устройство карнизов, подшив кровельных свесов - евровагонка (хвоя) 12,5х88 мм.
Внешняя отделка фронтона - имитация бревна 28х135 мм.
Внутренняя отделка - евровагонка (хвоя) 12,5х88 мм.
Внутренняя отделка потолка парного отделения - евровагонка (осина) 12,5х88 мм.
Настил пола - обрезная доска 50х150 мм.
Настил пола - шпунтованная доска 36 мм с утеплением 100 мм минеральная вата Knauf Insulation.
Межвенцовый утеплитель - джут
Утепление внутренних стен, потолка 50 мм - минеральная вата Knauf Insulation 11-13 кг/м3.
Утепление внутренних стен, потолка 100 мм - минеральная вата Knauf Insulation 11-13 кг/м3.
Окна деревянные, двойное остекление.
Двери деревянные (банные, клиновые), без замка.
Полати - одноуровневые, Осина.
Полати - двухуровневые, Осина.
Печь - Везувий Оптимум 14 с баком на трубе 55 литров из нержавеющей стали, двухконтурным дымоходом и комплектом пожаробезопасности.
Печь встраивается в перегородку через кирпичную кладку и топится из комнаты отдыха.
Обвязка 150х200 мм естественной влажности + антисептик (обвязки и лаг пола)+брусок 50х50мм
Столбы + перила (сборка перерубом)
Пленки ондутис

Дополнительные услуги

150 000 ₽
102 000 ₽
72 000 ₽
35 000 ₽

Бесплатный выезд специалиста

Оплата

  • Способы оплаты Наличными деньгами в кассу офиса компании или банковский перевод на расчетный счет компании.

  • Этапы оплаты Оплата комплекса услуг по строительству вашего дома или бани проходит в три этапа. Суммы фиксируются в договоре подряда на строительство с указанием сроков, это гарантирует заказчикам, что цена не вырастет во время стройки.

  • Оплата в кредит Мы работаем с многими банками партнерами. Подать заявку на оформление кредита можно в офисе компании или по телефону. Одобрение заявки занимает 30 минут.

Информирование

Еженедельный фото или видеоотчет в любом удобном для вас канале: почта, мессенджеры. Прораб ждет Вас на участке строительства в удобное для Вас время по договоренности.

Доставка

СК Надёжность возьмет на себя полный комплекс услуг по доставке, погрузке и разгрузке материалов до места строительства на Вашем участке в Нижнем Новгороде или Нижегородской области. 

Стоимость рассчитывается индивидуально на каждый объект менеджером в зависимости от веса груза, типа транспортного средства и километража.

Сроки строительства

Сроки строительства составляют от двух недель до двух месяцев в зависимости от размеров объекта и объема работ. При составлении договора подряда сроки указываются на момент оформления документов.

Гарантия

Современные технологии и качественный материал позволяет дать гарантию для наших клиентов 5 лет.

Посетите нашу выставочную площадку

Нижегородская область, Богородский район, СТ Родник, 7

Преимущества строительной компании Надёжность

Строительство бани под ключ

Проектирование, изготовление, транспортировка, монтаж, инженерные коммуникации, утепление, отделка

Кредит за 30 минут

Только паспорт и СНИЛС Использование материнского капитала для детей любого возраста

Профессиональный подход

Рекомендации специалистов на всех этапах от выбора фундамента до планирования интерьера

Собственное производство

Все комплектующие в наличии, срочная замена в случае необходимости

Контроль качества

Система контроля качества на всех этапах: производства, сушки, хранения, транспортировки, отгрузки

Технический надзор

Закрепленный прораб на объекте, опытные рабочие, высокое качество работ!

Выполненные проекты

Отзывы

Поделитесь вашим мнением

Ваш отзыв поможет другим покупателям сделать правильный выбор!

Григорий Слуцкий 07 февраля 2026
Построил баню из оцилиндрованного бревна, доволен результатом. Собрали за три дня, бревно ровное, без трещин, плотно прилегают друг к другу. Планировка удобная, вход через тамбур. Зимой захожу с мороза, оставляю одежду в тамбуре, а уже потом попадаю в парную. Тепло не уходит, сквозняков нет. Печь установили с выносной топкой в комнату отдыха. Подкидываю дрова, не выходя из комнаты. Парная остаётся чистой. После парения приятно посидеть в комнате отдыха. Здесь же сделали встроенные шкафы под дровник. Дрова всегда сухие, под рукой, не нужно выходить на улицу в холод. Баня получилась тёплой, добротной. Первую зиму уже протопили. Всё работает как задумано. Хочу отметить работу проектировщиков, проект сделан с умом и на совесть.
Арина Калинина 17 июля 2025
Цены соответствуют заявленным, никаких скрытых платежей. Все расчеты проводились четко и с документальным подтверждением. Благодарю за честный подход к клиенту.
Ольга Рыжкова 14 апреля 2025
Пространство вызывает желание возвращаться снова. Баня - уютная, теплая, с продуманными деталями. Сборка прошла четко и слаженно. Каждый чашечный паз был идеально подогнан, между венцами уложен качественный джутовый утеплитель. Удивило внимание к деталям: перед установкой каждого ряда проверяли горизонт уровнем, регулировали зазоры, конопатили и все это без напоминаний с моей стороны.
Алина Миронова 12 апреля 2025
Предлагают действительно качественный продукт. Цена соответствует уровню, есть гарантия и поддержка после строительства. Считаю, что сделала правильный выбор, который оправдал ожидания.
Роман Беспалов 14 января 2025
Некоторые критикуют оцилиндрованное бревно, а мне нравится! Если подойти к делу ответственно - выбрать качественный материал, пропитать его натуральными антисептиками, правильно выполнить узлы и утепление, то получится современная баня с классическим духом русской парной.

Ждём вас в любом из наших офисов

Сартаково

Нижний Новгород, СТ Родник, 7

Больше вариантов

Вопросы и ответы

Используем льняные или конопаточные уплотнители — натуральные, экологичные и отлично держат тепло.
Мы предлагаем наблюдение оффлайн, направляем фото- и видеоотчёты по графику в любой удобный для вас мессенджер или на почту, чтобы вы были в курсе происходящего.
Конечно, фундамент всегда армируем — это добавляет прочности и предотвращает растрескивание.
Кровля утеплена — особенно если это мансардная баня. Тепло сохраняется, а значит, комфорт обеспечен.
Потолок обшивается по желанию — чаще всего деревянной вагонкой или просто шлифованной доской.
На поверхности могут быть мелкие трещинки — это нормально для дерева. Они не влияют на прочность и герметичность.
Баня из бревна 6×4,5 с крыльцом, под ключ в Нижнем Новгороде, фото 1

Баня из бревна 6×4,5 с крыльцом

×
Интерактивная карта Нижегородской области
Тоншаево Ветлуга Урень Тонкино Шаранга Варнавино Ковернино Городец Балахна Володарск Павлово Сосновское Вача Кулебаки Выкса Дивеево Лукоянов Починки Пильна Сергач Первомайск Гагино Богородск Шатки Арзамас Саров Княгинино Бутурлино Лысково Спасское Воротынец Перевоз Большое Мурашкино Ардатов Уразовка Сеченово Чкаловск Заволжье Сокольское Красные баки Воскресенское Семенов Бор Кстово Нижний Новгород Кстово Дзержинск Дальнее Константиново Шахунья Вад Вознесенское Большое Болдино Навашино
Заявка на проект
Введите телефон и мы перезвоним Вам в течение 3х минут, чтобы обсудить детали
Кредит на строительство
Условия кредитования
  • Ставка 14,5%
  • Сумма до 5 000 000 руб.
  • Срок от 6 до 60 месяцев
  • Решение за 30 минут
  • Персональный менеджер 24/7

Используйте материнский капитал на строительство частного дома независимо от возраста ребенка!

(согласно ФЗ-256 от 29.12.2006 г.)
Бесплатный выезд специалиста
Введите телефон и мы перезвоним
Вам в течение 3х минут
Запись на посещение
Введите телефон и мы перезвоним
Вам в течение 3х минут
Задайте ваш вопрос
И мы перезвоним вам с ответом!
Оставаясь на сайте, вы соглашаетесь на использование файлов куки и передачей данных службам веб-аналитики
5% скидка до 28 февраля!