Баня из бревна 4×4,5 с террасой

Цена актуальна: 14.03.2026

Проект BO1/3

Экономия: 25 000 ₽

517 000  562 000 

  • Металлочерепица в подарок
  • Скидка на винтовые сваи 50%
  • Цена не вырастет во время стройки

Скидка на сваи 50%!

Строительство под ключ 4 дня

Нижний Новгород и область

Есть вопросы?

Специалист СК “Надёжность”
поможет с выбором

Описание

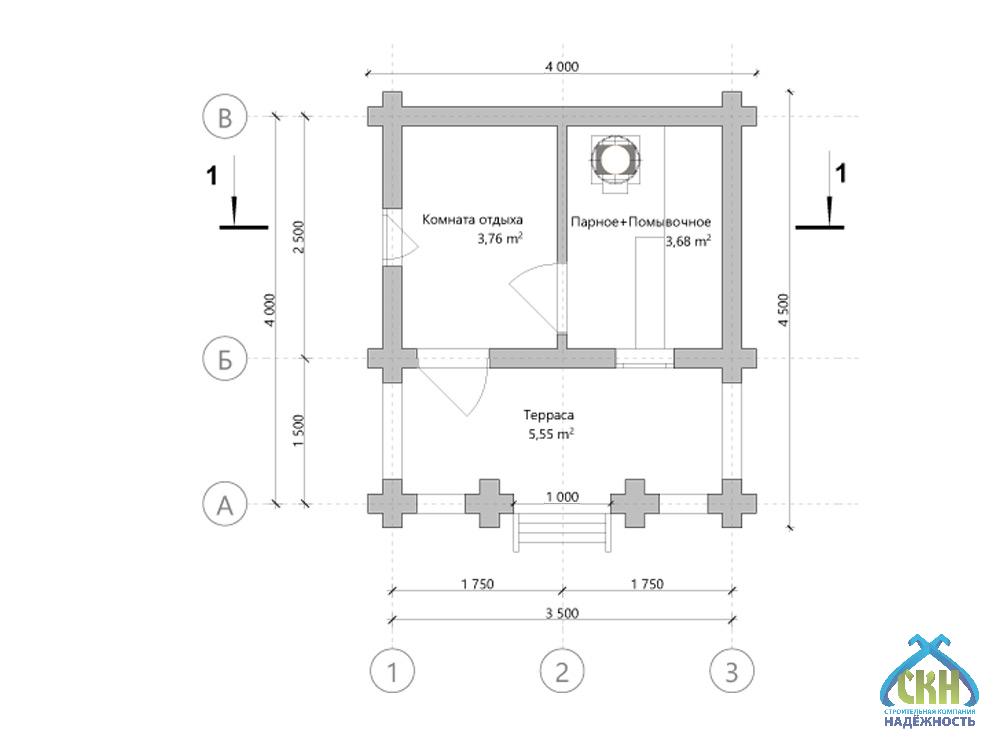
Изящная баня из оцилиндрованного бревна 4×4,5 воплощает стильность и практичность. Общая площадь достигает 12,99 кв. м., где парная занимает 3,68 кв. м., а помывочная — 3,76 кв. м.. Просторная комната отдыха в 5,55 кв. м. приглашает отдохнуть после бани. Вход оформлен через крыльцо. Дизайнерский проект создаёт уникальную атмосферу. Оздоровительный банный день становится ежедневной возможностью.

Смотрите как мы строим
подобные проекты

Проект

АтрибутЗначение
Размеры, м4x5
Кол. этажей1
Конструкциякомната отдыха, терраса, пятистенок
Парная и Моечнаясовмещенная
Оснащениедвери, окна, отделка, печь, полати, утепление
Сан. узелнет
Крышадвухскатная
Стильсовременный
Цвет фасадабежевый
Деревососна
Технологияиз бревна
Формапрямоугольная
ПомещениеПлощадь
Общая12,99 м²
Совмещенная Парная + Помывочная3,68 м²
Комната отдыха3,76 м²
Терраса5,55 м²

Комплектация

Состав комплектации
Баня под усадку
562 000 ₽
517 000 ₽
Лето
810 000 ₽
745 000 ₽
Баня под ключ
918 000 ₽
845 000 ₽
Высота - 1-й этаж 2,0 м. Наружние и внутренние стены по проекту из оцилиндрованного бревна, естественной влажности d-200 мм (сборка в чашу), хвоя.
Кровельное покрытие - профилированный лист (окрашенный) 0.4 мм, устройство обрешетки, контробрешетки и гидроизоляции.
Устройство карнизов, подшив кровельных свесов - евровагонка (хвоя) 12,5х88 мм.
Внешняя отделка фронтона - имитация бревна 28х135 мм.
Внутренняя отделка - евровагонка (хвоя) 12,5х88 мм.
Внутренняя отделка потолка парного отделения - евровагонка (осина) 12,5х88 мм.
Настил пола - обрезная доска 50х150 мм.
Настил пола - шпунтованная доска 36 мм с утеплением 100 мм минеральная вата Knauf Insulation. Водоотведение в помывочном отделении через трап.
Межвенцовый утеплитель - джут
Утепление внутренних стен, потолка 50 мм - минеральная вата Knauf Insulation 11-13 кг/м3.
Утепление внутренних стен, потолка 100 мм - минеральная вата Knauf Insulation 11-13 кг/м3.
Окна деревянные, двойное остекление.
Двери деревянные (банные, клиновые), без замка.
Полати - одноуровневые, Осина.
Полати - двухуровневые, Осина.
Печь - Везувий Оптимум 14 с баком на трубе 55 литров из нержавеющей стали, двухконтурным дымоходом и комплектом пожаробезопасности.
Печь встраивается в перегородку через кирпичную кладку и топится из комнаты отдыха.
Обвязка 150х200 мм естественной влажности + антисептик (обвязки и лаг пола)+брусок 50х50мм
Столбы + перила (сборка перерубом)
Пленки ондутис

Дополнительные услуги

150 000 ₽
76 500 ₽
54 000 ₽
21 000 ₽

Бесплатный выезд специалиста

Оплата

  • Способы оплаты
    Наличными деньгами в кассу офиса компании или банковский перевод на расчетный счет компании.
  • Этапы оплаты
    Оплата комплекса услуг по строительству вашего дома или бани проходит в три этапа. Суммы фиксируются в договоре подряда на строительство с указанием сроков, это гарантирует заказчикам, что цена не вырастет во время стройки.
  • Оплата в кредит
    Мы работаем с многими банками партнерами. Подать заявку на оформление кредита можно в офисе компании или по телефону. Одобрение заявки занимает 30 минут.

Информирование

Еженедельный фото или видеоотчет в любом удобном для вас канале: почта, мессенджеры. Прораб ждет Вас на участке строительства в удобное для Вас время по договоренности.

Доставка

СК Надёжность возьмет на себя полный комплекс услуг по доставке, погрузке и разгрузке материалов до места строительства на Вашем участке в Нижнем Новгороде или Нижегородской области.  Стоимость рассчитывается индивидуально на каждый объект менеджером в зависимости от веса груза, типа транспортного средства и километража.

Сроки строительства

Сроки строительства составляют от двух недель до двух месяцев в зависимости от размеров объекта и объема работ. При составлении договора подряда сроки указываются на момент оформления документов.

Гарантия

Современные технологии и качественный материал позволяет дать гарантию для наших клиентов 5 лет.

Посетите нашу выставочную площадку

Нижегородская область, Богородский район, СТ Родник, 7

Преимущества строительной компании Надёжность

Строительство бани под ключ

Проектирование, изготовление, транспортировка, монтаж, инженерные коммуникации, утепление, отделка

Кредит за 30 минут

Только паспорт и СНИЛС Использование материнского капитала для детей любого возраста

Профессиональный подход

Рекомендации специалистов на всех этапах от выбора фундамента до планирования интерьера

Собственное производство

Все комплектующие в наличии, срочная замена в случае необходимости

Контроль качества

Система контроля качества на всех этапах: производства, сушки, хранения, транспортировки, отгрузки

Технический надзор

Закрепленный прораб на объекте, опытные рабочие, высокое качество работ!

Выполненные проекты

Отзывы

Поделитесь вашим мнением

Ваш отзыв поможет другим покупателям сделать правильный выбор!

Кирилл Суслов 13 июня 2025
Навашино
Пространство распределено гармонично, отделка выполнена аккуратно. Есть интересные детали, которые делают баню уникальной. Это дизайнерское решение уровня выше среднего.
Мария Челнокова 12 марта 2025
Вознесенское
Работа выполнена плотно и надежно. Все соединительные элементы установлены правильно, прочная конструкция, надеюсь, прослужит долго!
Владислав Фомин 11 марта 2025
Красные Баки
Особое внимание уделено пожарной безопасности. Обязательно порекомендую другим - отличная баня и надежные ребята. Печь установлена правильно, отделка соответствует требованиям.
Станислав Горбачёв 13 декабря 2024
Вача
Баня - отличное пространство для релаксации и работы с эмоциями. Тепло и аромат дерева успокаивают. Понравилось качество материалов! Пока в деле не пробовала, но выглядит прочно и надежно.
Ася Нестерова 14 сентября 2024
Первомайск
Консультация была подробной, выбор - правильным. Баня построена быстро и с высоким качеством. Хороший результат, всем довольна, видно глубокое погружение в свое дело.

Ждём вас в любом из наших офисов

Сартаково

Нижний Новгород, СТ Родник, 7

Больше вариантов

Вопросы и ответы

Чаще всего работаем с сосной и елью — они отлично подходят для бань по цене и качествам. Лиственница — по запросу, она чуть дороже, но очень долговечна и стойка к влаге.
Конечно! Просто напишите нам или позвоните — отправим шаблон договора, чтобы вы могли ознакомиться заранее.
Место под печь закладывается в проекте — обычно в парилке или рядом с моечным отделением. Возможен вывод отопительного проема в комнату отдыха.
Система освещения предусмотрена во всех помещениях — с возможностью выбора типа светильников.
Откосы делаем по желанию — можно выбрать из дерева, ПВХ или штукатурки.
Лаги деревянные, антисептированные — сечением 100?150 мм, чтобы обеспечить прочность и долговечность.
Баня из бревна 3×4 с террасой, под ключ в Нижнем Новгороде, фото 1

Баня из бревна 4×4,5 с террасой

×
Интерактивная карта Нижегородской области
Тоншаево Ветлуга Урень Тонкино Шаранга Варнавино Ковернино Городец Балахна Володарск Павлово Сосновское Вача Кулебаки Выкса Дивеево Лукоянов Починки Пильна Сергач Первомайск Гагино Богородск Шатки Арзамас Саров Княгинино Бутурлино Лысково Спасское Воротынец Перевоз Большое Мурашкино Ардатов Уразовка Сеченово Чкаловск Заволжье Сокольское Красные баки Воскресенское Семенов Бор Кстово Нижний Новгород Кстово Дзержинск Дальнее Константиново Шахунья Вад Вознесенское Большое Болдино Навашино
Заявка на проект
Введите телефон и мы перезвоним Вам в течение 3х минут, чтобы обсудить детали
8% скидка до 31 марта 2026!
Кредит на строительство
Условия кредитования
  • Ставка 14,5%
  • Сумма до 5 000 000 руб.
  • Срок от 6 до 60 месяцев
  • Решение за 30 минут
  • Персональный менеджер 24/7

Используйте материнский капитал на строительство частного дома независимо от возраста ребенка!

(согласно ФЗ-256 от 29.12.2006 г.)
Бесплатный выезд специалиста
Введите телефон и мы перезвоним
Вам в течение 3х минут
Запись на посещение
Введите телефон и мы перезвоним
Вам в течение 3х минут
Задайте ваш вопрос
И мы перезвоним вам с ответом!
Сайт использует файлы куки