Нижний Новгород, ул. Ларина, 27

Пн-Пт 10:00 - 18:00

Баня из бревна 6×4 с гостевой комнатой

Проект BO1/7

Экономия: 31 000 ₽

703 000  738 000 

  • Металлочерепица в подарок
  • Скидка на винтовые сваи 50%
  • Цена не вырастет во время стройки

Скидка на сваи 50%!

Строительство под ключ 4 дня

Нижний Новгород и область

Есть вопросы?

Специалист СК “Надёжность”
поможет с выбором

Описание

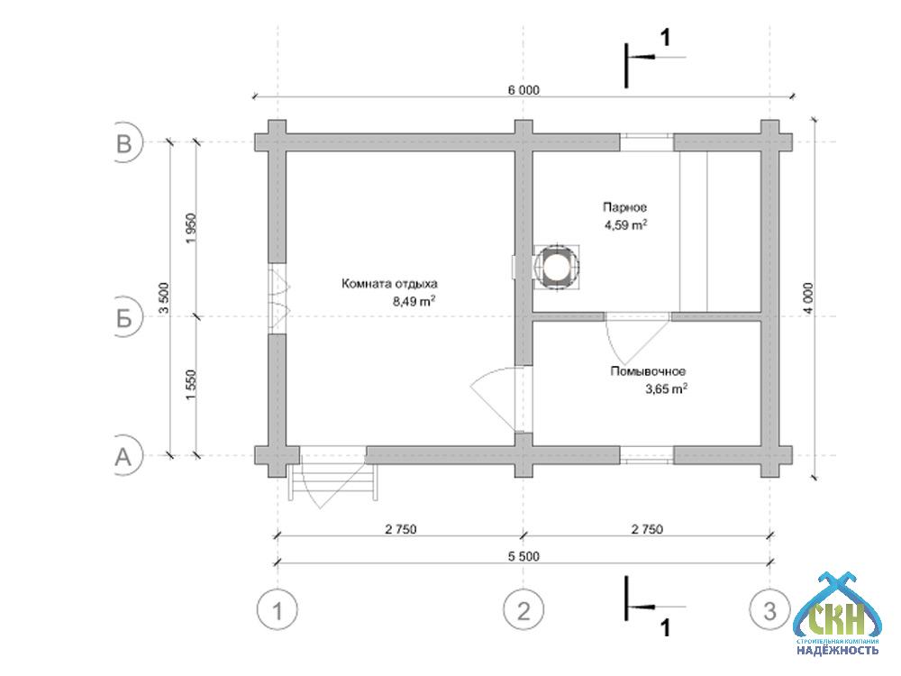
Баня из оцилиндрованного бревна 6×4 выполнена с учетом всех требований к качественному отдыху. Общая площадь — 16,73 кв. м., парная — 4,59 кв. м., помывочная — 3,65 кв. м.. Комната отдыха площадью 8,49 кв. м. создаёт зону расслабления. Парная релаксация и восстановление становятся реальностью. Гарантия качества в договоре гарантирует надёжность.

Смотрите как мы строим
подобные проекты

Проект

АтрибутЗначение
Типклассические
Размеры, м4x6
Форма банипрямоугольная
Кол. этажей1
Конструкциякомната отдыха
Крышадвухскатная
Сан. узелнет
Стильклассический
Цвет фасадакоричневый
Деревососна
Технологияиз бревна
ПомещениеПлощадь
Общая16,73 м²
Парная4,59 м²
Помывочная3,65 м²
Комната отдыха8,49 м²

Комплектация

Состав комплектации
Баня под усадку
738 000 ₽
703 000 ₽
Лето
1 037 000 ₽
988 000 ₽
Баня под ключ
1 154 000 ₽
1 099 000 ₽
Высота - 1-й этаж 2,0 м. Наружние и внутренние стены из оцилиндрованного бревна, естественной влажности d-200 мм (сборка в чашу), хвоя.
Кровельное покрытие - профилированный лист (окрашенный) 0.4 мм, устройство обрешетки, контробрешетки и гидроизоляции.
Устройство карнизов, подшив кровельных свесов - евровагонка (хвоя) 12,5х88 мм.
Внешняя отделка фронтона - имитация бревна 28х135 мм.
Внутренняя отделка - евровагонка (хвоя) 12,5х88 мм.
Внутренняя отделка потолка парного отделения - евровагонка (осина) 12,5х88 мм.
Настил пола - обрезная доска 50х150 мм.
Настил пола - шпунтованная доска 36 мм с утеплением 100 мм минеральная вата Knauf Insulation.
Межвенцовый утеплитель - джут
Утепление внутренних стен, потолка 50 мм - минеральная вата Knauf Insulation 11-13 кг/м3.
Утепление внутренних стен, потолка 100 мм - минеральная вата Knauf Insulation 11-13 кг/м3.
Окна деревянные, двойное остекление.
Двери деревянные (банные, клиновые), без замка.
Полати - одноуровневые, Осина.
Полати - двухуровневые, Осина.
Печь - Везувий Оптимум 14 с баком на трубе 55 литров из нержавеющей стали, двухконтурным дымоходом и комплектом пожаробезопасности.
Печь встраивается в перегородку через кирпичную кладку и топится из комнаты отдыха.
Обвязка 150х200 мм естественной влажности + антисептик (обвязки и лаг пола)+брусок 50х50мм
Столбы + перила (сборка перерубом)
Пленки ондутис

Дополнительные услуги

150 000 ₽
76 500 ₽
54 000 ₽
21 000 ₽

Бесплатный выезд специалиста

Оплата

  • Способы оплаты Наличными деньгами в кассу офиса компании или банковский перевод на расчетный счет компании.

  • Этапы оплаты Оплата комплекса услуг по строительству вашего дома или бани проходит в три этапа. Суммы фиксируются в договоре подряда на строительство с указанием сроков, это гарантирует заказчикам, что цена не вырастет во время стройки.

  • Оплата в кредит Мы работаем с многими банками партнерами. Подать заявку на оформление кредита можно в офисе компании или по телефону. Одобрение заявки занимает 30 минут.

Информирование

Еженедельный фото или видеоотчет в любом удобном для вас канале: почта, мессенджеры. Прораб ждет Вас на участке строительства в удобное для Вас время по договоренности.

Доставка

СК Надёжность возьмет на себя полный комплекс услуг по доставке, погрузке и разгрузке материалов до места строительства на Вашем участке в Нижнем Новгороде или Нижегородской области. 

Стоимость рассчитывается индивидуально на каждый объект менеджером в зависимости от веса груза, типа транспортного средства и километража.

Сроки строительства

Сроки строительства составляют от двух недель до двух месяцев в зависимости от размеров объекта и объема работ. При составлении договора подряда сроки указываются на момент оформления документов.

Гарантия

Современные технологии и качественный материал позволяет дать гарантию для наших клиентов 5 лет.

Посетите нашу выставочную площадку

Нижегородская область, Богородский район, СТ Родник, 7

Преимущества строительной компании Надёжность

Строительство бани под ключ

Проектирование, изготовление, транспортировка, монтаж, инженерные коммуникации, утепление, отделка

Кредит за 30 минут

Только паспорт и СНИЛС Использование материнского капитала для детей любого возраста

Профессиональный подход

Рекомендации специалистов на всех этапах от выбора фундамента до планирования интерьера

Собственное производство

Все комплектующие в наличии, срочная замена в случае необходимости

Контроль качества

Система контроля качества на всех этапах: производства, сушки, хранения, транспортировки, отгрузки

Технический надзор

Закрепленный прораб на объекте, опытные рабочие, высокое качество работ!

Выполненные проекты

Отзывы

Поделитесь вашим мнением

Ваш отзыв поможет другим покупателям сделать правильный выбор!

Алина Насырова 30 июня 2025
Контроль качества на высоте, все работы выполнены в срок и с учетом требований клиента. Благодарю за ответственный подход к каждому этапу строительства.
Елена Воробьёва 28 марта 2025
Все материалы органические, без химии. Баня помогает коже дышать и расслаблять мышцы. Мужики говорят, что пар мягкий и бодрящий - им тоже очень нравится. Но для меня главное - это уют и запах дерева. После душа сидишь на лавочке, пьешь чай с травами, слушаешь тишину и чувствуешь, как все тело наливается теплом. Просто восстановление души и тела!
Анастасия Громова 27 марта 2025
Общение было оперативным и понятным. На все вопросы ответили сразу, проблем не возникло. Оценила высокий уровень клиентского сервиса.
Валентина Власова 29 декабря 2024
Работают как настоящие мастера - все плотно, без зазоров. Стыки обработаны аккуратно, конструкция устойчивая и прочная. Чувствуется профессионализм в деталях.
Елизавета Трофимова 30 сентября 2024
Материалы натуральные, воздух живой. Баня подходит для всех членов семьи, даже четвероногих. Все получилось даже лучше, чем думали. Бревно плотно подогнано, щелей нет, зимой в парной жарко и комфортно, никакого сквозняка. Пар мягкий и нос пригревает, и в груди легко становится. Внуки тоже любят приходить, веселятся, а мне спокойно: баня добротная, солидная, не то что какие-то там бытовки или сарайчики.

Ждём вас в любом из наших офисов

Сартаково

Нижний Новгород, СТ Родник, 7

Больше вариантов

Вопросы и ответы

Чаще всего собираем в «чашу» — это классика, надёжно и тепло. Но если нужен другой вариант — легко подстроимся под ваш вкус и бюджет.
Да, смета составляется индивидуально для каждого клиента — всё прозрачно и понятно, без скрытых платежей.
Полы обязательно утепляем — особенно в парилке и комнате отдыха. Это важно для комфорта и сохранения тепла.
Чаще всего металлочерепица или мягкая кровля — можно выбрать по вкусу и бюджету.
Полки предусмотрены — обычно из липы или осины. Можем сделать одно- или двухъярусными.
Трап устанавливается по желанию — с решёткой и подключение к водоотводу.
Баня из бревна 4×6 одноэтажная с гостевой комнатой, под ключ в Нижнем Новгороде, фото 1

Баня из бревна 6×4 с гостевой комнатой

×
Интерактивная карта Нижегородской области
Тоншаево Ветлуга Урень Тонкино Шаранга Варнавино Ковернино Городец Балахна Володарск Павлово Сосновское Вача Кулебаки Выкса Дивеево Лукоянов Починки Пильна Сергач Первомайск Гагино Богородск Шатки Арзамас Саров Княгинино Бутурлино Лысково Спасское Воротынец Перевоз Большое Мурашкино Ардатов Уразовка Сеченово Чкаловск Заволжье Сокольское Красные баки Воскресенское Семенов Бор Кстово Нижний Новгород Кстово Дзержинск Дальнее Константиново Шахунья Вад Вознесенское Большое Болдино Навашино
Заявка на проект
Введите телефон и мы перезвоним Вам в течение 3х минут, чтобы обсудить детали
Кредит на строительство
Условия кредитования
  • Ставка 14,5%
  • Сумма до 5 000 000 руб.
  • Срок от 6 до 60 месяцев
  • Решение за 30 минут
  • Персональный менеджер 24/7

Используйте материнский капитал на строительство частного дома независимо от возраста ребенка!

(согласно ФЗ-256 от 29.12.2006 г.)
Бесплатный выезд специалиста
Введите телефон и мы перезвоним
Вам в течение 3х минут
Запись на посещение
Введите телефон и мы перезвоним
Вам в течение 3х минут
Задайте ваш вопрос
И мы перезвоним вам с ответом!
Оставаясь на сайте, вы соглашаетесь на использование файлов куки и передачей данных службам веб-аналитики
5% скидка до 28 февраля!