Нижний Новгород, СТ Родник, 7

Нижний Новгород, ул. Ларина, 27

Нижний Новгород, СТ Родник, 7

Пн-Пт 10-18 ч.

Нижний Новгород, СТ Родник, 7

Нижний Новгород, ул. Ларина, 27

Проект D21

Экономия: 102 000 ₽

2 029 000  2 131 000 

  • Металлочерепица в подарок
  • Скидка на винтовые сваи 50%
  • Цена не вырастет во время стройки

Скидка на сваи 50%!

Строительство под ключ 4 дня

Нижний Новгород и область

Есть вопросы?

Специалист СК “Надёжность”
поможет с выбором

Описание

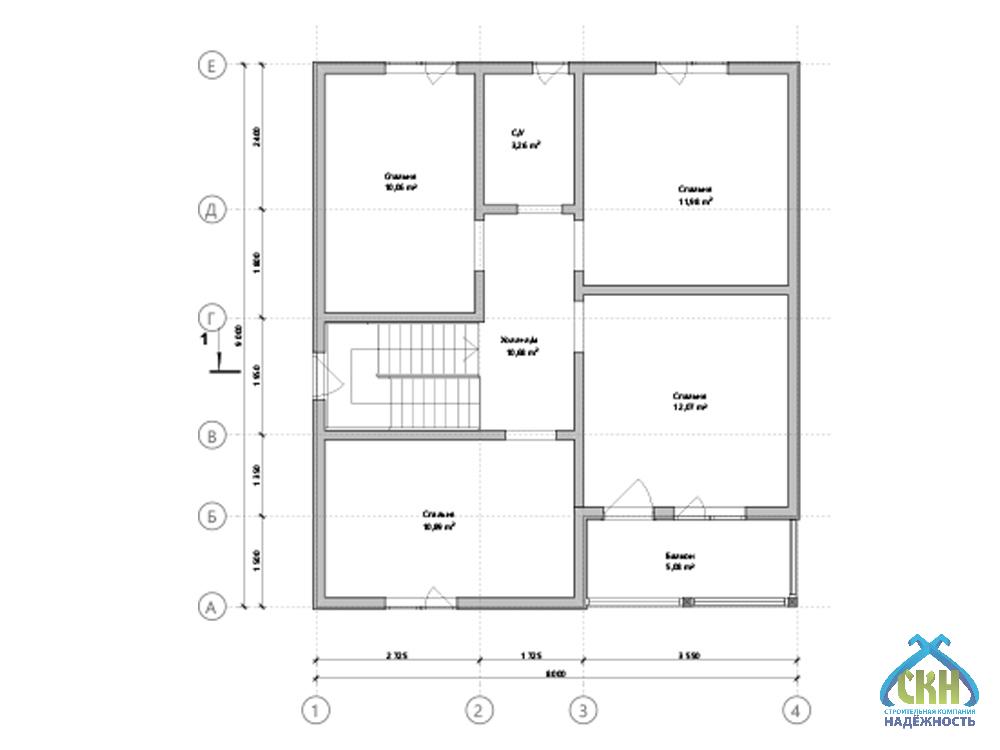
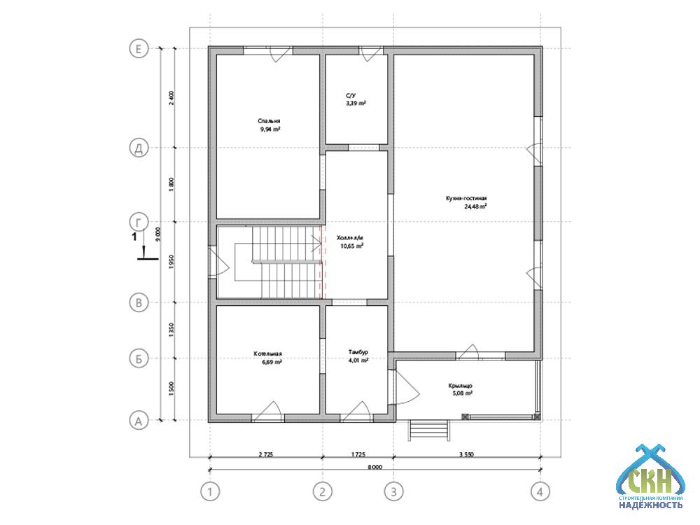
Загородный дом 125 кв. м. имеет размеры 8х9 м. В здании 2 этажа. На первом этаже размещены: жилая комната, котельная, санузел, кухня-гостиная, холл и тамбур. Еще 4 спальни находятся на мансарде, куда ведет внутренняя лестница. Жилая площадь составляет 55 кв. м. К зданию примыкает крыльцо площадью 5 м2, на котором в теплое время года можно организовать небольшую зону отдыха. Утепление стен позволяет использовать дом для всесезонного проживания.

Смотрите как мы строим
подобные проекты

Проект

АтрибутЗначение
Типзимние
Размеры, м8x9
Кол. этажей2
Конструкциябалкон, крыльцо
Крышадвухскатная
Кол. спален5
Оснащениекотельная, кухня-гостиная
Сан. узел2
Технологиякаркасная
ПомещениеПлощадь
Общая125,00 м²
Жилая55,73 м²
Кухня24,48 м²
Санузел6,65 м²
Холл20,71 м²
Крыльцо5,08 м²
Тамбур4,01 м²
Балкон5,08 м²
Котельная6.69 м²

Комплектация

Состав комплектации
Внешний контур
2 131 000 ₽
2 029 000 ₽
Закрытый контур
3 220 000 ₽
3 065 000 ₽
Дом под ключ
6 410 000 ₽
6 102 000 ₽
Высота - 1-й этаж 2,6 м, 2-й этаж 2,3 м
Силовой каркас естественной влажности - наружние и внутренние несущие стены 50х150 мм, лаги перекрытий и стропильная система 50х200 мм, с шагом 590 мм
Высота - 1-й этаж 2,6 м, 2-й этаж 2,3 м
Силовой каркас камерной сушки - наружние и внутренние несущие стены 50х150 мм, лаги перекрытий и стропильная система 50х200 мм, с шагом 590 мм
Кровельное покрытие - Металлочерепица GrandLine Classic 0,45 мм, устройство обрешетки, контробрешетки и гидроизоляции
Устройство карнизов, подшив кровельных свесов - виниловый сайдинг VOX. Комплект водосточной системы и трубчатых снегозадержателей Grandline
Внешняя отделка фасада - имитация бруса 16х135 мм с устройством вентилируемого зазора 50мм и ветровлагозащитой
Покраска всех элементов внешней отделки - краской Teknos на производстве с трех сторон в 2 слоя
Внутренняя отделка стен - имитация бруса 16х135 мм, потолок евровагонка Штиль 14х110 мм
Настил пола - цементно-стружечная плита 12 мм
Утепление внешних стен 150 мм, перекрытий и стропильной системы 200мм - минеральная плита Технониколь Роклайт 35 кг/м3
Звукоизоляция межкомнатных перегородок 100 мм - минеральная плита Технониколь Роклайт 35 кг/м3
Перекрестное утепление внешних стен 50 мм - минеральная плита Технониколь Роклайт 35 кг/м3
Окна ПВХ согласно проекту, ширина профиля 70 мм, двухкамерный стеклопакет с металлическими отливами
Металлическая дверь с терморазрывом, с двумя замками
Лестница на 2-ой этаж из строганной доски камерной сушки с перилами и балясинами, материал Сосна

Дополнительные услуги

150 000 ₽
221 000 ₽
156 000 ₽
195 000 ₽

Бесплатный выезд специалиста

Оплата

  • Способы оплаты Наличными деньгами в кассу офиса компании или банковский перевод на расчетный счет компании.

  • Этапы оплаты Оплата комплекса услуг по строительству вашего дома или бани проходит в три этапа. Суммы фиксируются в договоре подряда на строительство с указанием сроков, это гарантирует заказчикам, что цена не вырастет во время стройки.

  • Оплата в кредит Мы работаем с многими банками партнерами. Подать заявку на оформление кредита можно в офисе компании или по телефону. Одобрение заявки занимает 30 минут.

Информирование

Еженедельный фото или видеоотчет в любом удобном для вас канале: почта, мессенджеры. Прораб ждет Вас на участке строительства в удобное для Вас время по договоренности.

Доставка

СК Надёжность возьмет на себя полный комплекс услуг по доставке, погрузке и разгрузке материалов до места строительства на Вашем участке в Нижнем Новгороде или Нижегородской области. 

Стоимость рассчитывается индивидуально на каждый объект менеджером в зависимости от веса груза, типа транспортного средства и километража.

Сроки строительства

Сроки строительства составляют от двух недель до двух месяцев в зависимости от размеров объекта и объема работ. При составлении договора подряда сроки указываются на момент оформления документов.

Гарантия

Современные технологии и качественный материал позволяет дать гарантию для наших клиентов 5 лет.

Посетите нашу выставочную площадку

Нижегородская область, Богородский район, СТ Родник, 7

Преимущества строительной компании Надёжность

Строительство дома для постоянного проживания под ключ

Проектирование, изготовление, транспортировка, монтаж, инженерные коммуникации, утепление, отделка

Кредит за 30 минут

Только паспорт и СНИЛС Использование материнского капитала для детей любого возраста

Профессиональный подход

Рекомендации специалистов на всех этапах от выбора фундамента до планирования интерьера

Собственное производство

Все комплектующие в наличии, срочная замена в случае необходимости

Контроль качества

Система контроля качества на всех этапах: производства, сушки, хранения, транспортировки, отгрузки

Технический надзор

Закрепленный прораб на объекте, опытные рабочие, высокое качество работ!

Выполненные проекты

Отзывы

Поделитесь вашим мнением

Ваш отзыв поможет другим покупателям сделать правильный выбор!

Мирослав Митрохович 24 июня 2025
Мне нравится, что каркасный дом можно сравнить с хорошим блинчиком: тонкий, но с начинкой. В смысле, лёгкий, но с отличной теплоизоляцией.
Михаил Трофимов 03 июня 2025
В первый же день после переезда вся деревня знала о нашем переезде, потому что соседи пришли поздравить. Все удивлялись, как быстро вырос дом, словно гриб:)
Михаил Соболев 15 марта 2025
Живём в деревянном доме уже несколько лет и каждый день восхищаемся своим выбором. Проект был адаптирован под постоянное проживание, и теперь мы не чувствуем никаких отличий от капитальных домов, но при этом получаем гораздо больше уюта и экологичности. Даже соседи завидуют, и это не шутка! Тепло, светло, уютно, словом, маленький кусочек рая на земле.
Михаил Сафелев 17 декабря 2024
Безмерно благодарны за терпение и способность видеть дом глазами заказчика. С первого дня сотрудничества чувствовалось, что дело имеют с профессионалами.
Михаил Борисов 20 сентября 2024
После сотрудничества с компанией понял, что главное в доме, это не материал стен, а то, как он построен. И как к тебе относились на каждом этапе.

Ждём вас в любом из наших офисов

Сартаково

Нижний Новгород, СТ Родник, 7

Больше вариантов

Вопросы и ответы

Отчетность по выполненным работам ведётся еженедельно и предоставляется в виде таблиц Excel или PDF-документов. Вы можете отслеживать этапы в реальном времени.
Отечественным материалам отдаем предпочтение при равных характеристиках — это снижает стоимость и ускоряет логистику, используем качественные отечественные продукты «ТехноНИКОЛЬ» или «Энергофлекс».
Электропроводка прокладывается в штробах или кабель-каналах. После монтажа проводится тестирование УЗО, автоматов и розеточных групп. По завершении выдается акт испытаний.
Наши дома соответствуют энергоэффективности класса B или C. За счет утепления, герметичности окон, рекуперации и правильной ориентации дома по сторонам света.
Пол первого этажа утепляется экструдированным пенополистиролом (XPS) толщиной 150 мм. Также используется песчано-керамзитовая подсыпка и стяжка с армированием.
После завершения строительства предлагаем услуги технической поддержки: гарантийное обслуживание, сезонные осмотры, срочный выезд специалиста, продление договора на обслуживание.
Каркасный дом 8х9 двухэтажный с котельной, под ключ в Нижнем Новгороде, фото 1

Каркасный дом 8х9 с котельной

×

Интерактивная карта Нижегородской области

Тоншаево Ветлуга Урень Тонкино Шаранга Варнавино Ковернино Городец Балахна Володарск Павлово Сосновское Вача Кулебаки Выкса Дивеево Лукоянов Починки Пильна Сергач Первомайск Гагино Богородск Шатки Арзамас Саров Княгинино Бутурлино Лысково Спасское Воротынец Перевоз Большое Мурашкино Ардатов Уразовка Сеченово Чкаловск Заволжье Сокольское Красные баки Воскресенское Семенов Бор Кстово Нижний Новгород Кстово Дзержинск Дальнее Константиново Шахунья Вад Вознесенское Большое Болдино Навашино
Заявка на проект
Введите телефон и мы перезвоним Вам в течение 3х минут, чтобы обсудить детали

Каталог

Страницы

5% скидка до 31 января!
Кредит на строительство
Условия кредитования
  • Ставка 14,5%
  • Сумма до 5 000 000 руб.
  • Срок от 6 до 60 месяцев
  • Решение за 30 минут
  • Персональный менеджер 24/7

Используйте материнский капитал на строительство частного дома независимо от возраста ребенка!

(согласно ФЗ-256 от 29.12.2006 г.)
Бесплатный выезд специалиста
Введите телефон и мы перезвоним
Вам в течение 3х минут
Запись на посещение
Введите телефон и мы перезвоним
Вам в течение 3х минут
Задайте ваш вопрос
И мы перезвоним вам с ответом!

Оставаясь на сайте, вы соглашаетесь на использование файлов куки и передачей данных службам веб-аналитики