Нижний Новгород, СТ Родник, 7

Нижний Новгород, ул. Ларина, 27

Нижний Новгород, СТ Родник, 7

Пн-Пт 10-18 ч.

Нижний Новгород, СТ Родник, 7

Нижний Новгород, ул. Ларина, 27

Каркасный дом 14,5х10,5 с 2 санузлами

Проект D14

Экономия: 152 000 ₽

3 012 000  3 164 000 

  • Металлочерепица в подарок
  • Скидка на винтовые сваи 50%
  • Цена не вырастет во время стройки

Скидка на сваи 50%!

Строительство под ключ 4 дня

Нижний Новгород и область

Есть вопросы?

Специалист СК “Надёжность”
поможет с выбором

Описание

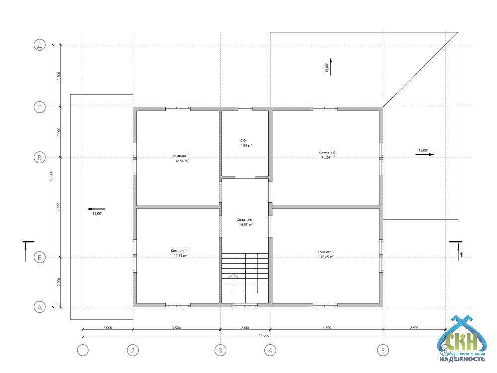
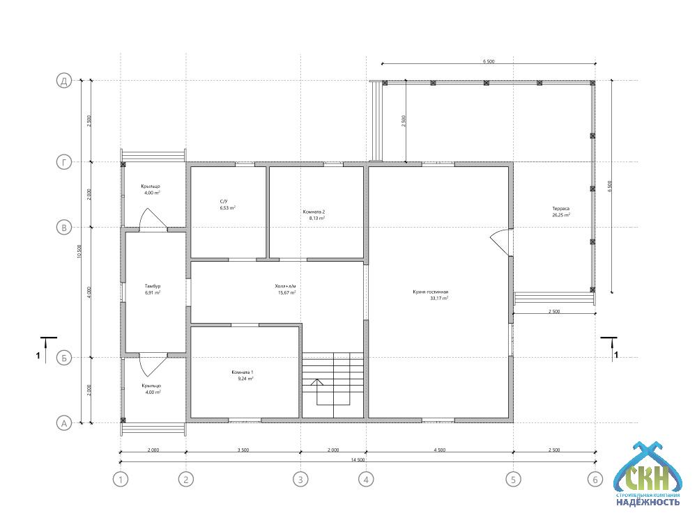
Каркасный дом представленного проекта имеет площадь застройки 14,5х10,5 м. Его конструктивную основу составляет каркас из бруса сечением 50х150 мм или 50х200 мм (в зависимости от комплектации), установленный с шагом 590 мм. Утепление стен позволяет использовать дом для всесезонного проживания. В здании 2 этажа. Внизу размещены: тамбур, санузел, лестничный холл, кухня-гостиная, две комнаты. Еще четыре спальни и дополнительный санузел, соединенные холлом находятся на втором этаже, куда ведет внутренняя лестница. К зданию примыкает терраса под навесом, на которой в теплое время года можно организовать зону отдыха на свежем воздухе.

Смотрите как мы строим
подобные проекты

Проект

АтрибутЗначение
Типзимние
Размеры, м11x15
Кол. этажей2
Конструкциятерраса, веранда
Крышадвухскатная
Кол. спален6
Оснащениекухня-гостиная
Сан. узел2
Технологиякаркасная
ПомещениеПлощадь
Общая186 м²
Жилая74,94 м²
Кухня33,17 м²
Санузел11,47 м²
Холл25,22 м²
Терраса26,25 м²
Крыльцо8 м²
Тамбур6,91 м²
Кладовая3,06 м²

Комплектация

Состав комплектации
Внешний контур
3 164 000 ₽
3 012 000 ₽
Закрытый контур
5 390 000 ₽
5 131 000 ₽
Дом под ключ
8 892 000 ₽
8 465 000 ₽
Высота - 1-й этаж 2,6 м, 2-й этаж 2,3 м
Силовой каркас естественной влажности - наружние и внутренние несущие стены 50х150 мм, лаги перекрытий и стропильная система 50х200 мм, с шагом 590 мм
Высота - 1-й этаж 2,6 м, 2-й этаж 2,3 м
Силовой каркас камерной сушки - наружние и внутренние несущие стены 50х150 мм, лаги перекрытий и стропильная система 50х200 мм, с шагом 590 мм
Кровельное покрытие - Металлочерепица GrandLine Classic 0,45 мм, устройство обрешетки, контробрешетки и гидроизоляции
Устройство карнизов, подшив кровельных свесов - виниловый сайдинг VOX. Комплект водосточной системы и трубчатых снегозадержателей Grandline
Внешняя отделка фасада - имитация бруса 16х135 мм с устройством вентилируемого зазора 50мм и ветровлагозащитой
Покраска всех элементов внешней отделки - краской Teknos на производстве с трех сторон в 2 слоя
Внутренняя отделка стен - имитация бруса 16х135 мм, потолок евровагонка Штиль 14х110 мм
Настил пола - цементно-стружечная плита 12 мм
Утепление внешних стен 150 мм, перекрытий и стропильной системы 200мм - минеральная плита Технониколь Роклайт 35 кг/м3
Звукоизоляция межкомнатных перегородок 100 мм - минеральная плита Технониколь Роклайт 35 кг/м3
Перекрестное утепление внешних стен 50 мм - минеральная плита Технониколь Роклайт 35 кг/м3
Окна ПВХ согласно проекту, ширина профиля 70 мм, двухкамерный стеклопакет с металлическими отливами
Металлическая дверь с терморазрывом, с двумя замками
Лестница на 2-ой этаж из строганной доски камерной сушки с перилами и балясинами, материал Сосна

Дополнительные услуги

150 000 ₽
357 000 ₽
252 000 ₽
207 000 ₽

Бесплатный выезд специалиста

Оплата

  • Способы оплаты Наличными деньгами в кассу офиса компании или банковский перевод на расчетный счет компании.

  • Этапы оплаты Оплата комплекса услуг по строительству вашего дома или бани проходит в три этапа. Суммы фиксируются в договоре подряда на строительство с указанием сроков, это гарантирует заказчикам, что цена не вырастет во время стройки.

  • Оплата в кредит Мы работаем с многими банками партнерами. Подать заявку на оформление кредита можно в офисе компании или по телефону. Одобрение заявки занимает 30 минут.

Информирование

Еженедельный фото или видеоотчет в любом удобном для вас канале: почта, мессенджеры. Прораб ждет Вас на участке строительства в удобное для Вас время по договоренности.

Доставка

СК Надёжность возьмет на себя полный комплекс услуг по доставке, погрузке и разгрузке материалов до места строительства на Вашем участке в Нижнем Новгороде или Нижегородской области. 

Стоимость рассчитывается индивидуально на каждый объект менеджером в зависимости от веса груза, типа транспортного средства и километража.

Сроки строительства

Сроки строительства составляют от двух недель до двух месяцев в зависимости от размеров объекта и объема работ. При составлении договора подряда сроки указываются на момент оформления документов.

Гарантия

Современные технологии и качественный материал позволяет дать гарантию для наших клиентов 5 лет.

Посетите нашу выставочную площадку

Нижегородская область, Богородский район, СТ Родник, 7

Преимущества строительной компании Надёжность

Строительство дома для постоянного проживания под ключ

Проектирование, изготовление, транспортировка, монтаж, инженерные коммуникации, утепление, отделка

Кредит за 30 минут

Только паспорт и СНИЛС Использование материнского капитала для детей любого возраста

Профессиональный подход

Рекомендации специалистов на всех этапах от выбора фундамента до планирования интерьера

Собственное производство

Все комплектующие в наличии, срочная замена в случае необходимости

Контроль качества

Система контроля качества на всех этапах: производства, сушки, хранения, транспортировки, отгрузки

Технический надзор

Закрепленный прораб на объекте, опытные рабочие, высокое качество работ!

Выполненные проекты

Отзывы

Поделитесь вашим мнением

Ваш отзыв поможет другим покупателям сделать правильный выбор!

Александр Бельченко 02 июля 2025
Если ты хочешь построить дом, но боишься затянутых сроков и бюджета, каркасный вариант твой спасательный круг. Главное, не забудь проверить, насколько глубоко вода под мостом.
Александр Белов 05 апреля 2025
Решили с женой построить каркасник, теперь она говорит, что это первый раз, когда ремонт закончился ДО свадьбы. Уютно, тепло и главное, быстро. Теперь даже кот одобрил и занял угловое место у окна.
Александр Крыжнев 23 марта 2025
Честно говоря, когда увидели цену на деревянный дом, подумали, это опечатка! Но нет, всё реально так дешево и при этом без потери качества. Дом построили быстро, всё соответствует проекту, а главное, тепло и комфортно даже зимой. Получается, что жить в своём доме может каждый, кто знает, где искать выгоду!
Александр Кочетков 25 декабря 2024
Спасибо за то, что не просто чертите стены, а создаёте целые истории проживания. Наш дом, это не просто постройка, а воплощение наших ожиданий и образа жизни.
Александр Гаврилов 28 сентября 2024
Боялся, что каркасный дом будет шатким, но оказалось, что он прочнее моих отношений с женой. А ведь мы уже 10 лет вместе, и дом стоит!

Ждём вас в любом из наших офисов

Сартаково

Нижний Новгород, СТ Родник, 7

Больше вариантов

Вопросы и ответы

У нас более 10 лет опыта в каркасном домостроении. За это время мы построили свыше 200 домов по всей России.
Мы оказываем помощь в получении разрешений на строительство за отдельную плату: подготовка пакета документов, согласование с администрацией, взаимодействие с МФЦ.
Да, мы делаем запас материалов в размере 5–10% от общего объема, чтобы избежать задержек из-за брака или ошибок при монтаже.
Пароизоляция устраивается из мембранных пленок (Изоспан B, D, AM) с проклейкой стыков двусторонним скотчем. Защищает утеплитель от конденсата изнутри дома.
В жилых зонах предусмотрены ниши, шкафы-купе, встроенные полки и другие места для хранения. Это позволяет избежать загромождения и сохранить порядок.
Да, разные температурные зоны организуются через коллекторную систему отопления с термоголовками на радиаторах или систему «умного» теплого пола с несколькими контурами.
Каркасный дом 14х10 двухэтажный 2 санузла, под ключ в Нижнем Новгороде, фото 1

Каркасный дом 14,5х10,5 с 2 санузлами

×

Интерактивная карта Нижегородской области

Тоншаево Ветлуга Урень Тонкино Шаранга Варнавино Ковернино Городец Балахна Володарск Павлово Сосновское Вача Кулебаки Выкса Дивеево Лукоянов Починки Пильна Сергач Первомайск Гагино Богородск Шатки Арзамас Саров Княгинино Бутурлино Лысково Спасское Воротынец Перевоз Большое Мурашкино Ардатов Уразовка Сеченово Чкаловск Заволжье Сокольское Красные баки Воскресенское Семенов Бор Кстово Нижний Новгород Кстово Дзержинск Дальнее Константиново Шахунья Вад Вознесенское Большое Болдино Навашино
Заявка на проект
Введите телефон и мы перезвоним Вам в течение 3х минут, чтобы обсудить детали

Каталог

Страницы

5% скидка до 31 января!
Кредит на строительство
Условия кредитования
  • Ставка 14,5%
  • Сумма до 5 000 000 руб.
  • Срок от 6 до 60 месяцев
  • Решение за 30 минут
  • Персональный менеджер 24/7

Используйте материнский капитал на строительство частного дома независимо от возраста ребенка!

(согласно ФЗ-256 от 29.12.2006 г.)
Бесплатный выезд специалиста
Введите телефон и мы перезвоним
Вам в течение 3х минут
Запись на посещение
Введите телефон и мы перезвоним
Вам в течение 3х минут
Задайте ваш вопрос
И мы перезвоним вам с ответом!

Оставаясь на сайте, вы соглашаетесь на использование файлов куки и передачей данных службам веб-аналитики