Нижний Новгород, СТ Родник, 7

Нижний Новгород, ул. Ларина, 27

Нижний Новгород, СТ Родник, 7

Пн-Пт 10-18 ч.

Нижний Новгород, СТ Родник, 7

Нижний Новгород, ул. Ларина, 27

Дачный дом 4х5 с террасой

Проект DK1/1

Экономия: 20 000 ₽

398 000  418 000 

  • Металлочерепица в подарок
  • Скидка на винтовые сваи 50%
  • Цена не вырастет во время стройки

Скидка на сваи 50%!

Строительство под ключ 2 дня

Нижний Новгород и область

Есть вопросы?

Специалист СК “Надёжность”
поможет с выбором

Описание

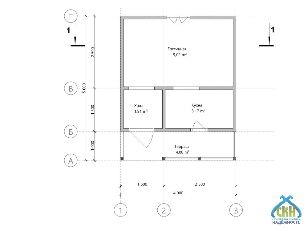
Каркасный дачный дом размером 4х5 подойдет для комфортного отдыха и проживания. Общая площадь составляет 18,1 кв. м. включая жилую зону 9,0 кв. м., кухню, холл и террасу. В доме один этаж с продуманной планировкой и удобным расположением комнат. Просторная спальня обеспечивает уют а открытая терраса расширяет пространство и создает дополнительную зону для отдыха. Двухскатная крыша придает дому современный вид и практична в зимнее время. Благодаря каркасной технологии строительство занимает мало времени а готовый проект отличается долговечностью и практичностью. Цена дома соответствует качеству материалов и функциональности решения. Доставка осуществляется в течение 30 дней, что позволит быстро приступить к сборке и начать наслаждаться загородной жизнью.

Смотрите как мы строим
подобные проекты

Проект

АтрибутЗначение
Типлетние
Размеры, м4x5
Кол. этажей1
Конструкциятерраса
Крышадвухскатная
Кол. спален1
Технологиякаркасная
ПомещениеПлощадь
Общая18,1 м²
Жилая9 м²
Кухня3,2 м²
Холл1,9 м²
Терраса4 м²

Комплектация

Состав комплектации
Внешний контур
418 000 ₽
398 000 ₽
Закрытый контур
580 000 ₽
552 000 ₽
Дача под ключ
820 000 ₽
781 000 ₽
Высота - 1-й этаж 2,4 м
Силовой каркас - наружние и внутренние стены 50х100 мм, лаги цокольного перекрытия 50х150 мм, лаги потолка и стропильной системы 50х100 мм, с шагом 590 мм.
Кровельное покрытие - Профилированный лист (окрашенный) 0,4 мм, устройство обрешетки, контробрешетки и гидроизоляции.
Устройство карнизов, подшив кровельных свесов - евровагонка (хвоя) 12,5х88 мм.
Внешняя отделка фасада - ориентировано-стружечная плита 9 мм с устройством вентилируемого зазора и ветровлагозащитой.
Внешняя отделка фасада - имитация бруса 16х135 мм с устройством вентилируемого зазора и ветровлагозащитой.
Внутренняя отделка - евровагонка (хвоя) 12,5х88 мм.
Настил пола - шпунтованная доска 36 мм с утеплением 100 мм минеральная вата Knauf Insulation 11-13 кг/м3.
Утепление внешних и внутренних стен, перекрытий 100 мм - минеральная вата Knauf Insulation 11-13 кг/м3
Окна ПВХ, ширина профиля 60 мм, двухкамерный стеклопакет с металлическими отливами.
Дверь входная металлическая, с одним замком.

Дополнительные услуги

150 000 ₽
102 000 ₽
72 000 ₽
36 000 ₽

Бесплатный выезд специалиста

Оплата

  • Способы оплаты Наличными деньгами в кассу офиса компании или банковский перевод на расчетный счет компании.

  • Этапы оплаты Оплата комплекса услуг по строительству вашего дома или бани проходит в три этапа. Суммы фиксируются в договоре подряда на строительство с указанием сроков, это гарантирует заказчикам, что цена не вырастет во время стройки.

  • Оплата в кредит Мы работаем с многими банками партнерами. Подать заявку на оформление кредита можно в офисе компании или по телефону. Одобрение заявки занимает 30 минут.

Информирование

Еженедельный фото или видеоотчет в любом удобном для вас канале: почта, мессенджеры. Прораб ждет Вас на участке строительства в удобное для Вас время по договоренности.

Доставка

СК Надёжность возьмет на себя полный комплекс услуг по доставке, погрузке и разгрузке материалов до места строительства на Вашем участке в Нижнем Новгороде или Нижегородской области. 

Стоимость рассчитывается индивидуально на каждый объект менеджером в зависимости от веса груза, типа транспортного средства и километража.

Сроки строительства

Сроки строительства составляют от двух недель до двух месяцев в зависимости от размеров объекта и объема работ. При составлении договора подряда сроки указываются на момент оформления документов.

Гарантия

Современные технологии и качественный материал позволяет дать гарантию для наших клиентов 5 лет.

Посетите нашу выставочную площадку

Нижегородская область, Богородский район, СТ Родник, 7

Преимущества строительной компании Надёжность

Строительство дачного дома под ключ

Проектирование, изготовление, транспортировка, монтаж, инженерные коммуникации, утепление, отделка

Кредит за 30 минут

Только паспорт и СНИЛС Использование материнского капитала для детей любого возраста

Профессиональный подход

Рекомендации специалистов на всех этапах от выбора фундамента до планирования интерьера

Собственное производство

Все комплектующие в наличии, срочная замена в случае необходимости

Контроль качества

Система контроля качества на всех этапах: производства, сушки, хранения, транспортировки, отгрузки

Технический надзор

Закрепленный прораб на объекте, опытные рабочие, высокое качество работ!

Выполненные проекты

Отзывы

Поделитесь вашим мнением

Ваш отзыв поможет другим покупателям сделать правильный выбор!

Алексей Власов 31 июля 2025
Балкон стал любимым местом в доме, удобен и красиво оформлен. Организовали доставку материалов так, чтобы они не мешали соседям, это показывает уровень. Благодарю за вашу честную и открытую коммуникацию при работе над дачей.
Роман Попов 19 февраля 2025
Считаю своим долгом отметить высокий уровень постройки каркасной дачи. Отопление справляется со своей задачей даже в холодное время года. Благодаря опыту бригады работа была выполнена качественно и без лишней суеты.
Наиль Зайнутдинов 22 января 2025
Строители объясняли каждое действие, стало понятнее, что происходит. Ценю вашу гибкость и адаптивность к изменению условий при сборке каркасного дома. Тип грунта не вызывает опасений, дом стоит устойчиво, без деформаций.
Станислав Чернышов 25 ноября 2024
Компания оперативно реагировала на все правки, рад, что можно было вносить изменения. Искренне рад, что выбрал именно вас для реализации проекта каркасной дачи. Система отопления работает стабильно и равномерно обогревает все помещения.
Максим Цехановский 10 октября 2024
5 баллов за минимальную усадку. Не нужно ждать, пока стены дадут усадку - сразу можно заниматься отделкой. Это большой плюс каркасного дома.

Ждём вас в любом из наших офисов

Сартаково

Нижний Новгород, СТ Родник, 7

Больше вариантов

Вопросы и ответы

Чтобы избежать конденсата и плесени, в подполе предусматриваем вентиляционные решётки, гидроизоляцию и пароизоляционный слой. Также рекомендуем регулярную проверку влажности.
Средний стаж сотрудников — от 7 лет. Многие работают в команде более 10 лет. Это позволяет нам выполнять сложные проекты качественно и в срок.
Мы всегда стараемся оперативно отвечать. Среднее время ответа — 15 минут в рабочее время. Связь возможна через WhatsApp, Telegram, телефон или email.
Все наши технологии имеют сертификаты соответствия, а также акты испытаний материалов. Можем предоставить их по запросу.
Углы собираются по технологии «тёплый угол» с применением теплоизоляционных прокладок. Все стыки герметизируем, чтобы исключить продувание и мостики холода.
Используем энергоэффективные окна, тройной стеклопакет, рекуперационную вентиляцию и автоматическое управление микроклиматом. Это снижает затраты на 20–30%.
Дачный дом 4х5 одноэтажный с террасой, под ключ в Нижнем Новгороде, фото 1

Дачный дом 4х5 с террасой

×

Интерактивная карта Нижегородской области

Тоншаево Ветлуга Урень Тонкино Шаранга Варнавино Ковернино Городец Балахна Володарск Павлово Сосновское Вача Кулебаки Выкса Дивеево Лукоянов Починки Пильна Сергач Первомайск Гагино Богородск Шатки Арзамас Саров Княгинино Бутурлино Лысково Спасское Воротынец Перевоз Большое Мурашкино Ардатов Уразовка Сеченово Чкаловск Заволжье Сокольское Красные баки Воскресенское Семенов Бор Кстово Нижний Новгород Кстово Дзержинск Дальнее Константиново Шахунья Вад Вознесенское Большое Болдино Навашино
Заявка на проект
Введите телефон и мы перезвоним Вам в течение 3х минут, чтобы обсудить детали

Каталог

Страницы

5% скидка до 31 января!
Кредит на строительство
Условия кредитования
  • Ставка 14,5%
  • Сумма до 5 000 000 руб.
  • Срок от 6 до 60 месяцев
  • Решение за 30 минут
  • Персональный менеджер 24/7

Используйте материнский капитал на строительство частного дома независимо от возраста ребенка!

(согласно ФЗ-256 от 29.12.2006 г.)
Бесплатный выезд специалиста
Введите телефон и мы перезвоним
Вам в течение 3х минут
Запись на посещение
Введите телефон и мы перезвоним
Вам в течение 3х минут
Задайте ваш вопрос
И мы перезвоним вам с ответом!

Оставаясь на сайте, вы соглашаетесь на использование файлов куки и передачей данных службам веб-аналитики