Нижний Новгород, СТ Родник, 7

Нижний Новгород, ул. Ларина, 27

Нижний Новгород, СТ Родник, 7

Пн-Пт 10-18 ч.

Нижний Новгород, СТ Родник, 7

Нижний Новгород, ул. Ларина, 27

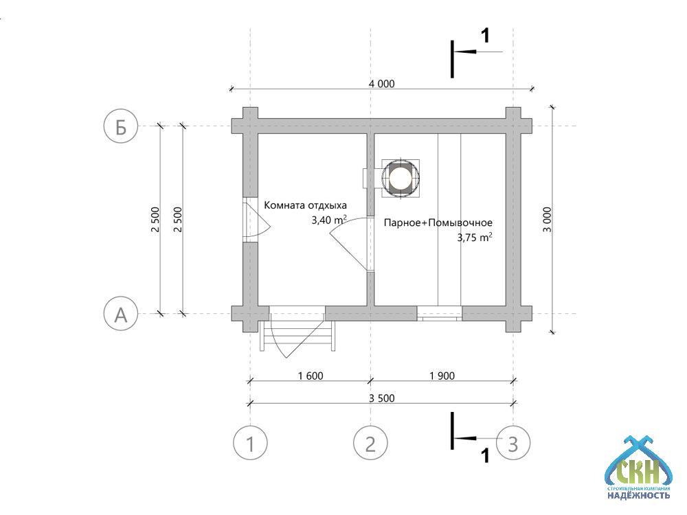
Баня из бревна 4×3 пятистенок

Проект BO1/1

Экономия: 18 000 ₽

437 000  459 000 

  • Металлочерепица в подарок
  • Скидка на винтовые сваи 50%
  • Цена не вырастет во время стройки

Скидка на сваи 50%!

Строительство под ключ 3 дня

Нижний Новгород и область

Есть вопросы?

Специалист СК “Надёжность”
поможет с выбором

Описание

Баня из оцилиндрованного бревна 4×3 открывает пространство для истинного наслаждения теплом. Общая площадь составляет 7,15 кв. м., включая парную и помывочную на 3,75 и 3,4 кв. м. соответственно. Комната отдыха дарит уют после жаркой процедуры. Вход организован через крыльцо, обеспечивающее комфортное начало банных ритуалов. Низкая цена делает её доступной без потери качества. Парная терапия восстанавливает силы и поддерживает здоровье.

Смотрите как мы строим
подобные проекты

Проект

АтрибутЗначение
Типклассические
Размеры, м3x4
Форма банипрямоугольная
Кол. этажей1
Конструкциякомната отдыха, пятистенок
Крышадвухскатная
Сан. узелнет
Стильклассический
Цвет фасадакоричневый
Деревососна
Технологияиз бревна
ПомещениеПлощадь
Общая7,15 м²
Совмещенная Парная + Помывочная3,75 м²
Комната отдыха3,4 м²

Комплектация

Состав комплектации
Баня под усадку
459 000 ₽
437 000 ₽
Лето
691 000 ₽
658 000 ₽
Баня под ключ
771 000 ₽
734 000 ₽
Высота - 1-й этаж 2,0 м.
Наружние и внутренние стены из оцилиндрованного бревна, естественной влажности d-200 мм (сборка в чашу), хвоя.
Лаги перекрытий и стропильная система 50х100 мм, с шагом 590 мм.
Кровельное покрытие - профилированный лист (окрашенный) 0.4 мм, устройство обрешетки, контробрешетки и гидроизоляции.
Устройство карнизов, подшив кровельных свесов - евровагонка (хвоя) 12,5х88 мм.
Внешняя отделка фронтона - имитация бревна 28х135 мм.
Внутренняя отделка - евровагонка (хвоя) 12,5х88 мм.
Внутренняя отделка потолка парного отделения - евровагонка (осина) 12,5х88 мм.
Настил пола - обрезная доска 50х150 мм.
Настил пола - шпунтованная доска 36 мм с утеплением 100 мм минеральная вата Knauf Insulation 11-13 кг/м3.
Межвенцовый утеплитель - джут
Утепление внутренних стен, потолка 50 мм - минеральная вата Knauf Insulation 11-13 кг/м3.
Утепление внутренних стен, потолка 100 мм - минеральная вата Knauf Insulation 11-13 кг/м3.
Окна деревянные, двойное остекление.
Двери деревянные (банные, клиновые), без замка.
Полати - одноуровневые, Осина.
Полати - двухуровневые, Осина.
Печь - Везувий Оптимум 14 (сталь 5 мм) с баком на трубе 55 литров из нержавеющей стали, двухконтурным дымоходом и комплектом пожаробезопасности.
Печь встраивается в перегородку через кирпичную кладку и топится из комнаты отдыха.
Отделка цоколя - профилированный лист (окрашенный) с продухами и металлическим отливом.
Электрика - монтаж автомата, выключателя, светильников, розеток.
Люк - лаз (доступ на чердачное пространство).
Обвязка 150х200 мм естественной влажности + антисептик (обвязки и лаг пола)+брусок 50х50мм
Столбы + перила (сборка перерубом)
Настил пола террасы - обрезная доска 50х150 мм естсетвенной влажности
Обналичка - евровагонка 12,5х88мм
Обналичка внутри - евровагонка 12,5х88 мм
Плинтус - потолок, стены (каркасные перегородки), пол
Решетка для проветривания чердачного перекрытия
Пленки ондутис
В парном отделении либо окно 600х400 деревянное либо вент решетка (на выбор)

Дополнительные услуги

150 000 ₽
51 000 ₽
36 000 ₽
14 000 ₽

Бесплатный выезд специалиста

Оплата

  • Способы оплаты Наличными деньгами в кассу офиса компании или банковский перевод на расчетный счет компании.

  • Этапы оплаты Оплата комплекса услуг по строительству вашего дома или бани проходит в три этапа. Суммы фиксируются в договоре подряда на строительство с указанием сроков, это гарантирует заказчикам, что цена не вырастет во время стройки.

  • Оплата в кредит Мы работаем с многими банками партнерами. Подать заявку на оформление кредита можно в офисе компании или по телефону. Одобрение заявки занимает 30 минут.

Информирование

Еженедельный фото или видеоотчет в любом удобном для вас канале: почта, мессенджеры. Прораб ждет Вас на участке строительства в удобное для Вас время по договоренности.

Доставка

СК Надёжность возьмет на себя полный комплекс услуг по доставке, погрузке и разгрузке материалов до места строительства на Вашем участке в Нижнем Новгороде или Нижегородской области. 

Стоимость рассчитывается индивидуально на каждый объект менеджером в зависимости от веса груза, типа транспортного средства и километража.

Сроки строительства

Сроки строительства составляют от двух недель до двух месяцев в зависимости от размеров объекта и объема работ. При составлении договора подряда сроки указываются на момент оформления документов.

Гарантия

Современные технологии и качественный материал позволяет дать гарантию для наших клиентов 5 лет.

Посетите нашу выставочную площадку

Нижегородская область, Богородский район, СТ Родник, 7

Преимущества строительной компании Надёжность

Строительство бани под ключ

Проектирование, изготовление, транспортировка, монтаж, инженерные коммуникации, утепление, отделка

Кредит за 30 минут

Только паспорт и СНИЛС Использование материнского капитала для детей любого возраста

Профессиональный подход

Рекомендации специалистов на всех этапах от выбора фундамента до планирования интерьера

Собственное производство

Все комплектующие в наличии, срочная замена в случае необходимости

Контроль качества

Система контроля качества на всех этапах: производства, сушки, хранения, транспортировки, отгрузки

Технический надзор

Закрепленный прораб на объекте, опытные рабочие, высокое качество работ!

Выполненные проекты

Отзывы

Поделитесь вашим мнением

Ваш отзыв поможет другим покупателям сделать правильный выбор!

Виктория Дроздова 07 января 2026
Баня пятистенок оправдала все мои ожидания и семья довольна. Давно хотели капитальную теплую баню, которая будет долго держать жар. Наконец-то, наша мечта осуществилась. Стены толстые, тепло сохраняется даже на следующий день. Благодарю за качественно выполненную работу!
Никита Брызгалов 09 июня 2025
Команда работает четко, ответственно и с уважением к клиенту. Результат говорит сам за себя. Хочу отметить слаженную коммуникацию между заказчиком и застройщиком.
Александра Селезнёва 07 марта 2025
Помогает снять усталость, расслабить мышцы и восстановить силы. После тренировок на участке с лопатой - как второе дыхание. Если вы дачник и хотите недорогую, но комфортную и красивую баню, то рекомендую обратить внимание на СК Надежность и их бани. Это то самое сочетание цены, качества и уюта, которое так важно на даче.
Алексей Брагинов 07 марта 2025
Все было учтено и реализовано. Работа выполнена как режиссура - четко, по сценарию, с акцентами на главном. Плюс прекрасный внешний вид. Не нужно ни подшивать, ни прятать за сайдингом - смотрится дорого и натурально. Участок стал выглядеть уютнее, даже гости чаще стали заглядывать, завидуют ??
Мирослав Лифонтов 09 декабря 2024
Обращался в компанию с желанием построить баню из оцилиндрованного бревна, и, честно скажу, больше всего волновало не столько качество самого материала, сколько люди, которые будут это все собирать. Ведь даже из отличного бревна можно сделать «кривобуд», если строители не знают дела. Но тут повезло встретил настоящих мастеров своего дела.

Ждём вас в любом из наших офисов

Сартаково

Нижний Новгород, СТ Родник, 7

Больше вариантов

Вопросы и ответы

Обычно мы используем брёвна диаметром от 22 до 32 см — всё зависит от проекта и пожеланий клиента. Можем предложить как более лёгкие варианты для компактных бань, так и массивные для зимнего использования.
Бригады работают вместе годами — у нас нет случайных людей. Все мастера знают своё дело и относятся к нему с душой.
Устанавливаем автоматические выключатели и УЗО — чтобы защитить оборудование и обеспечить безопасность в бане.
Обязательно! Все системы электробезопасности соблюдены — заземление сделаем качественно и надёжно.
Да, мы используем качественные оконные блоки, которые не деформируются при перепадах температур.
Вентиляция есть — регулируемый приток и вытяжка, чтобы контролировать комфортную температуру и влажность.
Баня из бревна 3×4 пятистенок, под ключ в Нижнем Новгороде, фото 1

Баня из бревна 4×3 пятистенок

×

Интерактивная карта Нижегородской области

Тоншаево Ветлуга Урень Тонкино Шаранга Варнавино Ковернино Городец Балахна Володарск Павлово Сосновское Вача Кулебаки Выкса Дивеево Лукоянов Починки Пильна Сергач Первомайск Гагино Богородск Шатки Арзамас Саров Княгинино Бутурлино Лысково Спасское Воротынец Перевоз Большое Мурашкино Ардатов Уразовка Сеченово Чкаловск Заволжье Сокольское Красные баки Воскресенское Семенов Бор Кстово Нижний Новгород Кстово Дзержинск Дальнее Константиново Шахунья Вад Вознесенское Большое Болдино Навашино
Заявка на проект
Введите телефон и мы перезвоним Вам в течение 3х минут, чтобы обсудить детали

Каталог

Страницы

5% скидка до 31 января!
Кредит на строительство
Условия кредитования
  • Ставка 14,5%
  • Сумма до 5 000 000 руб.
  • Срок от 6 до 60 месяцев
  • Решение за 30 минут
  • Персональный менеджер 24/7

Используйте материнский капитал на строительство частного дома независимо от возраста ребенка!

(согласно ФЗ-256 от 29.12.2006 г.)
Бесплатный выезд специалиста
Введите телефон и мы перезвоним
Вам в течение 3х минут
Запись на посещение
Введите телефон и мы перезвоним
Вам в течение 3х минут
Задайте ваш вопрос
И мы перезвоним вам с ответом!

Оставаясь на сайте, вы соглашаетесь на использование файлов куки и передачей данных службам веб-аналитики