Нижний Новгород, СТ Родник, 7

Нижний Новгород, ул. Ларина, 27

Нижний Новгород, СТ Родник, 7

Пн - Пт с 10:00 до 18:00

Нижний Новгород, СТ Родник, 7

Нижний Новгород, ул. Ларина, 27

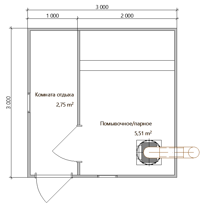
Модульная баня 3х3 квадратная

Проект BD10

289 000  313 000 

Строительство 1 день

Есть вопросы?

Специалист СК “Надёжность”
поможет с выбором

Описание

Модульная баня 3?3 м — компактный, продуманный до деталей объект площадью 9 кв. м, где парная и помывочная объединены в единое функциональное пространство, а отдельная комната отдыха создана для расслабления и отдыха. Вся конструкция собирается на участке за один день, без длительных этапов строительства: мы доставляем готовый модуль прямо с производства и монтируем его под ключ. Работая напрямую с застройщиком и собственным производством, вы получаете не просто баню, а чётко выверенный объект строительства, лишённый посреднических наценок и неопределённостей.

Смотрите как мы строим
подобные проекты

Проект

АтрибутЗначение
Типмодульные
Размеры, м3x3
Форма баниквадратная
Кол. этажей1
Конструкциякомната отдыха, пятистенок
Крышадвухскатная
Стильклассические
Цвет фасадабежевый
Деревососна
ПомещениеПлощадь
Общая9 м²
Совмещенная Парная + Помывочная5,51 м²
Комната отдыха2,75 м²

Комплектация

Состав комплектации
Лето
313 000 ₽
289 000 ₽
Зима
343 000 ₽
317 000 ₽
Высота - 1-й этаж 2,6 м, 2-й этаж 2,3 м
Силовой каркас естественной влажности - наружние и внутренние несущие стены 50х150 мм, лаги перекрытий и стропильная система 50х200 мм, с шагом 590 мм
Высота - 1-й этаж 2,6 м, 2-й этаж 2,3 м
Силовой каркас камерной сушки - наружние и внутренние несущие стены 50х150 мм, лаги перекрытий и стропильная система 50х200 мм, с шагом 590 мм
Кровельное покрытие - Металлочерепица GrandLine Classic 0,45 мм, устройство обрешетки, контробрешетки и гидроизоляции
Устройство карнизов, подшив кровельных свесов - виниловый сайдинг VOX. Комплект водосточной системы и трубчатых снегозадержателей Grandline
Внешняя отделка фасада - имитация бруса 16х135 мм с устройством вентилируемого зазора 50мм и ветровлагозащитой
Покраска всех элементов внешней отделки - краской Teknos на производстве с трех сторон в 2 слоя
Внутренняя отделка стен - имитация бруса 16х135 мм, потолок евровагонка Штиль 14х110 мм
Настил пола - цементно-стружечная плита 12 мм
Утепление внешних стен 150 мм, перекрытий и стропильной системы 200мм - минеральная плита Технониколь Роклайт 35 кг/м3
Звукоизоляция межкомнатных перегородок 100 мм - минеральная плита Технониколь Роклайт 35 кг/м3
Перекрестное утепление внешних стен 50 мм - минеральная плита Технониколь Роклайт 35 кг/м3
Окна ПВХ согласно проекту, ширина профиля 70 мм, двухкамерный стеклопакет с металлическими отливами
Металлическая дверь с терморазрывом, с двумя замками
Лестница на 2-ой этаж из строганной доски камерной сушки с перилами и балясинами, материал Сосна

Дополнительные услуги

150 000 ₽
49 500 ₽
16 000 ₽

Бесплатный выезд специалиста

50% скидка на винтовые сваи
или металлочерепица в подарок!

Оплата

  • Способы оплаты Наличными деньгами в кассу офиса компании или банковский перевод на расчетный счет компании.

  • Этапы оплаты Оплата комплекса услуг по строительству вашего дома или бани проходит в три этапа. Суммы фиксируются в договоре подряда на строительство с указанием сроков, это гарантирует заказчикам, что цена не вырастет во время стройки.

  • Оплата в кредит Мы работаем с многими банками партнерами. Подать заявку на оформление кредита можно в офисе компании или по телефону. Одобрение заявки занимает 30 минут.

Информирование

Еженедельный фото или видеоотчет в любом удобном для вас канале: почта, мессенджеры. Прораб ждет Вас на участке строительства в удобное для Вас время по договоренности.

Доставка

СК Надёжность возьмет на себя полный комплекс услуг по доставке, погрузке и разгрузке материалов до места строительства на Вашем участке в Нижнем Новгороде или Нижегородской области. 

Стоимость рассчитывается индивидуально на каждый объект менеджером в зависимости от веса груза, типа транспортного средства и километража.

Сроки строительства

Сроки строительства составляют от двух недель до двух месяцев в зависимости от размеров объекта и объема работ. При составлении договора подряда сроки указываются на момент оформления документов.

Гарантия

Современные технологии и качественный материал позволяет дать гарантию для наших клиентов 1 год.

Посетите нашу выставочную площадку

Нижегородская область, Богородский район, СТ Родник, 7

Преимущества строительной компании Надёжность

Строительство бани под ключ

Проектирование, изготовление, транспортировка, монтаж, инженерные коммуникации, утепление, отделка

Кредит за 30 минут

Только паспорт и СНИЛС Использование материнского капитала для детей любого возраста

Профессиональный подход

Рекомендации специалистов на всех этапах от выбора фундамента до планирования интерьера

Собственное производство

Все комплектующие в наличии, срочная замена в случае необходимости

Контроль качества

Система контроля качества на всех этапах: производства, сушки, хранения, транспортировки, отгрузки

Технический надзор

Закрепленный прораб на объекте, опытные рабочие, высокое качество работ!

Выполненные проекты

Отзывы

Поделитесь вашим мнением

Ваш отзыв поможет другим покупателям сделать правильный выбор!

Злата Морозова 08 декабря 2024
Спасибо за то, что сделали всё так тепло и по такой доступной цене.
Юрий Гусев 30 августа 2024
Модульная баня привезена с завода, брус качественный, сборка мастерами, доставка без повреждений и все коммуникации работают идеально.
Мария Глазова 26 августа 2024
Качество выше среднего, всё сделано точно и без ошибок, спасибо!
София Рыбакова 17 февраля 2024
Модульная баня приехала утром, а к вечеру я уже парилась, нереальная скорость!
Зульфия Медведева 02 февраля 2024
Цену нашел выгодной, после теста понял, что это лучший выбор

Ждём вас в любом из наших офисов

Сартаково

Нижний Новгород, СТ Родник, 7

Больше вариантов

Вопросы и ответы

Конечно. Он играет роль буферной зоны — не даёт холодному воздуху резко попадать внутрь, снижает потери тепла при входе-выходе, особенно для регионов с суровыми зимами.
Да, предлагаем несколько стилистик: от классического деревенского до современного лофта. Меняется тип фасада, цвет сайдинга, форма крыши, даже угол наклона свесов. Хотите — сделаем под старину, с состаренной доской и металлическими акцентами.
Мы делаем от 2,3 метра. Больше — не нужно: тёплый воздух скапливается сверху, и теряется эффективность прогрева. При высоких потолках сложно добиться нужного микроклимата без избыточного расхода энергии.
Проточный удобен, если баней пользуются редко. Бойлер объёмом 80–100 литров — надёжнее для семьи: вода всегда горячая, её хватает на всех. Рекомендуем бойлер, особенно если в домокомплекте уже предусмотрена электрическая нагрузка.
Мы меняем конфигурацию, добавляем второй этаж, переносим печь, делаем открытую веранду вместо закрытой. Главное — чтобы изменения соответствовали нормам безопасности и технологиям сборки.
Да, у нас работает шоу-рум в Нижнем Новгороде. Там представлены три типовых сборки: с террасой, барнхаусы и компактная. Можно пройтись внутри, потрогать материалы, включить свет, оценить качество сборки.

Модульная баня 2х4 с террасой

Заявка на проект
Введите телефон и мы перезвоним Вам в течение 3х минут, чтобы обсудить детали

Каталог

Страницы

50% скидка на винтовые сваи и металлочерепица в подарок до 31 октября!
при заказе дома, дачи или бани под ключ
Кредит на строительство
Условия кредитования
  • Ставка 14,5%
  • Сумма до 5 000 000 руб.
  • Срок от 6 до 60 месяцев
  • Решение за 30 минут
  • Персональный менеджер 24/7

Используйте материнский капитал на строительство частного дома независимо от возраста ребенка!

(согласно ФЗ-256 от 29.12.2006 г.)
Бесплатный выезд специалиста
Введите телефон и мы перезвоним
Вам в течение 3х минут
Запись на посещение
Введите телефон и мы перезвоним
Вам в течение 3х минут
Задайте ваш вопрос
И мы перезвоним вам с ответом!

Оставаясь на сайте, вы соглашаетесь на использование файлов куки и передачей данных службам веб-аналитики