Нижний Новгород, ул. Ларина, 27

Пн-Пт 10:00 - 18:00

Каркасный дом 8х7 с разноскатной крышей

Проект D17

Экономия: 59 000 ₽

1 163 000  1 222 000 

  • Металлочерепица в подарок
  • Скидка на винтовые сваи 50%
  • Цена не вырастет во время стройки

Скидка на сваи 50%!

Строительство под ключ 3 дня

Нижний Новгород и область

Есть вопросы?

Специалист СК “Надёжность”
поможет с выбором

Описание

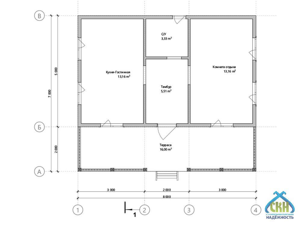
Каркасный дом с размерами 8х7 м и общей площадью 51 кв. м предлагает оптимальное пространство для жизни семьи любого состава. В доме имеются: жилая комната, просторная кухня-гостиная, санузел, терраса и тамбур. Комната рассчитана на комфортное проживание, что делает дом подходящим как для постоянного проживания, так и для сезонного отдыха. Просторная терраса станет прекрасным местом для отдыха на свежем воздухе. Односкатная крыша обеспечивает надежную защиту от осадков и придает современный стиль зданию. Производство дома осуществляется из качественных материалов, гарантирующих теплоизоляцию и устойчивость к внешним воздействиям. Строительство проходит по договору точно в срок, что позволяет быстро начать эксплуатацию.

Смотрите как мы строим
подобные проекты

Проект

АтрибутЗначение
Типзимние
Размеры, м7x8
Кол. этажей1
Конструкциятерраса
Крышаодноскатная
Кол. спален1
Оснащениекухня-гостиная
Сан. узел1
Стильскандинавский
Технологиякаркасная
ПомещениеПлощадь
Общая51,2 м²
Жилая13,16 м²
Кухня13,16 м²
Санузел3,33 м²
Терраса16 м²
Тамбур5,51 м²

Комплектация

Состав комплектации
Внешний контур
1 222 000 ₽
1 163 000 ₽
Закрытый контур
2 059 000 ₽
1 960 000 ₽
Дом под ключ
3 162 000 ₽
3 010 000 ₽
Высота - 1-й этаж 2,6 м, 2-й этаж 2,3 м. Силовой каркас естественной влажности - наружние и внутренние несущие стены 50х150 мм, лаги перекрытий и стропильная система 50х200 мм, с шагом 590 мм
Высота - 1-й этаж 2,6 м, 2-й этаж 2,3 м. Силовой каркас камерной сушки - наружние и внутренние несущие стены 50х150 мм, лаги перекрытий и стропильная система 50х200 мм, с шагом 590 мм
Кровельное покрытие - Металлочерепица GrandLine Classic 0,45 мм, устройство обрешетки, контробрешетки и гидроизоляции
Устройство карнизов, подшив кровельных свесов - виниловый сайдинг VOX. Комплект водосточной системы и трубчатых снегозадержателей Grandline
Внешняя отделка фасада - имитация бруса 16х135 мм с устройством вентилируемого зазора 50мм и ветровлагозащитой
Покраска всех элементов внешней отделки - краской Teknos на производстве с трех сторон в 2 слоя
Внутренняя отделка стен - имитация бруса 16х135 мм, потолок евровагонка Штиль 14х110 мм. Настил пола - цементно-стружечная плита 12 мм
Утепление внешних стен 150 мм, перекрытий и стропильной системы 200мм - минеральная плита Технониколь Роклайт 35 кг/м3
Звукоизоляция межкомнатных перегородок 100 мм - минеральная плита Технониколь Роклайт 35 кг/м3
Перекрестное утепление внешних стен 50 мм - минеральная плита Технониколь Роклайт 35 кг/м3
Окна ПВХ согласно проекту, ширина профиля 70 мм, двухкамерный стеклопакет с металлическими отливами
Металлическая дверь с терморазрывом, с двумя замками
Лестница на 2-ой этаж из строганной доски камерной сушки с перилами и балясинами, материал Сосна

Дополнительные услуги

150 000 ₽
136 000 ₽
96 000 ₽
75 000 ₽

Бесплатный выезд специалиста

Оплата

  • Способы оплаты Наличными деньгами в кассу офиса компании или банковский перевод на расчетный счет компании.

  • Этапы оплаты Оплата комплекса услуг по строительству вашего дома или бани проходит в три этапа. Суммы фиксируются в договоре подряда на строительство с указанием сроков, это гарантирует заказчикам, что цена не вырастет во время стройки.

  • Оплата в кредит Мы работаем с многими банками партнерами. Подать заявку на оформление кредита можно в офисе компании или по телефону. Одобрение заявки занимает 30 минут.

Информирование

Еженедельный фото или видеоотчет в любом удобном для вас канале: почта, мессенджеры. Прораб ждет Вас на участке строительства в удобное для Вас время по договоренности.

Доставка

СК Надёжность возьмет на себя полный комплекс услуг по доставке, погрузке и разгрузке материалов до места строительства на Вашем участке в Нижнем Новгороде или Нижегородской области. 

Стоимость рассчитывается индивидуально на каждый объект менеджером в зависимости от веса груза, типа транспортного средства и километража.

Сроки строительства

Сроки строительства составляют от двух недель до двух месяцев в зависимости от размеров объекта и объема работ. При составлении договора подряда сроки указываются на момент оформления документов.

Гарантия

Современные технологии и качественный материал позволяет дать гарантию для наших клиентов 5 лет.

Посетите нашу выставочную площадку

Нижегородская область, Богородский район, СТ Родник, 7

Преимущества строительной компании Надёжность

Строительство дома для постоянного проживания под ключ

Проектирование, изготовление, транспортировка, монтаж, инженерные коммуникации, утепление, отделка

Кредит за 30 минут

Только паспорт и СНИЛС Использование материнского капитала для детей любого возраста

Профессиональный подход

Рекомендации специалистов на всех этапах от выбора фундамента до планирования интерьера

Собственное производство

Все комплектующие в наличии, срочная замена в случае необходимости

Контроль качества

Система контроля качества на всех этапах: производства, сушки, хранения, транспортировки, отгрузки

Технический надзор

Закрепленный прораб на объекте, опытные рабочие, высокое качество работ!

Выполненные проекты

Отзывы

Поделитесь вашим мнением

Ваш отзыв поможет другим покупателям сделать правильный выбор!

Александр Лапин 06 июля 2025
Каркасный дом, это как купить билет в один конец, но в пункт назначения, куда хочется возвращаться снова и снова. Без пересадок и очередей.
Александр Кудрявцев 09 апреля 2025
Каркасный дом, идеальное решение для тех, кто боится долго ждать. Построили за пару недель, пока сосед строил фундамент. Зато теперь мы на банкетке под чай, а он всё ещё таскает цемент.
Александр Медведев 27 марта 2025
Мы долго мучились с выбором: квартира или дом? Оказалось, можно позволить себе и дом, и сэкономить! Каркасный вариант оказался не только бюджетным, но и умным решением. Сэкономили на строительстве, отоплении и времени, а получили полноценное жильё для круглогодичного проживания. Цены шоколадные, качество, твердый кофе!
Александр Ложкин 29 декабря 2024
Мы благодарны за глубокое понимание потребностей семьи. В проекте учтены все наши особенности, от зонирования до самых неожиданных бытовых мелочей.
Александр Лобанов 02 октября 2024
Если вам нужно жить, а не строиться, смело обращайтесь. Эта компания умеет превращать мечты в квадратные метры, а сроки, в реальность. Очень приятно работать с профессионалами.

Ждём вас в любом из наших офисов

Сартаково

Нижний Новгород, СТ Родник, 7

Больше вариантов

Вопросы и ответы

Да, у нас есть все необходимые допуски СРО и лицензии на строительные работы. Можем предоставить копии по запросу.
При проектировании мы учитываем рельеф участка, расположение коммуникаций, солнечную сторону и другие особенности для максимальной функциональности и энергоэффективности.
Материалы доставляются собственным автопарком или проверенными логистическими партнерами. Обеспечиваем бережную погрузку и своевременную доставку на площадку.
Гидроизоляция осуществляется с использованием полимерных мембран (например, Tyvek), которые укладываются под кровлю, на фундамент и в стены. Также применяются обмазочные составы.
Все коммуникации спроектированы так, чтобы к ним был свободный доступ. Ключевые узлы находятся в технических помещениях или за ревизионными панелями.
Инженерные системы размещаются компактно: электрощит, котельная, насосная станция, система фильтрации воды. Всё спроектировано так, чтобы не занимать лишнее пространство.
Каркасный дом 5х8 одноэтажный 1 спальня, под ключ в Нижнем Новгороде, фото 1

Каркасный дом 8х7 с разноскатной крышей

×
Интерактивная карта Нижегородской области
Тоншаево Ветлуга Урень Тонкино Шаранга Варнавино Ковернино Городец Балахна Володарск Павлово Сосновское Вача Кулебаки Выкса Дивеево Лукоянов Починки Пильна Сергач Первомайск Гагино Богородск Шатки Арзамас Саров Княгинино Бутурлино Лысково Спасское Воротынец Перевоз Большое Мурашкино Ардатов Уразовка Сеченово Чкаловск Заволжье Сокольское Красные баки Воскресенское Семенов Бор Кстово Нижний Новгород Кстово Дзержинск Дальнее Константиново Шахунья Вад Вознесенское Большое Болдино Навашино
Заявка на проект
Введите телефон и мы перезвоним Вам в течение 3х минут, чтобы обсудить детали
Кредит на строительство
Условия кредитования
  • Ставка 14,5%
  • Сумма до 5 000 000 руб.
  • Срок от 6 до 60 месяцев
  • Решение за 30 минут
  • Персональный менеджер 24/7

Используйте материнский капитал на строительство частного дома независимо от возраста ребенка!

(согласно ФЗ-256 от 29.12.2006 г.)
Бесплатный выезд специалиста
Введите телефон и мы перезвоним
Вам в течение 3х минут
Запись на посещение
Введите телефон и мы перезвоним
Вам в течение 3х минут
Задайте ваш вопрос
И мы перезвоним вам с ответом!
Оставаясь на сайте, вы соглашаетесь на использование файлов куки и передачей данных службам веб-аналитики
5% скидка до 28 февраля!