Нижний Новгород, ул. Ларина, 27

Пн-Пт 10:00 - 18:00

Дачный дом 8х7 с односкатной крышей

Проект DK1/13

Экономия: 35 000 ₽

694 000  729 000 

  • Металлочерепица в подарок
  • Скидка на винтовые сваи 50%
  • Цена не вырастет во время стройки

Скидка на сваи 50%!

Строительство под ключ 3 дня

Нижний Новгород и область

Есть вопросы?

Специалист СК “Надёжность”
поможет с выбором

Описание

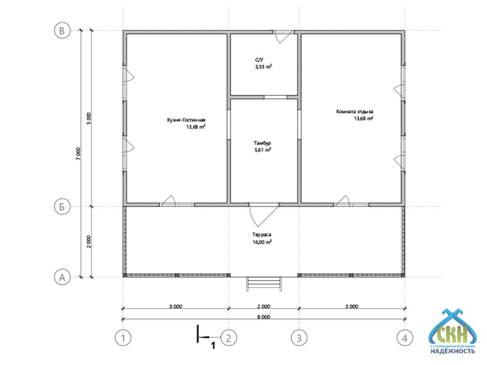
Этот одноэтажный дачный дом создан для практичного использования пространства. Площадь дома составляет чуть более 50 кв. м. В доме есть 1 спальня и совмещённая кухня с гостиной. Терраса расширяет возможности отдыха на 16-ти квадратных метрах. Крыша выполнена односкатной формы, что соответствует скандинавскому стилю архитектуры. Профессионализм нашей строительной компании проявляется в точности монтажа и соблюдении всех технических стандартов. Мы изготавливаем брус для строительства садового дома 8 на 7 метров на собственном производстве, поэтому Вы можете быть уверены в качестве материалов. на заказ сделаем антисептическую и огнезащитную обработку бруса. Построим для Вас дачу под ключ с устройством водоснабжения, канализации, электроосвещения, установкой двойных стеклопакетов на окна и металлических входных дверей. Любители садоводства оценят возможности отдыха в уютном доме в саду!

Смотрите как мы строим
подобные проекты

Проект

АтрибутЗначение
Типлетние
Размеры, м7x8
Кол. этажей1
Конструкциятерраса
Крышаодноскатная
Кол. спален1
Сан. узел1
Оснащениекухня-гостиная
Стильскандинавский
Технологиякаркасная
ПомещениеПлощадь
Общая51,79 м²
Жилая13,47 м²
Кухня13,47 м²
Санузел3,04 м²
Холл5,81 м²
Терраса16,00 м²

Комплектация

Состав комплектации
Внешний контур
729 000 ₽
694 000 ₽
Закрытый контур
1 077 000 ₽
1 025 000 ₽
Дача под ключ
1 543 000 ₽
1 469 000 ₽
Высота - 1-й этаж 2,4 м. Силовой каркас - наружние и внутренние стены 50х100 мм, лаги цокольного перекрытия 50х150 мм, лаги потолка и стропильной системы 50х100 мм, с шагом 590 мм.
Кровельное покрытие - Профилированный лист (окрашенный) 0,4 мм, устройство обрешетки, контробрешетки и гидроизоляции.
Устройство карнизов, подшив кровельных свесов - евровагонка (хвоя) 12,5х88 мм.
Внешняя отделка фасада - ориентировано-стружечная плита 9 мм с устройством вентилируемого зазора и ветровлагозащитой.
Внешняя отделка фасада - имитация бруса 16х135 мм с устройством вентилируемого зазора и ветровлагозащитой.
Внутренняя отделка - евровагонка (хвоя) 12,5х88 мм.
Настил пола - шпунтованная доска 36 мм с утеплением 100 мм минеральная вата Knauf Insulation 11-13 кг/м3.
Утепление внешних и внутренних стен, перекрытий 100 мм - минеральная вата Knauf Insulation 11-13 кг/м3
Окна ПВХ, ширина профиля 60 мм, двухкамерный стеклопакет с металлическими отливами.
Дверь входная металлическая, с одним замком.

Дополнительные услуги

150 000 ₽
136 000 ₽
96 000 ₽
45 000 ₽

Бесплатный выезд специалиста

Оплата

  • Способы оплаты Наличными деньгами в кассу офиса компании или банковский перевод на расчетный счет компании.

  • Этапы оплаты Оплата комплекса услуг по строительству вашего дома или бани проходит в три этапа. Суммы фиксируются в договоре подряда на строительство с указанием сроков, это гарантирует заказчикам, что цена не вырастет во время стройки.

  • Оплата в кредит Мы работаем с многими банками партнерами. Подать заявку на оформление кредита можно в офисе компании или по телефону. Одобрение заявки занимает 30 минут.

Информирование

Еженедельный фото или видеоотчет в любом удобном для вас канале: почта, мессенджеры. Прораб ждет Вас на участке строительства в удобное для Вас время по договоренности.

Доставка

СК Надёжность возьмет на себя полный комплекс услуг по доставке, погрузке и разгрузке материалов до места строительства на Вашем участке в Нижнем Новгороде или Нижегородской области. 

Стоимость рассчитывается индивидуально на каждый объект менеджером в зависимости от веса груза, типа транспортного средства и километража.

Сроки строительства

Сроки строительства составляют от двух недель до двух месяцев в зависимости от размеров объекта и объема работ. При составлении договора подряда сроки указываются на момент оформления документов.

Гарантия

Современные технологии и качественный материал позволяет дать гарантию для наших клиентов 5 лет.

Посетите нашу выставочную площадку

Нижегородская область, Богородский район, СТ Родник, 7

Преимущества строительной компании Надёжность

Строительство дачного дома под ключ

Проектирование, изготовление, транспортировка, монтаж, инженерные коммуникации, утепление, отделка

Кредит за 30 минут

Только паспорт и СНИЛС Использование материнского капитала для детей любого возраста

Профессиональный подход

Рекомендации специалистов на всех этапах от выбора фундамента до планирования интерьера

Собственное производство

Все комплектующие в наличии, срочная замена в случае необходимости

Контроль качества

Система контроля качества на всех этапах: производства, сушки, хранения, транспортировки, отгрузки

Технический надзор

Закрепленный прораб на объекте, опытные рабочие, высокое качество работ!

Выполненные проекты

Отзывы

Поделитесь вашим мнением

Ваш отзыв поможет другим покупателям сделать правильный выбор!

Евгения Закирова 27 июня 2025
Приятно удивлена тем, как вы подошли к каждому этапу возведения дачи. Веранда стала изюминкой дома, здесь приятно проводить вечера. Дом построен с учётом всех пожеланий, чувствуется индивидуальный подход.
Виктор Зорин 10 июня 2025
Весь процесс был прозрачным, мы всегда знали, что происходит и что будет дальше. Обязательно отмечу ваше умение держать слово и сроки при возведении дачного дома. Безопасность на участке организована грамотно, чувствуешь себя уверенно даже вечером.
Степан Дроздов 09 мая 2025
Не остался равнодушным к возможностям перепланировки. Можно менять расположение кухни и комнаты - это потрясающе. Такой дом идеально подходит для семей с детьми.
Марьяна Гизатуллина 29 марта 2025
Уровень шума минимальный, в доме всегда тихо и спокойно. Заранее предусмотрели место под кондиционер и другие устройства, продуманность уровня PRO. Приятно, что вы не боитесь брать на себя сложные решения при постройке каркасной дачи.
Лариса Щеголева 20 декабря 2024
Дом построен с учётом будущего расширения, продуманность на высшем уровне. Ценю вашу способность управлять временем и ресурсами разумно при строительстве дачного дома. Звукоизоляция между комнатами обеспечивает личное пространство и спокойствие.

Ждём вас в любом из наших офисов

Сартаково

Нижний Новгород, СТ Родник, 7

Больше вариантов

Вопросы и ответы

Толщина стен — от 150 мм (каркас + утеплитель). Этого достаточно для комфортного проживания даже в холодное время года. Можно увеличить до 200 мм по желанию клиента.
Стены дачного дома собираются за 7–10 дней для одноэтажного дома площадью до 100 м?. Если нужно ускорить — можно сократить срок за счёт увеличения бригады и параллельных работ.
Да, финальный осмотр дачного дома проводится вместе с клиентом. Заполняем акт сдачи-приёмки и показываем, как использовать системы дома.
Да, после сдачи дома вы получите полный комплект технической документации: схемы коммуникаций, инструкции по эксплуатации, акты и паспорта на оборудование.
Применяем технологии «тёплого угла», герметичные окна и пароизоляцию, чтобы минимизировать конденсат и сохранять комфортную температуру при резких перепадах.
Да, каркас усилен диагональными связями, используется сухое дерево. Это исключает деформацию и усадку.
Дачный дом 5х8 одноэтажный с односкатной крышей, под ключ в Нижнем Новгороде, фото 1

Дачный дом 8х7 с односкатной крышей

×
Интерактивная карта Нижегородской области
Тоншаево Ветлуга Урень Тонкино Шаранга Варнавино Ковернино Городец Балахна Володарск Павлово Сосновское Вача Кулебаки Выкса Дивеево Лукоянов Починки Пильна Сергач Первомайск Гагино Богородск Шатки Арзамас Саров Княгинино Бутурлино Лысково Спасское Воротынец Перевоз Большое Мурашкино Ардатов Уразовка Сеченово Чкаловск Заволжье Сокольское Красные баки Воскресенское Семенов Бор Кстово Нижний Новгород Кстово Дзержинск Дальнее Константиново Шахунья Вад Вознесенское Большое Болдино Навашино
Заявка на проект
Введите телефон и мы перезвоним Вам в течение 3х минут, чтобы обсудить детали
Кредит на строительство
Условия кредитования
  • Ставка 14,5%
  • Сумма до 5 000 000 руб.
  • Срок от 6 до 60 месяцев
  • Решение за 30 минут
  • Персональный менеджер 24/7

Используйте материнский капитал на строительство частного дома независимо от возраста ребенка!

(согласно ФЗ-256 от 29.12.2006 г.)
Бесплатный выезд специалиста
Введите телефон и мы перезвоним
Вам в течение 3х минут
Запись на посещение
Введите телефон и мы перезвоним
Вам в течение 3х минут
Задайте ваш вопрос
И мы перезвоним вам с ответом!
Оставаясь на сайте, вы соглашаетесь на использование файлов куки и передачей данных службам веб-аналитики
5% скидка до 28 февраля!