Нижний Новгород, ул. Ларина, 27

Пн-Пт 10:00 - 18:00

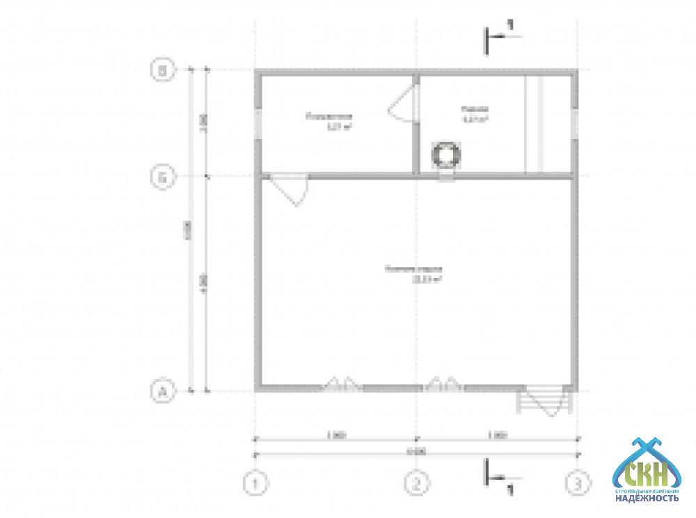
Каркасная баня 6х6 с раздельной парной и моечной

Проект BK1/23

852 000  895 000 

  • Металлочерепица в подарок
  • Скидка на винтовые сваи 50%
  • Цена не вырастет во время стройки

Скидка на сваи 50%!

Строительство под ключ 4 дня

Нижний Новгород и область

Есть вопросы?

Специалист СК “Надёжность”
поможет с выбором

Описание

Каркасная баня 6×6 с раздельной парной и помывочной располагает общей площадью 36 кв. м., включая две зоны парной и помывочной по 6 кв. м. и просторную комнату отдыха 24 кв. м.. Дизайнерское решение делает её особенной. Продуманная планировка выделяет зоны для разных этапов банных процедур. Парная и помывочная работают вместе, но сохраняют индивидуальность. В комнате отдыха можно собраться всей компанией. Это место, где тело получает заботу, а душа находит избавление от стрессов и городской суеты. Классический стиль дополняет универсальность проекта.

Смотрите как мы строим
подобные проекты

Проект

АтрибутЗначение
Типклассические
Размеры, м6x6
Форма баниквадратная
Кол. этажей1
Конструкциякомната отдыха
Крышадвухскатная
Сан. узелнет
Стильклассический
Цвет фасадажелтый
Деревососна
Технологиякаркасная
ПомещениеПлощадь
Общая36 м²
Парная6 м²
Помывочная6 м²
Комната отдыха24 м²

Комплектация

Состав комплектации
Лето
895 000 ₽
852 000 ₽
Зима
1 006 000 ₽
958 000 ₽
Баня под ключ
1 098 000 ₽
1 046 000 ₽
Высота - 1-й этаж 2,0 м. Силовой каркас - наружные и внутренние стены из доски 50х100 мм, лаги пола, потолка и стропильной системы 50х100 мм, с шагом 590 мм.
Обвязка 100х150 мм естественной влажности + антисептик (обвязки и лаг пола)
Кровельное покрытие - профилированный лист (окрашенный), устройство обрешетки, контробрешетки и гидроизоляции.
Устройство карнизов, подшив кровельных свесов - евровагонка А/В (хвоя).
Внешняя отделка фасада - евровагонка А/В (хвоя) с устройством вентилируемого зазора и ветровлагозащитой.
Внешняя отделка фасада - имитация бруса А/В с устройством вентилируемого зазора и ветровлагозащитой.
Внутренняя отделка - евровагонка А/В (хвоя).
Внутренняя отделка потолка парного отделения - евровагонка А/В (осина).
Настил пола - обрезная доска 50х150 мм.
Настил пола - шпунтованная доска А/В с утеплением.
Утепление внешних и внутренних стен, потолка 50 мм.
Утепление внешних и внутренних стен, потолка 100 мм
Окна деревянные, двойное остекление.
Двери массив дерева (банные, клиновые)
Полати - одноуровневые, Осина.
Полати - двухуровневые, Осина.
Печь - Везувий Оптимум 14 с баком на трубе 55 литров из нержавеющей стали, двухконтурным дымоходом и комплектом пожаробезопасности.
Печь встраивается в перегородку через кирпичную кладку и топится из комнаты отдыха.
Водоотведение из помывочного отделения - установка пластикового трапа. Утепление пола экструдированным пенополиэтиролом 50 мм.
Отделка цоколя - Профилированный лист (окрашенный) с продухами и металлическим отливом.
Электрика - монтаж автомата, выключателя, светильников, розеток.
Люк - лаз (доступ на чердачное пространство).

Дополнительные услуги

150 000 ₽
102 000 ₽
72 000 ₽
21 000 ₽

Бесплатный выезд специалиста

Оплата

  • Способы оплаты Наличными деньгами в кассу офиса компании или банковский перевод на расчетный счет компании.

  • Этапы оплаты Оплата комплекса услуг по строительству вашего дома или бани проходит в три этапа. Суммы фиксируются в договоре подряда на строительство с указанием сроков, это гарантирует заказчикам, что цена не вырастет во время стройки.

  • Оплата в кредит Мы работаем с многими банками партнерами. Подать заявку на оформление кредита можно в офисе компании или по телефону. Одобрение заявки занимает 30 минут.

Информирование

Еженедельный фото или видеоотчет в любом удобном для вас канале: почта, мессенджеры. Прораб ждет Вас на участке строительства в удобное для Вас время по договоренности.

Доставка

СК Надёжность возьмет на себя полный комплекс услуг по доставке, погрузке и разгрузке материалов до места строительства на Вашем участке в Нижнем Новгороде или Нижегородской области. 

Стоимость рассчитывается индивидуально на каждый объект менеджером в зависимости от веса груза, типа транспортного средства и километража.

Сроки строительства

Сроки строительства составляют от двух недель до двух месяцев в зависимости от размеров объекта и объема работ. При составлении договора подряда сроки указываются на момент оформления документов.

Гарантия

Современные технологии и качественный материал позволяет дать гарантию для наших клиентов 5 лет.

Посетите нашу выставочную площадку

Нижегородская область, Богородский район, СТ Родник, 7

Преимущества строительной компании Надёжность

Строительство бани под ключ

Проектирование, изготовление, транспортировка, монтаж, инженерные коммуникации, утепление, отделка

Кредит за 30 минут

Только паспорт и СНИЛС Использование материнского капитала для детей любого возраста

Профессиональный подход

Рекомендации специалистов на всех этапах от выбора фундамента до планирования интерьера

Собственное производство

Все комплектующие в наличии, срочная замена в случае необходимости

Контроль качества

Система контроля качества на всех этапах: производства, сушки, хранения, транспортировки, отгрузки

Технический надзор

Закрепленный прораб на объекте, опытные рабочие, высокое качество работ!

Выполненные проекты

Отзывы

Поделитесь вашим мнением

Ваш отзыв поможет другим покупателям сделать правильный выбор!

Ираида Камалова 17 мая 2025
Терраса стала любимым местом для чаепития после бани. Особая благодарность за продуманное расположение и защиту от ветра.
Максим Заменский 02 мая 2025
Парная получилась очень просторной, намного больше, чем я ожидал. Благодарю строителей за их труд и ответственность.
Артём Телепнев 27 апреля 2025
Баня отлично держит тепло даже в прохладные вечера, никакой сырости. Компания заслуживает уважения за профессионализм и ответственность на каждом этапе.
Павел Татарников 24 апреля 2025
Вентиляция работает отлично, воздух свежий, без духоты. Компания показала глубокое понимание климатических условий и потребностей пользователя. Также порадовала возможность регулировки потока воздуха.
Владимир Андреев 30 августа 2024
Выбрал компанию из-за рекомендаций, результат оправдал ожидания, баня собрана аккуратно, без сквозняков, сделали даже то, о чем я не просил, но что оказалось удобно.

Ждём вас в любом из наших офисов

Сартаково

Нижний Новгород, СТ Родник, 7

Больше вариантов

Вопросы и ответы

Да, в зоне пара и воды используем влагостойкие материалы — например, лиственницу, осину, вагонку с низким водопоглощением.
Окна устанавливаются с резиновыми уплотнителями, которые обеспечивают герметичность и долговечность.
Печь устанавливается на безопасном удалении от окон и дверей — минимум 50 см.
Водоснабжение — можно выбрать центральное или автономное (скважина/колодец).
Да, в большинстве проектов предусмотрено отдельное помещение для душа с водостоком и гидроизоляцией.
Фундамент должен быть готов к приезду бригады — мы проверяем его перед началом работ.
Каркасная баня 6×6 с раздельной парной и помывочной, под ключ в Нижнем Новгороде, фото 1

Каркасная баня 6х6 с раздельной парной и моечной

×
Интерактивная карта Нижегородской области
Тоншаево Ветлуга Урень Тонкино Шаранга Варнавино Ковернино Городец Балахна Володарск Павлово Сосновское Вача Кулебаки Выкса Дивеево Лукоянов Починки Пильна Сергач Первомайск Гагино Богородск Шатки Арзамас Саров Княгинино Бутурлино Лысково Спасское Воротынец Перевоз Большое Мурашкино Ардатов Уразовка Сеченово Чкаловск Заволжье Сокольское Красные баки Воскресенское Семенов Бор Кстово Нижний Новгород Кстово Дзержинск Дальнее Константиново Шахунья Вад Вознесенское Большое Болдино Навашино
Заявка на проект
Введите телефон и мы перезвоним Вам в течение 3х минут, чтобы обсудить детали
Кредит на строительство
Условия кредитования
  • Ставка 14,5%
  • Сумма до 5 000 000 руб.
  • Срок от 6 до 60 месяцев
  • Решение за 30 минут
  • Персональный менеджер 24/7

Используйте материнский капитал на строительство частного дома независимо от возраста ребенка!

(согласно ФЗ-256 от 29.12.2006 г.)
Бесплатный выезд специалиста
Введите телефон и мы перезвоним
Вам в течение 3х минут
Запись на посещение
Введите телефон и мы перезвоним
Вам в течение 3х минут
Задайте ваш вопрос
И мы перезвоним вам с ответом!
Оставаясь на сайте, вы соглашаетесь на использование файлов куки и передачей данных службам веб-аналитики
5% скидка до 28 февраля!