Нижний Новгород, СТ Родник, 7

Нижний Новгород, ул. Ларина, 27

Нижний Новгород, СТ Родник, 7

Пн - Пт с 10:00 до 18:00

Нижний Новгород, СТ Родник, 7

Нижний Новгород, ул. Ларина, 27

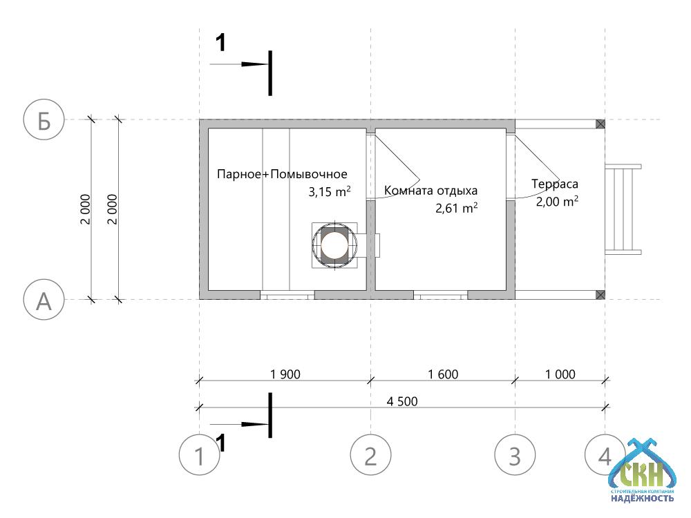
Каркасная баня 4,5х2 с террасой

Проект BK1/4

Скидка: 20 000 ₽

392 000  412 000 

Строительство 2 дня

Есть вопросы?

Специалист СК “Надёжность”
поможет с выбором

Описание

Изящная каркасная баня размером 4,5х2 метра оснащена открытой террасой и комнатой отдыха площадью 2 кв. м.. Общая площадь сооружения составляет 7,76 кв. м., помывочная — 3,15 кв. м., парная — 2,61 кв. м.. Баня выполнена в современном стиле и привлекает минималистичностью форм. Стиль и комфорт переплетаются в каждом элементе. Банный комфорт достигается благодаря детальному подходу. Вдохновение дизайнера нашло своё отражение в каждой линии этой конструкции.

Смотрите как мы строим
подобные проекты

Проект

АтрибутЗначение
Типклассические
Размеры, м2x5
Форма банипрямоугольная
Кол. этажей1
Конструкциякомната отдыха, терраса
Крышадвухскатная
Стильсовременный
Цвет фасадасерый
Деревососна
ПомещениеПлощадь
Общая7,76 м²
Совмещенная Парная + Помывочная3,15 м²
Комната отдыха2,61 м²
Терраса2 м²

Комплектация

Состав комплектации
Лето
412 000 ₽
392 000 ₽
Зима
429 000 ₽
408 000 ₽
Баня под ключ
505 000 ₽
481 000 ₽
Высота - 1-й этаж 2,0 м
Силовой каркас - наружные и внутренние стены из доски 50х100 мм, лаги пола, потолка и стропильной системы 50х100 мм, с шагом 590 мм.
Кровельное покрытие - профилированный лист (окрашенный) 0.4 мм, устройство обрешетки, контробрешетки и гидроизоляции.
Устройство карнизов, подшив кровельных свесов - евровагонка (хвоя) 12,5х88 мм.
Внешняя отделка фасада - евровагонка (хвоя) 12,5х88 мм с устройством вентилируемого зазора и ветровлагозащитой.
Имитация бруса в подарок при заказе комплектации "Баня под ключ"!
Внутренняя отделка - евровагонка (хвоя) 12,5х88 мм.
Внутренняя отделка потолка парного отделения - евровагонка (осина) 12,5х88 мм.
Настил пола - обрезная доска 50х150 мм.
Настил пола - шпунтованная доска 36 мм с утеплением 100 мм минеральная вата Knauf Insulation 11-13 кг/м3.
Утепление внешних и внутренних стен, потолка 50 мм - минеральная вата Knauf Insulation 11-13 кг/м3.
Утепление внешних и внутренних стен, потолка 100 мм - минеральная вата Knauf Insulation 11-13 кг/м3.
Окна деревянные, двойное остекление.
Двери деревянные (банные, клиновые), без замка.
Полати - одноуровневые, Осина.
Полати - двухуровневые, Осина.
Печь - Везувий Оптимум 14 (сталь 5 мм) с баком на трубе 55 литров из нержавеющей стали, двухконтурным дымоходом и комплектом пожаробезопасности.
Печь встраивается в перегородку через кирпичную кладку и топится из комнаты отдыха.
Водоотведение из помывочного отделения - установка пластикового трапа.
Утепление пола экструдированным пенополиэтиролом 50 мм.
Отделка цоколя - Профилированный лист (окрашенный) с продухами и металлическим отливом.
Электрика - монтаж автомата, выключателя, светильников, розеток.
Люк - лаз (доступ на чердачное пространство).

Дополнительные услуги

150 000 ₽
68 000 ₽
48 000 ₽
21 000 ₽

Бесплатный выезд специалиста

50% скидка на винтовые сваи
или металлочерепица в подарок!

Оплата

  • Способы оплаты Наличными деньгами в кассу офиса компании или банковский перевод на расчетный счет компании.

  • Этапы оплаты Оплата комплекса услуг по строительству вашего дома или бани проходит в три этапа. Суммы фиксируются в договоре подряда на строительство с указанием сроков, это гарантирует заказчикам, что цена не вырастет во время стройки.

  • Оплата в кредит Мы работаем с многими банками партнерами. Подать заявку на оформление кредита можно в офисе компании или по телефону. Одобрение заявки занимает 30 минут.

Информирование

Еженедельный фото или видеоотчет в любом удобном для вас канале: почта, мессенджеры. Прораб ждет Вас на участке строительства в удобное для Вас время по договоренности.

Доставка

СК Надёжность возьмет на себя полный комплекс услуг по доставке, погрузке и разгрузке материалов до места строительства на Вашем участке в Нижнем Новгороде или Нижегородской области. 

Стоимость рассчитывается индивидуально на каждый объект менеджером в зависимости от веса груза, типа транспортного средства и километража.

Сроки строительства

Сроки строительства составляют от двух недель до двух месяцев в зависимости от размеров объекта и объема работ. При составлении договора подряда сроки указываются на момент оформления документов.

Гарантия

Современные технологии и качественный материал позволяет дать гарантию для наших клиентов 1 год.

Посетите нашу выставочную площадку

Нижегородская область, Богородский район, СТ Родник, 7

Преимущества строительной компании Надёжность

Строительство бани под ключ

Проектирование, изготовление, транспортировка, монтаж, инженерные коммуникации, утепление, отделка

Кредит за 30 минут

Только паспорт и СНИЛС Использование материнского капитала для детей любого возраста

Профессиональный подход

Рекомендации специалистов на всех этапах от выбора фундамента до планирования интерьера

Собственное производство

Все комплектующие в наличии, срочная замена в случае необходимости

Контроль качества

Система контроля качества на всех этапах: производства, сушки, хранения, транспортировки, отгрузки

Технический надзор

Закрепленный прораб на объекте, опытные рабочие, высокое качество работ!

Выполненные проекты

Отзывы

Поделитесь вашим мнением

Ваш отзыв поможет другим покупателям сделать правильный выбор!

Павел Шорин 28 мая 2025
Мне понравилось, как быстро собрали баню. Хотя я мечтала о чем-то более необычном, результат меня порадовал. Строители молодцы, работали слаженно и аккуратно.
Ангелина Тесленкова 22 апреля 2025
Продуманная вентиляция позволяет сохранять свежесть внутри. Спасибо за внимание к техническим деталям и слаженную работу.
Роман Лапшин 16 апреля 2025
После тренировок париться одно удовольствие. Баня имеет хорошую вентиляцию, что очень важно для спортсменов. Благодарю всю команду за оперативность и качество.
Полина Слащилина 10 апреля 2025
Мне понравилось, как свет попадает внутрь даже в пасмурные дни. Баня получилась очень светлой и просторной. Особая благодарность архитекторам за грамотное планирование.
Екатерина Иванова 29 марта 2025
Не люблю переплаты, компания предложила честную цену за реальное качество, баня стоит уже второй сезон, как новая, даже соседи интересуются, где строила.

Ждём вас в любом из наших офисов

Сартаково

Нижний Новгород, СТ Родник, 7

Больше вариантов

Вопросы и ответы

Нужна ровная площадка, желательно — с небольшим уклоном для стока воды. Машина должна подъехать вплотную. Если есть перепад — выравниваем щебнем или устанавливаем регулируемые опоры.
Обязательно. После сдачи мастер проводит 15-20 минут с хозяевами: показывает, как запускать печь, регулировать вентиляцию, где находятся краны и автоматы. Это помогает избежать ошибок в первые месяцы эксплуатации.
Да, у нас работает служба сопровождения. Если что-то непонятно — звоните, поможем. Гарантийные случаи рассматриваем оперативно, выезжаем на место при необходимости. Поддержка — не формальность, а часть сервиса.
Это безопасное расстояние между горячими поверхностями печи и деревянными стенами. Обычно 38–50 см. При нехватке места — ставим жаропрочные экраны из камня или нержавейки. Это обязательное требование пожарной инспекции.
Минимум раз в год. Проверяем дымоход на сажу, состояние каменки, целостность пароизоляции и крепления модулей. Летом — осматриваем внешнюю отделку, цоколь и террасу на предмет гниения или деформации.
Обычно это компактная, но удобная схема: вход через тамбур, слева — моечная, дальше — парная, а в задней части — просторная зона отдыха с окном. Такой порядок минимизирует перенос пара и сохраняет тепло.

Модульная баня 2х3 с комнатой отдыха

Заявка на проект
Введите телефон и мы перезвоним Вам в течение 3х минут, чтобы обсудить детали

Каталог

Страницы

50% скидка на винтовые сваи и металлочерепица в подарок до 31 октября!
при заказе дома, дачи или бани под ключ
Кредит на строительство
Условия кредитования
  • Ставка 14,5%
  • Сумма до 5 000 000 руб.
  • Срок от 6 до 60 месяцев
  • Решение за 30 минут
  • Персональный менеджер 24/7

Используйте материнский капитал на строительство частного дома независимо от возраста ребенка!

(согласно ФЗ-256 от 29.12.2006 г.)
Бесплатный выезд специалиста
Введите телефон и мы перезвоним
Вам в течение 3х минут
Запись на посещение
Введите телефон и мы перезвоним
Вам в течение 3х минут
Задайте ваш вопрос
И мы перезвоним вам с ответом!

Оставаясь на сайте, вы соглашаетесь на использование файлов куки и передачей данных службам веб-аналитики