Нижний Новгород, ул. Ларина, 27

Пн-Пт 10:00 - 18:00

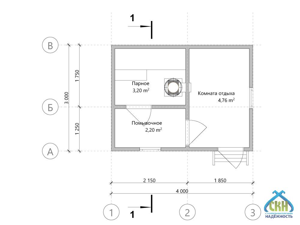
Каркасная баня 4х3 с 3 отделениями

Проект BK1/9

Экономия: 25 000 ₽

514 000  539 000 

  • Металлочерепица в подарок
  • Скидка на винтовые сваи 50%
  • Цена не вырастет во время стройки

Скидка на сваи 50%!

Строительство под ключ 2 дня

Нижний Новгород и область

Есть вопросы?

Специалист СК “Надёжность”
поможет с выбором

Описание

Баня 4х3 по каркасной технологии — верный спутник уюта и бодрости. Строительство занимает считанные дни, а результат радует годами. Уютный проект на 3х4 метра в современном стиле вместит парную, помывочную и комнату отдыха, где каждый найдет уголок для себя. Серый фасад смотрится строго и модно, будто баня знает толк в стиле. Цена приятно удивляет, а качество материалов и скорость возведения — на высоте. Пар здесь рождается из жаркой печки и удерживается стенами из экологичной древесины, а значит заботится о здоровье хозяев. Постройка надежна и красива!

Смотрите как мы строим
подобные проекты

Проект

АтрибутЗначение
Типклассические
Размеры, м3x4
Форма банипрямоугольная
Кол. этажей1
Конструкциякомната отдыха
Крышадвухскатная
Стильсовременный
Цвет фасадасерый
Деревососна
Технологиякаркасная
ПомещениеПлощадь
Общая10,16 м²
Парная3,2 м²
Помывочная2,2 м²
Комната отдыха4,76 м²

Комплектация

Состав комплектации
Лето
539 000 ₽
514 000 ₽
Зима
592 000 ₽
564 000 ₽
Баня под ключ
663 000 ₽
632 000 ₽
Высота - 1-й этаж 2,0 м. Силовой каркас - наружные и внутренние стены из доски 50х100 мм, лаги пола, потолка и стропильной системы 50х100 мм, с шагом 590 мм.
Обвязка 100х150 мм естественной влажности + антисептик (обвязки и лаг пола)
Кровельное покрытие - профилированный лист (окрашенный), устройство обрешетки, контробрешетки и гидроизоляции.
Устройство карнизов, подшив кровельных свесов - евровагонка А/В (хвоя).
Внешняя отделка фасада - евровагонка А/В (хвоя) с устройством вентилируемого зазора и ветровлагозащитой.
Внешняя отделка фасада - имитация бруса А/В с устройством вентилируемого зазора и ветровлагозащитой.
Внутренняя отделка - евровагонка А/В (хвоя).
Внутренняя отделка потолка парного отделения - евровагонка А/В (осина).
Настил пола - обрезная доска 50х150 мм.
Настил пола - шпунтованная доска А/В с утеплением.
Утепление внешних и внутренних стен, потолка 50 мм.
Утепление внешних и внутренних стен, потолка 100 мм
Окна деревянные, двойное остекление.
Двери массив дерева (банные, клиновые)
Полати - одноуровневые, Осина.
Полати - двухуровневые, Осина.
Печь - Везувий Оптимум 14 с баком на трубе 55 литров из нержавеющей стали, двухконтурным дымоходом и комплектом пожаробезопасности.
Печь встраивается в перегородку через кирпичную кладку и топится из комнаты отдыха.
Водоотведение из помывочного отделения - установка пластикового трапа. Утепление пола экструдированным пенополиэтиролом 50 мм.
Отделка цоколя - Профилированный лист (окрашенный) с продухами и металлическим отливом.
Электрика - монтаж автомата, выключателя, светильников, розеток.
Люк - лаз (доступ на чердачное пространство).

Дополнительные услуги

150 000 ₽
76 500 ₽
54 000 ₽
21 000 ₽

Бесплатный выезд специалиста

Оплата

  • Способы оплаты Наличными деньгами в кассу офиса компании или банковский перевод на расчетный счет компании.

  • Этапы оплаты Оплата комплекса услуг по строительству вашего дома или бани проходит в три этапа. Суммы фиксируются в договоре подряда на строительство с указанием сроков, это гарантирует заказчикам, что цена не вырастет во время стройки.

  • Оплата в кредит Мы работаем с многими банками партнерами. Подать заявку на оформление кредита можно в офисе компании или по телефону. Одобрение заявки занимает 30 минут.

Информирование

Еженедельный фото или видеоотчет в любом удобном для вас канале: почта, мессенджеры. Прораб ждет Вас на участке строительства в удобное для Вас время по договоренности.

Доставка

СК Надёжность возьмет на себя полный комплекс услуг по доставке, погрузке и разгрузке материалов до места строительства на Вашем участке в Нижнем Новгороде или Нижегородской области. 

Стоимость рассчитывается индивидуально на каждый объект менеджером в зависимости от веса груза, типа транспортного средства и километража.

Сроки строительства

Сроки строительства составляют от двух недель до двух месяцев в зависимости от размеров объекта и объема работ. При составлении договора подряда сроки указываются на момент оформления документов.

Гарантия

Современные технологии и качественный материал позволяет дать гарантию для наших клиентов 5 лет.

Посетите нашу выставочную площадку

Нижегородская область, Богородский район, СТ Родник, 7

Преимущества строительной компании Надёжность

Строительство бани под ключ

Проектирование, изготовление, транспортировка, монтаж, инженерные коммуникации, утепление, отделка

Кредит за 30 минут

Только паспорт и СНИЛС Использование материнского капитала для детей любого возраста

Профессиональный подход

Рекомендации специалистов на всех этапах от выбора фундамента до планирования интерьера

Собственное производство

Все комплектующие в наличии, срочная замена в случае необходимости

Контроль качества

Система контроля качества на всех этапах: производства, сушки, хранения, транспортировки, отгрузки

Технический надзор

Закрепленный прораб на объекте, опытные рабочие, высокое качество работ!

Выполненные проекты

Отзывы

Поделитесь вашим мнением

Ваш отзыв поможет другим покупателям сделать правильный выбор!

Ляззат Мирсаитова 20 мая 2025
Надежность, главное для меня. Баня построена с учетом всех факторов. Благодарю специалистов за грамотность и внимательность к заказчику.
Динара Ситдыкова 10 мая 2025
Здесь чувствуешь себя комфортно, как дома, только еще лучше. Компания удивила вниманием к мелочам и аккуратностью исполнения.
Станислав Шумигорский 24 апреля 2025
Баню привезли всего через три дня после заказа. Особенно порадовало оперативное выполнение задачи и четкий график работы команды.
Сергей Шаповалов 03 апреля 2025
Мне понравилось, как компания подошла к проектированию. Баня построена на прочном фундаменте, что особенно важно для нас, так как участок сложный. Спасибо архитектору за внимательность и профессионализм.
Роман Драгунов 29 января 2025
Нравится, что компания предлагает разные комплектации, выбрал средний уровень, получил все необходимое, ни одного лишнего рубля, все по делу, такой подход вызывает доверие.

Ждём вас в любом из наших офисов

Сартаково

Нижний Новгород, СТ Родник, 7

Больше вариантов

Вопросы и ответы

Каркас рассчитан так, чтобы исключить деформации при перепадах температур за счет компенсационных зазоров и правильного подбора материалов.
В нижней части двери предусмотрен вентиляционный проём с решёткой для воздухообмена.
Горячая вода может поступать как от теплообменника печи, так и от отдельного котла.
В цокольной части предусмотрены вентиляционные отверстия для проветривания подполья.
Конструкции бани имеют класс огнестойкости не ниже С0 – конструктивная пожаробезопасность обеспечена.
Все проекты предусматривают места для подвода воды, канализации и электричества.

Каркасная баня 4х3 с 3 отделениями

×
Интерактивная карта Нижегородской области
Тоншаево Ветлуга Урень Тонкино Шаранга Варнавино Ковернино Городец Балахна Володарск Павлово Сосновское Вача Кулебаки Выкса Дивеево Лукоянов Починки Пильна Сергач Первомайск Гагино Богородск Шатки Арзамас Саров Княгинино Бутурлино Лысково Спасское Воротынец Перевоз Большое Мурашкино Ардатов Уразовка Сеченово Чкаловск Заволжье Сокольское Красные баки Воскресенское Семенов Бор Кстово Нижний Новгород Кстово Дзержинск Дальнее Константиново Шахунья Вад Вознесенское Большое Болдино Навашино
Заявка на проект
Введите телефон и мы перезвоним Вам в течение 3х минут, чтобы обсудить детали
Кредит на строительство
Условия кредитования
  • Ставка 14,5%
  • Сумма до 5 000 000 руб.
  • Срок от 6 до 60 месяцев
  • Решение за 30 минут
  • Персональный менеджер 24/7

Используйте материнский капитал на строительство частного дома независимо от возраста ребенка!

(согласно ФЗ-256 от 29.12.2006 г.)
Бесплатный выезд специалиста
Введите телефон и мы перезвоним
Вам в течение 3х минут
Запись на посещение
Введите телефон и мы перезвоним
Вам в течение 3х минут
Задайте ваш вопрос
И мы перезвоним вам с ответом!
Оставаясь на сайте, вы соглашаетесь на использование файлов куки и передачей данных службам веб-аналитики
5% скидка до 28 февраля!