Нижний Новгород, СТ Родник, 7

Нижний Новгород, ул. Ларина, 27

Нижний Новгород, СТ Родник, 7

Пн - Пт с 10:00 до 18:00

Нижний Новгород, СТ Родник, 7

Нижний Новгород, ул. Ларина, 27

Баня из бревна 6×9 с гостевой комнатой

Проект BO2/14

Скидка: 89 000 ₽

1 773 000  1 862 000 

Строительство 5 дней

Есть вопросы?

Специалист СК “Надёжность”
поможет с выбором

Описание

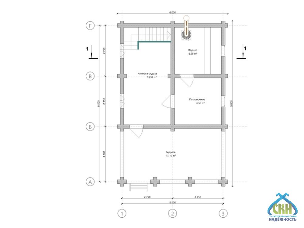
Двухэтажная баня из оцилиндрованного бревна размером 6х9 метров создана как полноценный дом отдыха. Общая площадь — 72 кв. м., парная — 6,58 кв. м., помывочная — 6,58 кв. м.. Светлые помещения наполняют интерьер жизненной энергией и теплом. Крыльцо служит переходом между природой и уютом внутри. Баня для расслабления предлагает всё необходимое для релаксации и общения. Светлые помещения усиливают ощущение свободы и покоя.

Смотрите как мы строим
подобные проекты

Проект

АтрибутЗначение
Типбаня-дом
Размеры, м6x9
Форма банипрямоугольная
Кол. этажей2
Конструкциягостевая комната, комната отдыха, терраса
Крышадвухскатная
Сан. узелнет
Стильклассический
Цвет фасадакоричневый
Деревососна
ПомещениеПлощадь
Общая71,85 м²
Парная6,58 м²
Помывочная6,58 м²
Комната отдыха13,59 м²
Гостевые комнаты28 м²
Терраса17,1 м²

Комплектация

Состав комплектации
Баня под усадку
1 862 000 ₽
1 773 000 ₽
Высота - 1-й этаж 2,0 м.
Наружние и внутренние стены из оцилиндрованного бревна, естественной влажности d-200 мм (сборка в чашу), хвоя.
Лаги перекрытий и стропильная система 50х100 мм, с шагом 590 мм.
Кровельное покрытие - профилированный лист (окрашенный) 0.4 мм, устройство обрешетки, контробрешетки и гидроизоляции.
Устройство карнизов, подшив кровельных свесов - евровагонка (хвоя) 12,5х88 мм.
Внешняя отделка фронтона - имитация бревна 28х135 мм.
Внутренняя отделка - евровагонка (хвоя) 12,5х88 мм.
Внутренняя отделка потолка парного отделения - евровагонка (осина) 12,5х88 мм.
Настил пола - обрезная доска 50х150 мм.
Настил пола - шпунтованная доска 36 мм с утеплением 100 мм минеральная вата Knauf Insulation 11-13 кг/м3.
Межвенцовый утеплитель - джут
Утепление внутренних стен, потолка 50 мм - минеральная вата Knauf Insulation 11-13 кг/м3.
Утепление внутренних стен, потолка 100 мм - минеральная вата Knauf Insulation 11-13 кг/м3.
Окна деревянные, двойное остекление.
Двери деревянные (банные, клиновые), без замка.
Полати - одноуровневые, Осина.
Полати - двухуровневые, Осина.
Печь - Везувий Оптимум 14 (сталь 5 мм) с баком на трубе 55 литров из нержавеющей стали, двухконтурным дымоходом и комплектом пожаробезопасности.
Печь встраивается в перегородку через кирпичную кладку и топится из комнаты отдыха.
Водоотведение из помывочного отделения - установка пластикового трапа.
Утепление пола экструдированным пенополиэтиролом 50 мм.
Отделка цоколя - профилированный лист (окрашенный) с продухами и металлическим отливом.
Электрика - монтаж автомата, выключателя, светильников, розеток.
Люк - лаз (доступ на чердачное пространство).

Дополнительные услуги

150 000 ₽
102 000 ₽
72 000 ₽

Бесплатный выезд специалиста

50% скидка на винтовые сваи
или металлочерепица в подарок!

Оплата

  • Способы оплаты Наличными деньгами в кассу офиса компании или банковский перевод на расчетный счет компании.

  • Этапы оплаты Оплата комплекса услуг по строительству вашего дома или бани проходит в три этапа. Суммы фиксируются в договоре подряда на строительство с указанием сроков, это гарантирует заказчикам, что цена не вырастет во время стройки.

  • Оплата в кредит Мы работаем с многими банками партнерами. Подать заявку на оформление кредита можно в офисе компании или по телефону. Одобрение заявки занимает 30 минут.

Информирование

Еженедельный фото или видеоотчет в любом удобном для вас канале: почта, мессенджеры. Прораб ждет Вас на участке строительства в удобное для Вас время по договоренности.

Доставка

СК Надёжность возьмет на себя полный комплекс услуг по доставке, погрузке и разгрузке материалов до места строительства на Вашем участке в Нижнем Новгороде или Нижегородской области. 

Стоимость рассчитывается индивидуально на каждый объект менеджером в зависимости от веса груза, типа транспортного средства и километража.

Сроки строительства

Сроки строительства составляют от двух недель до двух месяцев в зависимости от размеров объекта и объема работ. При составлении договора подряда сроки указываются на момент оформления документов.

Гарантия

Современные технологии и качественный материал позволяет дать гарантию для наших клиентов 1 год.

Посетите нашу выставочную площадку

Нижегородская область, Богородский район, СТ Родник, 7

Преимущества строительной компании Надёжность

Строительство бани под ключ

Проектирование, изготовление, транспортировка, монтаж, инженерные коммуникации, утепление, отделка

Кредит за 30 минут

Только паспорт и СНИЛС Использование материнского капитала для детей любого возраста

Профессиональный подход

Рекомендации специалистов на всех этапах от выбора фундамента до планирования интерьера

Собственное производство

Все комплектующие в наличии, срочная замена в случае необходимости

Контроль качества

Система контроля качества на всех этапах: производства, сушки, хранения, транспортировки, отгрузки

Технический надзор

Закрепленный прораб на объекте, опытные рабочие, высокое качество работ!

Выполненные проекты

Отзывы

Поделитесь вашим мнением

Ваш отзыв поможет другим покупателям сделать правильный выбор!

Светлана Летягина 04 июня 2025
Все элементы были в наличии, все собрано по списку. Никаких недостач или ошибок при комплектации. Если кто задумывается о бане - смело берите из оцилиндрованного бревна.
Иванна Смирнова 30 мая 2025
Порадовал внешний вид - смотрится аккуратно и по-домашнему. Соседи одобрили, говорят, что баня как из книжки. А главное - здоровье стало лучше. Суставы меньше ноют, сон улучшился, и вообще после бани себя моложе лет на десять чувствуешь.
Мурат Шарданов 03 марта 2025
Затраты были оптимальными, эффект - максимальным. Баня приносит не только пользу, но и моральное удовлетворение. Оцениваю как выгодное вложение, с точки зрения цена-качество.
Пётр Котов 05 декабря 2024
Сроки соблюдены, бюджет не превышен, качество - высокое. Команда показала себя как профессионалы. Приятно иметь дело с профессионалами, которые умеют успешно управлять проектом по срокам и качеству исполнения.
Юлия Стом 05 сентября 2024
Во-первых, сборка заняла считанные дни - никаких долгих подгонок или дополнительной отделки. Собрали, привезли, поставили - уже через две недели парились впервые. Бревно ровное, аккуратное, щели минимальны, утеплитель между венцами - по делу, ничего лишнего. Постройка сразу получилась герметичной и теплой.

Ждём вас в любом из наших офисов

Сартаково

Нижний Новгород, СТ Родник, 7

Больше вариантов

Вопросы и ответы

Обязательно! Каждое бревно проходит контроль качества — никаких сколов, трещин и перекосов. Только лучшие материалы попадают в сборку.
Цоколь можно оштукатурить, облицевать клинкерной плиткой, натуральным камнем или деревянным сайдингом — на ваш вкус.
Да, делаем отмостку вокруг бани и систему водоотвода — чтобы вода не скапливалась возле фундамента.
Входные двери — деревянные утеплённые, с плотным уплотнением. Можно выбрать и металлические, если хотите.
Мощность подбираем под объём парилки — от 6 до 18 кВт. Чтобы не перегревалось помещение и не было холодно.
Да, убираем весь мусор — оставляем чистое место, как будто и не было стройки.
Баня из бревна 6×8 с двумя гостевыми комнатами, под ключ в Нижнем Новгороде, фото 1

Баня из бревна 6×8 с 2 комнатами

Заявка на проект
Введите телефон и мы перезвоним Вам в течение 3х минут, чтобы обсудить детали

Каталог

Страницы

50% скидка на винтовые сваи и металлочерепица в подарок до 31 октября!
при заказе дома, дачи или бани под ключ
Кредит на строительство
Условия кредитования
  • Ставка 14,5%
  • Сумма до 5 000 000 руб.
  • Срок от 6 до 60 месяцев
  • Решение за 30 минут
  • Персональный менеджер 24/7

Используйте материнский капитал на строительство частного дома независимо от возраста ребенка!

(согласно ФЗ-256 от 29.12.2006 г.)
Бесплатный выезд специалиста
Введите телефон и мы перезвоним
Вам в течение 3х минут
Запись на посещение
Введите телефон и мы перезвоним
Вам в течение 3х минут
Задайте ваш вопрос
И мы перезвоним вам с ответом!

Оставаясь на сайте, вы соглашаетесь на использование файлов куки и передачей данных службам веб-аналитики